賃貸マンション
FARE駒込IIの賃貸物件情報(ワンルーム/4階)
| 家賃 | 管理費等 | 敷金 | 礼金 | 間取り | 専有面積 |
|---|---|---|---|---|---|
| 8.9万円 | 8,000円 | なし | 8.9万円 | ワンルーム | 20.65m2 |
入居決定でお祝い金最大100,000円
Point
オンラインにて申込みから契約までのお手続きも可能です。入居日が合わずにお悩みの方、契約金のお見積もりや室内写真のご要望などお気軽にお問い合わせください。初期費用の分割払いも承ります。
提供:(株)アクセス赤羽LaLaガーデン店(SUUMO経由)

詳細情報 FARE駒込II
物件紹介
FARE駒込IIはJR山手線駒込駅から徒歩4分にあり、駅近で通勤通学に便利なマンションです。
このお部屋は2階以上に位置しているので、通行人や周囲の住人からの視線が気になりにくく、防犯面でも安心。建物のエントランスはオートロックがついており、インターホンにはTVモニタもついているため、相手の顔を確認してから来客対応することができます。
人気の角部屋で周囲の居住者の生活音も気になりにくく、また、フローリングのお部屋なのでお掃除もラクラク。バス・トイレ別の仕様で、のんびりお風呂タイムも楽しめます。また、浴室乾燥機を使えば、雨の日でもお洗濯は問題ありません。
通信設備面では、インターネットが無料で使えるので、月々の出費を抑えられるのも魅力です(別途工事等が必要な場合あり)。
共用部には宅配ボックスが設定されているので、不在の時にも荷物を受け取ることができます。
このお部屋は2階以上に位置しているので、通行人や周囲の住人からの視線が気になりにくく、防犯面でも安心。建物のエントランスはオートロックがついており、インターホンにはTVモニタもついているため、相手の顔を確認してから来客対応することができます。
人気の角部屋で周囲の居住者の生活音も気になりにくく、また、フローリングのお部屋なのでお掃除もラクラク。バス・トイレ別の仕様で、のんびりお風呂タイムも楽しめます。また、浴室乾燥機を使えば、雨の日でもお洗濯は問題ありません。
通信設備面では、インターネットが無料で使えるので、月々の出費を抑えられるのも魅力です(別途工事等が必要な場合あり)。
共用部には宅配ボックスが設定されているので、不在の時にも荷物を受け取ることができます。
お金・契約の情報
※「-」と表示されているものは、実際は料金が発生するものもございます。詳細はお問い合わせください。
| 家賃 | 8.9万円 | 管理費・共益費 | 8,000円 |
|---|---|---|---|
| 敷金 | なし | 礼金 | 8.9万円 |
| 入居決定でお祝い金最大100,000円 | |||
| 保証金 | - | 償却・敷引 | - |
| 住宅保険料 | - | 更新料 | - |
| 保証会社利用 | 必須 | 保証会社名 | - |
| 保証会社費用 | - | 保証会社備考 | 保証会社利用必 初回保証料:賃料・管理費の50パーセント 年額保証料:10 000円 |
| 契約形態 | - | 契約期間 | - |
| 入居・引渡期間 | - | 現況 | - |
| 契約備考 | 【仲介手数料無料(0円)対象物件】初期費用の分割・クレジットカード決済可能です!お気軽にご相談下さい。退去時室内クリーニング代実費精算。短期違約金として、1年未満の解約は賃料の2ヶ月となり、2年未満の解約は賃料の1ヶ月となります。 合計2.15万円(内訳:鍵交換代2.15万円) 更新料 新賃料1.00ヶ月分 ワンルーム 普通借家2年 損保【1.65万円2年】 バストイレ別、エアコン、クロゼット、フローリング、TVインターホン、浴室乾燥機、オートロック、室内洗濯置、角住戸、脱衣所、洗面所独立、宅配ボックス、2面採光、最上階、敷金不要、仲介手数料不要、24時間緊急通報システム、2沿線利用可、ネット使用料不要、保証金不要、24時間換気システム、2駅利用可、3駅以上利用可、駅徒歩5分以内、駅徒歩10分以内、上階無し、セキュリティ会社加入済、都市ガス、初期費用カード決済可 入居日:'26年3月上旬 | ||
部屋の情報
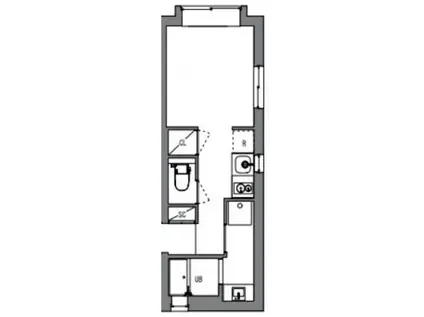
| 間取り | ワンルーム | 専有面積 | 20.65m2 |
|---|---|---|---|
| 所在階 / 向き | 4階 / 北 | バルコニー面積 | - |
| 水道 / ガス | - | ||
| 設備 | バス・トイレ別、2階以上、オートロック、テレビドアホン、宅配ボックス、浴室乾燥機、インターネット対応、エアコン、角部屋、フローリング、洗髪洗面化粧台、インターネット使用料無料、洗濯機:室内 | ||
| 当社物件ID | 46844437 | ||
建物の情報
| 建物名 | FARE駒込II | ||
|---|---|---|---|
| 所在地 | 東京都北区中里 | ||
| 交通 | JR山手線 駒込駅 徒歩4分 JR山手線 田端駅 徒歩14分 都営三田線 千石駅 徒歩19分 | ||
| 階数 | 4階建 | 総戸数 | - |
| 築年月 | 2020年02月 / 築6年 | エレベーター | - |
| 駐車場 | なし | バイク置き場 | - |
| 駐輪場 | - | 管理人/管理会社 | - |
| 周辺環境 | その他 駒込駅(その他)まで560m その他 田端駅(その他)まで1092m その他 巣鴨駅(その他)まで1253m その他 マルエツ プチ 駒込中里一丁目店(スーパー)まで237m その他 マルエツ プチ 駒込店(スーパー)まで376m その他 NewDays(ニューデイズ) 駒込店(コンビニ)まで543m | ||
| 建物種別 | マンション | 建物構造 | RC(鉄筋コンクリート) |
この部屋の取扱い不動産会社
| 会社名 | (株)アクセス赤羽LaLaガーデン店(SUUMO経由) | ||
|---|---|---|---|
| 所在地 | 東京都北区赤羽2-14-1 美宝堂ビル2階 | 交通 | - |
| 営業時間 | 10:00~19:00 | 定休日 | 毎週水曜日(祝日の場合は営業) |
| 免許番号 | 東京都知事94469 | 取引態様 | 仲介 |
| 不動産会社管理番号 | 100482671323 | 当社管理番号 | 89 |
| 所属団体 | (公社)東京都宅地建物取引業協会会員 | ||
| 公正取引協議会 | (公社)首都圏不動産公正取引協議会加盟 | ||
| 取扱い物件情報 | 物件詳細へ | ||
※各種情報と現状に差異がある場合は、現状優先となります。問い合わせをすることで、より詳しい条件、情報を確認する事ができます。
提供:(株)アクセス赤羽LaLaガーデン店(SUUMO経由)
この物件が気になったら掲載期限まであと10日
FARE駒込IIに条件(家賃・エリア)が近い物件一覧
| 写真 | 家賃 管理費等 | 敷金 礼金 | 間取り 専有面積 | 築年数 | 最寄り駅 所在地 | キープ | 詳細 |
|---|---|---|---|---|---|---|---|
マンション パレステージ西日暮里2(1LDK/5階) | |||||||
![]() | 12.3万円 1.5万円 | なし 18.45万円 | 1LDK 30.81m2 | 築4年 | 日暮里舎人ライナー 赤土小学校前駅 徒歩5分 東京地下鉄千代田線 町屋駅 徒歩11分 京成電鉄本線 新三河島駅 徒歩12分 東京都荒川区東尾久2丁目 | 詳細を見る | |
マンション 加島コーポ(2K/2階) | |||||||
![]() | 6.9万円 3,000円 | なし なし | 2K 31.14m2 | 築39年 | 東京地下鉄千代田線 北綾瀬駅 徒歩26分 つくばエクスプレス 六町駅 徒歩29分 東京都足立区神明2丁目 | 詳細を見る | |
アパート プルミエⅡ(1K/1階) | |||||||
![]() | 8.2万円 3,500円 | なし なし | 1K 23.29m2 | 新築 | 東京地下鉄千代田線 北綾瀬駅 徒歩6分 つくばエクスプレス 青井駅 徒歩18分 東京地下鉄千代田線 綾瀬駅 徒歩25分 東京都足立区加平1丁目 | 詳細を見る | |
マンション AZEST北千住(1K/4階) | |||||||
![]() | 8.4万円 1万円 | なし 8.4万円 | 1K 21m2 | 築8年 | 常磐線 北千住駅 徒歩9分 東京地下鉄日比谷線 北千住駅 徒歩9分 東京地下鉄千代田線 北千住駅 徒歩9分 東京都足立区日ノ出町 | 詳細を見る | |
マンション セボール(4DK/4階) | |||||||
![]() | 10.5万円 1万円 | なし なし | 4DK 68.04m2 | 築35年 | 東京地下鉄千代田線 北綾瀬駅 徒歩16分 つくばエクスプレス 六町駅 徒歩26分 東京都足立区大谷田5丁目 | 詳細を見る | |
マンション グランレスト文京茗荷谷(1K/1階) | |||||||
![]() | 11.8万円 1.2万円 | 11.8万円 11.8万円 | 1K 26.89m2 | 築4年 | 東京地下鉄丸ノ内線 茗荷谷駅 徒歩8分 東京都三田線 千石駅 徒歩16分 山手線 巣鴨駅 徒歩24分 東京都文京区大塚3丁目 | 詳細を見る | |
マンション スカイコートヌーベル巣鴨(1K/2階) | |||||||
![]() | 9.5万円 1万円 | 9.5万円 9.5万円 | 1K 26.25m2 | 築24年 | 都営三田線 西巣鴨駅 徒歩5分 JR埼京線 板橋駅 徒歩8分 東武東上線 北池袋駅 徒歩12分 東京都北区滝野川 | 詳細を見る | |
マンション プランドール2(1K/4階) | |||||||
![]() | 9.8万円 8,000円 | 4.9万円 14.7万円 | 1K 33.37m2 | 築9年 | 東京都荒川線 東尾久三丁目駅 徒歩2分 日暮里舎人ライナー 熊野前駅 徒歩8分 東京地下鉄千代田線 町屋駅 徒歩9分 東京都荒川区東尾久6丁目 | 詳細を見る | |








