賃貸マンション
ルーブル大島弐番館の賃貸物件情報(1K/1階)
| 家賃 | 管理費等 | 敷金 | 礼金 | 間取り | 専有面積 |
|---|---|---|---|---|---|
| 8.7万円 | 1.2万円 | なし | 8.7万円 | 1K | 25.52m2 |
入居決定でお祝い金最大100,000円
Point
まずはお問い合わせ!
不動産会社は街のプロ、あなたに合った物件がきっと見つかります。
提供:アパマンショップ森下店

詳細情報 ルーブル大島弐番館
物件紹介
ルーブル大島弐番館は東京都新宿線大島駅から徒歩13分にあるマンションです。
建物のエントランスはオートロックがついており、インターホンにはTVモニタもついているため、相手の顔を確認してから来客対応することができます。
おしゃれなデザイナーズ物件!フローリングのお部屋なのでお掃除もラクラク。キッチンはシステムキッチン仕様になっていますので、お料理好きの方にもぴったり。バス・トイレは別なので、のんびりお風呂タイムも楽しめるでしょう。また、雨の日でも浴室乾燥機を使えば、お洗濯も問題ありません。
通信設備面では、インターネット接続が可能です。また、BSアンテナ・CSアンテナがありCATVにも対応しているので、おうち時間も充実するでしょう(別途工事、契約料が必要な場合あり)。
建物にはエレベーターがついているので、重い荷物があっても安心。共用部には宅配ボックスが設定されているので、不在の時にも荷物を受け取ることができます。
建物のエントランスはオートロックがついており、インターホンにはTVモニタもついているため、相手の顔を確認してから来客対応することができます。
おしゃれなデザイナーズ物件!フローリングのお部屋なのでお掃除もラクラク。キッチンはシステムキッチン仕様になっていますので、お料理好きの方にもぴったり。バス・トイレは別なので、のんびりお風呂タイムも楽しめるでしょう。また、雨の日でも浴室乾燥機を使えば、お洗濯も問題ありません。
通信設備面では、インターネット接続が可能です。また、BSアンテナ・CSアンテナがありCATVにも対応しているので、おうち時間も充実するでしょう(別途工事、契約料が必要な場合あり)。
建物にはエレベーターがついているので、重い荷物があっても安心。共用部には宅配ボックスが設定されているので、不在の時にも荷物を受け取ることができます。
お金・契約の情報
※「-」と表示されているものは、実際は料金が発生するものもございます。詳細はお問い合わせください。
| 家賃 | 8.7万円 | 管理費・共益費 | 1.2万円 |
|---|---|---|---|
| 敷金 | なし | 礼金 | 8.7万円 |
| 入居決定でお祝い金最大100,000円 | |||
| 保証金 | - | 償却・敷引 | - |
| 住宅保険料 | 1.8万円(2年) | 更新料 | - |
| 保証会社利用 | 利用可 | 保証会社名 | その他 |
| 保証会社費用 | - | 保証会社備考 | 初回保証料30%(家賃+管理費)年間保証料10,000円 ※学生初回保証料9,000円(学生契約可能) |
| 契約形態 | - | 契約期間 | 2年 |
| 入居・引渡期間 | 相談 | 現況 | - |
| 契約備考 | 駐輪場(空有) TFDclub 20000円/ハウスクリーニング 55000円/鍵交換費用 27500円 | ||
部屋の情報
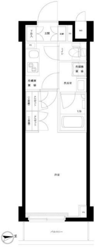
| 間取り | 1K | 専有面積 | 25.52m2 |
|---|---|---|---|
| 所在階 / 向き | 1階 / 東 | バルコニー面積 | - |
| 水道 / ガス | ガス【都市】 | ||
| 設備 | バス・トイレ別、オートロック、テレビドアホン、宅配ボックス、浴室乾燥機、光ファイバー対応、システムキッチン、エレベーター、温水洗浄便座、フローリング、コンロ:ガス、CSアンテナ、BSアンテナ、シャワー、冷房、洗濯機:室内、タイル張り | ||
| 当社物件ID | 26615608 | ||
建物の情報
| 建物名 | ルーブル大島弐番館 | ||
|---|---|---|---|
| 所在地 | 東京都江東区北砂5丁目 | ||
| 交通 | 東京都新宿線 大島駅(東京) 徒歩13分 | ||
| 階数 | 8階建 | 総戸数 | - |
| 築年月 | 2018年05月 / 築8年 | エレベーター | あり |
| 駐車場 | - | バイク置き場 | - |
| 駐輪場 | あり | 管理人/管理会社 | - |
| 建物種別 | マンション | 建物構造 | RC(鉄筋コンクリート) |
この部屋の取扱い不動産会社
| 会社名 | アパマンショップ森下店 | ||
|---|---|---|---|
| 所在地 | 東京都江東区森下1丁目 16-10河田ビル1階 | 交通 | 東京都新宿線森下から徒歩1分 |
| 営業時間 | 10:00〜19:00 | 定休日 | - |
| 免許番号 | 東京都知事(4)89517 | 取引態様 | 仲介 |
| 不動産会社管理番号 | 111598233 | 当社管理番号 | 4 |
| 所属団体 | (公社)東京都宅地建物取引業協会 | ||
| 公正取引協議会 | (公社) 首都圏不動産公正取引協議会加盟 | ||
| 取扱い物件情報 | 物件詳細へ | ||
※各種情報と現状に差異がある場合は、現状優先となります。問い合わせをすることで、より詳しい条件、情報を確認する事ができます。
提供:アパマンショップ森下店
この物件が気になったら掲載期限まであと12日
ルーブル大島弐番館に条件(家賃・エリア)が近い物件一覧
| 写真 | 家賃 管理費等 | 敷金 礼金 | 間取り 専有面積 | 築年数 | 最寄り駅 所在地 | キープ | 詳細 |
|---|---|---|---|---|---|---|---|
マンション プレール・ドゥーク銀座イースト 6階(1K/6階) | |||||||
![]() | 10万円 1万円 | なし 10万円 | 1K 23.35m2 | 築22年 | 東京メトロ有楽町線 新富町駅(東京) 徒歩6分 JR京葉線 八丁堀駅(東京) 徒歩11分 東京メトロ日比谷線 八丁堀駅(東京) 徒歩11分 東京都中央区湊 | 詳細を見る | |
マンション SYFORME住吉(2K/3階) | |||||||
![]() | 12.3万円 1万円 | なし なし | 2K 25.89m2 | 築5年 | 都営新宿線 西大島駅 徒歩7分 東京メトロ半蔵門線 住吉駅(東京) 徒歩8分 JR総武線 亀戸駅 徒歩19分 東京都江東区大島 | 詳細を見る | |
マンション スペーシア梅屋敷(1K/11階) | |||||||
![]() | 10万円 1万円 | なし なし | 1K 22.43m2 | 築15年 | 京急本線 梅屋敷駅(東京) 徒歩2分 京急空港線 京急蒲田駅 徒歩12分 JR京浜東北線 蒲田駅 徒歩18分 東京都大田区東蒲田 | 詳細を見る | |
一戸建て 東京地下鉄有楽町線 豊洲駅 徒歩12分 築51年(3DK) | |||||||
![]() | 13.8万円 なし | 13.8万円 13.8万円 | 3DK 64.71m2 | 築51年 | 東京地下鉄有楽町線 豊洲駅 徒歩12分 京葉線 潮見駅 徒歩20分 東京地下鉄東西線 木場駅 徒歩24分 東京都江東区枝川1丁目 | 詳細を見る | |
マンション DEXTER PARK 多摩川(1K/3階) | |||||||
![]() | 8.5万円 4,000円 | 8.5万円 なし | 1K 25.08m2 | 築18年 | 京浜急行電鉄本線 六郷土手駅 徒歩3分 京浜急行電鉄大師線 港町駅 徒歩17分 東京都大田区仲六郷4丁目 | 詳細を見る | |
アパート ロジェ西蒲田(1DK/4階) | |||||||
![]() | 8.7万円 なし | 8.7万円 8.7万円 | 1DK 25.89m2 | 築37年 | JR京浜東北線 蒲田駅 徒歩12分 東急池上線 蓮沼駅 徒歩15分 京急本線 梅屋敷駅(東京) 徒歩16分 東京都大田区西蒲田 | 詳細を見る | |
マンション ダイアローグステージ(1K/4階) | |||||||
![]() | 8万円 5,000円 | 8万円 16万円 | 1K 21.44m2 | 築19年 | 東急多摩川線 矢口渡駅 徒歩4分 東急多摩川線 武蔵新田駅 徒歩12分 東京都大田区多摩川1丁目 | 詳細を見る | |







