賃貸マンション
スプランディッドXIの賃貸物件情報(3LDK/4階)
| 家賃 | 管理費等 | 敷金 | 礼金 | 間取り | 専有面積 |
|---|---|---|---|---|---|
| 18.7万円 | 1万円 | なし | なし | 3LDK | 59.48m2 |
入居決定でお祝い金最大100,000円
Point
まずはお問い合わせ!
不動産会社は街のプロ、あなたに合った物件がきっと見つかります。
提供:(株)プラン・ドゥ・シー元町店(SUUMO経由)

詳細情報 スプランディッドXI
物件紹介
スプランディッドXIは阪神電鉄阪神なんば線福駅から徒歩6分にあり、駅近で通勤通学に便利なマンションです。
このお部屋は2階以上に位置しているので、通行人や周囲の住人からの視線が気になりにくく、防犯面でも安心。建物のエントランスはオートロックがついており、インターホンにはTVモニタもついているため、相手の顔を確認してから来客対応することができます。
おしゃれなデザイナーズ物件!人気の南向き・フローリングのお部屋。室内にはウォークインクローゼットがありますので、たくさんの荷物も効率的に収納ができます。キッチンはシステムキッチン仕様になっていますので、お料理好きの方にもぴったり。バス・トイレは別なので、のんびりお風呂タイムも楽しめるでしょう。また、雨の日でも浴室乾燥機を使えば、お洗濯も問題ありません。
通信設備面では、インターネットが無料で使えるので、月々の出費を抑えられるのも魅力です。また、BSアンテナ・CSアンテナがありCATVにも対応しているので、おうち時間も充実するでしょう(別途工事、BS・CS・CATVの契約料等が必要な場合あり)。
建物にはエレベーターがついているので、重い荷物があっても安心。共用部には宅配ボックスが設定されているので、不在の時にも荷物を受け取ることができます。また、ペット飼育の相談ができますので、あなたの大切な家族の一員も快適に暮らせるか、ぜひ確認してみてください。
このお部屋は2階以上に位置しているので、通行人や周囲の住人からの視線が気になりにくく、防犯面でも安心。建物のエントランスはオートロックがついており、インターホンにはTVモニタもついているため、相手の顔を確認してから来客対応することができます。
おしゃれなデザイナーズ物件!人気の南向き・フローリングのお部屋。室内にはウォークインクローゼットがありますので、たくさんの荷物も効率的に収納ができます。キッチンはシステムキッチン仕様になっていますので、お料理好きの方にもぴったり。バス・トイレは別なので、のんびりお風呂タイムも楽しめるでしょう。また、雨の日でも浴室乾燥機を使えば、お洗濯も問題ありません。
通信設備面では、インターネットが無料で使えるので、月々の出費を抑えられるのも魅力です。また、BSアンテナ・CSアンテナがありCATVにも対応しているので、おうち時間も充実するでしょう(別途工事、BS・CS・CATVの契約料等が必要な場合あり)。
建物にはエレベーターがついているので、重い荷物があっても安心。共用部には宅配ボックスが設定されているので、不在の時にも荷物を受け取ることができます。また、ペット飼育の相談ができますので、あなたの大切な家族の一員も快適に暮らせるか、ぜひ確認してみてください。
お金・契約の情報
※「-」と表示されているものは、実際は料金が発生するものもございます。詳細はお問い合わせください。
| 家賃 | 18.7万円 | 管理費・共益費 | 1万円 |
|---|---|---|---|
| 敷金 | なし | 礼金 | なし |
| 入居決定でお祝い金最大100,000円 | |||
| 保証金 | - | 償却・敷引 | - |
| 住宅保険料 | 1円 | 更新料 | - |
| その他費用 | アクト安心ライフ24円:1.65万円 | ||
| 保証会社利用 | 必須 | 保証会社名 | - |
| 保証会社費用 | - | 保証会社備考 | 【個人契約の場合】信和CM保証 初回保証料:月額総額50% 月額手数料:1,000円 年間保証料:10,000円 ※初回保証料は決済金にて預かり全保連 初回保証料:月額総額60% 月額保証料:①法人 |
| 契約形態 | - | 契約期間 | 2年 |
| 入居・引渡期間 | 2026年03月下旬 | 現況 | 未完成 |
| 入居可能条件 | 2人入居可、ペット相談 | ||
| 契約備考 | 鍵交換費用:11000 その他設備/条件:独立洗面台、防犯カメラ、シューズボックス | ||
部屋の情報
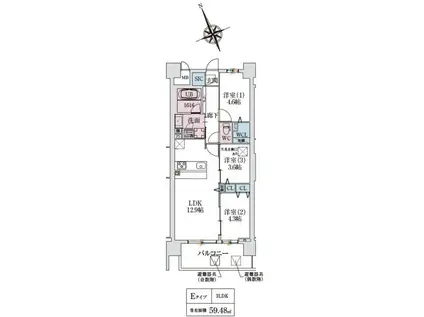
| 間取り | 3LDK | 専有面積 | 59.48m2 |
|---|---|---|---|
| 所在階 / 向き | 4階 / 南 | バルコニー面積 | - |
| 水道 / ガス | - | ||
| 設備 | バス・トイレ別、オートロック、宅配ボックス、浴室乾燥機、ウォークインクローゼット、システムキッチン、エアコン、エレベーター、温水洗浄便座、バルコニー | ||
| 当社物件ID | 159649386 | ||
建物の情報
| 建物名 | スプランディッドXI | ||
|---|---|---|---|
| 所在地 | 大阪府大阪市西淀川区福町2丁目 | ||
| 交通 | 阪神電鉄阪神なんば 福駅 徒歩7分 | ||
| 階数 | 14階建 | 総戸数 | 78戸 |
| 築年月 | 2026年03月 / 新築 | エレベーター | あり |
| 駐車場 | ご確認ください | バイク置き場 | あり |
| 駐輪場 | あり | 管理人/管理会社 | - |
| 周辺環境 | その他 ドラッグストア その他 公園 その他 銀行 その他 * | ||
| 建物種別 | マンション | 建物構造 | RC(鉄筋コンクリート) |
この部屋の取扱い不動産会社
| 会社名 | 大阪ハウスコム株式会社 江坂店 | ||
|---|---|---|---|
| 所在地 | 大阪府吹田市23-34第二梓ビル2階 | 交通 | - |
| 営業時間 | 10:00~18:00 | 定休日 | - |
| 免許番号 | 国土交通大臣(3)第8685号 | 取引態様 | 仲介 |
| 不動産会社管理番号 | HC5-5171979-405-0241 | 当社管理番号 | 468 |
| 所属団体 | 、 | ||
| 取扱い物件情報 | 物件詳細へ | ||
※各種情報と現状に差異がある場合は、現状優先となります。問い合わせをすることで、より詳しい条件、情報を確認する事ができます。
提供:大阪ハウスコム株式会社 江坂店
この物件が気になったら掲載期限まであと4日
スプランディッドXIの空き部屋一覧
全部で78の空き部屋があります。
スプランディッドXIに条件(家賃・エリア)が近い物件一覧
| 写真 | 家賃 管理費等 | 敷金 礼金 | 間取り 専有面積 | 築年数 | 最寄り駅 所在地 | キープ | 詳細 |
|---|---|---|---|---|---|---|---|
マンション グランドメゾン万博公園南(3LDK/5階) | |||||||
![]() | 13万円 8,000円 | 13万円 30万円 | 3LDK 73.34m2 | 築23年 | 大阪モノレール彩都 公園東口駅 徒歩20分 大阪モノレール本線 万博記念公園駅(大阪) 徒歩21分 大阪モノレール彩都 万博記念公園駅(大阪) 徒歩21分 大阪府吹田市山田東3丁目8-23 | 詳細を見る | |
アパート 阪和線 鳳駅 徒歩11分 築1年(1LDK/3階) | |||||||
![]() | 13.3万円 7,500円 | 5万円 20万円 | 1LDK 62.18m2 | 築1年 | 阪和線 鳳駅 徒歩11分 阪和線 津久野駅 徒歩17分 南海電鉄南海本線 浜寺公園駅 徒歩21分 大阪府堺市西区鳳北町4丁 | 詳細を見る | |
アパート 万博ハイステージ(2LDK/2階) | |||||||
| 12万円 4,800円 | なし 12万円 | 2LDK 58.38m2 | 築1年 | 大阪モノレール彩都 万博記念公園駅(大阪) 徒歩20分 大阪モノレール彩都 公園東口駅 徒歩21分 大阪モノレール本線 山田駅(大阪) 徒歩27分 大阪府吹田市山田東3丁目14-15 | 詳細を見る | ||
マンション 千里オークプライズ(3LDK/2階) | |||||||
| 12.2万円 8,000円 | 12.2万円 24.4万円 | 3LDK 70.3m2 | 築27年 | 阪急電鉄千里線 南千里駅 徒歩14分 阪急電鉄千里線 千里山駅 徒歩20分 北大阪急行南北線 桃山台駅 徒歩29分 大阪府吹田市佐井寺3丁目23-7 | 詳細を見る | ||
マンション グランセジュール江坂 住居(2LDK/11階) | |||||||
| 24万円 1.2万円 | なし 48万円 | 2LDK 73.63m2 | 築9年 | 北大阪急行南北線 江坂駅 徒歩3分 阪急電鉄千里線 豊津駅(大阪) 徒歩21分 おおさか東線 南吹田駅 徒歩24分 大阪府吹田市広芝町11-41 | 詳細を見る | ||
マンション 和の杜 江坂(1LDK/1階) | |||||||
![]() | 15.3万円 1.5万円 | 15万円 なし | 1LDK 50.33m2 | 新築 | 大阪市御堂筋線 江坂駅 徒歩9分 阪急電鉄宝塚線 服部天神駅 徒歩27分 阪急電鉄宝塚線 庄内駅(大阪) 徒歩30分 大阪府吹田市豊津町798-1 | 詳細を見る | |
マンション プレジオ江坂Ⅱ(1LDK/8階) | |||||||
| 13.4万円 1.1万円 | なし 13.4万円 | 1LDK 34.65m2 | 築7年 | 北大阪急行南北線 江坂駅 徒歩12分 おおさか東線 南吹田駅 徒歩16分 大阪市御堂筋線 東三国駅 徒歩24分 大阪府吹田市南吹田5丁目14-20 | 詳細を見る | ||
アパート LIEN FORT(2LDK/2階) | |||||||
![]() | 12万円 6,000円 | なし 15万円 | 2LDK 60.39m2 | 築1年 | 南海電鉄南海本線 諏訪ノ森駅 徒歩7分 南海電鉄南海本線 石津川駅 徒歩15分 南海電鉄南海本線 浜寺公園駅 徒歩19分 大阪府堺市西区浜寺石津町東5丁 | 詳細を見る | |



