賃貸マンション
スプランディッドXIの賃貸物件情報(3LDK/9階)
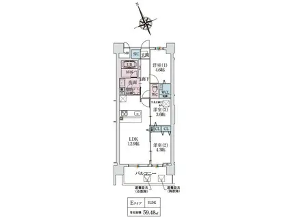
| 家賃 | 管理費等 | 敷金 | 礼金 | 間取り | 専有面積 |
|---|---|---|---|---|---|
| 19.2万円 | 1万円 | なし | なし | 3LDK | 59.48m2 |
入居決定でお祝い金最大100,000円
Point
まずはお問い合わせ!
不動産会社は街のプロ、あなたに合った物件がきっと見つかります。
提供:ホームメイトFC大国町店(株)スペランツァ(SUUMO経由)

詳細情報 スプランディッドXI
物件紹介
スプランディッドXIは阪神電鉄阪神なんば線福駅から徒歩6分にあり、駅近で通勤通学に便利なマンションです。
このお部屋は2階以上に位置しているので、通行人や周囲の住人からの視線が気になりにくく、防犯面でも安心。建物のエントランスはオートロックがついており、インターホンにはTVモニタもついているため、相手の顔を確認してから来客対応することができます。
おしゃれなデザイナーズ物件!人気の南向き・フローリングのお部屋。室内にはウォークインクローゼットがありますので、たくさんの荷物も効率的に収納ができます。キッチンはシステムキッチン仕様になっていますので、お料理好きの方にもぴったり。バス・トイレは別なので、のんびりお風呂タイムも楽しめるでしょう。また、雨の日でも浴室乾燥機を使えば、お洗濯も問題ありません。
通信設備面では、インターネットが無料で使えるので、月々の出費を抑えられるのも魅力です。また、BSアンテナ・CSアンテナがありCATVにも対応しているので、おうち時間も充実するでしょう(別途工事、BS・CS・CATVの契約料等が必要な場合あり)。
建物にはエレベーターがついているので、重い荷物があっても安心。共用部には宅配ボックスが設定されているので、不在の時にも荷物を受け取ることができます。また、ペット飼育の相談ができますので、あなたの大切な家族の一員も快適に暮らせるか、ぜひ確認してみてください。
このお部屋は2階以上に位置しているので、通行人や周囲の住人からの視線が気になりにくく、防犯面でも安心。建物のエントランスはオートロックがついており、インターホンにはTVモニタもついているため、相手の顔を確認してから来客対応することができます。
おしゃれなデザイナーズ物件!人気の南向き・フローリングのお部屋。室内にはウォークインクローゼットがありますので、たくさんの荷物も効率的に収納ができます。キッチンはシステムキッチン仕様になっていますので、お料理好きの方にもぴったり。バス・トイレは別なので、のんびりお風呂タイムも楽しめるでしょう。また、雨の日でも浴室乾燥機を使えば、お洗濯も問題ありません。
通信設備面では、インターネットが無料で使えるので、月々の出費を抑えられるのも魅力です。また、BSアンテナ・CSアンテナがありCATVにも対応しているので、おうち時間も充実するでしょう(別途工事、BS・CS・CATVの契約料等が必要な場合あり)。
建物にはエレベーターがついているので、重い荷物があっても安心。共用部には宅配ボックスが設定されているので、不在の時にも荷物を受け取ることができます。また、ペット飼育の相談ができますので、あなたの大切な家族の一員も快適に暮らせるか、ぜひ確認してみてください。
お金・契約の情報
※「-」と表示されているものは、実際は料金が発生するものもございます。詳細はお問い合わせください。
| 家賃 | 19.2万円 | 管理費・共益費 | 1万円 |
|---|---|---|---|
| 敷金 | なし | 礼金 | なし |
| 入居決定でお祝い金最大100,000円 | |||
| 保証金 | - | 償却・敷引 | - |
| 住宅保険料 | 1円 | 更新料 | - |
| その他費用 | アクト安心ライフ24円:1.65万円 | ||
| 保証会社利用 | 必須 | 保証会社名 | - |
| 保証会社費用 | - | 保証会社備考 | 【個人契約の場合】信和CM保証 初回保証料:月額総額50% 月額手数料:1,000円 年間保証料:10,000円 ※初回保証料は決済金にて預かり全保連 初回保証料:月額総額60% 月額保証料:①法人 |
| 契約形態 | - | 契約期間 | 2年 |
| 入居・引渡期間 | 2026年03月下旬 | 現況 | 未完成 |
| 入居可能条件 | 2人入居可、ペット相談 | ||
| 契約備考 | 鍵交換費用:11000 その他設備/条件:独立洗面台、防犯カメラ、シューズボックス | ||
部屋の情報
| 間取り | 3LDK | 専有面積 | 59.48m2 |
|---|---|---|---|
| 所在階 / 向き | 9階 / 南 | バルコニー面積 | - |
| 水道 / ガス | - | ||
| 設備 | バス・トイレ別、オートロック、宅配ボックス、浴室乾燥機、ウォークインクローゼット、システムキッチン、エアコン、エレベーター、温水洗浄便座、バルコニー | ||
| 当社物件ID | 159649391 | ||
建物の情報
| 建物名 | スプランディッドXI | ||
|---|---|---|---|
| 所在地 | 大阪府大阪市西淀川区福町2丁目 | ||
| 交通 | 阪神電鉄阪神なんば 福駅 徒歩7分 | ||
| 階数 | 14階建 | 総戸数 | 78戸 |
| 築年月 | 2026年03月 / 新築 | エレベーター | あり |
| 駐車場 | ご確認ください | バイク置き場 | あり |
| 駐輪場 | あり | 管理人/管理会社 | - |
| 周辺環境 | その他 ドラッグストア その他 公園 その他 銀行 その他 * | ||
| 建物種別 | マンション | 建物構造 | RC(鉄筋コンクリート) |
この部屋の取扱い不動産会社
| 会社名 | 大阪ハウスコム株式会社 江坂店 | ||
|---|---|---|---|
| 所在地 | 大阪府吹田市23-34第二梓ビル2階 | 交通 | - |
| 営業時間 | 10:00~18:00 | 定休日 | - |
| 免許番号 | 国土交通大臣(3)第8685号 | 取引態様 | 仲介 |
| 不動産会社管理番号 | HC5-5171979-905-0241 | 当社管理番号 | 468 |
| 所属団体 | 、 | ||
| 取扱い物件情報 | 物件詳細へ | ||
※各種情報と現状に差異がある場合は、現状優先となります。問い合わせをすることで、より詳しい条件、情報を確認する事ができます。
提供:大阪ハウスコム株式会社 江坂店
この物件が気になったら掲載期限まであと5日
スプランディッドXIの空き部屋一覧
全部で78の空き部屋があります。
スプランディッドXIに条件(家賃・エリア)が近い物件一覧
| 写真 | 家賃 管理費等 | 敷金 礼金 | 間取り 専有面積 | 築年数 | 最寄り駅 所在地 | キープ | 詳細 |
|---|---|---|---|---|---|---|---|
マンション CASSIA江坂(1LDK/6階) | |||||||
| 14.3万円 1万円 | なし 30.6万円 | 1LDK 60.21m2 | 築24年 | 北大阪急行南北線 江坂駅 徒歩9分 阪急電鉄千里線 豊津駅(大阪) 徒歩11分 阪急電鉄千里線 関大前駅 徒歩17分 大阪府吹田市垂水町3丁目8-15 | 詳細を見る | ||
マンション 和の杜 江坂(1LDK/2階) | |||||||
![]() | 15.8万円 1.5万円 | 15万円 なし | 1LDK 50.33m2 | 新築 | 大阪市御堂筋線 江坂駅 徒歩9分 阪急電鉄宝塚線 服部天神駅 徒歩27分 阪急電鉄宝塚線 庄内駅(大阪) 徒歩30分 大阪府吹田市豊津町798-1 | 詳細を見る | |
マンション カルム千里山土井(3LDK/1階) | |||||||
| 13.6万円 1.2万円 | なし 40万円 | 3LDK 75.07m2 | 築29年 | 阪急電鉄千里線 関大前駅 徒歩6分 阪急電鉄千里線 千里山駅 徒歩10分 北大阪急行南北線 緑地公園駅 徒歩13分 大阪府吹田市千里山西1丁目19-2 | 詳細を見る | ||
マンション ことぶき(2LDK/3階) | |||||||
![]() | 16.3万円 1.1万円 | 5万円 なし | 2LDK 63.18m2 | 新築 | 阪急電鉄千里線 吹田駅(阪急) 徒歩8分 東海道本線 吹田駅(JR) 徒歩15分 おおさか東線 南吹田駅 徒歩15分 大阪府吹田市寿町2丁目2864-18 | 詳細を見る | |
マンション プレミアス鳳2(2LDK/1階) | |||||||
![]() | 12.5万円 1.1万円 | 2万円 25万円 | 2LDK 60.54m2 | 築1年 | 阪和線 鳳駅 徒歩14分 南海電鉄南海本線 浜寺公園駅 徒歩17分 阪和線 東羽衣駅 徒歩22分 大阪府堺市西区浜寺元町6丁 | 詳細を見る | |
マンション WORVE吹田江坂(2K/9階) | |||||||
| 12.2万円 1.2万円 | なし なし | 2K 31.28m2 | 築1年 | 北大阪急行南北線 江坂駅 徒歩9分 阪急電鉄千里線 豊津駅(大阪) 徒歩19分 おおさか東線 南吹田駅 徒歩20分 大阪府吹田市広芝町17-18 | 詳細を見る | ||
アパート M&M GRACIA(2LDK/1階) | |||||||
| 14.3万円 7,000円 | なし 32万円 | 2LDK 56.71m2 | 築9年 | 大阪市御堂筋線 江坂駅 徒歩10分 阪急電鉄千里線 豊津駅(大阪) 徒歩11分 東海道本線 吹田駅(JR) 徒歩32分 大阪府吹田市垂水町1丁目53-16 | 詳細を見る | ||
マンション ハムステッドアレー(2LDK/2階) | |||||||
| 17.9万円 1.2万円 | 10万円 なし | 2LDK 77.14m2 | 新築 | 大阪モノレール本線 山田駅(大阪) 徒歩10分 大阪モノレール彩都 万博記念公園駅(大阪) 徒歩13分 大阪モノレール彩都 阪大病院前駅 徒歩32分 大阪府吹田市山田東4丁目2936-2939-1 | 詳細を見る | ||


