賃貸マンション
D-STYLE蓮根の賃貸物件情報(1K/2階)
| 家賃 | 管理費等 | 敷金 | 礼金 | 間取り | 専有面積 |
|---|---|---|---|---|---|
| 9.2万円 | 1万円 | なし | 9.2万円 | 1K | 19.38m2 |
入居決定でお祝い金最大100,000円
- 保証金
- -
- 償却・敷引
- -
- 築年数
- 築1年
- 所在階
- 2階
- 向き
- 北
Point
ペット可新築マンションです。ペット(小型犬又は猫1匹まで)飼育時 敷金1ヶ月(償却)インターネット無料オートロック 独立洗面台 浴室乾燥機 浄水器 TVモニターホン 置き配対応
提供:ダーウィンアセットパートナーズ(株)(SUUMO経由)

詳細情報 D-STYLE蓮根
物件紹介
D-STYLE蓮根は都営三田線蓮根駅から徒歩5分にあり、駅近で通勤通学に便利なマンションです。
このお部屋は2階以上に位置しているので、通行人や周囲の住人からの視線が気になりにくく、防犯面でも安心。建物のエントランスはオートロックがついており、インターホンにはTVモニタもついているため、相手の顔を確認してから来客対応することができます。
フローリングのお部屋なのでお掃除もラクラク。バス・トイレ別の仕様で、のんびりお風呂タイムも楽しめます。
通信設備面では、インターネットが無料で使えるので、月々の出費を抑えられるのも魅力です(別途工事等が必要な場合あり)。
共用部には宅配ボックスが設定されているので、不在の時にも荷物を受け取ることができます。また、ペット飼育の相談ができますので、あなたの大切な家族の一員も快適に暮らせるか、ぜひ確認してみてください。
このお部屋は2階以上に位置しているので、通行人や周囲の住人からの視線が気になりにくく、防犯面でも安心。建物のエントランスはオートロックがついており、インターホンにはTVモニタもついているため、相手の顔を確認してから来客対応することができます。
フローリングのお部屋なのでお掃除もラクラク。バス・トイレ別の仕様で、のんびりお風呂タイムも楽しめます。
通信設備面では、インターネットが無料で使えるので、月々の出費を抑えられるのも魅力です(別途工事等が必要な場合あり)。
共用部には宅配ボックスが設定されているので、不在の時にも荷物を受け取ることができます。また、ペット飼育の相談ができますので、あなたの大切な家族の一員も快適に暮らせるか、ぜひ確認してみてください。
お金・契約の情報
※「-」と表示されているものは、実際は料金が発生するものもございます。詳細はお問い合わせください。
| 家賃 | 9.2万円 | 管理費・共益費 | 1万円 |
|---|---|---|---|
| 敷金 | なし | 礼金 | 9.2万円 |
| 入居決定でお祝い金最大100,000円 | |||
| 保証金 | - | 償却・敷引 | - |
| 住宅保険料 | - | 更新料 | - |
| 保証会社利用 | 必須 | 保証会社名 | - |
| 保証会社費用 | - | 保証会社備考 | 保証会社利用必 初回保証料:総賃料30% 月額:1700円(安心サポート24・口座振替手数料含) 永住権の無い外国籍の方は下記保証会社となります。 保証会社:ニッポンインシュア 初回保証料:総賃料30% 月額:2400円(火災保険料・安心サポート24・口座振替手数料含) |
| 契約形態 | - | 契約期間 | - |
| 入居・引渡期間 | 即時 | 現況 | - |
| 入居可能条件 | ペット相談 | ||
| 契約備考 | ◎当社管理物件 仲介手数料無料初期費用クレジット決済可能退去時クリーニング費用38500円(税込)※退去時払い 退去時エアコンクリーニング費用 16500円(税込) ※退去時払い短期解約違約金有(1年未満の解約 賃料の1ヶ月分)※永住権が無い方は 敷金1ヶ月 更新料 新賃料1.00ヶ月分 1K 単身者限定/子供不可/ペット相談/事務所利用不可/ルームシェア不可 普通借家2年 損保【1.8万円2年】 バストイレ別、エアコン、クロゼット、フローリング、TVインターホン、オートロック、室内洗濯置、シューズボックス、温水洗浄便座、脱衣所、洗面所独立、宅配ボックス、即入居可、敷金不要、防犯カメラ、ペット相談、IHクッキングヒーター、照明付、保証人不要、仲介手数料不要、ディンプルキー、ネット使用料不要、浄水器、ダブルロックキー、24時間換気システム、未入居、2駅利用可、3駅以上利用可、駅徒歩5分以内、駅徒歩10分以内、敷地内ごみ置き場、当社管理物件、キッチン未使用、都市ガス、高速ネット対応、礼金1ヶ月、初期費用カード決済可 敷金積み増し【ペット飼育の場合敷金1ヶ月(総額)】 | ||
部屋の情報
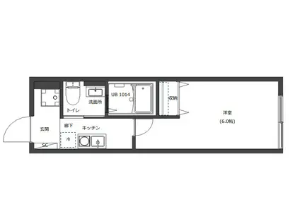
| 間取り | 1K | 専有面積 | 19.38m2 |
|---|---|---|---|
| 所在階 / 向き | 2階 / 北 | バルコニー面積 | - |
| 水道 / ガス | - | ||
| 設備 | バス・トイレ別、2階以上、オートロック、テレビドアホン、宅配ボックス、インターネット対応、エアコン、温水洗浄便座、フローリング、洗髪洗面化粧台、コンロ:IH、インターネット使用料無料、洗濯機:室内 | ||
| 当社物件ID | 160571672 | ||
建物の情報
| 建物名 | D-STYLE蓮根 | ||
|---|---|---|---|
| 所在地 | 東京都板橋区蓮根 | ||
| 交通 | 都営三田線 蓮根駅 徒歩5分 都営三田線 西台駅 徒歩13分 都営三田線 志村三丁目駅 徒歩14分 | ||
| 階数 | 4階建 | 総戸数 | 13戸 |
| 築年月 | 2026年03月 / 築1年 | エレベーター | - |
| 駐車場 | なし | バイク置き場 | - |
| 駐輪場 | - | 管理人/管理会社 | - |
| 建物種別 | マンション | 建物構造 | 鉄骨造 |
この部屋の取扱い不動産会社
| 会社名 | ダーウィンアセットパートナーズ(株)(SUUMO経由) | ||
|---|---|---|---|
| 所在地 | 東京都港区南青山1-1-1 新青山ビル東館3階 | 交通 | - |
| 営業時間 | 9:30~18:30 | 定休日 | 土・日・祝 |
| 免許番号 | 東京都知事91643 | 取引態様 | 貸主 |
| 不動産会社管理番号 | 100493969828 | 当社管理番号 | 89 |
| 所属団体 | (公社)東京都宅地建物取引業協会会員 | ||
| 公正取引協議会 | (公社)首都圏不動産公正取引協議会加盟 | ||
| 取扱い物件情報 | 物件詳細へ | ||
※各種情報と現状に差異がある場合は、現状優先となります。問い合わせをすることで、より詳しい条件、情報を確認する事ができます。
提供:ダーウィンアセットパートナーズ(株)(SUUMO経由)
この物件が気になったら掲載期限まであと10日
D-STYLE蓮根に条件(家賃・エリア)が近い物件一覧
| 写真 | 家賃 管理費等 | 敷金 礼金 | 間取り 専有面積 | 築年数 | 最寄り駅 所在地 | キープ | 詳細 |
|---|---|---|---|---|---|---|---|
アパート エクセルハイツ(2DK/1階) | |||||||
![]() | 7.3万円 なし | 7.3万円 7.3万円 | 2DK 36m2 | 築38年 | 西武池袋線 石神井公園駅 徒歩9分 西武池袋線 練馬高野台駅 徒歩19分 西武池袋線 大泉学園駅 徒歩25分 東京都練馬区石神井町 | 詳細を見る | |
マンション ビバリーホームズ石神井台(1K/4階) | |||||||
![]() | 8.5万円 1万円 | 8.5万円 8.5万円 | 1K 26.17m2 | 築8年 | 西武新宿線 武蔵関駅 徒歩10分 西武新宿線 上石神井駅 徒歩20分 東京都練馬区石神井台 | 詳細を見る | |
マンション ブランカヒルズ(1K/5階) | |||||||
![]() | 10.3万円 8,500円 | なし 10.3万円 | 1K 31.74m2 | 築19年 | 都営三田線 板橋区役所前駅 徒歩3分 東武東上線 下板橋駅 徒歩9分 JR埼京線 板橋駅 徒歩10分 東京都板橋区板橋 | 詳細を見る | |
アパート LEDミラージュ(ワンルーム/2階) | |||||||
![]() | 6.6万円 4,000円 | なし 6.6万円 | ワンルーム 11.04m2 | 築5年 | 西武池袋・豊島線 東長崎駅 徒歩10分 東京都豊島区長崎6丁目 | 詳細を見る | |
アパート ラクレール王子神谷(1K/2階) | |||||||
![]() | 7.2万円 なし | 7.2万円 7.2万円 | 1K 24.53m2 | 築13年 | 東京メトロ南北線 王子神谷駅 徒歩4分 JR京浜東北線 東十条駅 徒歩15分 JR埼京線 十条駅(東京) 徒歩24分 東京都北区豊島 | 詳細を見る | |
アパート クアルト板橋(ワンルーム/2階) | |||||||
![]() | 7.3万円 3,000円 | なし なし | ワンルーム 17.91m2 | 築12年 | 東京都三田線 板橋区役所前駅 徒歩5分 東京都板橋区板橋2丁目 | 詳細を見る | |
マンション ARCOBALENO HASUNE I(1DK/1階) | |||||||
![]() | 9.65万円 1.5万円 | なし 4.83万円 | 1DK 25.95m2 | 築1年 | 都営三田線 蓮根駅 徒歩10分 都営三田線 志村三丁目駅 徒歩16分 JR埼京線 浮間舟渡駅 徒歩18分 東京都板橋区東坂下 | 詳細を見る | |








