賃貸マンション
ランドステージ白山の賃貸物件情報(1K/1階)
| 家賃 | 管理費等 | 敷金 | 礼金 | 間取り | 専有面積 |
|---|---|---|---|---|---|
| 10.5万円 | 1.5万円 | なし | 10.5万円 | 1K | 26.83m2 |
入居決定でお祝い金最大100,000円
- 保証金
- -
- 償却・敷引
- -
- 築年数
- 築20年
- 所在階
- 1階
- 向き
- 西
Point
業界歴3年以上のベテランスタッフが多く在籍しており「経験」を生かした接客が自慢です!他社では取扱いのない「弊社専任物件」も多数有!お客様のご条件をしっかりとヒアリングしベストな物件をご紹介いたします!
提供:(株)ハウスマ(SUUMO経由)

詳細情報 ランドステージ白山
物件紹介
ランドステージ白山は都営三田線春日駅から徒歩7分にあり、駅近で通勤通学に便利なマンションです。
建物のエントランスはオートロックがついており、インターホンにはTVモニタもついているため、相手の顔を確認してから来客対応することができます。
人気の角部屋で周囲の居住者の生活音も気になりにくく、また、フローリングのお部屋なのでお掃除もラクラク。キッチンはシステムキッチン仕様になっていますので、お料理好きの方にもぴったり。バス・トイレは別なので、のんびりお風呂タイムも楽しめるでしょう。また、雨の日でも浴室乾燥機を使えば、お洗濯も問題ありません。
通信設備面ではBSアンテナ・CSアンテナがあり、CATVにも対応しているので、おうち時間も充実するでしょう(別途工事、契約料が必要な場合あり)。
建物にはエレベーターがついているので、重い荷物があっても安心。共用部には宅配ボックスが設定されているので、不在の時にも荷物を受け取ることができます。また、ペット飼育の相談ができますので、あなたの大切な家族の一員も快適に暮らせるか、ぜひ確認してみてください。
建物のエントランスはオートロックがついており、インターホンにはTVモニタもついているため、相手の顔を確認してから来客対応することができます。
人気の角部屋で周囲の居住者の生活音も気になりにくく、また、フローリングのお部屋なのでお掃除もラクラク。キッチンはシステムキッチン仕様になっていますので、お料理好きの方にもぴったり。バス・トイレは別なので、のんびりお風呂タイムも楽しめるでしょう。また、雨の日でも浴室乾燥機を使えば、お洗濯も問題ありません。
通信設備面ではBSアンテナ・CSアンテナがあり、CATVにも対応しているので、おうち時間も充実するでしょう(別途工事、契約料が必要な場合あり)。
建物にはエレベーターがついているので、重い荷物があっても安心。共用部には宅配ボックスが設定されているので、不在の時にも荷物を受け取ることができます。また、ペット飼育の相談ができますので、あなたの大切な家族の一員も快適に暮らせるか、ぜひ確認してみてください。
お金・契約の情報
※「-」と表示されているものは、実際は料金が発生するものもございます。詳細はお問い合わせください。
| 家賃 | 10.5万円 | 管理費・共益費 | 1.5万円 |
|---|---|---|---|
| 敷金 | なし | 礼金 | 10.5万円 |
| 入居決定でお祝い金最大100,000円 | |||
| 保証金 | - | 償却・敷引 | - |
| 住宅保険料 | - | 更新料 | - |
| 保証会社利用 | 必須 | 保証会社名 | - |
| 保証会社費用 | - | 保証会社備考 | 保証会社利用必 家賃総額より50%~ |
| 契約形態 | - | 契約期間 | - |
| 入居・引渡期間 | 即時 | 現況 | - |
| 入居可能条件 | ペット相談 | ||
| 契約備考 | 東京メトロ南北線本駒込駅徒歩12分/「初めての一人暮らし」や「初めての同棲」「初めてのルームシェア」など「初めて賃貸物件」をお探しのお客様は是非、株式会社ハウスマにお任せ下さい。賃貸物件や賃貸借契約のことを一から丁寧にご説明させていただきます。また、「オンライン内見」や「オンライン契約」にも対応しておりますので遠方からのお引越しや忙しくて見学出来ないお客様もお気軽にお申し付けください!スタッフ全員でお探しさせていただきます 合計4.62万円(内訳:AMLクラブサポート費用(契約時請求):16500円/鍵交換代:29700円) 更新料新賃料(ヶ月):1.50ヶ月 1K 単身者可/ペット相談 普通借家2年 損保【1.6万円2年】 バストイレ別、バルコニー、エアコン、ガスコンロ対応、クロゼット、フローリング、シャワー付洗面台、TVインターホン、浴室乾燥機、オートロック、室内洗濯置、陽当り良好、シューズボックス、システムキッチン、角住戸、脱衣所、エレベーター、洗面所独立、2口コンロ、駐輪場、宅配ボックス、CATV、即入居可、閑静な住宅地、2面採光、BS・CS、敷金不要、防犯カメラ、ペット相談、全居室収納、分譲賃貸、全居室洋室、保証人不要、単身者相談、バイク置場、全居室フローリング、専用庭、ディンプルキー、テラス、眺望良好、エアコン全室、ダブルロックキー、保証金不要、24時間換気システム、全室2面採光、駅徒歩10分以内、24時間ゴミ出し可、敷地内ごみ置き場、都市ガス、玄関収納、礼金1ヶ月、IT重説対応物件、初期費用カード決済可、通風良好 敷金積み増し【ペット飼育の場合敷金1ヶ月(総額)】 | ||
部屋の情報
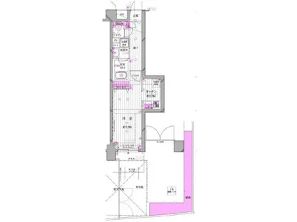
| 間取り | 1K | 専有面積 | 26.83m2 |
|---|---|---|---|
| 所在階 / 向き | 1階 / 西 | バルコニー面積 | - |
| 水道 / ガス | - | ||
| 設備 | バス・トイレ別、オートロック、テレビドアホン、宅配ボックス、浴室乾燥機、システムキッチン、エアコン、エレベーター、角部屋、バルコニー、フローリング、洗髪洗面化粧台、2口コンロ、コンロ:ガス、CATV、CSアンテナ、BSアンテナ、専用庭、洗濯機:室内 | ||
| 当社物件ID | 30907274 | ||
建物の情報
| 建物名 | ランドステージ白山 | ||
|---|---|---|---|
| 所在地 | 東京都文京区白山 | ||
| 交通 | 都営三田線 春日駅(東京) 徒歩7分 東京メトロ南北線 東大前駅 徒歩9分 都営三田線 白山駅(東京) 徒歩9分 | ||
| 階数 | 8階建 | 総戸数 | - |
| 築年月 | 2006年06月 / 築20年 | エレベーター | あり |
| 駐車場 | 近隣 150m34000円 | バイク置き場 | あり |
| 駐輪場 | あり | 管理人/管理会社 | - |
| 周辺環境 | その他 まいばすけっと白山1丁目店(スーパー)まで180m その他 セブンイレブン小石川白山通り店(コンビニ)まで120m その他 スギ薬局小石川1丁目店(ドラッグストア)まで120m その他 キッチンオリジン春日店(飲食店)まで110m その他 文京白山下郵便局(郵便局)まで170m その他 駒込警察署(警察署・交番)まで2170m | ||
| 建物種別 | マンション | 建物構造 | RC(鉄筋コンクリート) |
この部屋の取扱い不動産会社
| 会社名 | (株)ハウスマ(SUUMO経由) | ||
|---|---|---|---|
| 所在地 | 東京都豊島区駒込1-42-4 | 交通 | - |
| 営業時間 | 9:30~18:00 | 定休日 | 毎週水曜日及び第一火曜日 |
| 免許番号 | 東京都知事97207 | 取引態様 | 仲介 |
| 不動産会社管理番号 | 100485137182 | 当社管理番号 | 89 |
| 所属団体 | (公社)東京都宅地建物取引業協会会員 | ||
| 公正取引協議会 | (公社)首都圏不動産公正取引協議会加盟 | ||
| 取扱い物件情報 | 物件詳細へ | ||
※各種情報と現状に差異がある場合は、現状優先となります。問い合わせをすることで、より詳しい条件、情報を確認する事ができます。
提供:(株)ハウスマ(SUUMO経由)
この物件が気になったら掲載期限まであと10日
ランドステージ白山に条件(家賃・エリア)が近い物件一覧
| 写真 | 家賃 管理費等 | 敷金 礼金 | 間取り 専有面積 | 築年数 | 最寄り駅 所在地 | キープ | 詳細 |
|---|---|---|---|---|---|---|---|
マンション クレイシア秋葉原ラグゼスウィート(1DK/9階) | |||||||
![]() | 15.9万円 1.5万円 | 15.9万円 15.9万円 | 1DK 30.48m2 | 築7年 | 総武本線 馬喰町駅 徒歩5分 東京都新宿線 岩本町駅 徒歩6分 山手線 秋葉原駅 徒歩8分 東京都千代田区東神田2丁目 | 詳細を見る | |
マンション 東京地下鉄丸ノ内線 茗荷谷駅 徒歩2分 築19年(1K/2階) | |||||||
![]() | 8.7万円 6,000円 | 8.7万円 8.7万円 | 1K 20.54m2 | 築19年 | 東京地下鉄丸ノ内線 茗荷谷駅 徒歩2分 東京地下鉄有楽町線 護国寺駅 徒歩17分 東京地下鉄有楽町線 江戸川橋駅 徒歩18分 東京都文京区小日向4丁目 | 詳細を見る | |
マンション パインドール浅草(ワンルーム/3階) | |||||||
![]() | 8万円 3,000円 | 8万円 8万円 | ワンルーム 16.75m2 | 築37年 | つくばエクスプレス 浅草駅(つくばEXP) 徒歩4分 東京地下鉄銀座線 浅草駅(東武・都営・メトロ) 徒歩4分 東京地下鉄銀座線 田原町駅(東京) 徒歩7分 東京都台東区浅草1丁目 | 詳細を見る | |
マンション GRAN PASEO 神田駅前(1K/7階) | |||||||
![]() | 13.4万円 1.5万円 | 13.4万円 13.4万円 | 1K 20.94m2 | 築7年 | 東京都新宿線 岩本町駅 徒歩3分 京浜東北・根岸線 神田駅(東京) 徒歩5分 山手線 神田駅(東京) 徒歩5分 東京都千代田区神田須田町2丁目 | 詳細を見る | |
マンション プレミアムキューブG上野(1K/1階) | |||||||
![]() | 11.4万円 1.5万円 | 11.4万円 11.4万円 | 1K 25.82m2 | 築11年 | 東京地下鉄銀座線 稲荷町駅(東京) 徒歩3分 東京都大江戸線 新御徒町駅 徒歩4分 山手線 上野駅 徒歩10分 東京都台東区元浅草1丁目 | 詳細を見る | |
マンション クラリティア文京湯島(1DK/4階) | |||||||
![]() | 16.3万円 1.5万円 | 16.3万円 なし | 1DK 25.13m2 | 築1年 | 東京地下鉄千代田線 湯島駅 徒歩5分 東京地下鉄銀座線 末広町駅(東京) 徒歩7分 中央本線 御茶ノ水駅 徒歩9分 東京都文京区湯島3丁目 | 詳細を見る | |
マンション バウスフラッツ蔵前(1DK/9階) | |||||||
![]() | 14万円 1万円 | 14万円 なし | 1DK 25.08m2 | 築1年 | 東京都浅草線 蔵前駅 徒歩2分 東京都大江戸線 蔵前駅 徒歩7分 東京都台東区蔵前4丁目 | 詳細を見る | |
マンション 小宮ビル(1K/9階) | |||||||
![]() | 10.5万円 7,000円 | なし なし | 1K 26.12m2 | 築22年 | 山手線 西日暮里駅 徒歩3分 山手線 日暮里駅 徒歩11分 常磐線 三河島駅 徒歩15分 東京都荒川区西日暮里5丁目 | 詳細を見る | |









