賃貸マンション
コンフォリア東大井の賃貸物件情報(2LDK/13階)
| 家賃 | 管理費等 | 敷金 | 礼金 | 間取り | 専有面積 |
|---|---|---|---|---|---|
| 26.8万円 | 1.5万円 | 26.8万円 | なし | 2LDK | 51.12m2 |
入居決定でお祝い金最大100,000円
- 保証金
- -
- 償却・敷引
- -
- 築年数
- 築2年
- 所在階
- 13階
- 向き
- 南東
Point
ディンプルキーなので一般的なシリンダーキーに比べて防犯性が高く、ピッキング対策に効果的です。宅配BOX付き。不在時の受け取りがとても便利で玄関を開けて対応する必要が無いので防犯にも役立ちます。
提供:恵比寿不動産 (株)ライフアドバンス(SUUMO経由)

詳細情報 コンフォリア東大井
物件紹介
コンフォリア東大井は京急本線立会川駅から徒歩6分にあり、駅近で通勤通学に便利なマンションです。
このお部屋は2階以上に位置しているので、通行人や周囲の住人からの視線が気になりにくく、防犯面でも安心。建物のエントランスはオートロックがついており、インターホンにはTVモニタもついているため、相手の顔を確認してから来客対応することができます。
人気の南向き・フローリングのお部屋。室内にはウォークインクローゼットがありますので、たくさんの荷物も効率的に収納ができます。キッチンはシステムキッチン仕様になっていますので、お料理好きの方にもぴったり。また、バス・トイレは別で、のんびりお風呂タイムも楽しめるでしょう。
通信設備面では、インターネットが無料で使えるので、月々の出費を抑えられるのも魅力です。また、BSアンテナ・CSアンテナもありますので、おうち時間も充実するでしょう(別途工事、BS・CSの契約料等が必要な場合あり)。
床暖房があり、冬も足元から暖かく快適に過ごすことができます。建物にはエレベーターがついているので、重い荷物があっても安心。共用部には宅配ボックスが設定されているので、不在の時にも荷物を受け取ることができます。また、ペット飼育の相談ができますので、あなたの大切な家族の一員も快適に暮らせるか、ぜひ確認してみてください。
このお部屋は2階以上に位置しているので、通行人や周囲の住人からの視線が気になりにくく、防犯面でも安心。建物のエントランスはオートロックがついており、インターホンにはTVモニタもついているため、相手の顔を確認してから来客対応することができます。
人気の南向き・フローリングのお部屋。室内にはウォークインクローゼットがありますので、たくさんの荷物も効率的に収納ができます。キッチンはシステムキッチン仕様になっていますので、お料理好きの方にもぴったり。また、バス・トイレは別で、のんびりお風呂タイムも楽しめるでしょう。
通信設備面では、インターネットが無料で使えるので、月々の出費を抑えられるのも魅力です。また、BSアンテナ・CSアンテナもありますので、おうち時間も充実するでしょう(別途工事、BS・CSの契約料等が必要な場合あり)。
床暖房があり、冬も足元から暖かく快適に過ごすことができます。建物にはエレベーターがついているので、重い荷物があっても安心。共用部には宅配ボックスが設定されているので、不在の時にも荷物を受け取ることができます。また、ペット飼育の相談ができますので、あなたの大切な家族の一員も快適に暮らせるか、ぜひ確認してみてください。
お金・契約の情報
※「-」と表示されているものは、実際は料金が発生するものもございます。詳細はお問い合わせください。
| 家賃 | 26.8万円 | 管理費・共益費 | 1.5万円 |
|---|---|---|---|
| 敷金 | 26.8万円 | 礼金 | なし |
| 入居決定でお祝い金最大100,000円 | |||
| 保証金 | - | 償却・敷引 | - |
| 住宅保険料 | - | 更新料 | - |
| 保証会社利用 | 必須 | 保証会社名 | - |
| 保証会社費用 | - | 保証会社備考 | 保証会社利用必 (RP) 保証料:賃料等の50%(最低2万)、月額保証料:賃料等の1%(更新料無) |
| 契約形態 | - | 契約期間 | - |
| 入居・引渡期間 | 即時 | 現況 | - |
| 入居可能条件 | ペット相談 | ||
| 契約備考 | 京浜急行電鉄本線青物横丁駅徒歩13分 合計8.58万円(内訳:鍵交換代:33000円/室内清掃費用:52800円) 更新料新賃料(ヶ月):1.00ヶ月 2LDK ペット相談 普通借家2年 損保【1.66万円2年】 バストイレ別、エアコン、クロゼット、フローリング、TVインターホン、オートロック、室内洗濯置、シューズボックス、システムキッチン、追焚機能浴室、温水洗浄便座、エレベーター、洗面所独立、宅配ボックス、即入居可、礼金不要、BS・CS、防犯カメラ、ペット相談、照明付、グリル付、ウォークインクロゼット、敷金1ヶ月、エアコン2台、ディンプルキー、ネット専用回線、ネット使用料不要、床暖房、食器洗乾燥機、ダブルロックキー、保証金不要、築2年以内、人感照明センサー、2駅利用可、3沿線以上利用可、駅徒歩10分以内、高層階、24時間ゴミ出し可、東南向き、室内物干機、オートライト、初期費用カード決済可 | ||
部屋の情報
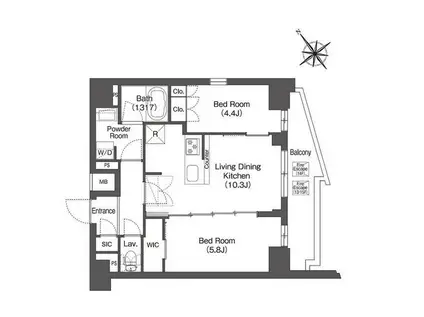
| 間取り | 2LDK | 専有面積 | 51.12m2 |
|---|---|---|---|
| 所在階 / 向き | 13階 / 南東 | バルコニー面積 | - |
| 水道 / ガス | - | ||
| 設備 | バス・トイレ別、2階以上、オートロック、テレビドアホン、宅配ボックス、ウォークインクローゼット、追い焚き、インターネット対応、システムキッチン、エアコン、エレベーター、温水洗浄便座、南向き、フローリング、洗髪洗面化粧台、床暖房、CSアンテナ、BSアンテナ、インターネット使用料無料、洗濯機:室内 | ||
| 当社物件ID | 160003848 | ||
建物の情報
| 建物名 | コンフォリア東大井 | ||
|---|---|---|---|
| 所在地 | 東京都品川区東大井 | ||
| 交通 | 京急本線 立会川駅 徒歩6分 京急本線 鮫洲駅 徒歩7分 JR京浜東北線 大井町駅 徒歩12分 | ||
| 階数 | 15階建 | 総戸数 | - |
| 築年月 | 2024年03月 / 築2年 | エレベーター | あり |
| 駐車場 | なし | バイク置き場 | - |
| 駐輪場 | - | 管理人/管理会社 | - |
| 周辺環境 | その他 阪急大井町ガーデン(ショッピングセンター)まで980m その他 まいばすけっと立会川駅北店(スーパー)まで250m その他 セブンイレブン品川東大井2丁目店(コンビニ)まで240m その他 スギ薬局南大井店(ドラッグストア)まで640m その他 ヤマダデンキLABI LIFE SELECT品川大井町(ホームセンター)まで760m その他 品川シーサイドフォレスト(ショッピングセンター)まで1530m | ||
| 建物種別 | マンション | 建物構造 | RC(鉄筋コンクリート) |
この部屋の取扱い不動産会社
| 会社名 | 恵比寿不動産 都心チーム(株)ライフアドバンス(SUUMO経由) | ||
|---|---|---|---|
| 所在地 | 東京都渋谷区東3-25-11 TOKYUREIT恵比寿ビル4階 | 交通 | - |
| 営業時間 | 10時~19時 | 定休日 | 水曜日 |
| 免許番号 | 東京都知事97301 | 取引態様 | 仲介 |
| 不動産会社管理番号 | 100476480281 | 当社管理番号 | 89 |
| 所属団体 | (公社)全日本不動産協会東京都本部会員 | ||
| 公正取引協議会 | (公社)首都圏不動産公正取引協議会加盟 | ||
| 取扱い物件情報 | 物件詳細へ | ||
※各種情報と現状に差異がある場合は、現状優先となります。問い合わせをすることで、より詳しい条件、情報を確認する事ができます。
提供:恵比寿不動産 都心チーム(株)ライフアドバンス(SUUMO経由)
この物件が気になったら掲載期限まであと10日
コンフォリア東大井に条件(家賃・エリア)が近い物件一覧
| 写真 | 家賃 管理費等 | 敷金 礼金 | 間取り 専有面積 | 築年数 | 最寄り駅 所在地 | キープ | 詳細 |
|---|---|---|---|---|---|---|---|
マンション RJRプレシア大森北(2SLDK/2階) | |||||||
![]() | 27.4万円 1.5万円 | 27.4万円 なし | 2SLDK 59.47m2 | 築2年 | 京急本線 平和島駅 徒歩12分 JR京浜東北線 大森駅(東京) 徒歩14分 都営浅草線 西馬込駅 徒歩29分 東京都大田区大森北 | 詳細を見る | |
マンション ジニア不動前(1DK/1階) | |||||||
![]() | 16.7万円 1.5万円 | 16.7万円 16.7万円 | 1DK 35.64m2 | 築5年 | 東急目黒線 不動前駅 徒歩7分 東急池上線 戸越銀座駅 徒歩11分 JR山手線 五反田駅 徒歩18分 東京都品川区西五反田 | 詳細を見る | |
マンション ラティエラ大鳥居(1LDK/8階) | |||||||
![]() | 18.8万円 1.2万円 | 18.8万円 18.8万円 | 1LDK 41.07m2 | 築4年 | 京浜急行電鉄空港線 大鳥居駅 徒歩6分 東京都大田区萩中3丁目 | 詳細を見る | |
一戸建て 京浜東北・根岸線 蒲田駅 徒歩11分 築4年(2SLDK) | |||||||
![]() | 32.3万円 なし | 32.3万円 32.3万円 | 2SLDK 94.36m2 | 築4年 | 京浜東北・根岸線 蒲田駅 徒歩11分 東京都大田区東矢口3丁目 | 詳細を見る | |
マンション コンフォリア・リヴ大森西(2LDK/4階) | |||||||
![]() | 19.5万円 1.8万円 | 19.5万円 なし | 2LDK 42.19m2 | 築1年 | 京浜急行電鉄本線 大森町駅 徒歩10分 東京都大田区大森西4丁目 | 詳細を見る | |
アパート 御殿山テラスⅡ(2LDK/1階) | |||||||
![]() | 23.9万円 3,000円 | 23.9万円 なし | 2LDK 57.6m2 | 築2年 | 山手線 大崎駅 徒歩8分 京浜急行電鉄本線 北品川駅 徒歩14分 東京都品川区北品川5丁目 | 詳細を見る | |
マンション シャルマンドミール(2LDK/2階) | |||||||
![]() | 17.6万円 3,000円 | 17.6万円 35.2万円 | 2LDK 57.22m2 | 築11年 | 京浜急行電鉄本線 大森町駅 徒歩14分 京浜急行電鉄本線 梅屋敷駅(東京) 徒歩15分 東京都大田区大森南1丁目 | 詳細を見る | |
マンション AUGUSTA RESIDENCE大森(1SLDK/8階) | |||||||
![]() | 21.7万円 1万円 | なし なし | 1SLDK 40.88m2 | 築1年 | 京急本線 大森海岸駅 徒歩5分 JR京浜東北線 大森駅(東京) 徒歩11分 東京モノレール 大井競馬場前駅 徒歩21分 東京都品川区南大井 | 詳細を見る | |





/105x80-f1-q70-wp1)


