賃貸マンション
TKアンバーコート津久野の賃貸物件情報(1K/2階)
| 家賃 | 管理費等 | 敷金 | 礼金 | 間取り | 専有面積 |
|---|---|---|---|---|---|
| 5.7万円 | 8,000円 | なし | 10万円 | 1K | 29.09m2 |
入居決定でお祝い金最大100,000円
- 保証金
- -
- 償却・敷引
- -
- 築年数
- 築7年
- 所在階
- 2階
- 向き
- 南
Point
【オートロック】【システムキッチン】【浴室乾燥機】など人気の設備が充実♪快適な新生活が待っています♪お問い合わせは電話番号を記載いただきますとスムーズにお問合せができます♪
提供:クラスモなかもず店(株)forest庵(SUUMO経由)

詳細情報 TKアンバーコート津久野
物件紹介
TKアンバーコート津久野はJR阪和線津久野駅から徒歩7分にあり、駅近で通勤通学に便利なマンションです。
このお部屋は2階以上に位置しているので、通行人や周囲の住人からの視線が気になりにくく、防犯面でも安心。建物のエントランスはオートロックがついており、インターホンにはTVモニタもついているため、相手の顔を確認してから来客対応することができます。
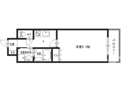
人気の南向きのお部屋。また、フローリングなのでお掃除もラクラク。キッチンはシステムキッチン仕様になっていますので、お料理好きの方にもぴったり。バス・トイレは別なので、のんびりお風呂タイムも楽しめるでしょう。また、雨の日でも浴室乾燥機を使えば、お洗濯も問題ありません。
通信設備面では、インターネットが無料で使えるので、月々の出費を抑えられるのも魅力です。また、CATVにも対応しているので、おうち時間も充実するでしょう(別途工事、CATVの契約料等が必要な場合あり)。
建物にはエレベーターがついているので、重い荷物があっても安心。共用部には宅配ボックスが設定されているので、不在の時にも荷物を受け取ることができます。
このお部屋は2階以上に位置しているので、通行人や周囲の住人からの視線が気になりにくく、防犯面でも安心。建物のエントランスはオートロックがついており、インターホンにはTVモニタもついているため、相手の顔を確認してから来客対応することができます。
人気の南向きのお部屋。また、フローリングなのでお掃除もラクラク。キッチンはシステムキッチン仕様になっていますので、お料理好きの方にもぴったり。バス・トイレは別なので、のんびりお風呂タイムも楽しめるでしょう。また、雨の日でも浴室乾燥機を使えば、お洗濯も問題ありません。
通信設備面では、インターネットが無料で使えるので、月々の出費を抑えられるのも魅力です。また、CATVにも対応しているので、おうち時間も充実するでしょう(別途工事、CATVの契約料等が必要な場合あり)。
建物にはエレベーターがついているので、重い荷物があっても安心。共用部には宅配ボックスが設定されているので、不在の時にも荷物を受け取ることができます。
お金・契約の情報
※「-」と表示されているものは、実際は料金が発生するものもございます。詳細はお問い合わせください。
| 家賃 | 5.7万円 | 管理費・共益費 | 8,000円 |
|---|---|---|---|
| 敷金 | なし | 礼金 | 10万円 |
| 入居決定でお祝い金最大100,000円 | |||
| 保証金 | - | 償却・敷引 | - |
| 住宅保険料 | - | 更新料 | - |
| 保証会社利用 | 必須 | 保証会社名 | - |
| 保証会社費用 | - | 保証会社備考 | 保証会社利用必 初回総賃料の50% 以後1年毎に10,000円 |
| 契約形態 | - | 契約期間 | - |
| 入居・引渡期間 | - | 現況 | - |
| 契約備考 | 南海本線諏訪ノ森駅徒歩28分/クラスモなかもず店では、知識と経験豊富なスタッフがお客様のご要望にお応えできるよう最後までトコトンお部屋をお探しいたします♪電話番号、メールアドレスの登録不要のLINE問い合わせも可能です♪現地待ち合わせや最寄り駅までの送迎もお気軽にご相談ください。当店ではリモート内覧やIT重説も対応しております!ご予算、入居時期など何でもお気軽にお問合せください。営業スタッフがお客様の不安を解決いたします! 自治会費 2000円/年額 1K 損保【1.6万円2年】 バストイレ別、バルコニー、エアコン、ガスコンロ対応、クロゼット、フローリング、シャワー付洗面台、TVインターホン、浴室乾燥機、オートロック、室内洗濯置、陽当り良好、シューズボックス、システムキッチン、南向き、温水洗浄便座、脱衣所、エレベーター、洗面所独立、2口コンロ、駐輪場、宅配ボックス、CATV、光ファイバー、閑静な住宅地、敷金不要、防犯カメラ、独立型キッチン、全居室収納、グリル付、全居室洋室、バイク置場、全居室フローリング、2沿線利用可、ディンプルキー、駅まで平坦、ネット使用料不要、緑豊かな住宅地、眺望良好、全室南向き、24時間換気システム、平坦地、南面リビング、3駅以上利用可、駅徒歩10分以内、高層階、敷地内ごみ置き場、平面駐車場、都市ガス、洗面所にドア、南面バルコニー、高速ネット対応、IT重説対応物件、初期費用カード決済可、通風良好 入居日:'26年2月下旬 | ||
部屋の情報
| 間取り | 1K | 専有面積 | 29.09m2 |
|---|---|---|---|
| 所在階 / 向き | 2階 / 南 | バルコニー面積 | - |
| 水道 / ガス | - | ||
| 設備 | バス・トイレ別、2階以上、オートロック、テレビドアホン、宅配ボックス、浴室乾燥機、インターネット対応、システムキッチン、エアコン、エレベーター、温水洗浄便座、南向き、バルコニー、フローリング、洗髪洗面化粧台、2口コンロ、コンロ:ガス、CATV、インターネット使用料無料、洗濯機:室内 | ||
| 当社物件ID | 30892114 | ||
建物の情報
| 建物名 | TKアンバーコート津久野 | ||
|---|---|---|---|
| 所在地 | 大阪府堺市西区宮下町 | ||
| 交通 | JR阪和線 津久野駅 徒歩7分 JR阪和線 上野芝駅 徒歩13分 JR阪和線 鳳駅 徒歩28分 | ||
| 階数 | 10階建 | 総戸数 | - |
| 築年月 | 2019年09月 / 築7年 | エレベーター | あり |
| 駐車場 | なし | バイク置き場 | あり |
| 駐輪場 | あり | 管理人/管理会社 | - |
| 周辺環境 | その他 サンディ津久野店(スーパー)まで322m その他 デイリーカナート向ヶ丘店(スーパー)まで614m その他 ダイエーグルメシティ津久野店(スーパー)まで779m その他 ミニストップ堺津久野町店(コンビニ)まで375m その他 ローソン堺石津町3丁店(コンビニ)まで1029m その他 セブンイレブン堺下田町店(コンビニ)まで1067m | ||
| 建物種別 | マンション | 建物構造 | RC(鉄筋コンクリート) |
この部屋の取扱い不動産会社
| 会社名 | クラスモなかもず店(株)forest庵(SUUMO経由) | ||
|---|---|---|---|
| 所在地 | 大阪府堺市北区中百舌鳥町2-35 東亜ビル1階 | 交通 | - |
| 営業時間 | 10:00~19:00 | 定休日 | 年中無休 |
| 免許番号 | 大阪府知事61499 | 取引態様 | 仲介 |
| 不動産会社管理番号 | 100478529213 | 当社管理番号 | 89 |
| 所属団体 | (公社)全日本不動産協会大阪府本部会員 | ||
| 公正取引協議会 | (公社)近畿地区不動産公正取引協議会加盟 | ||
| 取扱い物件情報 | 物件詳細へ | ||
※各種情報と現状に差異がある場合は、現状優先となります。問い合わせをすることで、より詳しい条件、情報を確認する事ができます。
提供:クラスモなかもず店(株)forest庵(SUUMO経由)
この物件が気になったら掲載期限まであと10日
TKアンバーコート津久野に条件(家賃・エリア)が近い物件一覧
| 写真 | 家賃 管理費等 | 敷金 礼金 | 間取り 専有面積 | 築年数 | 最寄り駅 所在地 | キープ | 詳細 |
|---|---|---|---|---|---|---|---|
アパート REVITA鳳北町4丁(1LDK/1階) | |||||||
![]() | 6.3万円 5,000円 | なし 6.3万円 | 1LDK 30m2 | 築1年 | 阪和線 津久野駅 徒歩10分 阪和線 鳳駅 徒歩12分 南海電鉄南海本線 浜寺公園駅 徒歩26分 大阪府堺市西区鳳北町4丁 | 詳細を見る | |
マンション リバーサイド柴島(1K/2階) | |||||||
![]() | 4万円 7,000円 | なし なし | 1K 20.6m2 | 築35年 | 阪急電鉄千里線 柴島駅 徒歩5分 阪急電鉄京都線 崇禅寺駅 徒歩11分 大阪市御堂筋線 西中島南方駅 徒歩22分 大阪府大阪市東淀川区柴島2丁目 | 詳細を見る | |
マンション HOPECITY天神橋(1K/13階) | |||||||
| 5.3万円 1万円 | なし 5万円 | 1K 19.35m2 | 築27年 | 阪急電鉄千里線 天神橋筋六丁目駅 徒歩4分 大阪市堺筋線 天神橋筋六丁目駅 徒歩4分 大阪市谷町線 天神橋筋六丁目駅 徒歩5分 大阪府大阪市北区浪花町13-33 | 詳細を見る | ||
マンション リヴィエール北梅田(1K/3階) | |||||||
| 8.5万円 1.1万円 | なし 15万円 | 1K 32.43m2 | 築11年 | 阪急電鉄宝塚線 中津駅(阪急) 徒歩4分 大阪市御堂筋線 中津駅(大阪メトロ) 徒歩8分 阪急電鉄宝塚線 大阪梅田駅(阪急) 徒歩15分 大阪府大阪市北区中津4丁目8-2 | 詳細を見る | ||
アパート 阪和線 津久野駅 徒歩6分 築17年(1K/1階) | |||||||
![]() | 4.7万円 4,900円 | なし なし | 1K 24.07m2 | 築17年 | 阪和線 津久野駅 徒歩6分 阪和線 鳳駅 徒歩19分 阪和線 上野芝駅 徒歩22分 大阪府堺市西区鶴田町 | 詳細を見る | |
マンション 野々上マンション(1K/1階) | |||||||
![]() | 4万円 なし | なし なし | 1K 33.82m2 | 築53年 | 近鉄南大阪線 高鷲駅 徒歩24分 近鉄南大阪線 藤井寺駅 徒歩25分 近鉄南大阪線 古市駅(大阪) 徒歩28分 大阪府羽曳野市野々上4丁目 | 詳細を見る | |
マンション インベスト北梅田(1K/2階) | |||||||
| 7.1万円 8,000円 | なし なし | 1K 24.14m2 | 築19年 | 大阪市御堂筋線 中津駅(大阪メトロ) 徒歩11分 大阪市堺筋線 天神橋筋六丁目駅 徒歩12分 大阪市谷町線 中崎町駅 徒歩14分 大阪府大阪市北区本庄西3丁目12-3 | 詳細を見る | ||
堺市西区の町名から探す
堺市西区の部屋を間取りから探す
堺市西区の駅から探す
堺市西区と隣接している市区町村から探す
- 堺市西区(2,207)
- 大阪市都島区(1,666)
- 大阪市福島区(2,017)
- 大阪市此花区(416)
- 大阪市西区(3,906)
- 大阪市港区(1,273)
- 大阪市大正区(897)
- 大阪市天王寺区(1,301)
- 大阪市浪速区(3,221)
- 大阪市西淀川区(1,798)
- 大阪市東淀川区(4,861)
- 大阪市東成区(2,205)
- 大阪市生野区(1,694)
- 大阪市旭区(1,605)
- 大阪市城東区(1,865)
- 大阪市阿倍野区(1,352)
- 大阪市住吉区(1,832)
- 大阪市東住吉区(2,023)
- 大阪市西成区(784)
- 大阪市淀川区(4,981)
- 大阪市鶴見区(1,062)
- 大阪市住之江区(923)
- 大阪市平野区(1,974)
- 大阪市北区(5,073)
- 大阪市中央区(4,347)
- 富田林市(1,020)
- 河内長野市(591)
- 松原市(937)
- 和泉市(1,051)
- 羽曳野市(1,081)
- 高石市(884)
- 大阪狭山市(776)





