賃貸マンション
シンシア三軒茶屋レジデンスカフェの賃貸物件情報(ワンルーム/2階)
| 家賃 | 管理費等 | 敷金 | 礼金 | 間取り | 専有面積 |
|---|---|---|---|---|---|
| 10.9万円 | 1万円 | なし | 10.9万円 | ワンルーム | 28.86m2 |
入居決定でお祝い金最大100,000円
- 保証金
- -
- 償却・敷引
- -
- 築年数
- 築25年
- 所在階
- 2階
- 向き
- 東
Point
セキュリティ面は、オートロック・TVインターホンなどを備え付けているので安心して暮らせます。
提供:(株)ウィル・ビー池尻大橋東口店(SUUMO経由)

詳細情報 シンシア三軒茶屋レジデンスカフェ
物件紹介
シンシア三軒茶屋レジデンスカフェは東急田園都市線三軒茶屋駅から徒歩2分にあり、駅近で通勤通学に便利なマンションです。
このお部屋は2階以上に位置しているので、通行人や周囲の住人からの視線が気になりにくく、防犯面でも安心。建物のエントランスはオートロックがついており、インターホンにはTVモニタもついているため、相手の顔を確認してから来客対応することができます。
おしゃれなデザイナーズ物件!人気の南向きのお部屋。また、フローリングなのでお掃除もラクラク。キッチンはシステムキッチン仕様になっていますので、お料理好きの方にもぴったり。また、バス・トイレは別で、のんびりお風呂タイムも楽しめるでしょう。
通信設備面では、インターネット接続が可能です。また、BSアンテナがありCATVにも対応しているので、おうち時間も充実するでしょう(別途工事、契約料が必要な場合あり)。
建物にはエレベーターがついているので、重い荷物があっても安心。共用部には宅配ボックスが設定されているので、不在の時にも荷物を受け取ることができます。また、ペット飼育の相談ができますので、あなたの大切な家族の一員も快適に暮らせるか、ぜひ確認してみてください。
コンビニまで徒歩17分の場所にあり、日用品や食料品のお買い物にも便利です。
このお部屋は2階以上に位置しているので、通行人や周囲の住人からの視線が気になりにくく、防犯面でも安心。建物のエントランスはオートロックがついており、インターホンにはTVモニタもついているため、相手の顔を確認してから来客対応することができます。
おしゃれなデザイナーズ物件!人気の南向きのお部屋。また、フローリングなのでお掃除もラクラク。キッチンはシステムキッチン仕様になっていますので、お料理好きの方にもぴったり。また、バス・トイレは別で、のんびりお風呂タイムも楽しめるでしょう。
通信設備面では、インターネット接続が可能です。また、BSアンテナがありCATVにも対応しているので、おうち時間も充実するでしょう(別途工事、契約料が必要な場合あり)。
建物にはエレベーターがついているので、重い荷物があっても安心。共用部には宅配ボックスが設定されているので、不在の時にも荷物を受け取ることができます。また、ペット飼育の相談ができますので、あなたの大切な家族の一員も快適に暮らせるか、ぜひ確認してみてください。
コンビニまで徒歩17分の場所にあり、日用品や食料品のお買い物にも便利です。
お金・契約の情報
※「-」と表示されているものは、実際は料金が発生するものもございます。詳細はお問い合わせください。
| 家賃 | 10.9万円 | 管理費・共益費 | 1万円 |
|---|---|---|---|
| 敷金 | なし | 礼金 | 10.9万円 |
| 入居決定でお祝い金最大100,000円 | |||
| 保証金 | - | 償却・敷引 | - |
| 住宅保険料 | 1円 | 更新料 | - |
| その他費用 | 室内消毒費:1.9万円 | ||
| 保証会社利用 | 必須 | 保証会社名 | - |
| 保証会社費用 | - | 保証会社備考 | 初回保証料:総賃料の40% |
| 契約形態 | - | 契約期間 | 2年 |
| 入居・引渡期間 | 2026年03月下旬 | 現況 | - |
| 入居可能条件 | 2人入居可、ペット相談 | ||
| 契約備考 | 鍵交換費用:24200 その他設備/条件:室内洗濯機置き場、クローゼット、シューズボックス、分譲賃貸 | ||
部屋の情報
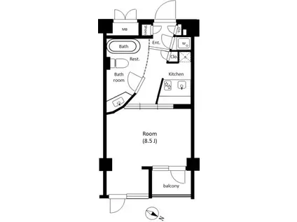
| 間取り | ワンルーム | 専有面積 | 28.86m2 |
|---|---|---|---|
| 間取り詳細 | 洋室(8.5帖)、K(3帖) | ||
| 所在階 / 向き | 2階 / 東 | バルコニー面積 | - |
| 水道 / ガス | ガス【都市】 | ||
| 設備 | オートロック、テレビドアホン、宅配ボックス、インターネット対応、システムキッチン、カウンターキッチン、エアコン、エレベーター、バルコニー、フローリング、2口コンロ、コンロ:IH、CATV、BSアンテナ、シャワー、専用庭、給湯、タイル張り | ||
| 当社物件ID | 7086387 | ||
建物の情報
| 建物名 | シンシア三軒茶屋レジデンスカフェ | ||
|---|---|---|---|
| 所在地 | 東京都世田谷区太子堂2丁目 | ||
| 交通 | 東急田園都市線 三軒茶屋駅 徒歩4分 東急世田谷線 若林駅(東京) 徒歩18分 | ||
| 階数 | 5階建 | 総戸数 | - |
| 築年月 | 2001年07月 / 築25年 | エレベーター | あり |
| 駐車場 | - | バイク置き場 | - |
| 駐輪場 | あり | 管理人/管理会社 | - |
| 周辺環境 | コンビニ 徒歩17分(1353m) 販売店 徒歩7分(483m) その他 ドラッグストア その他 公園 その他 銀行 その他 * | ||
| 建物種別 | マンション | 建物構造 | RC(鉄筋コンクリート) |
この部屋の取扱い不動産会社
| 会社名 | ハウスコム西東京株式会社 千歳烏山店 | ||
|---|---|---|---|
| 所在地 | 東京都世田谷区2-1駅前ビル1階 | 交通 | - |
| 営業時間 | 10:00~18:00 | 定休日 | - |
| 免許番号 | 東京都知事(1)第108225号 | 取引態様 | 仲介 |
| 不動産会社管理番号 | HC2-390745-203-0107 | 当社管理番号 | 468 |
| 所属団体 | 、 | ||
| 取扱い物件情報 | 物件詳細へ | ||
※各種情報と現状に差異がある場合は、現状優先となります。問い合わせをすることで、より詳しい条件、情報を確認する事ができます。
提供:ハウスコム西東京株式会社 千歳烏山店
この物件が気になったら掲載期限まであと5日
シンシア三軒茶屋レジデンスカフェに条件(家賃・エリア)が近い物件一覧
| 写真 | 家賃 管理費等 | 敷金 礼金 | 間取り 専有面積 | 築年数 | 最寄り駅 所在地 | キープ | 詳細 |
|---|---|---|---|---|---|---|---|
アパート M SONIA KUGAHARA(2LDK/1階) | |||||||
![]() | 16.5万円 3,000円 | 16.5万円 33万円 | 2LDK 49.27m2 | 築1年 | 東急池上線 久が原駅 徒歩8分 東急池上線 御嶽山駅 徒歩9分 東京都大田区西嶺町 | 詳細を見る | |
アパート ドルミ橋本(1K/1階) | |||||||
![]() | 8.4万円 2,000円 | 8.4万円 16.8万円 | 1K 22.75m2 | 築21年 | 京浜急行電鉄本線 梅屋敷駅(東京) 徒歩7分 京浜急行電鉄本線 大森町駅 徒歩11分 東京都大田区大森中2丁目 | 詳細を見る | |
マンション ラ・メゾン足柄(2LDK/3階) | |||||||
![]() | 15.7万円 3,000円 | 15.7万円 15.7万円 | 2LDK 54.74m2 | 築34年 | 京浜東北・根岸線 蒲田駅 徒歩6分 京浜急行電鉄本線 京急蒲田駅 徒歩14分 東京都大田区蒲田1丁目 | 詳細を見る | |
マンション グランドコンシェルジュ蒲田イースト(ワンルーム/7階) | |||||||
![]() | 8.5万円 8,000円 | 8.5万円 8.5万円 | ワンルーム 26.5m2 | 築19年 | 京急空港線 糀谷駅 徒歩5分 京急本線 京急蒲田駅 徒歩10分 東京都大田区西糀谷 | 詳細を見る | |
マンション SEED JUST B-BASE Ⅱ(1LDK/2階) | |||||||
![]() | 8.8万円 1.5万円 | 8.8万円 8.8万円 | 1LDK 23.07m2 | 新築 | 東京モノレール羽田 昭和島駅 徒歩11分 京浜急行電鉄本線 梅屋敷駅(東京) 徒歩19分 東京都大田区大森南4丁目 | 詳細を見る | |
アパート Dプレイス羽田(1K/2階) | |||||||
![]() | 8.2万円 3,000円 | 8.2万円 なし | 1K 21.15m2 | 築9年 | 京浜急行電鉄空港線 天空橋駅 徒歩6分 京浜急行電鉄空港線 穴守稲荷駅 徒歩11分 東京都大田区羽田6丁目 | 詳細を見る | |
タウンハウス 大田菜園長屋(2LDK) | |||||||
![]() | 15.4万円 5,000円 | 15.4万円 23.1万円 | 2LDK 52.17m2 | 築10年 | 京浜急行電鉄本線 雑色駅 徒歩8分 京浜急行電鉄本線 六郷土手駅 徒歩13分 東京都大田区東六郷3丁目 | 詳細を見る | |
マンション メイクスデザイン大森2(1LDK/3階) | |||||||
![]() | 17.3万円 1.2万円 | 17.3万円 17.3万円 | 1LDK 44.71m2 | 築7年 | 京浜東北・根岸線 大森駅(東京) 徒歩12分 京浜急行電鉄本線 平和島駅 徒歩13分 京浜急行電鉄本線 大森海岸駅 徒歩18分 東京都大田区大森北5丁目 | 詳細を見る | |









