賃貸マンション
シーフォルム木場2の賃貸物件情報(1DK/9階)
| 家賃 | 管理費等 | 敷金 | 礼金 | 間取り | 専有面積 |
|---|---|---|---|---|---|
| 13.2万円 | 1万円 | なし | なし | 1DK | 26.16m2 |
入居決定でお祝い金最大100,000円
- 保証金
- -
- 償却・敷引
- -
- 築年数
- 築4年
- 所在階
- 9階
- 向き
- 西
Point
宅配BOX付き。不在時の受け取りがとても便利で玄関を開けて対応する必要が無いので防犯にも役立ちます。モニター付インターホンで来訪者が一目瞭然。セールスや勧誘対策もできて安心です。
提供:恵比寿不動産 都心チーム(株)ライフアドバンス(SUUMO経由)

詳細情報 シーフォルム木場2
物件紹介
シーフォルム木場2は東京メトロ東西線木場駅から徒歩6分にあり、駅近で通勤通学に便利なマンションです。
このお部屋は2階以上に位置しているので、通行人や周囲の住人からの視線が気になりにくく、防犯面でも安心。建物のエントランスはオートロックがついており、インターホンにはTVモニタもついているため、相手の顔を確認してから来客対応することができます。
室内には人気のウォークインクローゼットがありますので、たくさんの荷物も効率的に収納ができます。バス・トイレ別の仕様で、のんびりお風呂タイムも楽しめます。
通信設備面では、インターネットが無料で使えるので、月々の出費を抑えられるのも魅力です。また、BSアンテナ・CSアンテナもありますので、おうち時間も充実するでしょう(別途工事、BS・CSの契約料等が必要な場合あり)。
建物にはエレベーターがついているので、重い荷物があっても安心。共用部には宅配ボックスが設定されているので、不在の時にも荷物を受け取ることができます。
このお部屋は2階以上に位置しているので、通行人や周囲の住人からの視線が気になりにくく、防犯面でも安心。建物のエントランスはオートロックがついており、インターホンにはTVモニタもついているため、相手の顔を確認してから来客対応することができます。
室内には人気のウォークインクローゼットがありますので、たくさんの荷物も効率的に収納ができます。バス・トイレ別の仕様で、のんびりお風呂タイムも楽しめます。
通信設備面では、インターネットが無料で使えるので、月々の出費を抑えられるのも魅力です。また、BSアンテナ・CSアンテナもありますので、おうち時間も充実するでしょう(別途工事、BS・CSの契約料等が必要な場合あり)。
建物にはエレベーターがついているので、重い荷物があっても安心。共用部には宅配ボックスが設定されているので、不在の時にも荷物を受け取ることができます。
お金・契約の情報
※「-」と表示されているものは、実際は料金が発生するものもございます。詳細はお問い合わせください。
| 家賃 | 13.2万円 | 管理費・共益費 | 1万円 |
|---|---|---|---|
| 敷金 | なし | 礼金 | なし |
| 入居決定でお祝い金最大100,000円 | |||
| 保証金 | - | 償却・敷引 | - |
| 住宅保険料 | - | 更新料 | - |
| 契約形態 | - | 契約期間 | - |
| 入居・引渡期間 | - | 現況 | - |
| 契約備考 | 合計3.85万円(内訳:鍵交換代:24200円/Goodプレミアムα(24Hサポートのみ):12100円/Goodプレミアムα登録料:2200円) 更新料金額(円):132000円 1DK 普通借家2年 バストイレ別、バルコニー、エアコン、ガスコンロ対応、クロゼット、シャワー付洗面台、TVインターホン、オートロック、室内洗濯置、温水洗浄便座、エレベーター、洗面所独立、洗面化粧台、2口コンロ、宅配ボックス、光ファイバー、礼金不要、最上階、BS・CS、敷金不要、対面式キッチン、防犯カメラ、ウォークインクロゼット、ネット使用料不要、保証金不要、2駅利用可、駅徒歩10分以内、築5年以内、都市ガス、高速ネット対応、敷金・礼金不要、初期費用カード決済可 入居日:'26年2月下旬 | ||
部屋の情報
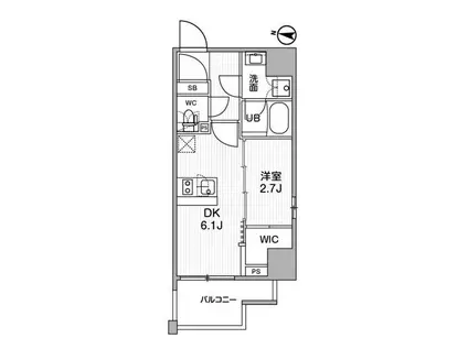
| 間取り | 1DK | 専有面積 | 26.16m2 |
|---|---|---|---|
| 所在階 / 向き | 9階 / 西 | バルコニー面積 | - |
| 水道 / ガス | - | ||
| 設備 | バス・トイレ別、2階以上、オートロック、テレビドアホン、宅配ボックス、ウォークインクローゼット、インターネット対応、エアコン、エレベーター、温水洗浄便座、バルコニー、洗髪洗面化粧台、2口コンロ、コンロ:ガス、CSアンテナ、BSアンテナ、インターネット使用料無料、洗濯機:室内 | ||
| 当社物件ID | 160103605 | ||
建物の情報
| 建物名 | シーフォルム木場2 | ||
|---|---|---|---|
| 所在地 | 東京都江東区東陽 | ||
| 交通 | 東京メトロ東西線 木場駅 徒歩6分 東京メトロ東西線 東陽町駅 徒歩9分 JR京葉線 潮見駅 徒歩25分 | ||
| 階数 | 9階建 | 総戸数 | 24戸 |
| 築年月 | 2022年11月 / 築4年 | エレベーター | あり |
| 駐車場 | なし | バイク置き場 | - |
| 駐輪場 | - | 管理人/管理会社 | - |
| 周辺環境 | その他 まいばすけっと東陽1丁目店(スーパー)まで140m その他 ローソンストア100東陽1丁目店(コンビニ)まで90m その他 くすりの福太郎東陽町3丁目店(ドラッグストア)まで330m その他 ニトリ南砂店(ホームセンター)まで1690m その他 木場駅(東京メトロ 東西線)(その他)まで590m その他 ららぽーと豊洲店(ショッピングセンター)まで380m | ||
| 建物種別 | マンション | 建物構造 | RC(鉄筋コンクリート) |
この部屋の取扱い不動産会社
| 会社名 | 恵比寿不動産 恵比寿店(株)ライフアドバンス(SUUMO経由) | ||
|---|---|---|---|
| 所在地 | 東京都渋谷区東3-25-11 TOKYUREIT恵比寿ビル7階 | 交通 | - |
| 営業時間 | 10時~19時 | 定休日 | 水曜日 |
| 免許番号 | 東京都知事97301 | 取引態様 | 仲介 |
| 不動産会社管理番号 | 100479552920 | 当社管理番号 | 89 |
| 所属団体 | (公社)全日本不動産協会東京都本部会員 | ||
| 公正取引協議会 | (公社)首都圏不動産公正取引協議会加盟 | ||
| 取扱い物件情報 | 物件詳細へ | ||
※各種情報と現状に差異がある場合は、現状優先となります。問い合わせをすることで、より詳しい条件、情報を確認する事ができます。
提供:恵比寿不動産 恵比寿店(株)ライフアドバンス(SUUMO経由)
この物件が気になったら掲載期限まであと10日
シーフォルム木場2に条件(家賃・エリア)が近い物件一覧
| 写真 | 家賃 管理費等 | 敷金 礼金 | 間取り 専有面積 | 築年数 | 最寄り駅 所在地 | キープ | 詳細 |
|---|---|---|---|---|---|---|---|
マンション CASA KEITO カーサ ケイト(1LDK/9階) | |||||||
![]() | 17.7万円 1.3万円 | 17.7万円 17.7万円 | 1LDK 40.47m2 | 築8年 | 東京都浅草線 東日本橋駅 徒歩3分 東京都新宿線 浜町駅 徒歩4分 総武本線 馬喰町駅 徒歩8分 東京都中央区東日本橋1丁目 | 詳細を見る | |
マンション メインステージ門前仲町(1K/7階) | |||||||
![]() | 9.5万円 1.5万円 | 9.5万円 9.5万円 | 1K 22.1m2 | 築23年 | 東京メトロ東西線 門前仲町駅 徒歩3分 JR京葉線 越中島駅 徒歩9分 東京メトロ半蔵門線 清澄白河駅 徒歩15分 東京都江東区門前仲町 | 詳細を見る | |
マンション 小名木川ハウス(1DK/9階) | |||||||
![]() | 8.2万円 5,000円 | 8.2万円 8.2万円 | 1DK 34.14m2 | 築52年 | 東京都新宿線 西大島駅 徒歩7分 東京都新宿線 大島駅(東京) 徒歩16分 東京地下鉄半蔵門線 住吉駅(東京) 徒歩19分 東京都江東区北砂3丁目 | 詳細を見る | |
アパート M SONIA KUGAHARA(2LDK/1階) | |||||||
![]() | 16.5万円 3,000円 | 16.5万円 33万円 | 2LDK 49.27m2 | 築1年 | 東急池上線 久が原駅 徒歩8分 東急池上線 御嶽山駅 徒歩9分 東京都大田区西嶺町 | 詳細を見る | |
マンション コンフォリア西蒲田(2DK/13階) | |||||||
![]() | 19.2万円 1.2万円 | 19.2万円 なし | 2DK 44.69m2 | 築17年 | JR京浜東北線 蒲田駅 徒歩6分 東急池上線 蓮沼駅 徒歩7分 京急本線 京急蒲田駅 徒歩17分 東京都大田区西蒲田 | 詳細を見る | |
一戸建て 東京都新宿線 大島駅(東京) 徒歩7分 築76年(1DK) | |||||||
![]() | 15.8万円 1万円 | 15.8万円 15.8万円 | 1DK 27.91m2 | 築76年 | 東京都新宿線 大島駅(東京) 徒歩7分 東京都新宿線 西大島駅 徒歩7分 総武・中央緩行線 亀戸駅 徒歩11分 東京都江東区大島3丁目 | 詳細を見る | |
マンション プラウドフラット墨田曳舟ディアージュ(1LDK/1階) | |||||||
![]() | 18.8万円 1.2万円 | 18.8万円 なし | 1LDK 40.32m2 | 築3年 | 京成電鉄押上線 京成曳舟駅 徒歩3分 東武伊勢崎・大師線 曳舟駅 徒歩4分 東武鉄道亀戸線 曳舟駅 徒歩4分 東京都墨田区東向島2丁目 | 詳細を見る | |
マンション プラウドフラット三越前(1K/8階) | |||||||
![]() | 13.8万円 8,000円 | 13.8万円 13.8万円 | 1K 25.12m2 | 築11年 | 総武本線 新日本橋駅 徒歩2分 東京地下鉄銀座線 三越前駅 徒歩4分 山手線 神田駅(東京) 徒歩5分 東京都中央区日本橋本町4丁目 | 詳細を見る | |








