賃貸マンション
照葉クロススタイル ウエスト棟の賃貸物件情報(2LDK/3階)
| 家賃 | 管理費等 | 敷金 | 礼金 | 間取り | 専有面積 |
|---|---|---|---|---|---|
| 10.5万円 | 1万円 | 5.25万円 | 21万円 | 2LDK | 61.82m2 |
入居決定でお祝い金最大100,000円
- 保証金
- -
- 償却・敷引
- -
- 築年数
- 築7年
- 所在階
- 3階
- 向き
- 西
Point
遠方からお越しの際には博多駅もしくは福岡空港への送迎も致しますのでお気軽にお問合せ下さい。照葉の事ならお任せ下さい!!
提供:(株)HAK(SUUMO経由)

詳細情報 照葉クロススタイル ウエスト棟
物件紹介
照葉クロススタイル ウエスト棟は西鉄貝塚線香椎花園前駅から徒歩25分にあるマンションです。
このお部屋は2階以上に位置しているので、通行人や周囲の住人からの視線が気になりにくく、防犯面でも安心。建物のエントランスはオートロックがついており、インターホンにはTVモニタもついているため、相手の顔を確認してから来客対応することができます。
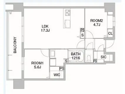
フローリングのお部屋なのでお掃除もラクラク。室内には人気のウォークインクローゼットがありますので、たくさんの荷物も効率的に収納ができます。キッチンはシステムキッチン仕様になっていますので、お料理好きの方にもぴったり。また、バス・トイレは別で、のんびりお風呂タイムも楽しめるでしょう。
通信設備面では、インターネットが無料で使えるので、月々の出費を抑えられるのも魅力です。また、CATVにも対応しているので、おうち時間も充実するでしょう(別途工事、CATVの契約料等が必要な場合あり)。
建物にはエレベーターがついているので、重い荷物があっても安心。共用部には宅配ボックスが設定されているので、不在の時にも荷物を受け取ることができます。また、ペット飼育の相談ができますので、あなたの大切な家族の一員も快適に暮らせるか、ぜひ確認してみてください。
このお部屋は2階以上に位置しているので、通行人や周囲の住人からの視線が気になりにくく、防犯面でも安心。建物のエントランスはオートロックがついており、インターホンにはTVモニタもついているため、相手の顔を確認してから来客対応することができます。
フローリングのお部屋なのでお掃除もラクラク。室内には人気のウォークインクローゼットがありますので、たくさんの荷物も効率的に収納ができます。キッチンはシステムキッチン仕様になっていますので、お料理好きの方にもぴったり。また、バス・トイレは別で、のんびりお風呂タイムも楽しめるでしょう。
通信設備面では、インターネットが無料で使えるので、月々の出費を抑えられるのも魅力です。また、CATVにも対応しているので、おうち時間も充実するでしょう(別途工事、CATVの契約料等が必要な場合あり)。
建物にはエレベーターがついているので、重い荷物があっても安心。共用部には宅配ボックスが設定されているので、不在の時にも荷物を受け取ることができます。また、ペット飼育の相談ができますので、あなたの大切な家族の一員も快適に暮らせるか、ぜひ確認してみてください。
お金・契約の情報
※「-」と表示されているものは、実際は料金が発生するものもございます。詳細はお問い合わせください。
| 家賃 | 10.5万円 | 管理費・共益費 | 1万円 |
|---|---|---|---|
| 敷金 | 5.25万円 | 礼金 | 21万円 |
| 入居決定でお祝い金最大100,000円 | |||
| 保証金 | - | 償却・敷引 | - |
| 住宅保険料 | - | 更新料 | - |
| 契約形態 | - | 契約期間 | - |
| 入居・引渡期間 | 相談 | 現況 | - |
| 入居可能条件 | ペット相談 | ||
| 契約備考 | 福岡市立照葉北小学校まで260m/アイランドシティ中央公園まで410m/通勤管理/照葉クロススタイルWEST棟!!室内小型犬2匹まで飼育可能です。香椎照葉内全物件HAKにてご紹介致します、お部屋タイプも豊富にございますのでご満足頂くまでご案内致します♪ 2LDK 二人入居可/子供可/ペット相談 損保【要】 バストイレ別、バルコニー、クロゼット、フローリング、TVインターホン、オートロック、室内洗濯置、陽当り良好、システムキッチン、追焚機能浴室、温水洗浄便座、脱衣所、エレベーター、洗面所独立、洗面化粧台、駐輪場、宅配ボックス、CATV、外壁タイル張り、閑静な住宅地、3口以上コンロ、対面式キッチン、防犯カメラ、ペット相談、全居室収納、グリル付、全居室洋室、ウォークインクロゼット、保証人不要、二人入居相談、バイク置場、全居室フローリング、LDK15畳以上、ディンプルキー、ネット使用料不要、浄水器、緑豊かな住宅地、眺望良好、ダブルロックキー、24時間換気システム、平坦地、エレベーター2基、電線埋設、区画整理地内、大型タウン内、バス停徒歩3分以内、敷地内ごみ置き場、平面駐車場、自走式駐車場、日勤管理、都市ガス、洗面所にドア、シューズWIC、LAN、礼金2ヶ月、通風良好 | ||
部屋の情報
| 間取り | 2LDK | 専有面積 | 61.82m2 |
|---|---|---|---|
| 所在階 / 向き | 3階 / 西 | バルコニー面積 | - |
| 水道 / ガス | - | ||
| 設備 | バス・トイレ別、2階以上、オートロック、テレビドアホン、宅配ボックス、ウォークインクローゼット、追い焚き、インターネット対応、システムキッチン、エレベーター、温水洗浄便座、バルコニー、フローリング、洗髪洗面化粧台、2口コンロ、CATV、インターネット使用料無料、洗濯機:室内 | ||
| 当社物件ID | 160036429 | ||
建物の情報
| 建物名 | 照葉クロススタイル ウエスト棟 | ||
|---|---|---|---|
| 所在地 | 福岡県福岡市東区香椎照葉 | ||
| 交通 | 西鉄貝塚線 香椎花園前駅 徒歩25分 JR鹿児島本線 香椎駅 徒歩40分 JR鹿児島本線 千早駅 徒歩47分 | ||
| 階数 | 14階建 | 総戸数 | - |
| 築年月 | 2019年07月 / 築7年 | エレベーター | あり |
| 駐車場 | 空有 12100円/平置駐 | バイク置き場 | あり |
| 駐輪場 | あり | 管理人/管理会社 | - |
| 周辺環境 | その他 福岡市立照葉北小学校(小学校)まで260m その他 スーパーセンタートライアル(スーパー)まで1050m その他 ファミリーマート(コンビニ)まで320m その他 イオン香椎浜(ショッピングセンター)まで1850m その他 かしいかえん(その他)まで1980m その他 アイランドシティ中央公園(公園)まで410m | ||
| 建物種別 | マンション | 建物構造 | RC(鉄筋コンクリート) |
この部屋の取扱い不動産会社
| 会社名 | (株)HAK(SUUMO経由) | ||
|---|---|---|---|
| 所在地 | 福岡県福岡市中央区大名1-4-20 RACT2階 | 交通 | - |
| 営業時間 | AM10:00~PM17:00 | 定休日 | GW・お盆・年末年始 |
| 免許番号 | 福岡県知事17017 | 取引態様 | 仲介 |
| 不動産会社管理番号 | 100181226945 | 当社管理番号 | 89 |
| 所属団体 | (公社)福岡県宅地建物取引業協会会員 | ||
| 公正取引協議会 | (一社)九州不動産公正取引協議会加盟 | ||
| 取扱い物件情報 | 物件詳細へ | ||
※各種情報と現状に差異がある場合は、現状優先となります。問い合わせをすることで、より詳しい条件、情報を確認する事ができます。
提供:(株)HAK(SUUMO経由)
この物件が気になったら掲載期限まであと11日
照葉クロススタイル ウエスト棟に条件(家賃・エリア)が近い物件一覧
| 写真 | 家賃 管理費等 | 敷金 礼金 | 間取り 専有面積 | 築年数 | 最寄り駅 所在地 | キープ | 詳細 |
|---|---|---|---|---|---|---|---|
アパート リーベンスグランデ(1LDK/1階) | |||||||
![]() | 7.95万円 3,000円 | なし 7.95万円 | 1LDK 40.46m2 | 新築 | 西鉄天神大牟田線 下大利駅 徒歩5分 鹿児島本線 水城駅 徒歩9分 鹿児島本線 大野城駅 徒歩12分 福岡県大野城市下大利1丁目 | 詳細を見る | |
アパート ラ・カーサ・パーチェ(1LDK/1階) | |||||||
![]() | 7.7万円 3,300円 | なし 7.7万円 | 1LDK 45.37m2 | 新築 | 西鉄天神大牟田線 春日原駅 徒歩27分 福岡県大野城市川久保3丁目 | 詳細を見る | |
マンション ルヴェドゥソレイユ(1LDK/2階) | |||||||
![]() | 6.8万円 5,000円 | なし なし | 1LDK 30.66m2 | 築8年 | 西鉄天神大牟田線 井尻駅 徒歩17分 鹿児島本線 南福岡駅 徒歩17分 鹿児島本線 笹原駅 徒歩18分 福岡県春日市日の出町6丁目 | 詳細を見る | |
マンション コアマンション春日大谷Ⅱ(4LDK/3階) | |||||||
![]() | 10.5万円 なし | なし 21万円 | 4LDK 85.75m2 | 築29年 | 博多南線 博多南駅 徒歩28分 鹿児島本線 南福岡駅 徒歩30分 鹿児島本線 春日駅(福岡) 徒歩31分 福岡県春日市大谷3丁目 | 詳細を見る | |
アパート ラシックランテ若葉台西(1LDK/2階) | |||||||
![]() | 6.4万円 3,500円 | なし 6.4万円 | 1LDK 33.68m2 | 築1年 | 鹿児島本線 春日駅(福岡) 徒歩12分 鹿児島本線 南福岡駅 徒歩21分 西鉄天神大牟田線 春日原駅 徒歩22分 福岡県春日市若葉台西1丁目 | 詳細を見る | |
アパート リシェス須玖(1K/1階) | |||||||
![]() | 6.6万円 4,000円 | 6.6万円 6.6万円 | 1K 33.56m2 | 築1年 | 福岡県春日市須玖北3丁目 | 詳細を見る | |
アパート トリシア 東大利(3LDK/3階) | |||||||
![]() | 14.8万円 7,500円 | なし なし | 3LDK 68.62m2 | 築1年 | 西鉄天神大牟田線 白木原駅 徒歩11分 鹿児島本線 大野城駅 徒歩16分 福岡県大野城市東大利2丁目 | 詳細を見る | |
タウンハウス 春日市伯玄町ヘーベルメゾン(3LDK) | |||||||
![]() | 12.4万円 なし | なし 24.8万円 | 3LDK 55.09m2 | 築1年 | 鹿児島本線 南福岡駅 徒歩17分 鹿児島本線 春日駅(福岡) 徒歩18分 西鉄天神大牟田線 桜並木駅 徒歩23分 福岡県春日市伯玄町2丁目 | 詳細を見る | |









