賃貸アパート
蓼池マンションルビィの賃貸物件情報(2DK/2階)
| 家賃 | 管理費等 | 敷金 | 礼金 | 間取り | 専有面積 |
|---|---|---|---|---|---|
| 5.5万円 | なし | なし | なし | 2DK | 59.61m2 |
入居決定でお祝い金最大100,000円
- 保証金
- -
- 償却・敷引
- -
- 築年数
- 築21年
- 所在階
- 2階
- 向き
- 南
Point
洗面所が独立した、使い勝手の良い環境が魅力的なアパートです。夏も冬もお部屋で快適に過ごすためには欠かせないエアコン付きです。こちらの物件は駐車場に空きがあるので、駐車することができます。
提供:(株)ROOM不動産都北店(SUUMO経由)

詳細情報 蓼池マンションルビィ
物件紹介
蓼池マンションルビィはJR日豊本線餅原駅から徒歩27分にあるアパートです。
このお部屋は2階以上に位置しているので、通行人や周囲の住人からの視線が気になりにくく、防犯面でも安心です。
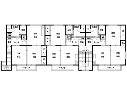
人気の南向き・フローリングのお部屋。角部屋でもあるため、周囲の居住者の生活音も気になりにくい場所です。バス・トイレ別の仕様で、のんびりお風呂タイムも楽しめます。
通信設備面では、インターネットが無料で使えるので、月々の出費を抑えられるのも魅力です(別途工事等が必要な場合あり)。
ペット飼育の相談ができますので、あなたの大切な家族の一員も快適に暮らせるか、ぜひ確認してみてください。
このお部屋は2階以上に位置しているので、通行人や周囲の住人からの視線が気になりにくく、防犯面でも安心です。
人気の南向き・フローリングのお部屋。角部屋でもあるため、周囲の居住者の生活音も気になりにくい場所です。バス・トイレ別の仕様で、のんびりお風呂タイムも楽しめます。
通信設備面では、インターネットが無料で使えるので、月々の出費を抑えられるのも魅力です(別途工事等が必要な場合あり)。
ペット飼育の相談ができますので、あなたの大切な家族の一員も快適に暮らせるか、ぜひ確認してみてください。
お金・契約の情報
※「-」と表示されているものは、実際は料金が発生するものもございます。詳細はお問い合わせください。
| 家賃 | 5.5万円 | 管理費・共益費 | なし |
|---|---|---|---|
| 敷金 | なし | 礼金 | なし |
| 入居決定でお祝い金最大100,000円 | |||
| 保証金 | - | 償却・敷引 | - |
| 住宅保険料 | - | 更新料 | - |
| 保証会社利用 | 必須 | 保証会社名 | - |
| 保証会社費用 | - | 保証会社備考 | 保証会社利用必 初回:総賃料の50% 100% 月々:500円 指定保証会社 |
| 契約形態 | - | 契約期間 | - |
| 入居・引渡期間 | 即時 | 現況 | - |
| 入居可能条件 | ペット相談 | ||
| 契約備考 | 小型犬1匹 月額2000円 猫1匹 月額3000円 2DK 二人入居可/子供可/ペット相談/事務所利用不可 普通借家2年 損保【1.8万円2年】 バストイレ別、バルコニー、エアコン、ガスコンロ対応、フローリング、室内洗濯置、陽当り良好、シューズボックス、南向き、角住戸、温水洗浄便座、洗面所独立、閑静な住宅地、ペット相談、保証人不要、駐車2台可、ネット使用料不要、駐車場2台無料、学生相談、プロパンガス、敷金・礼金不要、初期費用カード決済可 | ||
部屋の情報
| 間取り | 2DK | 専有面積 | 59.61m2 |
|---|---|---|---|
| 所在階 / 向き | 2階 / 南 | バルコニー面積 | - |
| 水道 / ガス | - | ||
| 設備 | バス・トイレ別、2階以上、インターネット対応、エアコン、温水洗浄便座、南向き、角部屋、バルコニー、フローリング、洗髪洗面化粧台、コンロ:ガス、インターネット使用料無料、洗濯機:室内 | ||
| 当社物件ID | 9765756 | ||
建物の情報
| 建物名 | 蓼池マンションルビィ | ||
|---|---|---|---|
| 所在地 | 宮崎県北諸県郡三股町大字蓼池 | ||
| 交通 | JR日豊本線 餅原駅 徒歩27分 JR日豊本線 三股駅 徒歩48分 JR日豊本線 都城駅 徒歩63分 | ||
| 階数 | 2階建 | 総戸数 | 6戸 |
| 築年月 | 2005年05月 / 築21年 | エレベーター | - |
| 駐車場 | 空有 駐2台可 | バイク置き場 | - |
| 駐輪場 | - | 管理人/管理会社 | - |
| 周辺環境 | その他 こばと保育園(幼稚園・保育園)まで616m その他 アタックスマート 三股店(その他)まで623m その他 ファミリーマート 三股たで池店(コンビニ)まで700m その他 坂田医院(病院)まで761m その他 セブンイレブン 蓼池南原店(コンビニ)まで758m その他 蓼池公園(公園)まで881m | ||
| 建物種別 | アパート | 建物構造 | 木造 |
この部屋の取扱い不動産会社
| 会社名 | (株)ROOM不動産都北店(SUUMO経由) | ||
|---|---|---|---|
| 所在地 | 宮崎県都城市都北町 6415-1 | 交通 | - |
| 営業時間 | 9:00~18:00 | 定休日 | 火曜日 |
| 免許番号 | 宮崎県知事4965 | 取引態様 | 仲介 |
| 不動産会社管理番号 | 100489757495 | 当社管理番号 | 89 |
| 所属団体 | (一社)宮崎県宅地建物取引業協会会員 | ||
| 公正取引協議会 | (一社)九州不動産公正取引協議会加盟 | ||
| 取扱い物件情報 | 物件詳細へ | ||
※各種情報と現状に差異がある場合は、現状優先となります。問い合わせをすることで、より詳しい条件、情報を確認する事ができます。
提供:(株)ROOM不動産都北店(SUUMO経由)
この物件が気になったら掲載期限まであと11日
蓼池マンションルビィに条件(家賃・エリア)が近い物件一覧
| 写真 | 家賃 管理費等 | 敷金 礼金 | 間取り 専有面積 | 築年数 | 最寄り駅 所在地 | キープ | 詳細 |
|---|---|---|---|---|---|---|---|
アパート フォレストモールA棟(2DK/2階) | |||||||
![]() | 5万円 なし | なし 5万円 | 2DK 40m2 | 築25年 | JR日豊本線 清武駅 徒歩30分 宮崎県宮崎市清武町木原 | 詳細を見る | |
マンション 鈴木グリーンハイツ(1DK/1階) | |||||||
![]() | 4.5万円 なし | 4.5万円 4.5万円 | 1DK 33.6m2 | 築48年 | 日豊本線 清武駅 徒歩12分 宮崎県宮崎市清武町木原 | 詳細を見る | |
マンション PEBBLE(2LDK/2階) | |||||||
![]() | 6.5万円 なし | 13万円 6.5万円 | 2LDK 56.23m2 | 築27年 | 日豊本線 宮崎駅 徒歩7分 宮崎県宮崎市宮脇町 | 詳細を見る | |
アパート サニーハウス III(2LDK/2階) | |||||||
![]() | 7.05万円 2,200円 | なし 7.05万円 | 2LDK 59.55m2 | 新築 | 宮崎県宮崎市清武町加納丙 | 詳細を見る | |
アパート LAULEAⅡ・Ⅲ(ワンルーム/1階) | |||||||
![]() | 4万円 2,000円 | 4万円 なし | ワンルーム 32.3m2 | 築3年 | 日豊本線 五十市駅 徒歩7分 宮崎県都城市久保原町 | 詳細を見る | |
アパート パストラルコート(2LDK/4階) | |||||||
![]() | 5.5万円 なし | なし 5.5万円 | 2LDK 53m2 | 築29年 | JR日豊本線 清武駅 徒歩12分 宮崎県宮崎市清武町新町 | 詳細を見る | |
アパート パークハイム(2LDK/2階) | |||||||
![]() | 4.7万円 なし | なし 4.7万円 | 2LDK 53.46m2 | 築32年 | JR日南線 木花駅 徒歩28分 宮崎県宮崎市学園木花台桜 | 詳細を見る | |
マンション EXESS CITY(1LDK/6階) | |||||||
![]() | 6.9万円 なし | なし 6.9万円 | 1LDK 43m2 | 築19年 | 日南線 宮崎駅 徒歩7分 宮崎県宮崎市錦町 | 詳細を見る | |









