賃貸マンション
HARUMI FLAG PARK VILLAGE T棟の賃貸物件情報(3LDK/43階)
| 家賃 | 管理費等 | 敷金 | 礼金 | 間取り | 専有面積 |
|---|---|---|---|---|---|
| 53万円 | 2万円 | 106万円 | 53万円 | 3LDK | 77.3m2 |
入居決定でお祝い金最大100,000円
Point
■分譲タワーマンション、新築未入居 ■全居室収納スペース有 ■商業施設も充実しています
提供:(株)佳家不動産東上野営業所(SUUMO経由)

詳細情報 HARUMI FLAG PARK VILLAGE T棟
物件紹介
HARUMI FLAG PARK VILLAGE T棟は都営大江戸線勝どき駅から徒歩18分にあるマンションです。
このお部屋は2階以上に位置しているので、通行人や周囲の住人からの視線が気になりにくく、防犯面でも安心。建物のエントランスはオートロックがついており、インターホンにはTVモニタもついているため、相手の顔を確認してから来客対応することができます。
人気の南向き・フローリングのお部屋。室内にはウォークインクローゼットがありますので、たくさんの荷物も効率的に収納ができます。バス・トイレ別の仕様で、のんびりお風呂タイムも楽しめます。また、浴室乾燥機を使えば、雨の日でもお洗濯は問題ありません。
床暖房があり、冬も足元から暖かく快適に過ごすことができます。建物にはエレベーターがついているので、重い荷物があっても安心。共用部には宅配ボックスが設定されているので、不在の時にも荷物を受け取ることができます。
このお部屋は2階以上に位置しているので、通行人や周囲の住人からの視線が気になりにくく、防犯面でも安心。建物のエントランスはオートロックがついており、インターホンにはTVモニタもついているため、相手の顔を確認してから来客対応することができます。
人気の南向き・フローリングのお部屋。室内にはウォークインクローゼットがありますので、たくさんの荷物も効率的に収納ができます。バス・トイレ別の仕様で、のんびりお風呂タイムも楽しめます。また、浴室乾燥機を使えば、雨の日でもお洗濯は問題ありません。
床暖房があり、冬も足元から暖かく快適に過ごすことができます。建物にはエレベーターがついているので、重い荷物があっても安心。共用部には宅配ボックスが設定されているので、不在の時にも荷物を受け取ることができます。
お金・契約の情報
※「-」と表示されているものは、実際は料金が発生するものもございます。詳細はお問い合わせください。
| 家賃 | 53万円 | 管理費・共益費 | 2万円 |
|---|---|---|---|
| 敷金 | 106万円 | 礼金 | 53万円 |
| 入居決定でお祝い金最大100,000円 | |||
| 保証金 | - | 償却・敷引 | - |
| 住宅保険料 | - | 更新料 | - |
| 契約形態 | - | 契約期間 | - |
| 入居・引渡期間 | 即時 | 現況 | - |
| 契約備考 | 常駐管理 合計18.8万円(内訳:初回保証委託料 168000円家財保険料 20000円) 退去清掃費用有 3LDK 普通借家2年 損保【2万円2年】 バストイレ別、バルコニー、クロゼット、TVインターホン、浴室乾燥機、オートロック、室内洗濯置、陽当り良好、南向き、追焚機能浴室、温水洗浄便座、エレベーター、宅配ボックス、即入居可、3口以上コンロ、防犯カメラ、分譲賃貸、ウォークインクロゼット、全居室フローリング、駅まで平坦、床暖房、緑豊かな住宅地、眺望良好、ダブルロックキー、ディスポーザー、オーシャンビュー、タワー型マンション、ゲストルーム、キッズルーム、24時間ゴミ出し可、LDK12畳以上、キッチン床暖房、都市ガス、天井高シューズクロゼット、玄関収納、通風良好 | ||
部屋の情報
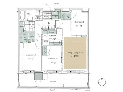
| 間取り | 3LDK | 専有面積 | 77.3m2 |
|---|---|---|---|
| 所在階 / 向き | 43階 / 南 | バルコニー面積 | - |
| 水道 / ガス | - | ||
| 設備 | バス・トイレ別、2階以上、オートロック、テレビドアホン、宅配ボックス、浴室乾燥機、ウォークインクローゼット、追い焚き、エレベーター、温水洗浄便座、南向き、バルコニー、フローリング、タワーマンション、床暖房、2口コンロ、洗濯機:室内 | ||
| 当社物件ID | 160083563 | ||
建物の情報
| 建物名 | HARUMI FLAG PARK VILLAGE T棟 | ||
|---|---|---|---|
| 所在地 | 東京都中央区晴海 | ||
| 交通 | 都営大江戸線 勝どき駅 徒歩18分 | ||
| 階数 | 地下1地上50階建 | 総戸数 | 722戸 |
| 築年月 | 2025年10月 / 築1年 | エレベーター | あり |
| 駐車場 | なし | バイク置き場 | - |
| 駐輪場 | - | 管理人/管理会社 | - |
| 周辺環境 | その他 ららテラスHARUMI FLAG(ショッピングセンター)まで648m その他 サミットストアららテラスHARUMI FLAG店(スーパー)まで548m その他 ポピンズナーサリースクールららテラスHARUMI FLAG(幼稚園・保育園)まで647m その他 中央区立晴海西小学校(小学校)まで553m その他 医療法人社団クリタ会聖カタリナ病院(病院)まで1200m その他 晴海ふ頭公園(公園)まで289m | ||
| 建物種別 | マンション | 建物構造 | RC(鉄筋コンクリート) |
この部屋の取扱い不動産会社
| 会社名 | (株)佳家不動産東上野営業所(SUUMO経由) | ||
|---|---|---|---|
| 所在地 | 東京都台東区東上野3-36-10 佳家ヒルズ東上野1階 | 交通 | - |
| 営業時間 | 10:00~18:00 | 定休日 | 土・日・祝日 |
| 免許番号 | 東京都知事104886 | 取引態様 | 仲介 |
| 不動産会社管理番号 | 100478994941 | 当社管理番号 | 89 |
| 所属団体 | (公社)東京都宅地建物取引業協会会員 | ||
| 公正取引協議会 | (公社)首都圏不動産公正取引協議会加盟 | ||
| 取扱い物件情報 | 物件詳細へ | ||
※各種情報と現状に差異がある場合は、現状優先となります。問い合わせをすることで、より詳しい条件、情報を確認する事ができます。
提供:(株)佳家不動産東上野営業所(SUUMO経由)
この物件が気になったら掲載期限まであと5日
HARUMI FLAG PARK VILLAGE T棟に条件(家賃・エリア)が近い物件一覧
| 写真 | 家賃 管理費等 | 敷金 礼金 | 間取り 専有面積 | 築年数 | 最寄り駅 所在地 | キープ | 詳細 |
|---|---|---|---|---|---|---|---|
マンション パークコート南麻布(2LDK/13階) | |||||||
![]() | 44.8万円 2万円 | 44.8万円 44.8万円 | 2LDK 57.03m2 | 築6年 | 東京メトロ南北線 麻布十番駅 徒歩7分 都営大江戸線 赤羽橋駅 徒歩16分 JR山手線 田町駅(東京) 徒歩19分 東京都港区南麻布 | 詳細を見る | |
マンション 西麻布ガーデン(2LDK/4階) | |||||||
![]() | 38.5万円 3万円 | 77万円 38.5万円 | 2LDK 68.4m2 | 築50年 | 東京メトロ千代田線 乃木坂駅 徒歩8分 東京メトロ銀座線 表参道駅 徒歩10分 東京メトロ日比谷線 六本木駅 徒歩12分 東京都港区西麻布 | 詳細を見る | |
マンション 東京ガーデンテラス紀尾井町 紀尾井レジデンス(1LDK/6階) | |||||||
![]() | 80万円 なし | 80万円 80万円 | 1LDK 55.65m2 | 築10年 | 東京メトロ南北線 永田町駅 徒歩1分 東京メトロ有楽町線 永田町駅 徒歩1分 東京メトロ半蔵門線 永田町駅 徒歩1分 東京都千代田区紀尾井町 | 詳細を見る | |
マンション ウエリスアーバン水天宮前(2LDK/13階) | |||||||
![]() | 33.3万円 3万円 | 33.3万円 なし | 2LDK 52.2m2 | 築4年 | 東京メトロ半蔵門線 水天宮前駅 徒歩9分 東京メトロ東西線 門前仲町駅 徒歩9分 都営大江戸線 清澄白河駅 徒歩12分 東京都江東区佐賀 | 詳細を見る | |
マンション パークアクシス白金台(2LDK/12階) | |||||||
![]() | 42.9万円 なし | 42.9万円 85.8万円 | 2LDK 61.11m2 | 築21年 | 東京メトロ南北線 白金台駅 徒歩4分 JR山手線 目黒駅 徒歩9分 東京メトロ南北線 目黒駅 徒歩9分 東京都港区白金台 | 詳細を見る | |
マンション MODIER GINZA イースト(2LDK/3階) | |||||||
![]() | 29.3万円 1.5万円 | 29.3万円 なし | 2LDK 50.04m2 | 築1年 | 東京メトロ有楽町線 新富町駅(東京) 徒歩3分 東京メトロ日比谷線 八丁堀駅(東京) 徒歩5分 都営浅草線 東銀座駅 徒歩13分 東京都中央区新富 | 詳細を見る | |
マンション HARUMI FLAG PORT VILLAGE B棟(2LDK/16階) | |||||||
![]() | 33.5万円 2万円 | 33.5万円 なし | 2LDK 65.56m2 | 築3年 | 都営大江戸線 勝どき駅 徒歩12分 新交通ゆりかもめ 市場前駅 徒歩23分 新交通ゆりかもめ 竹芝駅 徒歩48分 東京都中央区晴海 | 詳細を見る | |
マンション プラウド虎ノ門(2LDK/17階) | |||||||
![]() | 49.8万円 なし | 49.8万円 49.8万円 | 2LDK 68.39m2 | 築7年 | 東京メトロ南北線 六本木一丁目駅 徒歩9分 東京メトロ銀座線 溜池山王駅 徒歩10分 東京都港区虎ノ門 | 詳細を見る | |









