賃貸マンション
HARUMI FLAG PARK VILLAGE T棟の賃貸物件情報(3LDK/47階)
| 家賃 | 管理費等 | 敷金 | 礼金 | 間取り | 専有面積 |
|---|---|---|---|---|---|
| 80万円 | 3万円 | 80万円 | 80万円 | 3LDK | 77.3m2 |
入居決定でお祝い金最大100,000円
- 保証金
- -
- 償却・敷引
- 80万円
- 築年数
- 築1年
- 所在階
- 47階
- 向き
- 東
Point
オンライン内見・契約実施中!初期費用クレカ決済もご相談ください!お部屋探しはピアホームにお任せください♪
提供:SEG(株)広尾本店(SUUMO経由)

詳細情報 HARUMI FLAG PARK VILLAGE T棟
物件紹介
HARUMI FLAG PARK VILLAGE T棟は都営大江戸線勝どき駅から徒歩16分にあるマンションです。
このお部屋は2階以上に位置しているので、通行人や周囲の住人からの視線が気になりにくく、防犯面でも安心。建物のエントランスはオートロックがついており、インターホンにはTVモニタもついているため、相手の顔を確認してから来客対応することができます。
人気の南向き・フローリングのお部屋。室内にはウォークインクローゼットがありますので、たくさんの荷物も効率的に収納ができます。キッチンはシステムキッチン仕様になっていますので、お料理好きの方にもぴったり。バス・トイレは別なので、のんびりお風呂タイムも楽しめるでしょう。また、雨の日でも浴室乾燥機を使えば、お洗濯も問題ありません。
通信設備面では、インターネット接続が可能です。また、CATVにも対応しているので、おうち時間も充実するでしょう(別途工事、契約料が必要な場合あり)。
床暖房があり、冬も足元から暖かく快適に過ごすことができます。建物にはエレベーターがついているので、重い荷物があっても安心。共用部には宅配ボックスが設定されているので、不在の時にも荷物を受け取ることができます。また、ペット飼育の相談ができますので、あなたの大切な家族の一員も快適に暮らせるか、ぜひ確認してみてください。
このお部屋は2階以上に位置しているので、通行人や周囲の住人からの視線が気になりにくく、防犯面でも安心。建物のエントランスはオートロックがついており、インターホンにはTVモニタもついているため、相手の顔を確認してから来客対応することができます。
人気の南向き・フローリングのお部屋。室内にはウォークインクローゼットがありますので、たくさんの荷物も効率的に収納ができます。キッチンはシステムキッチン仕様になっていますので、お料理好きの方にもぴったり。バス・トイレは別なので、のんびりお風呂タイムも楽しめるでしょう。また、雨の日でも浴室乾燥機を使えば、お洗濯も問題ありません。
通信設備面では、インターネット接続が可能です。また、CATVにも対応しているので、おうち時間も充実するでしょう(別途工事、契約料が必要な場合あり)。
床暖房があり、冬も足元から暖かく快適に過ごすことができます。建物にはエレベーターがついているので、重い荷物があっても安心。共用部には宅配ボックスが設定されているので、不在の時にも荷物を受け取ることができます。また、ペット飼育の相談ができますので、あなたの大切な家族の一員も快適に暮らせるか、ぜひ確認してみてください。
お金・契約の情報
※「-」と表示されているものは、実際は料金が発生するものもございます。詳細はお問い合わせください。
| 家賃 | 80万円 | 管理費・共益費 | 3万円 |
|---|---|---|---|
| 敷金 | 80万円 | 礼金 | 80万円 |
| 入居決定でお祝い金最大100,000円 | |||
| 保証金 | - | 償却・敷引 | 80万円 |
| 住宅保険料 | - | 更新料 | - |
| 保証会社利用 | 必須 | 保証会社名 | - |
| 保証会社費用 | - | 保証会社備考 | 保証会社利用必 初回保証料:賃料等合計の100% |
| 契約形態 | 定期借家 | 契約期間 | 3年 |
| 入居・引渡期間 | 即時 | 現況 | - |
| 入居可能条件 | ペット相談 | ||
| 契約備考 | 未入居/※1年未満解約時、賃料等1か月分の違約金有※同タイプ・別階の内観写真を掲載している場合があります。図面と現況が異なる場合は現況を優先いたします。 ペット:敷金1ヶ月追加・償却鍵交換費:実費更新事務手数料:新賃料1ヶ月+税24時間サポート:必須・借主負担 3LDK 二人入居可/ペット相談 定期借家3年 損保【2万円2年】 バストイレ別、バルコニー、エアコン、ガスコンロ対応、クロゼット、フローリング、TVインターホン、浴室乾燥機、オートロック、室内洗濯置、陽当り良好、システムキッチン、南向き、追焚機能浴室、温水洗浄便座、エレベーター、洗面所独立、2口コンロ、駐輪場、宅配ボックス、CATV、光ファイバー、3口以上コンロ、防犯カメラ、ペット相談、分譲賃貸、オートバス、ウォークインクロゼット、保証人不要、二人入居相談、バイク置場、全居室フローリング、エアコン2台、床暖房、食器洗乾燥機、エアコン全室、ディスポーザー、エアコン3台、南面2室、南面リビング、エアコン4台、南面3室、敷地内ごみ置き場、都市ガス、ワイドバルコニー、南面バルコニー、ウォークインクロゼット2、シューズWIC、初期費用カード決済可 | ||
部屋の情報
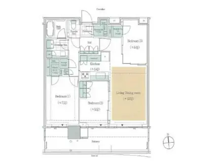
| 間取り | 3LDK | 専有面積 | 77.3m2 |
|---|---|---|---|
| 所在階 / 向き | 47階 / 東 | バルコニー面積 | - |
| 水道 / ガス | - | ||
| 設備 | バス・トイレ別、2階以上、オートロック、テレビドアホン、宅配ボックス、浴室乾燥機、ウォークインクローゼット、追い焚き、インターネット対応、システムキッチン、エアコン、エレベーター、温水洗浄便座、南向き、バルコニー、フローリング、洗髪洗面化粧台、床暖房、2口コンロ、コンロ:ガス、CATV、洗濯機:室内 | ||
| 当社物件ID | 160540085 | ||
建物の情報
| 建物名 | HARUMI FLAG PARK VILLAGE T棟 | ||
|---|---|---|---|
| 所在地 | 東京都中央区晴海 | ||
| 交通 | 都営大江戸線 勝どき駅 徒歩16分 新交通ゆりかもめ 市場前駅 徒歩22分 新交通ゆりかもめ 竹芝駅 徒歩50分 | ||
| 階数 | 地下1地上50階建 | 総戸数 | 722戸 |
| 築年月 | 2025年08月 / 築1年 | エレベーター | あり |
| 駐車場 | 空有 30500円 | バイク置き場 | あり |
| 駐輪場 | あり | 管理人/管理会社 | - |
| 周辺環境 | その他 ローソン 中央晴海三丁目店(コンビニ)まで767m その他 東武ストア 晴海三丁目店(スーパー)まで707m その他 聖路加国際病院(病院)まで1978m その他 晴海中学校(中学校)まで1436m | ||
| 建物種別 | マンション | 建物構造 | RC(鉄筋コンクリート) |
この部屋の取扱い不動産会社
| 会社名 | SEG(株)PeerHome広尾駅前店アネックス(SUUMO経由) | ||
|---|---|---|---|
| 所在地 | 東京都港区南麻布5-15-11 広尾セオハウス2階 | 交通 | - |
| 営業時間 | 9:00~18:30 | 定休日 | なし |
| 免許番号 | 東京都知事103362 | 取引態様 | 仲介 |
| 不動産会社管理番号 | 100492883850 | 当社管理番号 | 89 |
| 所属団体 | (公社)東京都宅地建物取引業協会会員 | ||
| 公正取引協議会 | (公社)首都圏不動産公正取引協議会加盟 | ||
| 取扱い物件情報 | 物件詳細へ | ||
※各種情報と現状に差異がある場合は、現状優先となります。問い合わせをすることで、より詳しい条件、情報を確認する事ができます。
提供:SEG(株)PeerHome広尾駅前店アネックス(SUUMO経由)
この物件が気になったら掲載期限まであと10日
HARUMI FLAG PARK VILLAGE T棟に条件(家賃・エリア)が近い物件一覧
| 写真 | 家賃 管理費等 | 敷金 礼金 | 間取り 専有面積 | 築年数 | 最寄り駅 所在地 | キープ | 詳細 |
|---|---|---|---|---|---|---|---|
マンション THE TOWERS DAIBA(2SLDK/4階) | |||||||
![]() | 76.25万円 なし | 76.25万円 76.25万円 | 2SLDK 100.83m2 | 築20年 | 新交通ゆりかもめ お台場海浜公園駅 徒歩2分 りんかい線 東京テレポート駅 徒歩5分 新交通ゆりかもめ 青海駅(東京) 徒歩10分 東京都港区台場 | 詳細を見る | |
マンション 三田ガーデンヒルズ(3LDK/5階) | |||||||
![]() | 110万円 なし | 220万円 110万円 | 3LDK 85.04m2 | 築2年 | 都営大江戸線 麻布十番駅 徒歩5分 都営三田線 芝公園駅 徒歩10分 JR山手線 田町駅(東京) 徒歩17分 東京都港区三田 | 詳細を見る | |
マンション 白金ザ・スカイ東棟(3LDK/19階) | |||||||
![]() | 75万円 なし | 75万円 75万円 | 3LDK 84.66m2 | 築4年 | 東京メトロ南北線 白金高輪駅 徒歩3分 東京メトロ南北線 麻布十番駅 徒歩14分 都営浅草線 泉岳寺駅 徒歩18分 東京都港区白金 | 詳細を見る | |
マンション プラウド虎ノ門(2LDK/19階) | |||||||
![]() | 70万円 なし | 70万円 70万円 | 2LDK 68.39m2 | 築7年 | 東京メトロ日比谷線 神谷町駅 徒歩2分 東京メトロ南北線 六本木一丁目駅 徒歩8分 東京メトロ銀座線 溜池山王駅 徒歩10分 東京都港区虎ノ門 | 詳細を見る | |
マンション BRILLIA一番町(3LDK/9階) | |||||||
![]() | 75万円 なし | 75万円 75万円 | 3LDK 95.23m2 | 築7年 | 東京メトロ半蔵門線 半蔵門駅 徒歩5分 東京メトロ南北線 市ケ谷駅 徒歩12分 東京都千代田区一番町 | 詳細を見る | |
マンション 東京ミッドタウン・レジデンシィズ(1LDK/23階) | |||||||
![]() | 68万円 なし | 272万円 なし | 1LDK 74.89m2 | 築20年 | 都営大江戸線 六本木駅 徒歩1分 東京メトロ日比谷線 六本木駅 徒歩4分 東京メトロ千代田線 乃木坂駅 徒歩7分 東京都港区赤坂 | 詳細を見る | |
マンション 麻布台ヒルズレジデンスB(1LDK/25階) | |||||||
![]() | 72万円 なし | 288万円 なし | 1LDK 63.96m2 | 築1年 | 東京メトロ南北線 六本木一丁目駅 徒歩1分 東京メトロ日比谷線 神谷町駅 徒歩7分 東京都港区麻布台 | 詳細を見る | |
マンション THE TOKYO TOWERS(3LDK/3階) | |||||||
![]() | 48万円 2万円 | 96万円 48万円 | 3LDK 105.18m2 | 築19年 | 都営大江戸線 勝どき駅 徒歩5分 東京メトロ有楽町線 月島駅 徒歩15分 東京メトロ日比谷線 築地駅 徒歩22分 東京都中央区勝どき | 詳細を見る | |









