賃貸アパート
KEIAI RESIDENCE 北上尾Ⅲの賃貸物件情報(1LDK/3階)
| 家賃 | 管理費等 | 敷金 | 礼金 | 間取り | 専有面積 |
|---|---|---|---|---|---|
| 7.75万円 | 3,500円 | なし | 7.75万円 | 1LDK | 29.28m2 |
入居決定でお祝い金最大100,000円
Point
室内設備は浴室乾燥機・洗面所独立など豊富に揃っており、過ごしやすいお部屋になっております。
提供:ハウスコム埼玉株式会社 上尾店

詳細情報 KEIAI RESIDENCE 北上尾Ⅲ
物件紹介
KEIAI RESIDENCE 北上尾Ⅲは高崎線北上尾駅から徒歩9分にあり、駅近で通勤通学に便利なアパートです。
このお部屋は2階以上に位置しているので、通行人や周囲の住人からの視線が気になりにくく、防犯面でも安心。建物のエントランスはオートロックがついており、インターホンにはTVモニタもついているため、相手の顔を確認してから来客対応することができます。
人気の角部屋で周囲の居住者の生活音も気になりにくく、また、フローリングのお部屋なのでお掃除もラクラク。キッチンはシステムキッチン仕様になっていますので、お料理好きの方にもぴったり。バス・トイレは別なので、のんびりお風呂タイムも楽しめるでしょう。また、雨の日でも浴室乾燥機を使えば、お洗濯も問題ありません。
通信設備面では、インターネット接続が可能です(別途工事、契約料が必要な場合あり)。
このお部屋は2階以上に位置しているので、通行人や周囲の住人からの視線が気になりにくく、防犯面でも安心。建物のエントランスはオートロックがついており、インターホンにはTVモニタもついているため、相手の顔を確認してから来客対応することができます。
人気の角部屋で周囲の居住者の生活音も気になりにくく、また、フローリングのお部屋なのでお掃除もラクラク。キッチンはシステムキッチン仕様になっていますので、お料理好きの方にもぴったり。バス・トイレは別なので、のんびりお風呂タイムも楽しめるでしょう。また、雨の日でも浴室乾燥機を使えば、お洗濯も問題ありません。
通信設備面では、インターネット接続が可能です(別途工事、契約料が必要な場合あり)。
お金・契約の情報
※「-」と表示されているものは、実際は料金が発生するものもございます。詳細はお問い合わせください。
| 家賃 | 7.75万円 | 管理費・共益費 | 3,500円 |
|---|---|---|---|
| 敷金 | なし | 礼金 | 7.75万円 |
| 入居決定でお祝い金最大100,000円 | |||
| 保証金 | - | 償却・敷引 | - |
| 住宅保険料 | 1円 | 更新料 | - |
| 保証会社利用 | 必須 | 保証会社名 | - |
| 保証会社費用 | - | 保証会社備考 | 初回50% |
| 契約形態 | - | 契約期間 | 2年 |
| 入居・引渡期間 | 2026年03月上旬 | 現況 | 未完成 |
| 契約備考 | KEIAI CLUB会費:2750円(税込)/月 退去時清掃費用:55000円(税込)/契約時 鍵交発行手数料:27500円 契約事務手数料:16500円 その他設備/条件:室内洗濯機置き場、独立洗面台、クローゼット | ||
部屋の情報
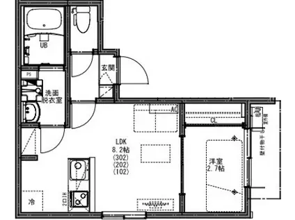
| 間取り | 1LDK | 専有面積 | 29.28m2 |
|---|---|---|---|
| 間取り詳細 | 洋室(2.7帖)、LDK(8.2帖) | ||
| 所在階 / 向き | 3階 / 北東 | バルコニー面積 | - |
| 水道 / ガス | 水道【公営】、ガス【プロパン】 | ||
| 設備 | バス・トイレ別、オートロック、テレビドアホン、浴室乾燥機、追い焚き、インターネット対応、システムキッチン、エアコン、温水洗浄便座、角部屋、バルコニー、フローリング、2口コンロ、コンロ:ガス、給湯 | ||
| 当社物件ID | 159927547 | ||
建物の情報
| 建物名 | KEIAI RESIDENCE 北上尾Ⅲ | ||
|---|---|---|---|
| 所在地 | 埼玉県上尾市緑丘3丁目 | ||
| 交通 | 高崎線 北上尾駅 徒歩9分 | ||
| 階数 | 3階建 | 総戸数 | 1戸 |
| 築年月 | 2026年02月 / 新築 | エレベーター | - |
| 駐車場 | なし | バイク置き場 | - |
| 駐輪場 | - | 管理人/管理会社 | - |
| 周辺環境 | 販売店 徒歩16分(1242m) その他 ドラッグストア その他 公園 その他 銀行 その他 * | ||
| 建物種別 | アパート | 建物構造 | 木造 |
この部屋の取扱い不動産会社
| 会社名 | ハウスコム埼玉株式会社 大宮店 | ||
|---|---|---|---|
| 所在地 | 埼玉県さいたま市大宮区1-4TS-114ビル1階 | 交通 | - |
| 営業時間 | 10:00~18:00 | 定休日 | - |
| 免許番号 | 埼玉県知事(1)第24888号 | 取引態様 | 仲介 |
| 不動産会社管理番号 | HC2-5257375-302-0031 | 当社管理番号 | 468 |
| 所属団体 | 、 | ||
| 取扱い物件情報 | 物件詳細へ | ||
※各種情報と現状に差異がある場合は、現状優先となります。問い合わせをすることで、より詳しい条件、情報を確認する事ができます。
提供:ハウスコム埼玉株式会社 大宮店
この物件が気になったら掲載期限まであと4日
KEIAI RESIDENCE 北上尾Ⅲに条件(家賃・エリア)が近い物件一覧
| 写真 | 家賃 管理費等 | 敷金 礼金 | 間取り 専有面積 | 築年数 | 最寄り駅 所在地 | キープ | 詳細 |
|---|---|---|---|---|---|---|---|
マンション シャトーサンワ(3DK/3階) | |||||||
![]() | 6.8万円 3,000円 | なし 6.8万円 | 3DK 54.23m2 | 築33年 | 西武鉄道新宿線 南大塚駅 徒歩1分 西武鉄道新宿線 新狭山駅 徒歩35分 川越線 西川越駅 徒歩64分 埼玉県川越市南台2丁目 | 詳細を見る | |
アパート カルチェ A(2LDK/2階) | |||||||
![]() | 9.5万円 7,000円 | なし 9.5万円 | 2LDK 58.07m2 | 築13年 | 西武鉄道新宿線 南大塚駅 徒歩21分 西武鉄道新宿線 新狭山駅 徒歩33分 川越線 的場駅 徒歩56分 埼玉県川越市 | 詳細を見る | |
アパート ノーススターガーデン(2LDK/3階) | |||||||
![]() | 10.75万円 3,900円 | なし 10.75万円 | 2LDK 71.07m2 | 新築 | 西武鉄道新宿線 南大塚駅 徒歩23分 川越線 川越駅 徒歩39分 東武鉄道東上線 新河岸駅 徒歩43分 埼玉県川越市中台南1丁目 | 詳細を見る | |
アパート サウススターガーデン(1LDK/1階) | |||||||
![]() | 8.55万円 3,900円 | なし 8.55万円 | 1LDK 40.44m2 | 新築 | 西武鉄道新宿線 南大塚駅 徒歩23分 東武鉄道東上線 川越駅 徒歩42分 川越線 川越駅 徒歩42分 埼玉県川越市中台南1丁目 | 詳細を見る | |
アパート KIRSCHE(1DK/1階) | |||||||
![]() | 7.2万円 6,000円 | なし 7.2万円 | 1DK 27.8m2 | 築3年 | 西武鉄道新宿線 南大塚駅 徒歩3分 埼玉県川越市南台2丁目 | 詳細を見る | |
アパート コスモプラザB(2DK/2階) | |||||||
![]() | 4.9万円 なし | なし なし | 2DK 34.7m2 | 築38年 | 西武鉄道新宿線 南大塚駅 徒歩18分 東武鉄道東上線 川越駅 徒歩20分 東武鉄道東上線 川越市駅 徒歩27分 埼玉県川越市広栄町 | 詳細を見る | |
アパート D-SERENO東田町Ⅱ(1LDK/1階) | |||||||
![]() | 10.4万円 7,000円 | なし 10.4万円 | 1LDK 37.09m2 | 築1年 | 東武鉄道東上線 川越駅 徒歩12分 東武鉄道東上線 川越市駅 徒歩12分 埼玉県川越市東田町 | 詳細を見る | |
アパート カレントB(2DK/1階) | |||||||
![]() | 6.5万円 3,500円 | なし 6.5万円 | 2DK 45.39m2 | 築16年 | 西武鉄道新宿線 南大塚駅 徒歩13分 川越線 西川越駅 徒歩34分 東武鉄道東上線 川越市駅 徒歩42分 埼玉県川越市 | 詳細を見る | |









