賃貸マンション
近鉄京都線 上鳥羽口駅 徒歩14分 3階建 築54年の賃貸物件情報(2DK/3階)
| 家賃 | 管理費等 | 敷金 | 礼金 | 間取り | 専有面積 |
|---|---|---|---|---|---|
| 4.7万円 | 5,000円 | なし | なし | 2DK | 40m2 |
入居決定でお祝い金最大100,000円
Point
光ファイバー対応です。 京都市南区 上鳥羽エリアのマンション。光ファイバー対応しています。
提供:株式会社 京都ライフ 伏見桃山店(賃貸スモッカ経由)

詳細情報 近鉄京都線 上鳥羽口駅 徒歩14分 3階建 築54年
物件紹介
近鉄京都線上鳥羽口駅から徒歩14分にあるマンションです。
このお部屋は2階以上に位置しているので、通行人や周囲の住人からの視線が気になりにくく、防犯面でも安心です。
人気の角部屋。周囲の居住者の生活音も気になりにくい場所です。バス・トイレ別の仕様で、のんびりお風呂タイムも楽しめます。
通信設備面では、インターネット接続が可能です(別途工事、契約料が必要な場合あり)。
このお部屋は2階以上に位置しているので、通行人や周囲の住人からの視線が気になりにくく、防犯面でも安心です。
人気の角部屋。周囲の居住者の生活音も気になりにくい場所です。バス・トイレ別の仕様で、のんびりお風呂タイムも楽しめます。
通信設備面では、インターネット接続が可能です(別途工事、契約料が必要な場合あり)。
お金・契約の情報
※「-」と表示されているものは、実際は料金が発生するものもございます。詳細はお問い合わせください。
| 家賃 | 4.7万円 | 管理費・共益費 | 5,000円 |
|---|---|---|---|
| 敷金 | なし | 礼金 | なし |
| 入居決定でお祝い金最大100,000円 | |||
| 保証金 | - | 償却・敷引 | - |
| 住宅保険料 | 住宅保険料あり | 更新料 | - |
| 契約形態 | 定期借家 | 契約期間 | 5年 |
| 入居・引渡期間 | 2026年02月下旬 | 現況 | 賃貸中 |
| 契約備考 | お気軽に京都ライフ京都駅前店までお問い合わせ下さい。 入居者サポート:16,500円 更新料:無し 保証会社:利用必須 初回:月額賃料等の50%、更新時:1万円/1年 その他設備/条件:最上階の物件 | ||
部屋の情報
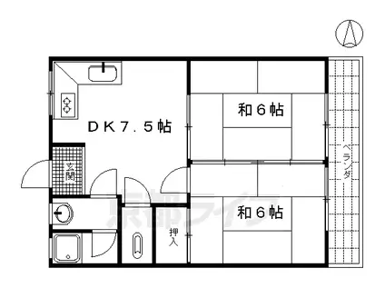
| 間取り | 2DK | 専有面積 | 40m2 |
|---|---|---|---|
| 間取り詳細 | 和室(6帖)、和室(6帖)、DK(7.5帖) | ||
| 所在階 / 向き | 3階 / 東 | バルコニー面積 | - |
| 水道 / ガス | ガス【都市】 | ||
| 設備 | バス・トイレ別、2階以上、インターネット対応、角部屋、バルコニー | ||
| 当社物件ID | 160088567 | ||
建物の情報
| 建物名 | 近鉄京都線 上鳥羽口駅 徒歩14分 3階建 築54年 | ||
|---|---|---|---|
| 所在地 | 京都府京都市南区上鳥羽堀子町 | ||
| 交通 | 近鉄京都線 上鳥羽口駅 徒歩14分 近鉄京都線 十条駅(近鉄) 徒歩15分 | ||
| 階数 | 3階建 | 総戸数 | - |
| 築年月 | 1972年06月 / 築54年 | エレベーター | - |
| 駐車場 | - | バイク置き場 | - |
| 駐輪場 | - | 管理人/管理会社 | - |
| 建物種別 | マンション | 建物構造 | RC(鉄筋コンクリート) |
この部屋の取扱い不動産会社
| 会社名 | 株式会社 京都ライフ 伏見桃山店(賃貸スモッカ経由) | ||
|---|---|---|---|
| 所在地 | 京都市伏見区観音寺町215-1 CONNECT桃山2F | 交通 | - |
| 営業時間 | - | 定休日 | - |
| 免許番号 | 京都府知事(11)第6353号 | 取引態様 | 仲介 |
| 不動産会社管理番号 | kyotolife_24708-305-25 | 当社管理番号 | 463 |
| 所属団体 | 京都府宅地建物取引業協会\n公益社団法人近畿地区不動産公正取引協議会 | ||
| 公正取引協議会 | 全国宅地建物取引業保証協会 | ||
| 取扱い物件情報 | 物件詳細へ | ||
※各種情報と現状に差異がある場合は、現状優先となります。問い合わせをすることで、より詳しい条件、情報を確認する事ができます。
提供:株式会社 京都ライフ 伏見桃山店(賃貸スモッカ経由)
この物件が気になったら掲載期限まであと5日
近鉄京都線 上鳥羽口駅 徒歩14分 3階建 築54年に条件(家賃・エリア)が近い物件一覧
| 写真 | 家賃 管理費等 | 敷金 礼金 | 間取り 専有面積 | 築年数 | 最寄り駅 所在地 | キープ | 詳細 |
|---|---|---|---|---|---|---|---|
マンション サンタウン宇治(1DK/5階) | |||||||
![]() | 5.5万円 5,000円 | なし なし | 1DK 37.56m2 | 築35年 | 近鉄京都線 向島駅 徒歩8分 京都府宇治市槇島町本屋敷 | 詳細を見る | |
マンション 瓜生ハイツ(1LDK/3階) | |||||||
![]() | 5.3万円 5,000円 | なし なし | 1LDK 32.35m2 | 築46年 | 東海道本線 向日町駅 徒歩3分 京都府向日市寺戸町瓜生 | 詳細を見る | |
マンション 京都市烏丸線 九条駅(京都) 徒歩5分 築19年(1K/1階) | |||||||
![]() | 5万円 5,000円 | 7万円 なし | 1K 25.16m2 | 築19年 | 京都市烏丸線 九条駅(京都) 徒歩5分 東海道本線 京都駅 徒歩12分 京都府京都市南区東九条中御霊町 | 詳細を見る | |
マンション 東海道本線 長岡京駅 徒歩8分 築38年(3DK/3階) | |||||||
![]() | 7万円 3,000円 | 20万円 10万円 | 3DK 50.31m2 | 築38年 | 東海道本線 長岡京駅 徒歩8分 阪急電鉄京都線 長岡天神駅 徒歩15分 京都府長岡京市馬場2丁目 | 詳細を見る | |
アパート 原荘苑(1DK/2階) | |||||||
![]() | 4万円 2,000円 | なし なし | 1DK 25.42m2 | 築50年 | 阪急電鉄京都線 西向日駅 徒歩10分 阪急電鉄京都線 長岡天神駅 徒歩32分 京都府長岡京市滝ノ町2丁目 | 詳細を見る | |






