賃貸マンション
ライオンズシティ白金高輪の賃貸物件情報(2LDK/9階)
| 家賃 | 管理費等 | 敷金 | 礼金 | 間取り | 専有面積 |
|---|---|---|---|---|---|
| 33.2万円 | 2万円 | なし | なし | 2LDK | 61.23m2 |
入居決定でお祝い金最大100,000円
- 保証金
- -
- 償却・敷引
- -
- 築年数
- 築21年
- 所在階
- 9階
- 向き
- 南東
Point
オンライン内見・契約実施中!初期費用クレカ決済もご相談ください◎港区・渋谷区の不動産はピアホームにお任せください!
提供:(株)リアルビジョン青山支店(SUUMO経由)

詳細情報 ライオンズシティ白金高輪
物件紹介
ライオンズシティ白金高輪は東京メトロ南北線白金高輪駅から徒歩6分にあり、駅近で通勤通学に便利なマンションです。
このお部屋は2階以上に位置しているので、通行人や周囲の住人からの視線が気になりにくく、防犯面でも安心。建物のエントランスはオートロックがついており、インターホンにはTVモニタもついているため、相手の顔を確認してから来客対応することができます。
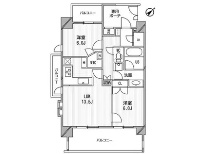
人気の南向き・フローリングのお部屋。角部屋でもあるため、周囲の居住者の生活音も気になりにくい場所です。室内にはウォークインクローゼットがありますので、たくさんの荷物も効率的に収納ができます。キッチンはシステムキッチン仕様になっていますので、お料理好きの方にもぴったり。バス・トイレは別なので、のんびりお風呂タイムも楽しめるでしょう。また、雨の日でも浴室乾燥機を使えば、お洗濯も問題ありません。
通信設備面では、インターネット接続が可能です。また、BSアンテナ・CSアンテナがありCATVにも対応しているので、おうち時間も充実するでしょう(別途工事、契約料が必要な場合あり)。
建物にはエレベーターがついているので、重い荷物があっても安心。共用部には宅配ボックスが設定されているので、不在の時にも荷物を受け取ることができます。
このお部屋は2階以上に位置しているので、通行人や周囲の住人からの視線が気になりにくく、防犯面でも安心。建物のエントランスはオートロックがついており、インターホンにはTVモニタもついているため、相手の顔を確認してから来客対応することができます。
人気の南向き・フローリングのお部屋。角部屋でもあるため、周囲の居住者の生活音も気になりにくい場所です。室内にはウォークインクローゼットがありますので、たくさんの荷物も効率的に収納ができます。キッチンはシステムキッチン仕様になっていますので、お料理好きの方にもぴったり。バス・トイレは別なので、のんびりお風呂タイムも楽しめるでしょう。また、雨の日でも浴室乾燥機を使えば、お洗濯も問題ありません。
通信設備面では、インターネット接続が可能です。また、BSアンテナ・CSアンテナがありCATVにも対応しているので、おうち時間も充実するでしょう(別途工事、契約料が必要な場合あり)。
建物にはエレベーターがついているので、重い荷物があっても安心。共用部には宅配ボックスが設定されているので、不在の時にも荷物を受け取ることができます。
お金・契約の情報
※「-」と表示されているものは、実際は料金が発生するものもございます。詳細はお問い合わせください。
| 家賃 | 33.2万円 | 管理費・共益費 | 2万円 |
|---|---|---|---|
| 敷金 | なし | 礼金 | なし |
| 入居決定でお祝い金最大100,000円 | |||
| 保証金 | - | 償却・敷引 | - |
| 住宅保険料 | - | 更新料 | - |
| 保証会社利用 | 必須 | 保証会社名 | - |
| 保証会社費用 | - | 保証会社備考 | 保証会社利用必 【エポス】初回保証料:賃料等の50%、月次保証料1%~ |
| 契約形態 | - | 契約期間 | - |
| 入居・引渡期間 | 即時 | 現況 | - |
| 契約備考 | 通勤管理/※1年未満解約時、賃料1ヶ月分の違約金有り※同タイプ・別階の内観写真を掲載している場合があります。図面と現況が異なる場合は現況を優先いたします。 合計2.97万円(内訳:鍵交換代:29700円) 駐輪場:330円/月※空き要確認退去時現状回復費:借主負担 2LDK 二人入居可 損保【2.2万円1年】 バストイレ別、バルコニー、エアコン、ガスコンロ対応、クロゼット、フローリング、TVインターホン、浴室乾燥機、オートロック、室内洗濯置、陽当り良好、シューズボックス、システムキッチン、南向き、角住戸、温水洗浄便座、エレベーター、洗面所独立、2口コンロ、駐輪場、宅配ボックス、CATV、3口以上コンロ、対面式キッチン、防犯カメラ、オートバス、ウォークインクロゼット、保証人不要、東南角住戸、二人入居相談、バイク置場、2面バルコニー、エアコン2台、ディンプルキー、CS、エアコン全室、L字型キッチン、エアコン3台、南面2室、南面リビング、3面バルコニー、3方角住戸、敷地内ごみ置き場、自走式駐車場、東南向き、都市ガス、ワイドバルコニー、南面バルコニー、BS、初期費用カード決済可 | ||
部屋の情報
| 間取り | 2LDK | 専有面積 | 61.23m2 |
|---|---|---|---|
| 所在階 / 向き | 9階 / 南東 | バルコニー面積 | - |
| 水道 / ガス | - | ||
| 設備 | バス・トイレ別、2階以上、オートロック、テレビドアホン、宅配ボックス、浴室乾燥機、ウォークインクローゼット、追い焚き、システムキッチン、エアコン、エレベーター、温水洗浄便座、南向き、角部屋、バルコニー、フローリング、洗髪洗面化粧台、2口コンロ、コンロ:ガス、CATV、CSアンテナ、BSアンテナ、洗濯機:室内 | ||
| 当社物件ID | 133068 | ||
建物の情報
| 建物名 | ライオンズシティ白金高輪 | ||
|---|---|---|---|
| 所在地 | 東京都港区三田 | ||
| 交通 | 東京メトロ南北線 白金高輪駅 徒歩6分 京急本線 泉岳寺駅 徒歩15分 JR山手線 田町駅(東京) 徒歩16分 | ||
| 階数 | 12階建 | 総戸数 | 62戸 |
| 築年月 | 2005年03月 / 築21年 | エレベーター | あり |
| 駐車場 | 空有 55000円 | バイク置き場 | あり |
| 駐輪場 | あり | 管理人/管理会社 | - |
| 周辺環境 | その他 THE CONVENI(ザ・コンビニ)(コンビニ)まで3688m その他 スーパー ナニワヤ(スーパー)まで874m その他 厚生中央病院(病院)まで2416m その他 御田小学校(小学校)まで283m その他 三田中学校(中学校)まで193m | ||
| 建物種別 | マンション | 建物構造 | RC(鉄筋コンクリート) |
この部屋の取扱い不動産会社
| 会社名 | SEG(株)PeerHome広尾駅前店アネックス(SUUMO経由) | ||
|---|---|---|---|
| 所在地 | 東京都港区南麻布5-15-11 広尾セオハウス2階 | 交通 | - |
| 営業時間 | 9:00~18:30 | 定休日 | なし |
| 免許番号 | 東京都知事103362 | 取引態様 | 仲介 |
| 不動産会社管理番号 | 100470759558 | 当社管理番号 | 89 |
| 所属団体 | (公社)東京都宅地建物取引業協会会員 | ||
| 公正取引協議会 | (公社)首都圏不動産公正取引協議会加盟 | ||
| 取扱い物件情報 | 物件詳細へ | ||
※各種情報と現状に差異がある場合は、現状優先となります。問い合わせをすることで、より詳しい条件、情報を確認する事ができます。
提供:SEG(株)PeerHome広尾駅前店アネックス(SUUMO経由)
この物件が気になったら掲載期限まであと10日
ライオンズシティ白金高輪に条件(家賃・エリア)が近い物件一覧
| 写真 | 家賃 管理費等 | 敷金 礼金 | 間取り 専有面積 | 築年数 | 最寄り駅 所在地 | キープ | 詳細 |
|---|---|---|---|---|---|---|---|
マンション URBAN BREEZE 恵比寿(2LDK/11階) | |||||||
![]() | 35万円 2万円 | 35万円 なし | 2LDK 47.71m2 | 新築 | 山手線 恵比寿駅 徒歩7分 東京都渋谷区東3丁目 | 詳細を見る | |
マンション アーバネックス日本橋馬喰町II(3LDK/7階) | |||||||
![]() | 40万円 2万円 | 40万円 なし | 3LDK 71.09m2 | 築1年 | JR総武線快速 馬喰町駅 徒歩2分 都営新宿線 馬喰横山駅 徒歩4分 東京メトロ日比谷線 小伝馬町駅 徒歩5分 東京都中央区日本橋馬喰町 | 詳細を見る | |
マンション プライマル中央湊(2LDK/6階) | |||||||
![]() | 23万円 2万円 | 23万円 23万円 | 2LDK 42.19m2 | 築4年 | 東京メトロ有楽町線 新富町駅(東京) 徒歩6分 JR京葉線 八丁堀駅(東京) 徒歩7分 東京メトロ日比谷線 築地駅 徒歩9分 東京都中央区湊 | 詳細を見る | |
マンション レクシード神楽坂(2LDK/5階) | |||||||
![]() | 22.1万円 2万円 | 22.1万円 なし | 2LDK 40.97m2 | 築6年 | 東京メトロ東西線 神楽坂駅 徒歩7分 都営大江戸線 飯田橋駅 徒歩8分 東京メトロ有楽町線 江戸川橋駅 徒歩10分 東京都新宿区東五軒町 | 詳細を見る | |
マンション ライオンズフォーシア築地ステーション(2LDK/7階) | |||||||
![]() | 34.3万円 1.5万円 | 34.3万円 なし | 2LDK 57.51m2 | 築6年 | 東京メトロ日比谷線 築地駅 徒歩3分 東京メトロ有楽町線 新富町駅(東京) 徒歩6分 東京メトロ日比谷線 八丁堀駅(東京) 徒歩12分 東京都中央区築地 | 詳細を見る | |
マンション ジョイヒルズ南平台(1LDK/4階) | |||||||
![]() | 25.1万円 1.2万円 | 25.1万円 25.1万円 | 1LDK 57.48m2 | 築25年 | JR山手線 渋谷駅 徒歩8分 京王井の頭線 神泉駅 徒歩10分 東急東横線 代官山駅 徒歩13分 東京都渋谷区南平台町 | 詳細を見る | |
マンション パークナード亀戸ロジュマン(3LDK/14階) | |||||||
![]() | 24万円 1万円 | 24万円 24万円 | 3LDK 66.64m2 | 築20年 | 東武亀戸線 小村井駅 徒歩10分 JR総武線 亀戸駅 徒歩12分 東京メトロ半蔵門線 押上駅 徒歩14分 東京都江東区亀戸 | 詳細を見る | |
マンション REFRAME5 早稲田(1LDK/2階) | |||||||
![]() | 27.1万円 1.2万円 | 27.1万円 なし | 1LDK 48.99m2 | 築1年 | 東京メトロ東西線 早稲田駅(メトロ) 徒歩4分 東京都新宿区早稲田鶴巻町 | 詳細を見る | |








