賃貸マンション
ヒルズ下北沢の賃貸物件情報(2DK/2階)
| 家賃 | 管理費等 | 敷金 | 礼金 | 間取り | 専有面積 |
|---|---|---|---|---|---|
| 17.5万円 | なし | 17.5万円 | 17.5万円 | 2DK | 46.98m2 |
入居決定でお祝い金最大100,000円
Point
駅徒歩5分圏内の物件!40平米越えのお部屋です!
提供:(株)アーバンコンサルタント(SUUMO経由)

詳細情報 ヒルズ下北沢
物件紹介
ヒルズ下北沢は小田急線下北沢駅から徒歩3分にあり、駅近で通勤通学に便利なマンションです。
このお部屋は2階以上に位置しているので、通行人や周囲の住人からの視線が気になりにくく、防犯面でも安心。建物のエントランスはオートロックがついており、インターホンにはTVモニタもついているため、相手の顔を確認してから来客対応することができます。
人気の南向きのお部屋。角部屋でもあるため、周囲の居住者の生活音も気になりにくい場所です。キッチンはシステムキッチン仕様になっていますので、お料理好きの方にもぴったり。また、バス・トイレは別で、のんびりお風呂タイムも楽しめるでしょう。
通信設備面ではBSアンテナがありCATVにも対応しているので、おうち時間も充実するでしょう(別途工事、契約料が必要な場合あり)。
建物にはエレベーターがついているので、重い荷物があっても安心。共用部には宅配ボックスが設定されているので、不在の時にも荷物を受け取ることができます。
このお部屋は2階以上に位置しているので、通行人や周囲の住人からの視線が気になりにくく、防犯面でも安心。建物のエントランスはオートロックがついており、インターホンにはTVモニタもついているため、相手の顔を確認してから来客対応することができます。
人気の南向きのお部屋。角部屋でもあるため、周囲の居住者の生活音も気になりにくい場所です。キッチンはシステムキッチン仕様になっていますので、お料理好きの方にもぴったり。また、バス・トイレは別で、のんびりお風呂タイムも楽しめるでしょう。
通信設備面ではBSアンテナがありCATVにも対応しているので、おうち時間も充実するでしょう(別途工事、契約料が必要な場合あり)。
建物にはエレベーターがついているので、重い荷物があっても安心。共用部には宅配ボックスが設定されているので、不在の時にも荷物を受け取ることができます。
お金・契約の情報
※「-」と表示されているものは、実際は料金が発生するものもございます。詳細はお問い合わせください。
| 家賃 | 17.5万円 | 管理費・共益費 | なし |
|---|---|---|---|
| 敷金 | 17.5万円 | 礼金 | 17.5万円 |
| 入居決定でお祝い金最大100,000円 | |||
| 保証金 | - | 償却・敷引 | - |
| 住宅保険料 | - | 更新料 | - |
| 保証会社利用 | 必須 | 保証会社名 | 全保連 |
| 保証会社費用 | - | 保証会社備考 | 全保連利用必 初回保証料賃料合計の30パーセント 更新保証料1年毎に1万円 口座振替手数料月330円 |
| 契約形態 | - | 契約期間 | - |
| 入居・引渡期間 | - | 現況 | - |
| 契約備考 | ルームクリーニング費用88000円(目安) エアコン内部洗浄費用26400円(目安) 2DK 二人入居可/事務所利用不可 損保【2万円2年】 バストイレ別、バルコニー、エアコン、ガスコンロ対応、クロゼット、TVインターホン、オートロック、室内洗濯置、陽当り良好、シューズボックス、システムキッチン、南向き、角住戸、温水洗浄便座、エレベーター、洗面所独立、2口コンロ、駐輪場、宅配ボックス、CATV、外壁タイル張り、2面採光、敷金1ヶ月、2沿線利用可、エアコン2台、駅徒歩5分以内、敷地内ごみ置き場、都市ガス、フローリング風フロアタイル、BS、礼金1ヶ月、通風良好 入居日:'26年2月下旬 | ||
部屋の情報
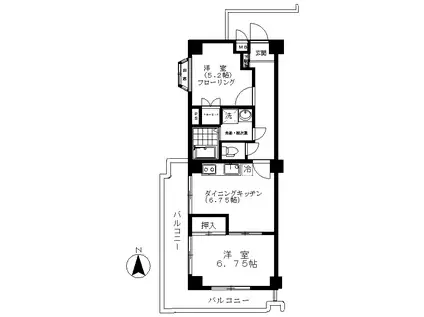
| 間取り | 2DK | 専有面積 | 46.98m2 |
|---|---|---|---|
| 所在階 / 向き | 2階 / 南 | バルコニー面積 | - |
| 水道 / ガス | - | ||
| 設備 | バス・トイレ別、2階以上、オートロック、テレビドアホン、宅配ボックス、システムキッチン、エアコン、エレベーター、温水洗浄便座、南向き、角部屋、バルコニー、洗髪洗面化粧台、2口コンロ、コンロ:ガス、CATV、BSアンテナ、洗濯機:室内 | ||
| 当社物件ID | 13948041 | ||
建物の情報
| 建物名 | ヒルズ下北沢 | ||
|---|---|---|---|
| 所在地 | 東京都世田谷区北沢 | ||
| 交通 | 小田急線 下北沢駅 徒歩3分 京王井の頭線 下北沢駅 徒歩3分 小田急線 東北沢駅 徒歩10分 | ||
| 階数 | 5階建 | 総戸数 | - |
| 築年月 | 1992年04月 / 築34年 | エレベーター | あり |
| 駐車場 | なし | バイク置き場 | - |
| 駐輪場 | あり | 管理人/管理会社 | - |
| 周辺環境 | その他 無印良品下北沢店(ショッピングセンター)まで220m その他 カルディコーヒーファーム下北沢店(スーパー)まで203m その他 ファミリーマート下北沢駅北店(コンビニ)まで94m その他 ローソン北沢店(コンビニ)まで128m その他 スターバックスコーヒー下北沢店(飲食店)まで72m その他 スーパーオオゼキ下北沢店(スーパー)まで323m | ||
| 建物種別 | マンション | 建物構造 | RC(鉄筋コンクリート) |
この部屋の取扱い不動産会社
| 会社名 | (株)アーバンコンサルタント(SUUMO経由) | ||
|---|---|---|---|
| 所在地 | 東京都世田谷区北沢2-36-14 ガーデンテラス下北沢2階 | 交通 | - |
| 営業時間 | 9:30~18:00 | 定休日 | 日・祝日 |
| 免許番号 | 東京都知事63388 | 取引態様 | 仲介 |
| 不動産会社管理番号 | 100480132176 | 当社管理番号 | 89 |
| 所属団体 | (公社)東京都宅地建物取引業協会会員 | ||
| 公正取引協議会 | (公社)首都圏不動産公正取引協議会加盟 | ||
| 取扱い物件情報 | 物件詳細へ | ||
※各種情報と現状に差異がある場合は、現状優先となります。問い合わせをすることで、より詳しい条件、情報を確認する事ができます。
提供:(株)アーバンコンサルタント(SUUMO経由)
この物件が気になったら掲載期限まであと11日
ヒルズ下北沢に条件(家賃・エリア)が近い物件一覧
| 写真 | 家賃 管理費等 | 敷金 礼金 | 間取り 専有面積 | 築年数 | 最寄り駅 所在地 | キープ | 詳細 |
|---|---|---|---|---|---|---|---|
タウンハウス 大田菜園長屋(2LDK) | |||||||
![]() | 15.4万円 5,000円 | 15.4万円 23.1万円 | 2LDK 52.17m2 | 築9年 | 京浜急行電鉄本線 雑色駅 徒歩8分 京浜急行電鉄本線 六郷土手駅 徒歩13分 東京都大田区東六郷3丁目 | 詳細を見る | |
マンション XEBEC池上Ⅲ(1K/2階) | |||||||
![]() | 10.8万円 1.5万円 | なし 10.8万円 | 1K 25.84m2 | 築7年 | 東急池上線 池上駅 徒歩5分 東急池上線 千鳥町駅 徒歩13分 東京都大田区池上3丁目 | 詳細を見る | |
マンション セントパレス大鳥居(1LDK/6階) | |||||||
![]() | 14万円 5,000円 | 14万円 14万円 | 1LDK 43.2m2 | 築19年 | 京急空港線 大鳥居駅 徒歩7分 東京都大田区東糀谷 | 詳細を見る | |
マンション ドゥーエ西馬込(2LDK/6階) | |||||||
![]() | 22.8万円 1.2万円 | 22.8万円 なし | 2LDK 54.96m2 | 築7年 | 都営浅草線 西馬込駅 徒歩8分 都営浅草線 馬込駅 徒歩16分 東急池上線 長原駅(東京) 徒歩20分 東京都大田区中馬込 | 詳細を見る | |
マンション スタイリオ池上WELL(1LDK/2階) | |||||||
![]() | 19.3万円 1.5万円 | 19.3万円 なし | 1LDK 42.63m2 | 築2年 | 東急池上線 池上駅 徒歩7分 東京都大田区池上7丁目 | 詳細を見る | |
マンション ドゥーエ蒲田(1K/7階) | |||||||
![]() | 10.6万円 7,000円 | 10.6万円 10.6万円 | 1K 22.08m2 | 築19年 | 東急池上線 蒲田駅 徒歩8分 東急多摩川線 蒲田駅 徒歩8分 JR京浜東北線 蒲田駅 徒歩9分 東京都大田区西蒲田 | 詳細を見る | |
マンション スタイリオ蒲田(1LDK/13階) | |||||||
![]() | 16.7万円 1万円 | 16.7万円 なし | 1LDK 37.72m2 | 築16年 | 東急池上線 蓮沼駅 徒歩5分 JR京浜東北線 蒲田駅 徒歩7分 京急本線 京急蒲田駅 徒歩16分 東京都大田区西蒲田 | 詳細を見る | |








