賃貸マンション
リルシア横濱西の賃貸物件情報(ワンルーム/7階)
| 家賃 | 管理費等 | 敷金 | 礼金 | 間取り | 専有面積 |
|---|---|---|---|---|---|
| 7.2万円 | 1.5万円 | なし | 7.2万円 | ワンルーム | 20.65m2 |
入居決定でお祝い金最大100,000円
Point
お電話でのお問い合わせは8時30分から20時まで可能です!お気軽にフリーダイヤルまでご連絡ください♪◇webでのお申し込みも対応可能です◇
提供:(株)ネクストライフ横浜店(SUUMO経由)

詳細情報 リルシア横濱西
物件紹介
リルシア横濱西は相鉄本線西横浜駅から徒歩7分にあり、駅近で通勤通学に便利なマンションです。
このお部屋は2階以上に位置しているので、通行人や周囲の住人からの視線が気になりにくく、防犯面でも安心。建物のエントランスはオートロックがついており、インターホンにはTVモニタもついているため、相手の顔を確認してから来客対応することができます。
フローリングのお部屋なのでお掃除もラクラク。キッチンはシステムキッチン仕様になっていますので、お料理好きの方にもぴったり。バス・トイレは別なので、のんびりお風呂タイムも楽しめるでしょう。また、雨の日でも浴室乾燥機を使えば、お洗濯も問題ありません。
通信設備面では、インターネットが無料で使えるので、月々の出費を抑えられるのも魅力です。また、BSアンテナ・CSアンテナがありCATVにも対応しているので、おうち時間も充実するでしょう(別途工事、BS・CS・CATVの契約料等が必要な場合あり)。
建物にはエレベーターがついているので、重い荷物があっても安心。共用部には宅配ボックスが設定されているので、不在の時にも荷物を受け取ることができます。また、ペット飼育の相談ができますので、あなたの大切な家族の一員も快適に暮らせるか、ぜひ確認してみてください。
このお部屋は2階以上に位置しているので、通行人や周囲の住人からの視線が気になりにくく、防犯面でも安心。建物のエントランスはオートロックがついており、インターホンにはTVモニタもついているため、相手の顔を確認してから来客対応することができます。
フローリングのお部屋なのでお掃除もラクラク。キッチンはシステムキッチン仕様になっていますので、お料理好きの方にもぴったり。バス・トイレは別なので、のんびりお風呂タイムも楽しめるでしょう。また、雨の日でも浴室乾燥機を使えば、お洗濯も問題ありません。
通信設備面では、インターネットが無料で使えるので、月々の出費を抑えられるのも魅力です。また、BSアンテナ・CSアンテナがありCATVにも対応しているので、おうち時間も充実するでしょう(別途工事、BS・CS・CATVの契約料等が必要な場合あり)。
建物にはエレベーターがついているので、重い荷物があっても安心。共用部には宅配ボックスが設定されているので、不在の時にも荷物を受け取ることができます。また、ペット飼育の相談ができますので、あなたの大切な家族の一員も快適に暮らせるか、ぜひ確認してみてください。
お金・契約の情報
※「-」と表示されているものは、実際は料金が発生するものもございます。詳細はお問い合わせください。
| 家賃 | 7.2万円 | 管理費・共益費 | 1.5万円 |
|---|---|---|---|
| 敷金 | なし | 礼金 | 7.2万円 |
| 入居決定でお祝い金最大100,000円 | |||
| 保証金 | - | 償却・敷引 | - |
| 住宅保険料 | - | 更新料 | - |
| 保証会社利用 | 必須 | 保証会社名 | - |
| 保証会社費用 | - | 保証会社備考 | 保証会社利用必 初回保証料:月額総賃料の50%、年間保証料:10000円 |
| 契約形態 | - | 契約期間 | - |
| 入居・引渡期間 | - | 現況 | - |
| 入居可能条件 | ペット相談 | ||
| 契約備考 | 更新事務手数料:新賃料0.55ヶ月分鍵交換代:23100円安心入居サポート:18700円引越虫駆除サービス:17600円ペット飼育時:敷金プラス1ヶ月/退去時償却(犬または猫1匹まで)短期解約違約金:1年未満の解約で総賃料1ヶ月分退去時のクリーニング費用(実費)は借主負担になります告知事項有 更新料 新賃料1.00ヶ月分 ワンルーム ペット相談 普通借家2年 損保【2万円2年】 バストイレ別、バルコニー、エアコン、ガスコンロ対応、クロゼット、フローリング、TVインターホン、浴室乾燥機、オートロック、室内洗濯置、シューズボックス、システムキッチン、温水洗浄便座、脱衣所、エレベーター、洗面所独立、洗面化粧台、2口コンロ、宅配ボックス、CATV、外壁タイル張り、最上階、敷金不要、防犯カメラ、ペット相談、分譲賃貸、2沿線利用可、ディンプルキー、CS、ネット使用料不要、24時間換気システム、2駅利用可、3駅以上利用可、駅徒歩10分以内、24時間ゴミ出し可、敷地内ごみ置き場、都市ガス、BS、初期費用カード決済可 敷金積み増し【ペット飼育の場合敷金1ヶ月(総額)】 入居日:'26年2月上旬 | ||
部屋の情報
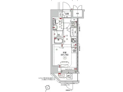
| 間取り | ワンルーム | 専有面積 | 20.65m2 |
|---|---|---|---|
| 所在階 / 向き | 7階 / 北西 | バルコニー面積 | - |
| 水道 / ガス | - | ||
| 設備 | バス・トイレ別、2階以上、オートロック、テレビドアホン、宅配ボックス、浴室乾燥機、インターネット対応、システムキッチン、エアコン、エレベーター、温水洗浄便座、バルコニー、フローリング、洗髪洗面化粧台、2口コンロ、コンロ:ガス、CATV、CSアンテナ、BSアンテナ、インターネット使用料無料、洗濯機:室内 | ||
| 当社物件ID | 160073078 | ||
建物の情報
| 建物名 | リルシア横濱西 | ||
|---|---|---|---|
| 所在地 | 神奈川県横浜市西区中央 | ||
| 交通 | 相鉄本線 西横浜駅 徒歩7分 京急本線 戸部駅 徒歩8分 相鉄本線 平沼橋駅 徒歩13分 | ||
| 階数 | 7階建 | 総戸数 | - |
| 築年月 | 2024年01月 / 築2年 | エレベーター | あり |
| 駐車場 | なし | バイク置き場 | - |
| 駐輪場 | - | 管理人/管理会社 | - |
| 周辺環境 | その他 まいばすけっと 西横浜駅東店(スーパー)まで148m その他 ローソンストア100 LS西横浜店(コンビニ)まで249m その他 ファミリーマート 横浜戸部中央店(コンビニ)まで326m その他 ドラッグストアスマイル藤棚店(ドラッグストア)まで493m その他 マルエツ 天王町店(その他)まで1041m その他 横浜ポルタ(ショッピングセンター)まで1781m | ||
| 建物種別 | マンション | 建物構造 | RC(鉄筋コンクリート) |
この部屋の取扱い不動産会社
| 会社名 | (株)ネクストライフ新横浜店(SUUMO経由) | ||
|---|---|---|---|
| 所在地 | 神奈川県横浜市港北区新横浜2-5-19 AXIS SHINYOKOHAMA6階 | 交通 | - |
| 営業時間 | 10:00~18:30(電話8:30~21:00) | 定休日 | 年末年始 |
| 免許番号 | 国土交通大臣8175 | 取引態様 | 仲介 |
| 不動産会社管理番号 | 100478619732 | 当社管理番号 | 89 |
| 所属団体 | (公社)神奈川県宅地建物取引業協会会員 | ||
| 公正取引協議会 | (公社)首都圏不動産公正取引協議会加盟 | ||
| 取扱い物件情報 | 物件詳細へ | ||
※各種情報と現状に差異がある場合は、現状優先となります。問い合わせをすることで、より詳しい条件、情報を確認する事ができます。
提供:(株)ネクストライフ新横浜店(SUUMO経由)
この物件が気になったら掲載期限まであと11日
リルシア横濱西に条件(家賃・エリア)が近い物件一覧
| 写真 | 家賃 管理費等 | 敷金 礼金 | 間取り 専有面積 | 築年数 | 最寄り駅 所在地 | キープ | 詳細 |
|---|---|---|---|---|---|---|---|
マンション 栄ビル(1DK/3階) | |||||||
![]() | 6万円 なし | 6万円 6万円 | 1DK 23.49m2 | 築41年 | 相模鉄道本線 西横浜駅 徒歩8分 湘南新宿ライン宇須 保土ケ谷駅 徒歩18分 神奈川県横浜市西区久保町 | 詳細を見る | |
アパート グランビュー百合丘(1K/1階) | |||||||
![]() | 4.4万円 3,000円 | なし なし | 1K 17.03m2 | 築17年 | 小田急線 百合ケ丘駅 徒歩8分 小田急線 読売ランド前駅 徒歩11分 小田急線 新百合ケ丘駅 徒歩23分 神奈川県川崎市麻生区高石 | 詳細を見る | |
アパート AZEST-RENT武蔵新城(ワンルーム/2階) | |||||||
![]() | 7万円 3,000円 | なし 7万円 | ワンルーム 17.51m2 | 築8年 | JR南武線 武蔵新城駅 徒歩5分 JR南武線 武蔵中原駅 徒歩22分 東急田園都市線 高津駅(神奈川) 徒歩25分 神奈川県川崎市中原区上新城 | 詳細を見る | |
マンション ランドフォレスト川崎浜町(ワンルーム/1階) | |||||||
![]() | 5.4万円 3,000円 | なし なし | ワンルーム 22.86m2 | 築36年 | 南武線 浜川崎駅 徒歩12分 神奈川県川崎市川崎区浜町2丁目 | 詳細を見る | |
マンション ビラージュ・ド・フルール(1K/2階) | |||||||
![]() | 5.3万円 3,000円 | なし 5.3万円 | 1K 20.8m2 | 築34年 | 小田急線 生田駅(神奈川) 徒歩5分 小田急線 読売ランド前駅 徒歩12分 JR南武線 稲田堤駅 徒歩29分 神奈川県川崎市多摩区栗谷 | 詳細を見る | |
テラスハウス セブンハイム(1DK) | |||||||
![]() | 5.5万円 なし | 5.5万円 なし | 1DK 35.96m2 | 築35年 | 京浜急行電鉄本線 堀ノ内駅 徒歩7分 神奈川県横須賀市三春町4丁目 | 詳細を見る | |
アパート オリーブガーデン(1DK/1階) | |||||||
![]() | 8.5万円 なし | 8.5万円 8.5万円 | 1DK 36.43m2 | 築22年 | 京急逗子線 逗子・葉山駅 徒歩4分 JR横須賀線 逗子駅 徒歩6分 神奈川県逗子市逗子 | 詳細を見る | |
マンション 鎌倉レジデンス(3LDK/2階) | |||||||
![]() | 8.3万円 5,000円 | なし なし | 3LDK 77.58m2 | 築40年 | 神奈川県鎌倉市今泉 | 詳細を見る | |








