賃貸マンション
京都市烏丸線 今出川駅 徒歩15分 10階建 築29年の賃貸物件情報(2K/10階)
| 家賃 | 管理費等 | 敷金 | 礼金 | 間取り | 専有面積 |
|---|---|---|---|---|---|
| 7.4万円 | 6,000円 | なし | なし | 2K | 31.65m2 |
入居決定でお祝い金最大100,000円
- 保証金
- -
- 償却・敷引
- -
- 築年数
- 築29年
- 所在階
- 10階
- 向き
- 東
- 交通
- 京都市烏丸線 今出川駅 徒歩15分
京都市烏丸線 丸太町駅(京都市営) 徒歩18分
- 所在地
- 京都府京都市上京区主計町
[地図を表示]
Point
堀川通り沿い2人入居可 コンビニ歩1分で便利。光ファイバー対応。2人入居・シェアOK
提供:株式会社 京都ライフ 北山店(賃貸スモッカ経由)

詳細情報 京都市烏丸線 今出川駅 徒歩15分 10階建 築29年
物件紹介
京都市烏丸線今出川駅から徒歩15分にあるマンションです。
このお部屋は2階以上に位置しているので通行人や周囲の住人からの視線が気になりにくく、建物のエントランスはオートロックがついているので防犯性が高くなっています。
人気の角部屋で周囲の居住者の生活音も気になりにくく、また、フローリングのお部屋なのでお掃除もラクラク。バス・トイレ別の仕様で、のんびりお風呂タイムも楽しめます。
通信設備面では、インターネット接続が可能です。また、BSアンテナもありますので、おうち時間も充実するでしょう(別途工事、契約料が必要な場合あり)。
建物にはエレベーターがついているので、重い荷物があっても安心。
このお部屋は2階以上に位置しているので通行人や周囲の住人からの視線が気になりにくく、建物のエントランスはオートロックがついているので防犯性が高くなっています。
人気の角部屋で周囲の居住者の生活音も気になりにくく、また、フローリングのお部屋なのでお掃除もラクラク。バス・トイレ別の仕様で、のんびりお風呂タイムも楽しめます。
通信設備面では、インターネット接続が可能です。また、BSアンテナもありますので、おうち時間も充実するでしょう(別途工事、契約料が必要な場合あり)。
建物にはエレベーターがついているので、重い荷物があっても安心。
お金・契約の情報
※「-」と表示されているものは、実際は料金が発生するものもございます。詳細はお問い合わせください。
| 家賃 | 7.4万円 | 管理費・共益費 | 6,000円 |
|---|---|---|---|
| 敷金 | なし | 礼金 | なし |
| 入居決定でお祝い金最大100,000円 | |||
| 保証金 | - | 償却・敷引 | - |
| 住宅保険料 | 住宅保険料あり | 更新料 | - |
| 契約形態 | - | 契約期間 | 2年 |
| 入居・引渡期間 | 即時 | 現況 | 空室 |
| 契約備考 | 京都市上京区 千本丸太町エリアの2Kマンションです。オートロックでセキュリティも安心。コンビニ、スーパー、ドラッグストアなど近くにあって便利ですよ。光ファイバー対応しています。 水道代:2,200円 抗菌除菌処理代:25,300円 入居者サポート:22,000円 更新料:1ヶ月 その他設備/条件:最上階の物件、即入居可 | ||
部屋の情報
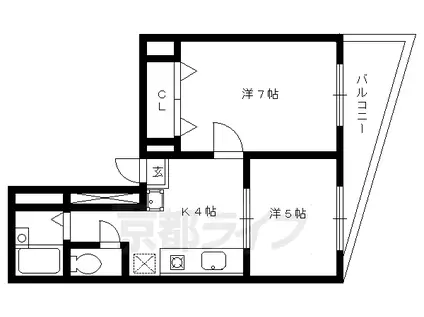
| 間取り | 2K | 専有面積 | 31.65m2 |
|---|---|---|---|
| 間取り詳細 | 洋室(7帖)、洋室(5帖)、K(4帖) | ||
| 所在階 / 向き | 10階 / 東 | バルコニー面積 | - |
| 水道 / ガス | ガス【都市】 | ||
| 設備 | バス・トイレ別、2階以上、オートロック、インターネット対応、エアコン、エレベーター、角部屋、バルコニー、フローリング、BSアンテナ、洗濯機:室内 | ||
| 当社物件ID | 160222846 | ||
建物の情報
| 建物名 | 京都市烏丸線 今出川駅 徒歩15分 10階建 築29年 | ||
|---|---|---|---|
| 所在地 | 京都府京都市上京区主計町 | ||
| 交通 | 京都市烏丸線 今出川駅 徒歩15分 京都市烏丸線 丸太町駅(京都市営) 徒歩18分 | ||
| 階数 | 10階建 | 総戸数 | - |
| 築年月 | 1997年12月 / 築29年 | エレベーター | あり |
| 駐車場 | - | バイク置き場 | - |
| 駐輪場 | あり | 管理人/管理会社 | - |
| 建物種別 | マンション | 建物構造 | 気泡コン |
この部屋の取扱い不動産会社
| 会社名 | 株式会社 京都ライフ 北山店(賃貸スモッカ経由) | ||
|---|---|---|---|
| 所在地 | 京都市北区上賀茂岩ヶ垣内町98-2 | 交通 | - |
| 営業時間 | - | 定休日 | - |
| 免許番号 | 京都府知事(11)第6353号 | 取引態様 | 仲介 |
| 不動産会社管理番号 | kyotolife_27300-1002-13 | 当社管理番号 | 463 |
| 所属団体 | 京都府宅地建物取引業協会\n公益社団法人近畿地区不動産公正取引協議会 | ||
| 公正取引協議会 | 全国宅地建物取引業保証協会 | ||
| 取扱い物件情報 | 物件詳細へ | ||
※各種情報と現状に差異がある場合は、現状優先となります。問い合わせをすることで、より詳しい条件、情報を確認する事ができます。
提供:株式会社 京都ライフ 北山店(賃貸スモッカ経由)
この物件が気になったら掲載期限まであと5日
京都市烏丸線 今出川駅 徒歩15分 10階建 築29年に条件(家賃・エリア)が近い物件一覧
| 写真 | 家賃 管理費等 | 敷金 礼金 | 間取り 専有面積 | 築年数 | 最寄り駅 所在地 | キープ | 詳細 |
|---|---|---|---|---|---|---|---|
アパート 奈良線 木幡駅(JR) 徒歩14分 築21年(1K/1階) | |||||||
![]() | 5.8万円 7,000円 | なし 5.8万円 | 1K 19.87m2 | 築21年 | 奈良線 木幡駅(JR) 徒歩14分 京阪電気鉄道宇治線 黄檗駅(京阪) 徒歩19分 京都府宇治市木幡 | 詳細を見る | |
アパート サンコート(1LDK/1階) | |||||||
![]() | 5.6万円 3,500円 | なし 5.6万円 | 1LDK 42.5m2 | 築12年 | JR山陰本線 園部駅 徒歩29分 JR山陰本線 船岡駅(京都) 徒歩54分 京都府南丹市園部町横田1号 | 詳細を見る | |
アパート 京都市烏丸線 今出川駅 徒歩13分 築10年(2LDK/2階) | |||||||
![]() | 11.8万円 4,500円 | 2万円 23万円 | 2LDK 69.76m2 | 築10年 | 京都市烏丸線 今出川駅 徒歩13分 京福北野線 北野白梅町駅 徒歩20分 京都府京都市上京区下石橋南半町 | 詳細を見る | |
マンション コスモ星の子ハイツ(2DK/4階) | |||||||
![]() | 8.3万円 9,000円 | なし 8.3万円 | 2DK 50m2 | 築41年 | 地下鉄烏丸線 今出川駅 徒歩22分 京都府京都市上京区多門町 | 詳細を見る | |
マンション 山陰本線 二条駅 徒歩17分 築11年(1K/1階) | |||||||
![]() | 5.6万円 6,000円 | なし 10万円 | 1K 26m2 | 築11年 | 山陰本線 二条駅 徒歩17分 京都市烏丸線 今出川駅 徒歩28分 京都府京都市上京区四番町 | 詳細を見る | |
アパート 阪急電鉄京都線 西向日駅 徒歩7分 築56年(2K/2階) | |||||||
![]() | 4.5万円 なし | 10万円 4.5万円 | 2K 26.98m2 | 築56年 | 阪急電鉄京都線 西向日駅 徒歩7分 東海道本線 長岡京駅 徒歩20分 京都府向日市上植野町地後 | 詳細を見る | |
マンション 近鉄京都線 小倉駅(京都) 徒歩3分 築36年(2LDK/3階) | |||||||
![]() | 7万円 1万円 | なし 3.5万円 | 2LDK 42.76m2 | 築36年 | 近鉄京都線 小倉駅(京都) 徒歩3分 近鉄京都線 伊勢田駅 徒歩13分 京都府宇治市小倉町 | 詳細を見る | |
マンション 近鉄京都線 大久保駅(京都) 徒歩3分 築33年(1DK/4階) | |||||||
![]() | 5.6万円 3,500円 | 5万円 10万円 | 1DK 28.49m2 | 築33年 | 近鉄京都線 大久保駅(京都) 徒歩3分 近鉄京都線 久津川駅 徒歩9分 京都府宇治市大久保町上ノ山 | 詳細を見る | |









