賃貸マンション
メインステージ日本橋箱崎の賃貸物件情報(1K/8階)
| 家賃 | 管理費等 | 敷金 | 礼金 | 間取り | 専有面積 |
|---|---|---|---|---|---|
| 8.3万円 | 1万円 | 8.3万円 | 12.45万円 | 1K | 20.87m2 |
入居決定でお祝い金最大100,000円
- 保証金
- -
- 償却・敷引
- -
- 築年数
- 築28年
- 所在階
- 8階
- 向き
- -
Point
★現地待ち合わせ・リモート内見対応致します★
提供:株式会社サンコーホーム(賃貸スモッカ経由)

詳細情報 メインステージ日本橋箱崎
物件紹介
メインステージ日本橋箱崎は東京地下鉄半蔵門線水天宮前駅から徒歩2分にあり、駅近で通勤通学に便利なマンションです。
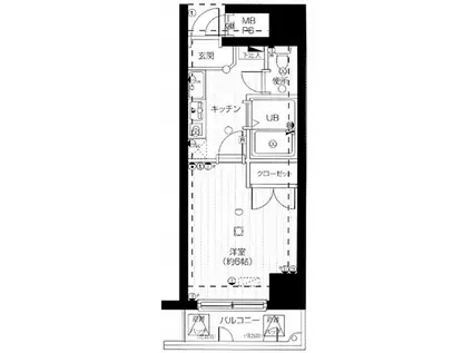
このお部屋は2階以上に位置しているので通行人や周囲の住人からの視線が気になりにくく、建物のエントランスはオートロックがついているので防犯性が高くなっています。
フローリングのお部屋なのでお掃除もラクラク。キッチンはシステムキッチン仕様になっていますので、お料理好きの方にもぴったり。また、バス・トイレは別で、のんびりお風呂タイムも楽しめるでしょう。
通信設備面では、インターネット接続が可能です。また、BSアンテナがありCATVにも対応しているので、おうち時間も充実するでしょう(別途工事、契約料が必要な場合あり)。
建物にはエレベーターがついているので、重い荷物があっても安心。共用部には宅配ボックスが設定されているので、不在の時にも荷物を受け取ることができます。
このお部屋は2階以上に位置しているので通行人や周囲の住人からの視線が気になりにくく、建物のエントランスはオートロックがついているので防犯性が高くなっています。
フローリングのお部屋なのでお掃除もラクラク。キッチンはシステムキッチン仕様になっていますので、お料理好きの方にもぴったり。また、バス・トイレは別で、のんびりお風呂タイムも楽しめるでしょう。
通信設備面では、インターネット接続が可能です。また、BSアンテナがありCATVにも対応しているので、おうち時間も充実するでしょう(別途工事、契約料が必要な場合あり)。
建物にはエレベーターがついているので、重い荷物があっても安心。共用部には宅配ボックスが設定されているので、不在の時にも荷物を受け取ることができます。
お金・契約の情報
※「-」と表示されているものは、実際は料金が発生するものもございます。詳細はお問い合わせください。
| 家賃 | 8.3万円 | 管理費・共益費 | 1万円 |
|---|---|---|---|
| 敷金 | 8.3万円 | 礼金 | 12.45万円 |
| 入居決定でお祝い金最大100,000円 | |||
| 保証金 | - | 償却・敷引 | - |
| 住宅保険料 | 住宅保険料あり | 更新料 | - |
| 契約形態 | - | 契約期間 | 2年 |
| 入居・引渡期間 | 相談 | 現況 | 居住中 |
| 契約備考 | 初期費用のクレジットカード払いや各種分割払い可能です。諸条件ご相談ください。その他インターネット掲載物件は当店で併せてご紹介可能です。 更新料:1.5ヶ月 保証会社:利用必須 全保連 初回保証料は【賃料+管理費】の50%です。 ※学生応援キャンペーン:学生の方は保証料無料!! その他設備/条件:免震・耐震・制震、防犯カメラ、敷地内ゴミ置場 | ||
部屋の情報
| 間取り | 1K | 専有面積 | 20.87m2 |
|---|---|---|---|
| 間取り詳細 | 洋室(6帖)、K(2帖) | ||
| 所在階 / 向き | 8階 / - | バルコニー面積 | - |
| 水道 / ガス | ガス【都市】 | ||
| 設備 | バス・トイレ別、2階以上、オートロック、宅配ボックス、インターネット対応、システムキッチン、エアコン、エレベーター、バルコニー、フローリング、コンロ:ガス、CATV、BSアンテナ、洗濯機:室内 | ||
| 当社物件ID | 159943080 | ||
建物の情報
| 建物名 | メインステージ日本橋箱崎 | ||
|---|---|---|---|
| 所在地 | 東京都中央区日本橋蛎殻町1丁目 | ||
| 交通 | 東京地下鉄半蔵門線 水天宮前駅 徒歩2分 東京地下鉄日比谷線 人形町駅 徒歩7分 東京地下鉄東西線 茅場町駅 徒歩9分 | ||
| 階数 | 10階建 | 総戸数 | - |
| 築年月 | 1998年11月 / 築28年 | エレベーター | あり |
| 駐車場 | - | バイク置き場 | - |
| 駐輪場 | あり | 管理人/管理会社 | - |
| 建物種別 | マンション | 建物構造 | SRC(鉄骨鉄筋コンクリート) |
この部屋の取扱い不動産会社
| 会社名 | 株式会社サンコーホーム(賃貸スモッカ経由) | ||
|---|---|---|---|
| 所在地 | 東京都台東区上野5丁目23-8 キューアス御徒町ビル3F | 交通 | - |
| 営業時間 | - | 定休日 | - |
| 免許番号 | 東京都知事免許(2)第96594号 | 取引態様 | 仲介 |
| 不動産会社管理番号 | sankohome_120160010057536 | 当社管理番号 | 463 |
| 所属団体 | (公社)全国宅地建物取引業協会連合会\n公益社団法人首都圏不動産公正取引協議会 | ||
| 公正取引協議会 | (公社)全国宅地建物取引業保証協会 | ||
| 取扱い物件情報 | 物件詳細へ | ||
※各種情報と現状に差異がある場合は、現状優先となります。問い合わせをすることで、より詳しい条件、情報を確認する事ができます。
提供:株式会社サンコーホーム(賃貸スモッカ経由)
この物件が気になったら掲載期限まであと6日
メインステージ日本橋箱崎に条件(家賃・エリア)が近い物件一覧
| 写真 | 家賃 管理費等 | 敷金 礼金 | 間取り 専有面積 | 築年数 | 最寄り駅 所在地 | キープ | 詳細 |
|---|---|---|---|---|---|---|---|
アパート リブリ・LE・LIEN(1LDK/2階) | |||||||
![]() | 12万円 4,000円 | なし 12万円 | 1LDK 36.3m2 | 築10年 | 東京地下鉄日比谷線 南千住駅 徒歩16分 常磐線 南千住駅 徒歩19分 東京都台東区清川1丁目 | 詳細を見る | |
マンション ZOOM秋葉原イースト(1K/4階) | |||||||
![]() | 12.8万円 1万円 | 12.8万円 12.8万円 | 1K 25.64m2 | 築6年 | 総武・中央緩行線 浅草橋駅 徒歩5分 東京地下鉄日比谷線 秋葉原駅 徒歩7分 東京都浅草線 浅草橋駅 徒歩8分 東京都台東区浅草橋4丁目 | 詳細を見る | |
マンション メイクスデザイン茅場町(1K/6階) | |||||||
![]() | 12万円 1.5万円 | 12万円 12万円 | 1K 29.29m2 | 築19年 | 東京地下鉄日比谷線 茅場町駅 徒歩7分 東京地下鉄東西線 茅場町駅 徒歩7分 京葉線 八丁堀駅(東京) 徒歩8分 東京都中央区新川1丁目 | 詳細を見る | |
マンション ワンリーフ(1K/1階) | |||||||
![]() | 8.8万円 4,600円 | なし 13.2万円 | 1K 25.5m2 | 築10年 | 東京地下鉄日比谷線 三ノ輪駅 徒歩4分 東京地下鉄日比谷線 入谷駅(東京) 徒歩10分 つくばエクスプレス 浅草駅(つくばEXP) 徒歩17分 東京都台東区竜泉2丁目 | 詳細を見る | |
マンション スカイコート両国壱番館(ワンルーム/5階) | |||||||
![]() | 9.11万円 5,900円 | 9.11万円 9.11万円 | ワンルーム 23.4m2 | 築24年 | 総武・中央緩行線 両国駅 徒歩3分 東京都浅草線 東日本橋駅 徒歩11分 東京都新宿線 浜町駅 徒歩16分 東京都墨田区両国2丁目 | 詳細を見る | |
マンション コンフォリア押上(1K/3階) | |||||||
![]() | 12.2万円 8,000円 | 12.2万円 なし | 1K 27.3m2 | 築19年 | 東京地下鉄半蔵門線 押上駅 徒歩2分 東京都墨田区業平4丁目 | 詳細を見る | |
マンション プライマル西大島駅前(1DK/11階) | |||||||
![]() | 12.9万円 5,000円 | 12.9万円 なし | 1DK 25.28m2 | 築4年 | 都営新宿線 西大島駅 徒歩2分 東京メトロ半蔵門線 住吉駅(東京) 徒歩10分 JR総武線 亀戸駅 徒歩14分 東京都江東区大島 | 詳細を見る | |
マンション 第2EXCEL MINYU(1K/3階) | |||||||
![]() | 8万円 5,000円 | 8万円 8万円 | 1K 22.44m2 | 築24年 | 東京地下鉄日比谷線 入谷駅(東京) 徒歩6分 東京地下鉄日比谷線 三ノ輪駅 徒歩10分 山手線 鶯谷駅 徒歩13分 東京都台東区下谷3丁目 | 詳細を見る | |









