賃貸マンション
パークタワー芝浦ベイワードアーバンウイングの賃貸物件情報(2LDK/10階)
| 家賃 | 管理費等 | 敷金 | 礼金 | 間取り | 専有面積 |
|---|---|---|---|---|---|
| 41.8万円 | 1.5万円 | 41.8万円 | 41.8万円 | 2LDK | 83.33m2 |
入居決定でお祝い金最大100,000円
- 保証金
- -
- 償却・敷引
- -
- 築年数
- 築21年
- 所在階
- 10階
- 向き
- 南
Point
オンライン内見・契約実施中!初期費用クレカ決済もご相談ください!お部屋探しはピアホームにお任せください♪
提供:PRA(株)青山店(SUUMO経由)

詳細情報 パークタワー芝浦ベイワードアーバンウイング
物件紹介
パークタワー芝浦ベイワードアーバンウイングは新交通ゆりかもめ芝浦ふ頭駅から徒歩8分にあり、駅近で通勤通学に便利なマンションです。
このお部屋は2階以上に位置しているので、通行人や周囲の住人からの視線が気になりにくく、防犯面でも安心。建物のエントランスはオートロックがついており、インターホンにはTVモニタもついているため、相手の顔を確認してから来客対応することができます。
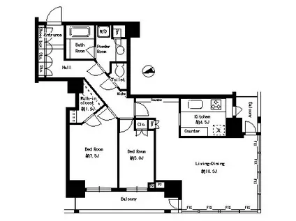
こちらは楽器相談が可能な物件。楽器演奏をお考えの方はぜひ相談してみてください。人気の南向き・フローリングのお部屋。角部屋でもあるため、周囲の居住者の生活音も気になりにくい場所です。室内にはウォークインクローゼットがありますので、たくさんの荷物も効率的に収納ができます。キッチンはシステムキッチン仕様になっていますので、お料理好きの方にもぴったり。バス・トイレは別なので、のんびりお風呂タイムも楽しめるでしょう。また、雨の日でも浴室乾燥機を使えば、お洗濯も問題ありません。
通信設備面では、インターネット接続が可能です。また、BSアンテナ・CSアンテナがありCATVにも対応しているので、おうち時間も充実するでしょう(別途工事、契約料が必要な場合あり)。
床暖房があり、冬も足元から暖かく快適に過ごすことができます。建物にはエレベーターがついているので、重い荷物があっても安心。共用部には宅配ボックスが設定されているので、不在の時にも荷物を受け取ることができます。また、ペット飼育の相談ができますので、あなたの大切な家族の一員も快適に暮らせるか、ぜひ確認してみてください。
このお部屋は2階以上に位置しているので、通行人や周囲の住人からの視線が気になりにくく、防犯面でも安心。建物のエントランスはオートロックがついており、インターホンにはTVモニタもついているため、相手の顔を確認してから来客対応することができます。
こちらは楽器相談が可能な物件。楽器演奏をお考えの方はぜひ相談してみてください。人気の南向き・フローリングのお部屋。角部屋でもあるため、周囲の居住者の生活音も気になりにくい場所です。室内にはウォークインクローゼットがありますので、たくさんの荷物も効率的に収納ができます。キッチンはシステムキッチン仕様になっていますので、お料理好きの方にもぴったり。バス・トイレは別なので、のんびりお風呂タイムも楽しめるでしょう。また、雨の日でも浴室乾燥機を使えば、お洗濯も問題ありません。
通信設備面では、インターネット接続が可能です。また、BSアンテナ・CSアンテナがありCATVにも対応しているので、おうち時間も充実するでしょう(別途工事、契約料が必要な場合あり)。
床暖房があり、冬も足元から暖かく快適に過ごすことができます。建物にはエレベーターがついているので、重い荷物があっても安心。共用部には宅配ボックスが設定されているので、不在の時にも荷物を受け取ることができます。また、ペット飼育の相談ができますので、あなたの大切な家族の一員も快適に暮らせるか、ぜひ確認してみてください。
お金・契約の情報
※「-」と表示されているものは、実際は料金が発生するものもございます。詳細はお問い合わせください。
| 家賃 | 41.8万円 | 管理費・共益費 | 1.5万円 |
|---|---|---|---|
| 敷金 | 41.8万円 | 礼金 | 41.8万円 |
| 入居決定でお祝い金最大100,000円 | |||
| 保証金 | - | 償却・敷引 | - |
| 住宅保険料 | - | 更新料 | - |
| 保証会社利用 | 必須 | 保証会社名 | - |
| 保証会社費用 | - | 保証会社備考 | 保証会社利用必 【クレディセゾン】初回保証料:月額支払総額の50%・次年度10000~15000円/年 |
| 契約形態 | 定期借家 | 契約期間 | 2年 |
| 入居・引渡期間 | 即時 | 現況 | - |
| 入居可能条件 | 楽器相談、ペット相談 | ||
| 契約備考 | 常駐管理/※1年未満解約時賃料1ヶ月分の違約金※同タイプ・別階の内観写真を掲載している場合があります。図面と現況が異なる場合は現況を優先いたします。 退去時清掃費:128328円■ペット飼育時:敷金1ヶ月積み増し 2LDK 二人入居可/ペット相談/楽器相談 定期借家2年 損保【2万円2年】 バストイレ別、バルコニー、エアコン、ガスコンロ対応、クロゼット、フローリング、TVインターホン、浴室乾燥機、オートロック、室内洗濯置、陽当り良好、シューズボックス、システムキッチン、南向き、追焚機能浴室、角住戸、温水洗浄便座、エレベーター、洗面所独立、2口コンロ、駐輪場、宅配ボックス、CATV、光ファイバー、外壁タイル張り、3口以上コンロ、防犯カメラ、ペット相談、オートバス、ウォークインクロゼット、保証人不要、二人入居相談、全居室フローリング、2面バルコニー、CS、床暖房、楽器相談、南面リビング、タワー型マンション、24時間ゴミ出し可、敷地内ごみ置き場、都市ガス、南面バルコニー、BS、初期費用カード決済可 | ||
部屋の情報
| 間取り | 2LDK | 専有面積 | 83.33m2 |
|---|---|---|---|
| 所在階 / 向き | 10階 / 南 | バルコニー面積 | - |
| 水道 / ガス | - | ||
| 設備 | バス・トイレ別、2階以上、オートロック、テレビドアホン、宅配ボックス、浴室乾燥機、ウォークインクローゼット、追い焚き、インターネット対応、システムキッチン、エアコン、エレベーター、温水洗浄便座、南向き、角部屋、バルコニー、フローリング、洗髪洗面化粧台、タワーマンション、床暖房、2口コンロ、コンロ:ガス、CATV、CSアンテナ、BSアンテナ、洗濯機:室内 | ||
| 当社物件ID | 6018530 | ||
建物の情報
| 建物名 | パークタワー芝浦ベイワードアーバンウイング | ||
|---|---|---|---|
| 所在地 | 東京都港区芝浦 | ||
| 交通 | JR山手線 田町駅(東京) 徒歩8分 都営浅草線 三田駅(東京) 徒歩9分 新交通ゆりかもめ 芝浦ふ頭駅 徒歩11分 | ||
| 階数 | 30階建 | 総戸数 | - |
| 築年月 | 2005年07月 / 築21年 | エレベーター | あり |
| 駐車場 | なし | バイク置き場 | - |
| 駐輪場 | あり | 管理人/管理会社 | - |
| 周辺環境 | その他 セブン-イレブン 赤坂氷川坂下店(コンビニ)まで3312m その他 まいばすけっと芝浦1丁目(スーパー)まで445m その他 石川島記念病院(病院)まで3897m その他 芝浦小学校(小学校)まで921m その他 港南中学校(中学校)まで1485m | ||
| 建物種別 | マンション | 建物構造 | RC(鉄筋コンクリート) |
この部屋の取扱い不動産会社
| 会社名 | SEG(株)PeerHome新橋店(SUUMO経由) | ||
|---|---|---|---|
| 所在地 | 東京都港区西新橋1-5-10 TJ内幸町ビル10階 | 交通 | - |
| 営業時間 | 9:00-18:30 | 定休日 | - |
| 免許番号 | 東京都知事103362 | 取引態様 | 仲介 |
| 不動産会社管理番号 | 100476673986 | 当社管理番号 | 89 |
| 取扱い物件情報 | 物件詳細へ | ||
※各種情報と現状に差異がある場合は、現状優先となります。問い合わせをすることで、より詳しい条件、情報を確認する事ができます。
提供:SEG(株)PeerHome新橋店(SUUMO経由)
この物件が気になったら掲載期限まであと11日
パークタワー芝浦ベイワードアーバンウイングに条件(家賃・エリア)が近い物件一覧
| 写真 | 家賃 管理費等 | 敷金 礼金 | 間取り 専有面積 | 築年数 | 最寄り駅 所在地 | キープ | 詳細 |
|---|---|---|---|---|---|---|---|
マンション パークアクシス豊洲(1LDK/3階) | |||||||
![]() | 25.5万円 6,000円 | 25.5万円 25.5万円 | 1LDK 53.13m2 | 築18年 | 東京メトロ有楽町線 豊洲駅 徒歩8分 新交通ゆりかもめ 豊洲駅 徒歩11分 東京メトロ有楽町線 月島駅 徒歩16分 東京都江東区豊洲 | 詳細を見る | |
マンション DAIWAリバーゲートレジデンス(1LDK/7階) | |||||||
![]() | 31.8万円 1.5万円 | 31.8万円 31.8万円 | 1LDK 76.13m2 | 築32年 | 東京メトロ半蔵門線 水天宮前駅 徒歩4分 東京メトロ日比谷線 茅場町駅 徒歩14分 都営新宿線 浜町駅 徒歩17分 東京都中央区日本橋箱崎町 | 詳細を見る | |
マンション コンフォリア新宿イーストサイドタワー(2LDK/20階) | |||||||
![]() | 65.8万円 なし | 131.6万円 なし | 2LDK 100.35m2 | 築15年 | 東京都大江戸線 東新宿駅 徒歩5分 東京都新宿区新宿6丁目 | 詳細を見る | |
マンション パークタワー芝浦ベイワード アーバンウイ(2LDK/17階) | |||||||
![]() | 39.2万円 1万円 | 39.2万円 39.2万円 | 2LDK 71.64m2 | 築21年 | ゆりかもめ 芝浦ふ頭駅 徒歩8分 山手線 田町駅(東京) 徒歩9分 東京都港区芝浦2丁目 | 詳細を見る | |
マンション パークアクシス西大島コンフォートスクエア(3LDK/14階) | |||||||
![]() | 32.2万円 2万円 | 32.2万円 なし | 3LDK 60.57m2 | 築1年 | 都営新宿線 西大島駅 徒歩4分 JR総武線 亀戸駅 徒歩14分 東京メトロ半蔵門線 住吉駅(東京) 徒歩16分 東京都江東区大島 | 詳細を見る | |
マンション レジデンス渋谷富ヶ谷(1SLDK/2階) | |||||||
![]() | 28.5万円 1.5万円 | なし なし | 1SLDK 40.74m2 | 築20年 | 東京地下鉄千代田線 代々木公園駅 徒歩11分 小田急電鉄小田原線 代々木八幡駅 徒歩11分 東京都渋谷区富ヶ谷2丁目 | 詳細を見る | |
一戸建て 東京地下鉄銀座線 表参道駅 徒歩7分 築40年(3LDK) | |||||||
![]() | 38万円 なし | 76万円 38万円 | 3LDK 89.92m2 | 築40年 | 東京地下鉄銀座線 表参道駅 徒歩7分 東京都渋谷区神宮前3丁目 | 詳細を見る | |
マンション ザ・パークハビオ日本橋茅場町(2LDK/3階) | |||||||
![]() | 30.1万円 3万円 | 30.1万円 なし | 2LDK 51.14m2 | 新築 | 東京メトロ日比谷線 茅場町駅 徒歩3分 東京メトロ日比谷線 八丁堀駅(東京) 徒歩9分 都営浅草線 日本橋駅(東京) 徒歩10分 東京都中央区日本橋茅場町 | 詳細を見る | |



/105x80-f1-q70-wp1)



/105x80-f1-q70-wp1)