賃貸マンション
ビレッジハウス新見1号棟の賃貸物件情報(3DK/5階)
| 家賃 | 管理費等 | 敷金 | 礼金 | 間取り | 専有面積 |
|---|---|---|---|---|---|
| 4.67万円 | なし | なし | なし | 3DK | 53.96m2 |
入居決定でお祝い金最大100,000円
- 保証金
- -
- 償却・敷引
- -
- 築年数
- 築49年
- 所在階
- 5階
- 向き
- 南東
Point
まずはお問い合わせ!
不動産会社は街のプロ、あなたに合った物件がきっと見つかります。
提供:アパマンショップ姪浜駅前店

詳細情報 ビレッジハウス新見1号棟
物件紹介
ビレッジハウス新見1号棟は姫新線新見駅から徒歩32分にあるマンションです。
このお部屋は2階以上に位置しているので、通行人や周囲の住人からの視線が気になりにくく、防犯面でも安心。インターホンにはTVモニタもついているため、相手の顔を確認してから来客対応することができます。
人気の南向き・フローリングのお部屋。角部屋でもあるため、周囲の居住者の生活音も気になりにくい場所です。バス・トイレ別の仕様で、のんびりお風呂タイムも楽しめます。
通信設備面では、インターネット接続が可能です(別途工事、契約料が必要な場合あり)。
このお部屋は2階以上に位置しているので、通行人や周囲の住人からの視線が気になりにくく、防犯面でも安心。インターホンにはTVモニタもついているため、相手の顔を確認してから来客対応することができます。
人気の南向き・フローリングのお部屋。角部屋でもあるため、周囲の居住者の生活音も気になりにくい場所です。バス・トイレ別の仕様で、のんびりお風呂タイムも楽しめます。
通信設備面では、インターネット接続が可能です(別途工事、契約料が必要な場合あり)。
お金・契約の情報
※「-」と表示されているものは、実際は料金が発生するものもございます。詳細はお問い合わせください。
| 家賃 | 4.67万円 | 管理費・共益費 | なし |
|---|---|---|---|
| 敷金 | なし | 礼金 | なし |
| フリーレント | 0ヶ月 | ||
| 入居決定でお祝い金最大100,000円 | |||
| 保証金 | - | 償却・敷引 | - |
| 住宅保険料 | 1万円(2年) | 更新料 | - |
| 保証会社利用 | - | 保証会社名 | - |
| 保証会社費用 | - | 保証会社備考 | - |
| 契約形態 | - | 契約期間 | - |
| 入居・引渡期間 | - | 現況 | 空室 |
| 入居可能条件 | 2人入居可、高齢者相談、学生可 | ||
| 契約備考 | 契約種類:普通契約、24時間緊急対応、ウォシュレット、ウォームレット、洗面台 | ||
部屋の情報
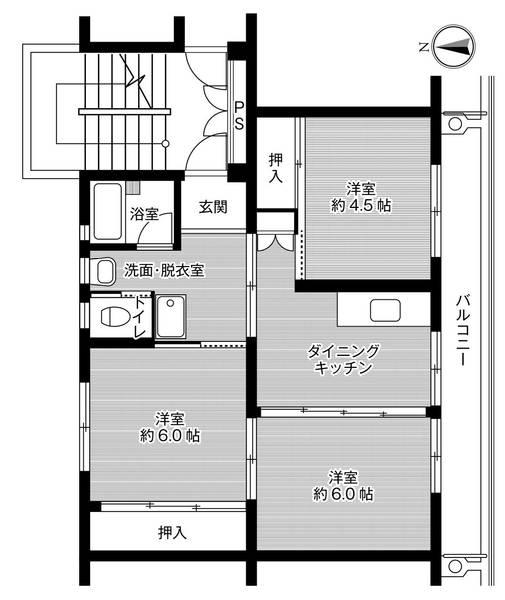
| 間取り | 3DK | 専有面積 | 53.96m2 |
|---|---|---|---|
| 所在階 / 向き | 5階 / 南東 | バルコニー面積 | - |
| 水道 / ガス | - | ||
| 設備 | バス・トイレ別、テレビドアホン、追い焚き、エアコン、角部屋、バルコニー、2口コンロ、給湯、洗濯機:室内 | ||
| 当社物件ID | 126481269 | ||
建物の情報
| 建物名 | ビレッジハウス新見1号棟 | ||
|---|---|---|---|
| 所在地 | 岡山県新見市新見205-3 | ||
| 交通 | 伯備線 石蟹駅 徒歩32分 姫新線 新見駅 徒歩37分 芸備線 布原駅 徒歩99分 | ||
| 階数 | 5階建 | 総戸数 | - |
| 築年月 | 1977年11月 / 築49年 | エレベーター | - |
| 駐車場 | 空有 円 | バイク置き場 | - |
| 駐輪場 | - | 管理人/管理会社 | 日勤 |
| 建物種別 | マンション | 建物構造 | RC(鉄筋コンクリート) |
この部屋の取扱い不動産会社
| 会社名 | ビレッジハウス住まい相談センター | ||
|---|---|---|---|
| 所在地 | 愛知県名古屋市中区大須4-10-32 上前津KDビル5階 | 交通 | 名城線「上前津駅」徒歩3分 |
| 営業時間 | 平日:9:00-18:30/土日祝:9:00-18:00 | 定休日 | 年末年始休業:2025年12月27日~2026年1月4日 |
| 免許番号 | 東京都知事(2)第100758号 | 取引態様 | 貸主 |
| 不動産会社管理番号 | 00013329044 | 当社管理番号 | 459 |
| 所属団体 | 公益社団法人東京都宅地建物取引業協会会員 日本賃貸住宅管理協会会員 | ||
| 取扱い物件情報 | 物件詳細へ | ||
※各種情報と現状に差異がある場合は、現状優先となります。問い合わせをすることで、より詳しい条件、情報を確認する事ができます。
提供:ビレッジハウス住まい相談センター
この物件が気になったら掲載期限まであと12日
ビレッジハウス新見1号棟に条件(家賃・エリア)が近い物件一覧
| 写真 | 家賃 管理費等 | 敷金 礼金 | 間取り 専有面積 | 築年数 | 最寄り駅 所在地 | キープ | 詳細 |
|---|---|---|---|---|---|---|---|
アパート シャイニングスマイルIIA(1LDK/1階) | |||||||
![]() | 4.9万円 3,500円 | なし 4.9万円 | 1LDK 47.08m2 | 築12年 | JR姫新線 美作落合駅 徒歩19分 岡山県真庭市下市瀬 | 詳細を見る | |
アパート レオパレスオクソノアピテ(1K/2階) | |||||||
![]() | 3.9万円 6,500円 | なし 3.9万円 | 1K 20.28m2 | 築19年 | JR伯備線 備中高梁駅 徒歩35分 JR伯備線 木野山駅 徒歩72分 JR伯備線 備中広瀬駅 徒歩77分 岡山県高梁市落合町近似 | 詳細を見る | |
アパート エルディム蘭(2DK/2階) | |||||||
![]() | 4.1万円 2,200円 | なし なし | 2DK 39.75m2 | 築33年 | 岡山県高梁市落合町阿部 | 詳細を見る | |
アパート とんぼSO(2DK/2階) | |||||||
![]() | 4万円 3,000円 | なし なし | 2DK 38m2 | 築29年 | JR姫新線 美作落合駅 徒歩19分 JR姫新線 古見駅(岡山) 徒歩42分 JR姫新線 久世駅 徒歩80分 岡山県真庭市下市瀬 | 詳細を見る | |
アパート A-STYLE台金屋2(2DK/1階) | |||||||
![]() | 2.9万円 1,000円 | 5.8万円 なし | 2DK 32m2 | 築37年 | JR姫新線 久世駅 徒歩34分 岡山県真庭市台金屋 | 詳細を見る | |
アパート サンヴィレッヂ哲西(2DK/1階) | |||||||
![]() | 4.2万円 2,000円 | なし 4.2万円 | 2DK 47m2 | 築41年 | JR芸備線 矢神駅 徒歩23分 岡山県新見市哲西町矢田 | 詳細を見る | |
アパート レオパレスOOMAE(1K/2階) | |||||||
![]() | 4.2万円 4,500円 | なし なし | 1K 20.28m2 | 築21年 | 伯備線 備中高梁駅 徒歩19分 岡山県高梁市奥万田町 | 詳細を見る | |
アパート レオパレスエスポワール(1K/2階) | |||||||
![]() | 4万円 4,500円 | なし 4万円 | 1K 20.28m2 | 築20年 | 岡山県高梁市落合町阿部 | 詳細を見る | |








