賃貸アパート
アーク デュオの賃貸物件情報(1LDK/3階)
| 家賃 | 管理費等 | 敷金 | 礼金 | 間取り | 専有面積 |
|---|---|---|---|---|---|
| 13.3万円 | 2,000円 | 13.3万円 | 26.6万円 | 1LDK | 41.3m2 |
入居決定でお祝い金最大100,000円
Point
収納はクロゼット・シューズボックスなどが備え付けられているので、衣類や日用品の収納に重宝します。
提供:ハウスコム東東京株式会社 新宿店

詳細情報 アーク デュオ
物件紹介
アーク デュオは京王電鉄京王線幡ケ谷駅から徒歩6分にあり、駅近で通勤通学に便利なアパートです。
このお部屋は2階以上に位置しているので、通行人や周囲の住人からの視線が気になりにくく、防犯面でも安心です。
人気の角部屋で周囲の居住者の生活音も気になりにくく、また、フローリングのお部屋なのでお掃除もラクラク。キッチンはシステムキッチン仕様になっていますので、お料理好きの方にもぴったり。バス・トイレは別なので、のんびりお風呂タイムも楽しめるでしょう。また、雨の日でも浴室乾燥機を使えば、お洗濯も問題ありません。
コンビニまで徒歩7分の場所にあり、日用品や食料品のお買い物にも便利です。
このお部屋は2階以上に位置しているので、通行人や周囲の住人からの視線が気になりにくく、防犯面でも安心です。
人気の角部屋で周囲の居住者の生活音も気になりにくく、また、フローリングのお部屋なのでお掃除もラクラク。キッチンはシステムキッチン仕様になっていますので、お料理好きの方にもぴったり。バス・トイレは別なので、のんびりお風呂タイムも楽しめるでしょう。また、雨の日でも浴室乾燥機を使えば、お洗濯も問題ありません。
コンビニまで徒歩7分の場所にあり、日用品や食料品のお買い物にも便利です。
お金・契約の情報
※「-」と表示されているものは、実際は料金が発生するものもございます。詳細はお問い合わせください。
| 家賃 | 13.3万円 | 管理費・共益費 | 2,000円 |
|---|---|---|---|
| 敷金 | 13.3万円 | 礼金 | 26.6万円 |
| 入居決定でお祝い金最大100,000円 | |||
| 保証金 | - | 償却・敷引 | - |
| 住宅保険料 | 1円 | 更新料 | - |
| 保証会社利用 | 必須 | 保証会社名 | - |
| 保証会社費用 | - | 保証会社備考 | 初回保証料:総賃料等の50% 月額保証料:総賃料等の1% 年間保証料:10000円/年毎 |
| 契約形態 | - | 契約期間 | 2年 |
| 入居・引渡期間 | 相談 | 現況 | - |
| 契約備考 | 月額(火災保険料(地震保険無) 800円 火災保険料(地震保険有) 1200円) 鍵交換費用:25000 その他設備/条件:室内洗濯機置き場、独立洗面台、浴室TV、クローゼット、シューズボックス、オートバス | ||
部屋の情報
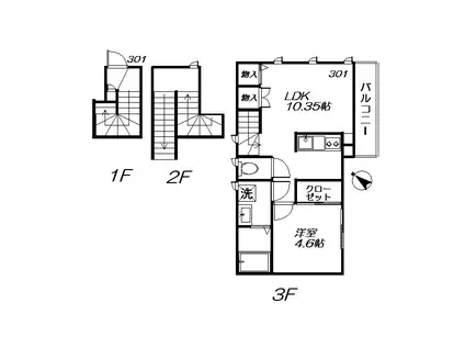
| 間取り | 1LDK | 専有面積 | 41.3m2 |
|---|---|---|---|
| 間取り詳細 | 洋室(4.6帖)、LDK(10.3帖) | ||
| 所在階 / 向き | 3階 / 南東 | バルコニー面積 | - |
| 水道 / ガス | 水道【公営】、ガス【都市】 | ||
| 設備 | バス・トイレ別、浴室乾燥機、追い焚き、システムキッチン、エアコン、温水洗浄便座、角部屋、バルコニー、フローリング、洗髪洗面化粧台、2口コンロ、コンロ:IH、シャワー、給湯 | ||
| 当社物件ID | 13502403 | ||
建物の情報
| 建物名 | アーク デュオ | ||
|---|---|---|---|
| 所在地 | 東京都渋谷区幡ヶ谷3丁目 | ||
| 交通 | 京王電鉄京王線 幡ケ谷駅 徒歩6分 京王電鉄京王線 笹塚駅 徒歩14分 | ||
| 階数 | 3階建 | 総戸数 | - |
| 築年月 | 2014年05月 / 築12年 | エレベーター | - |
| 駐車場 | - | バイク置き場 | - |
| 駐輪場 | あり | 管理人/管理会社 | - |
| 周辺環境 | コンビニ 徒歩7分(515m) 販売店 徒歩8分(602m) その他 ドラッグストア その他 公園 その他 銀行 その他 * | ||
| 建物種別 | アパート | 建物構造 | 木造 |
この部屋の取扱い不動産会社
| 会社名 | ハウスコム東東京株式会社 中野店 | ||
|---|---|---|---|
| 所在地 | 東京都中野区24-9ナカノサウステラ レジデンス棟1階 | 交通 | - |
| 営業時間 | 10:00~18:00 | 定休日 | - |
| 免許番号 | 東京都知事(1)第108283号 | 取引態様 | 仲介 |
| 不動産会社管理番号 | HC2-5362299-301-0174 | 当社管理番号 | 468 |
| 所属団体 | 、 | ||
| 取扱い物件情報 | 物件詳細へ | ||
※各種情報と現状に差異がある場合は、現状優先となります。問い合わせをすることで、より詳しい条件、情報を確認する事ができます。
提供:ハウスコム東東京株式会社 中野店
この物件が気になったら掲載期限まであと4日
アーク デュオに条件(家賃・エリア)が近い物件一覧
| 写真 | 家賃 管理費等 | 敷金 礼金 | 間取り 専有面積 | 築年数 | 最寄り駅 所在地 | キープ | 詳細 |
|---|---|---|---|---|---|---|---|
マンション アジュール目黒不動前(1DK/1階) | |||||||
![]() | 14.5万円 5,000円 | 14.5万円 29万円 | 1DK 38.14m2 | 築12年 | 東急目黒線 不動前駅 徒歩9分 東急池上線 戸越銀座駅 徒歩11分 東急池上線 大崎広小路駅 徒歩12分 東京都品川区西五反田 | 詳細を見る | |
マンション YELLOW PARROT(1LDK/1階) | |||||||
![]() | 16.5万円 9,000円 | 16.5万円 33万円 | 1LDK 39.21m2 | 築7年 | 東急池上線 大崎広小路駅 徒歩6分 JR山手線 五反田駅 徒歩8分 東急目黒線 不動前駅 徒歩10分 東京都品川区西五反田 | 詳細を見る | |
アパート フォレスタ世田谷(2LDK/2階) | |||||||
![]() | 18万円 1,000円 | 18万円 なし | 2LDK 47.7m2 | 築55年 | 東急池上線 雪が谷大塚駅 徒歩6分 東急東横線 田園調布駅 徒歩16分 東急目黒線 多摩川駅 徒歩16分 東京都世田谷区東玉川 | 詳細を見る | |
マンション デコート代々木上原(1K/1階) | |||||||
![]() | 12.5万円 5,000円 | 6.25万円 25万円 | 1K 30.88m2 | 築20年 | 東京メトロ千代田線 代々木上原駅 徒歩5分 小田急線 東北沢駅 徒歩12分 小田急線 代々木八幡駅 徒歩13分 東京都渋谷区上原 | 詳細を見る | |
マンション スカイコートリュクス品川大崎(1LDK/2階) | |||||||
![]() | 16.42万円 8,800円 | 16.42万円 16.42万円 | 1LDK 30.7m2 | 築1年 | 東急大井町線 下神明駅 徒歩9分 JR山手線 大崎駅 徒歩9分 東急大井町線 大井町駅 徒歩19分 東京都品川区西品川 | 詳細を見る | |
マンション エム.エルフ(1K/1階) | |||||||
![]() | 14.2万円 8,000円 | 14.2万円 28.4万円 | 1K 29.99m2 | 築10年 | JR山手線 目黒駅 徒歩3分 東京メトロ南北線 白金台駅 徒歩14分 東急目黒線 不動前駅 徒歩18分 東京都品川区上大崎 | 詳細を見る | |
マンション ブランシエスタ品川大井町パークエッジ(1DK/2階) | |||||||
![]() | 14.7万円 1.2万円 | なし なし | 1DK 26.7m2 | 築1年 | 京急本線 青物横丁駅 徒歩5分 JR京浜東北線 大井町駅 徒歩9分 京急本線 新馬場駅 徒歩11分 東京都品川区南品川 | 詳細を見る | |








