賃貸マンション
TS COURTの賃貸物件情報(1K/2階)
| 家賃 | 管理費等 | 敷金 | 礼金 | 間取り | 専有面積 |
|---|---|---|---|---|---|
| 5.8万円 | なし | なし | なし | 1K | 24.53m2 |
入居決定でお祝い金最大100,000円
- 保証金
- -
- 償却・敷引
- -
- 築年数
- 築28年
- 所在階
- 2階
- 向き
- 東
Point
【キッチン横のテーブルが魅力♪】使いやすい間取りで敷礼0円
提供:ホームメイトFC高槻駅前店ホクセツハウス(株)(SUUMO経由)

詳細情報 TS COURT
物件紹介
TS COURTはJR東海道本線高槻駅から徒歩20分にあるマンションです。
このお部屋は2階以上に位置しているので通行人や周囲の住人からの視線が気になりにくく、建物のエントランスはオートロックがついているので防犯性が高くなっています。
フローリングのお部屋なのでお掃除もラクラク。キッチンはシステムキッチン仕様になっていますので、お料理好きの方にもぴったり。また、バス・トイレは別で、のんびりお風呂タイムも楽しめるでしょう。
通信設備面では、インターネット接続が可能です。また、CATVにも対応しているので、おうち時間も充実するでしょう(別途工事、契約料が必要な場合あり)。
このお部屋は2階以上に位置しているので通行人や周囲の住人からの視線が気になりにくく、建物のエントランスはオートロックがついているので防犯性が高くなっています。
フローリングのお部屋なのでお掃除もラクラク。キッチンはシステムキッチン仕様になっていますので、お料理好きの方にもぴったり。また、バス・トイレは別で、のんびりお風呂タイムも楽しめるでしょう。
通信設備面では、インターネット接続が可能です。また、CATVにも対応しているので、おうち時間も充実するでしょう(別途工事、契約料が必要な場合あり)。
お金・契約の情報
※「-」と表示されているものは、実際は料金が発生するものもございます。詳細はお問い合わせください。
| 家賃 | 5.8万円 | 管理費・共益費 | なし |
|---|---|---|---|
| 敷金 | なし | 礼金 | なし |
| 入居決定でお祝い金最大100,000円 | |||
| 保証金 | - | 償却・敷引 | - |
| 住宅保険料 | - | 更新料 | - |
| 保証会社利用 | 必須 | 保証会社名 | - |
| 保証会社費用 | - | 保証会社備考 | 保証会社利用必 ジェイリース利用必須 初回保証料80%(保証人有)100%(保証人無)、更新保証料14000円/年 |
| 契約形態 | - | 契約期間 | - |
| 入居・引渡期間 | - | 現況 | - |
| 契約備考 | 合計2.2万円(内訳:鍵交換費22000円) 定額補修費27500円/退去時水道料金2000円駐車場敷金(ヵ月):2.0ヵ月 1K 損保【1.9万円2年】 バストイレ別、バルコニー、エアコン、クロゼット、フローリング、オートロック、室内洗濯置、シューズボックス、システムキッチン、駐輪場、CATV、光ファイバー、IHクッキングヒーター、保証人不要、バイク置場、2沿線利用可、2駅利用可、3駅以上利用可、都市ガス、IT重説対応物件、初期費用カード決済可 入居日:'26年3月中旬 | ||
部屋の情報
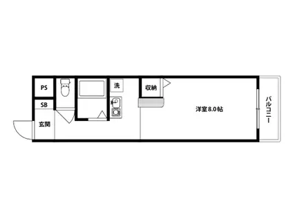
| 間取り | 1K | 専有面積 | 24.53m2 |
|---|---|---|---|
| 所在階 / 向き | 2階 / 東 | バルコニー面積 | 1m2 |
| 水道 / ガス | - | ||
| 設備 | バス・トイレ別、2階以上、オートロック、インターネット対応、システムキッチン、エアコン、バルコニー、フローリング、コンロ:IH、CATV、洗濯機:室内 | ||
| 当社物件ID | 601960 | ||
建物の情報
| 建物名 | TS COURT | ||
|---|---|---|---|
| 所在地 | 大阪府高槻市川西町 | ||
| 交通 | JR東海道本線 高槻駅 徒歩20分 JR東海道本線 摂津富田駅 徒歩24分 阪急京都線 富田駅(大阪) 徒歩28分 | ||
| 階数 | 4階建 | 総戸数 | 38戸 |
| 築年月 | 1999年01月 / 築28年 | エレベーター | - |
| 駐車場 | 空有 11000円 | バイク置き場 | あり |
| 駐輪場 | あり | 管理人/管理会社 | - |
| 周辺環境 | その他 関西大学 高槻ミューズキャンパス(大学・短大)まで2164m その他 前面道路(その他)まで1m | ||
| 建物種別 | マンション | 建物構造 | RC(鉄筋コンクリート) |
この部屋の取扱い不動産会社
| 会社名 | ホームメイトFC高槻駅前店ホクセツハウス(株)(SUUMO経由) | ||
|---|---|---|---|
| 所在地 | 大阪府高槻市城北町2-2-5 | 交通 | - |
| 営業時間 | 9:30~19:00 | 定休日 | 年末年始・盆 |
| 免許番号 | 大阪府知事32108 | 取引態様 | 仲介 |
| 不動産会社管理番号 | 100482878310 | 当社管理番号 | 89 |
| 所属団体 | (公社)全日本不動産協会大阪府本部会員 | ||
| 公正取引協議会 | (公社)近畿地区不動産公正取引協議会加盟 | ||
| 取扱い物件情報 | 物件詳細へ | ||
※各種情報と現状に差異がある場合は、現状優先となります。問い合わせをすることで、より詳しい条件、情報を確認する事ができます。
提供:ホームメイトFC高槻駅前店ホクセツハウス(株)(SUUMO経由)
この物件が気になったら掲載期限まであと10日
TS COURTに条件(家賃・エリア)が近い物件一覧
| 写真 | 家賃 管理費等 | 敷金 礼金 | 間取り 専有面積 | 築年数 | 最寄り駅 所在地 | キープ | 詳細 |
|---|---|---|---|---|---|---|---|
マンション 北園マンション(2DK/3階) | |||||||
| 6.7万円 3,000円 | なし 5万円 | 2DK 42m2 | 築32年 | 阪急電鉄京都線 高槻市駅 徒歩1分 東海道本線 高槻駅 徒歩7分 東海道本線 摂津富田駅 徒歩47分 大阪府高槻市北園町11-23 | 詳細を見る | ||
マンション エンジェリマンション(1K/3階) | |||||||
| 4.2万円 1,000円 | 4.2万円 4.2万円 | 1K 20m2 | 築39年 | 阪急電鉄京都線 総持寺駅 徒歩2分 東海道本線 JR総持寺駅 徒歩11分 阪急電鉄京都線 茨木市駅 徒歩18分 大阪府茨木市中総持寺町4-13 | 詳細を見る | ||
マンション 北清水マンション(2LDK/3階) | |||||||
| 5.5万円 3,000円 | なし 5.5万円 | 2LDK 55m2 | 築32年 | 東海道本線 高槻駅 徒歩42分 阪急電鉄京都線 高槻市駅 徒歩50分 東海道本線 摂津富田駅 徒歩59分 大阪府高槻市松が丘1丁目10-19 | 詳細を見る | ||
マンション マンション・グランド・モナーク(3LDK/4階) | |||||||
| 9万円 5,000円 | なし 20万円 | 3LDK 65.8m2 | 築31年 | 東海道本線 千里丘駅 徒歩11分 大阪モノレール本線 沢良宜駅 徒歩14分 阪急電鉄京都線 南茨木駅 徒歩16分 大阪府茨木市丑寅2丁目13-30 | 詳細を見る | ||
マンション レオパレストルテュー(1K/3階) | |||||||
| 5.9万円 5,000円 | なし なし | 1K 20.81m2 | 築18年 | 東海道本線 高槻駅 徒歩35分 京阪電気鉄道京阪線 御殿山駅 徒歩71分 大阪府高槻市若松町38-14 | 詳細を見る | ||
マンション 田村マンション(1LDK/1階) | |||||||
| 6.5万円 5,000円 | なし 6.5万円 | 1LDK 36m2 | 築58年 | 阪急電鉄京都線 富田駅(大阪) 徒歩11分 東海道本線 摂津富田駅 徒歩13分 阪急電鉄京都線 総持寺駅 徒歩20分 大阪府高槻市登美の里町21-28 | 詳細を見る | ||
マンション レジデンス摂津(1K/2階) | |||||||
| 4.7万円 3,500円 | なし 5万円 | 1K 23m2 | 築40年 | 東海道本線 高槻駅 徒歩14分 阪急電鉄京都線 高槻市駅 徒歩17分 東海道本線 摂津富田駅 徒歩34分 大阪府高槻市城西町3-15 | 詳細を見る | ||

