賃貸マンション
神戸元町ノアの賃貸物件情報(2K/4階)
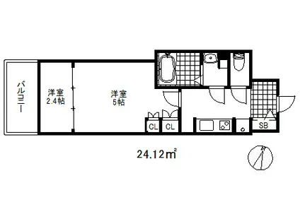
| 家賃 | 管理費等 | 敷金 | 礼金 | 間取り | 専有面積 |
|---|---|---|---|---|---|
| 7.4万円 | 1万円 | なし | なし | 2K | 24.12m2 |
入居決定でお祝い金最大100,000円
- 保証金
- -
- 償却・敷引
- -
- 築年数
- 築4年
- 所在階
- 4階
- 向き
- 西
Point
ネット無料♪駐車場あり♪防犯カメラ・オートロック等防犯面も◎室内は2口ガスキッチンで自炊もはかどります!弊社であれば仲介手数料半額です☆
提供:センチュリー21(株)リライフ神戸駅前店(SUUMO経由)

詳細情報 神戸元町ノア
物件紹介
神戸元町ノアは神戸高速鉄道東西線花隈駅から徒歩4分にあり、駅近で通勤通学に便利なマンションです。
このお部屋は2階以上に位置しているので、通行人や周囲の住人からの視線が気になりにくく、防犯面でも安心。建物のエントランスはオートロックがついており、インターホンにはTVモニタもついているため、相手の顔を確認してから来客対応することができます。
おしゃれなデザイナーズ物件!また、楽器相談が可能な物件となっているので、楽器演奏をお考えの方はぜひ相談してみてください。フローリングのお部屋なのでお掃除もラクラク。キッチンはシステムキッチン仕様になっていますので、お料理好きの方にもぴったり。バス・トイレは別なので、のんびりお風呂タイムも楽しめるでしょう。また、雨の日でも浴室乾燥機を使えば、お洗濯も問題ありません。
通信設備面では、インターネットが無料で使えるので、月々の出費を抑えられるのも魅力です。また、BSアンテナ・CSアンテナがありCATVにも対応しているので、おうち時間も充実するでしょう(別途工事、BS・CS・CATVの契約料等が必要な場合あり)。
建物にはエレベーターがついているので、重い荷物があっても安心。共用部には宅配ボックスが設定されているので、不在の時にも荷物を受け取ることができます。また、ペット飼育の相談ができますので、あなたの大切な家族の一員も快適に暮らせるか、ぜひ確認してみてください。
このお部屋は2階以上に位置しているので、通行人や周囲の住人からの視線が気になりにくく、防犯面でも安心。建物のエントランスはオートロックがついており、インターホンにはTVモニタもついているため、相手の顔を確認してから来客対応することができます。
おしゃれなデザイナーズ物件!また、楽器相談が可能な物件となっているので、楽器演奏をお考えの方はぜひ相談してみてください。フローリングのお部屋なのでお掃除もラクラク。キッチンはシステムキッチン仕様になっていますので、お料理好きの方にもぴったり。バス・トイレは別なので、のんびりお風呂タイムも楽しめるでしょう。また、雨の日でも浴室乾燥機を使えば、お洗濯も問題ありません。
通信設備面では、インターネットが無料で使えるので、月々の出費を抑えられるのも魅力です。また、BSアンテナ・CSアンテナがありCATVにも対応しているので、おうち時間も充実するでしょう(別途工事、BS・CS・CATVの契約料等が必要な場合あり)。
建物にはエレベーターがついているので、重い荷物があっても安心。共用部には宅配ボックスが設定されているので、不在の時にも荷物を受け取ることができます。また、ペット飼育の相談ができますので、あなたの大切な家族の一員も快適に暮らせるか、ぜひ確認してみてください。
お金・契約の情報
※「-」と表示されているものは、実際は料金が発生するものもございます。詳細はお問い合わせください。
| 家賃 | 7.4万円 | 管理費・共益費 | 1万円 |
|---|---|---|---|
| 敷金 | なし | 礼金 | なし |
| 入居決定でお祝い金最大100,000円 | |||
| 保証金 | - | 償却・敷引 | - |
| 住宅保険料 | - | 更新料 | - |
| 契約形態 | - | 契約期間 | - |
| 入居・引渡期間 | 相談 | 現況 | - |
| 入居可能条件 | 楽器相談、ペット相談 | ||
| 契約備考 | 神戸高速鉄道東西線/西元町駅徒歩5分/ライフ下山手店まで42m/ファミリーマート神戸花隈店まで198m/通勤管理/最新設備の室内!一人暮らしでも二人暮らしでもOK♪スーパーやコンビニも近く自炊も楽しくできます(^^)/ 2K ペット相談/楽器相談 普通借家2年 損保【1.8万円2年】 バストイレ別、バルコニー、エアコン、ガスコンロ対応、クロゼット、フローリング、TVインターホン、浴室乾燥機、オートロック、室内洗濯置、陽当り良好、シューズボックス、システムキッチン、温水洗浄便座、脱衣所、エレベーター、洗面所独立、洗面化粧台、2口コンロ、駐輪場、宅配ボックス、CATV、光ファイバー、防犯カメラ、ペット相談、照明付、全居室洋室、保証人不要、単身者相談、二人入居相談、バイク置場、24時間緊急通報システム、仲手0.55ヶ月、ネット使用料不要、24時間換気システム、楽器相談、学生相談、ペット専用設備、耐震構造、3駅以上利用可、3沿線以上利用可、駅徒歩5分以内、敷地内ごみ置き場、築5年以内、日勤管理、全居室6畳以上、都市ガス、BS、高速ネット対応、LAN、敷金・礼金不要、保証会社利用可、IT重説対応物件、高齢者歓迎、初期費用カード決済可 | ||
部屋の情報
| 間取り | 2K | 専有面積 | 24.12m2 |
|---|---|---|---|
| 所在階 / 向き | 4階 / 西 | バルコニー面積 | - |
| 水道 / ガス | - | ||
| 設備 | バス・トイレ別、2階以上、オートロック、テレビドアホン、宅配ボックス、浴室乾燥機、インターネット対応、システムキッチン、エアコン、エレベーター、温水洗浄便座、バルコニー、フローリング、洗髪洗面化粧台、2口コンロ、コンロ:ガス、CATV、BSアンテナ、インターネット使用料無料、洗濯機:室内 | ||
| 当社物件ID | 128310643 | ||
建物の情報
| 建物名 | 神戸元町ノア | ||
|---|---|---|---|
| 所在地 | 兵庫県神戸市中央区下山手通 | ||
| 交通 | 神戸高速鉄道東西線 花隈駅 徒歩4分 地下鉄西神・山手線 大倉山駅(兵庫) 徒歩8分 JR東海道本線 元町駅(JR) 徒歩10分 | ||
| 階数 | 9階建 | 総戸数 | 84戸 |
| 築年月 | 2022年10月 / 築4年 | エレベーター | あり |
| 駐車場 | 空有 19800円 | バイク置き場 | あり |
| 駐輪場 | あり | 管理人/管理会社 | - |
| 周辺環境 | その他 ライフ下山手店(スーパー)まで42m その他 ファミリーマート神戸花隈店(コンビニ)まで175m その他 セブンイレブン神戸花隈店(コンビニ)まで198m その他 ローソン北長狭店(コンビニ)まで264m その他 ココカラファイン西元町店(ドラッグストア)まで596m その他 キリン堂中央再度筋店(ドラッグストア)まで592m | ||
| 建物種別 | マンション | 建物構造 | RC(鉄筋コンクリート) |
この部屋の取扱い不動産会社
| 会社名 | センチュリー21(株)リライフ不動産販売兵庫駅前店(SUUMO経由) | ||
|---|---|---|---|
| 所在地 | 兵庫県神戸市兵庫区羽坂通4-2-11 駅前中川ビル2階 | 交通 | - |
| 営業時間 | 10:00~19:00 | 定休日 | - |
| 免許番号 | 兵庫県知事11911 | 取引態様 | 仲介 |
| 不動産会社管理番号 | 100485539663 | 当社管理番号 | 89 |
| 取扱い物件情報 | 物件詳細へ | ||
※各種情報と現状に差異がある場合は、現状優先となります。問い合わせをすることで、より詳しい条件、情報を確認する事ができます。
提供:センチュリー21(株)リライフ不動産販売兵庫駅前店(SUUMO経由)
この物件が気になったら掲載期限まであと6日
神戸元町ノアに条件(家賃・エリア)が近い物件一覧
| 写真 | 家賃 管理費等 | 敷金 礼金 | 間取り 専有面積 | 築年数 | 最寄り駅 所在地 | キープ | 詳細 |
|---|---|---|---|---|---|---|---|
アパート フルール恵比須(ワンルーム/3階) | |||||||
![]() | 5.9万円 6,000円 | 2万円 10万円 | ワンルーム 26.52m2 | 築6年 | 神戸電鉄粟生線 恵比須駅 徒歩9分 神戸電鉄粟生線 三木上の丸駅 徒歩13分 神戸電鉄粟生線 三木駅(神戸電鉄) 徒歩22分 兵庫県三木市大塚 | 詳細を見る | |
マンション シーサイドパストラル林崎II(2LDK/1階) | |||||||
![]() | 8.6万円 6,000円 | なし 20万円 | 2LDK 67.12m2 | 築29年 | 山陽電気鉄道本線 林崎松江海岸駅 徒歩3分 山陽電気鉄道本線 西新町駅 徒歩23分 山陽本線 西明石駅 徒歩30分 兵庫県明石市林崎町3丁目 | 詳細を見る | |
アパート ジーメゾン大久保アスピダ(1LDK/2階) | |||||||
![]() | 7.1万円 5,000円 | なし なし | 1LDK 34.24m2 | 築1年 | JR山陽本線 大久保駅(兵庫) 徒歩11分 山陽電鉄本線 江井ケ島駅 徒歩21分 山陽電鉄本線 中八木駅 徒歩29分 兵庫県明石市大久保町大窪 | 詳細を見る | |
アパート プレジール明石Ⅲ(1LDK/1階) | |||||||
![]() | 7.6万円 4,000円 | 2万円 なし | 1LDK 43.01m2 | 築17年 | 山陽電気鉄道本線 西新町駅 徒歩5分 山陽電気鉄道本線 林崎松江海岸駅 徒歩18分 山陽本線 明石駅 徒歩22分 兵庫県明石市硯町2 | 詳細を見る | |
アパート ヒカルサ稲美天満Ⅰ(1LDK/1階) | |||||||
![]() | 7.35万円 3,900円 | なし 7.35万円 | 1LDK 44.7m2 | 新築 | 兵庫県加古郡稲美町六分一 | 詳細を見る | |
マンション 楠マンション(1LDK/3階) | |||||||
![]() | 6.5万円 5,000円 | なし なし | 1LDK 35m2 | 築46年 | 神戸市西神山手線 大倉山駅(兵庫) 徒歩4分 神戸高速鉄道東西線 西元町駅 徒歩5分 東海道本線 神戸駅(兵庫) 徒歩6分 兵庫県神戸市中央区楠町1-10-17 | 詳細を見る | |
アパート ファミリーマンション和田(1LDK/1階) | |||||||
![]() | 6.1万円 3,000円 | なし 6.1万円 | 1LDK 56.62m2 | 築13年 | 神戸電鉄粟生線 恵比須駅 徒歩6分 神戸電鉄粟生線 三木上の丸駅 徒歩13分 兵庫県三木市大塚 | 詳細を見る | |
マンション 三木グリーンハイツ(1LDK/2階) | |||||||
![]() | 5.8万円 5,500円 | 5.8万円 5.8万円 | 1LDK 46.28m2 | 築43年 | 神戸電鉄粟生線 緑が丘駅(兵庫) 徒歩5分 神戸電鉄粟生線 広野ゴルフ場前駅 徒歩16分 兵庫県三木市緑が丘町本町 | 詳細を見る | |







