賃貸マンション
綾小路パレスの賃貸物件情報(1DK/3階)
| 家賃 | 管理費等 | 敷金 | 礼金 | 間取り | 専有面積 |
|---|---|---|---|---|---|
| 6.8万円 | 1万円 | 10万円 | なし | 1DK | 31.77m2 |
入居決定でお祝い金最大100,000円
Point
地下鉄四条まで徒歩2分 礼金、更新料なしで募集開始。
提供:アパマンショップ山科店

詳細情報 綾小路パレス
物件紹介
綾小路パレスは京都市烏丸線四条駅から徒歩2分にあり、駅近で通勤通学に便利なマンションです。
このお部屋は2階以上に位置しているので通行人や周囲の住人からの視線が気になりにくく、建物のエントランスはオートロックがついているので防犯性が高くなっています。
人気の南向き・フローリングのお部屋。角部屋でもあるため、周囲の居住者の生活音も気になりにくい場所です。バス・トイレ別の仕様で、のんびりお風呂タイムも楽しめます。
通信設備面では、インターネット接続が可能です。また、BSアンテナがありCATVにも対応しているので、おうち時間も充実するでしょう(別途工事、契約料が必要な場合あり)。
建物にはエレベーターがついているので、重い荷物があっても安心。共用部には宅配ボックスが設定されているので、不在の時にも荷物を受け取ることができます。
このお部屋は2階以上に位置しているので通行人や周囲の住人からの視線が気になりにくく、建物のエントランスはオートロックがついているので防犯性が高くなっています。
人気の南向き・フローリングのお部屋。角部屋でもあるため、周囲の居住者の生活音も気になりにくい場所です。バス・トイレ別の仕様で、のんびりお風呂タイムも楽しめます。
通信設備面では、インターネット接続が可能です。また、BSアンテナがありCATVにも対応しているので、おうち時間も充実するでしょう(別途工事、契約料が必要な場合あり)。
建物にはエレベーターがついているので、重い荷物があっても安心。共用部には宅配ボックスが設定されているので、不在の時にも荷物を受け取ることができます。
お金・契約の情報
※「-」と表示されているものは、実際は料金が発生するものもございます。詳細はお問い合わせください。
| 家賃 | 6.8万円 | 管理費・共益費 | 1万円 |
|---|---|---|---|
| 敷金 | 10万円 | 礼金 | なし |
| 入居決定でお祝い金最大100,000円 | |||
| 保証金 | - | 償却・敷引 | - |
| 住宅保険料 | 2万円(2年) | 更新料 | - |
| 保証会社利用 | 必須 | 保証会社名 | 日本セーフティー |
| 保証会社費用 | - | 保証会社備考 | 初回:月額賃料等の40%、更新時:1万円/1年 |
| 契約形態 | - | 契約期間 | 2年 |
| 入居・引渡期間 | 相談 | 現況 | - |
| 入居可能条件 | 2人入居可 | ||
| 契約備考 | 保険料20000円/年 給湯基本料 1000円/ハウスクリーニング代 33000円 | ||
部屋の情報
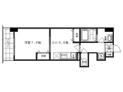
| 間取り | 1DK | 専有面積 | 31.77m2 |
|---|---|---|---|
| 間取り詳細 | DK(5.7帖)、洋室(6.9帖) | ||
| 所在階 / 向き | 3階 / 南 | バルコニー面積 | - |
| 水道 / ガス | ガス【都市】 | ||
| 設備 | バス・トイレ別、オートロック、宅配ボックス、光ファイバー対応、エレベーター、角部屋、フローリング、コンロ:ガス、CATV、BSアンテナ、シャワー、給湯、洗濯機:室内、閑静な住宅街 | ||
| 当社物件ID | 612653 | ||
建物の情報
| 建物名 | 綾小路パレス | ||
|---|---|---|---|
| 所在地 | 京都府京都市下京区善長寺町 | ||
| 交通 | 京都市烏丸線 四条駅(京都市営) 徒歩2分 | ||
| 階数 | 9階建 | 総戸数 | 48戸 |
| 築年月 | 2001年03月 / 築26年 | エレベーター | あり |
| 駐車場 | - | バイク置き場 | - |
| 駐輪場 | あり | 管理人/管理会社 | - |
| 周辺環境 | その他 錦市場商店街 徒歩10分(762m) | ||
| 建物種別 | マンション | 建物構造 | RC(鉄筋コンクリート) |
この部屋の取扱い不動産会社
| 会社名 | アパマンショップ二条駅前店 | ||
|---|---|---|---|
| 所在地 | 京都府京都市中京区西ノ京南聖町 12 | 交通 | 京都市東西線二条から徒歩2分 |
| 営業時間 | 09:30〜19:00 | 定休日 | - |
| 免許番号 | 京都府知事(5)11578 | 取引態様 | 仲介 |
| 不動産会社管理番号 | 50805258 | 当社管理番号 | 4 |
| 所属団体 | (公社)京都府宅地建物取引業協会 | ||
| 公正取引協議会 | (公社) 近畿地区不動産公正取引協議会加盟 | ||
| 取扱い物件情報 | 物件詳細へ | ||
※各種情報と現状に差異がある場合は、現状優先となります。問い合わせをすることで、より詳しい条件、情報を確認する事ができます。
提供:アパマンショップ二条駅前店
この物件が気になったら掲載期限まであと12日
綾小路パレスに条件(家賃・エリア)が近い物件一覧
| 写真 | 家賃 管理費等 | 敷金 礼金 | 間取り 専有面積 | 築年数 | 最寄り駅 所在地 | キープ | 詳細 |
|---|---|---|---|---|---|---|---|
アパート 京阪電気鉄道宇治線 木幡駅(京阪) 徒歩8分 築35年(1K/2階) | |||||||
![]() | 4.5万円 なし | なし 4.5万円 | 1K 17.53m2 | 築35年 | 京阪電気鉄道宇治線 木幡駅(京阪) 徒歩8分 奈良線 木幡駅(JR) 徒歩10分 京都府宇治市木幡 | 詳細を見る | |
マンション 山陰本線 丹波口駅 徒歩9分 築51年(1LDK/4階) | |||||||
![]() | 6.4万円 3,000円 | 6.4万円 6.4万円 | 1LDK 39.74m2 | 築51年 | 山陰本線 丹波口駅 徒歩9分 阪急電鉄京都線 西院駅(阪急) 徒歩15分 京都府京都市下京区西七条赤社町 | 詳細を見る | |
マンション 京都市東西線 六地蔵駅(京都市営) 徒歩3分 築1年(1LDK/1階) | |||||||
![]() | 7.6万円 5,000円 | なし 11.4万円 | 1LDK 31.77m2 | 築1年 | 京都市東西線 六地蔵駅(京都市営) 徒歩3分 奈良線 六地蔵駅(JR) 徒歩4分 京都府宇治市六地蔵柿ノ木町 | 詳細を見る | |
アパート エクセラン・Y(3LDK/2階) | |||||||
![]() | 6.7万円 4,400円 | なし なし | 3LDK 67.43m2 | 築21年 | JR山陰本線 園部駅 徒歩20分 京都府南丹市園部町横田 | 詳細を見る | |
一戸建て 山陰本線 馬堀駅 徒歩27分 築55年(2LDK) | |||||||
![]() | 4.3万円 なし | 4.3万円 8.15万円 | 2LDK 50.79m2 | 築55年 | 山陰本線 馬堀駅 徒歩27分 山陰本線 亀岡駅 徒歩34分 山陰本線 並河駅 徒歩72分 京都府亀岡市東つつじケ丘曙台3丁目 | 詳細を見る | |
マンション 京阪電気鉄道京阪線 七条駅 徒歩2分 築17年(1K/5階) | |||||||
![]() | 6万円 8,000円 | なし 6万円 | 1K 20.61m2 | 築17年 | 京阪電気鉄道京阪線 七条駅 徒歩2分 東海道本線 京都駅 徒歩7分 京都府京都市下京区大宮町(七条通木屋町上ル) | 詳細を見る | |
マンション 京都市烏丸線 五条駅(京都市営) 徒歩5分 築18年(1K/8階) | |||||||
![]() | 6.8万円 7,000円 | なし 6.8万円 | 1K 23.48m2 | 築18年 | 京都市烏丸線 五条駅(京都市営) 徒歩5分 東海道本線 京都駅 徒歩17分 京都府京都市下京区塩竈町 | 詳細を見る | |
マンション アーバンフラッツ五条堀川(1K/14階) | |||||||
![]() | 7.4万円 6,000円 | 5万円 15万円 | 1K 27.02m2 | 築20年 | 京都市烏丸線 五条駅(京都市営) 徒歩6分 山陰本線 丹波口駅 徒歩13分 東海道本線 京都駅 徒歩15分 京都府京都市下京区 | 詳細を見る | |








