賃貸マンション
西武国分寺線 鷹の台駅 徒歩13分 4階建 築30年の賃貸物件情報(2LDK/1階)
| 家賃 | 管理費等 | 敷金 | 礼金 | 間取り | 専有面積 |
|---|---|---|---|---|---|
| 11.9万円 | 7,000円 | 23.8万円 | なし | 2LDK | 75.57m2 |
入居決定でお祝い金最大100,000円
Point
西武新宿線でお部屋をお探しならお気軽に問い合わせ下さい。インターネットに掲載されている物件は全て当社でまとめてご案内できます。お客様の為に好条件になる交渉をさせて頂きます。
提供:(株)ワイエス・ホーム国分寺店(SUUMO経由)

詳細情報 西武国分寺線 鷹の台駅 徒歩13分 4階建 築30年
物件紹介
西武国分寺線鷹の台駅から徒歩13分にあるマンションです。
おしゃれなデザイナーズ物件!人気の角部屋で周囲の居住者の生活音も気になりにくく、また、フローリングのお部屋なのでお掃除もラクラク。キッチンはシステムキッチン仕様になっていますので、お料理好きの方にもぴったり。また、バス・トイレは別で、のんびりお風呂タイムも楽しめるでしょう。
通信設備面では、インターネット接続が可能です。また、CATVにも対応しているので、おうち時間も充実するでしょう(別途工事、契約料が必要な場合あり)。
建物にはエレベーターがついているので、重い荷物があっても安心。
おしゃれなデザイナーズ物件!人気の角部屋で周囲の居住者の生活音も気になりにくく、また、フローリングのお部屋なのでお掃除もラクラク。キッチンはシステムキッチン仕様になっていますので、お料理好きの方にもぴったり。また、バス・トイレは別で、のんびりお風呂タイムも楽しめるでしょう。
通信設備面では、インターネット接続が可能です。また、CATVにも対応しているので、おうち時間も充実するでしょう(別途工事、契約料が必要な場合あり)。
建物にはエレベーターがついているので、重い荷物があっても安心。
お金・契約の情報
※「-」と表示されているものは、実際は料金が発生するものもございます。詳細はお問い合わせください。
| 家賃 | 11.9万円 | 管理費・共益費 | 7,000円 |
|---|---|---|---|
| 敷金 | 23.8万円 | 礼金 | なし |
| 入居決定でお祝い金最大100,000円 | |||
| 保証金 | - | 償却・敷引 | - |
| 住宅保険料 | - | 更新料 | - |
| 契約形態 | - | 契約期間 | - |
| 入居・引渡期間 | - | 現況 | - |
| 契約備考 | 2LDK 二人入居可/子供可 普通借家2年 損保【要】 バストイレ別、エアコン、ガスコンロ対応、クロゼット、フローリング、室内洗濯置、陽当り良好、シューズボックス、追焚機能浴室、角住戸、温水洗浄便座、脱衣所、エレベーター、駐輪場、光ファイバー、礼金不要、閑静な住宅地、2面採光、3口以上コンロ、グリル付、全居室洋室、保証人不要、二人入居相談、全居室フローリング、3面採光、LDK15畳以上、LDK20畳以上、クロゼット2ヶ所、2駅利用可、LDK12畳以上、LDK18畳以上、全居室6畳以上、都市ガス、年度内入居可 入居日:'26年1月中旬 | ||
部屋の情報
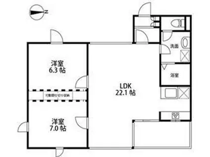
| 間取り | 2LDK | 専有面積 | 75.57m2 |
|---|---|---|---|
| 所在階 / 向き | 1階 / 東 | バルコニー面積 | - |
| 水道 / ガス | - | ||
| 設備 | バス・トイレ別、追い焚き、インターネット対応、エアコン、エレベーター、温水洗浄便座、角部屋、フローリング、2口コンロ、コンロ:ガス、洗濯機:室内 | ||
| 当社物件ID | 29965528 | ||
建物の情報
| 建物名 | 西武国分寺線 鷹の台駅 徒歩13分 4階建 築30年 | ||
|---|---|---|---|
| 所在地 | 東京都小平市小川町 | ||
| 交通 | 西武国分寺線 鷹の台駅 徒歩13分 JR武蔵野線 新小平駅 徒歩28分 西武拝島線 小川駅(東京) 徒歩30分 | ||
| 階数 | 4階建 | 総戸数 | - |
| 築年月 | 1996年10月 / 築30年 | エレベーター | あり |
| 駐車場 | なし | バイク置き場 | - |
| 駐輪場 | あり | 管理人/管理会社 | - |
| 周辺環境 | その他 鷹の台駅(その他)まで1011m | ||
| 建物種別 | マンション | 建物構造 | RC(鉄筋コンクリート) |
この部屋の取扱い不動産会社
| 会社名 | エステートトーワ FC田無店(株)プロハウス(SUUMO経由) | ||
|---|---|---|---|
| 所在地 | 東京都西東京市南町4-1-11 | 交通 | - |
| 営業時間 | 10:00~19:00 | 定休日 | 年末年始 |
| 免許番号 | 東京都知事94510 | 取引態様 | 仲介 |
| 不動産会社管理番号 | 100480030163 | 当社管理番号 | 89 |
| 所属団体 | (公社)全日本不動産協会東京都本部会員 | ||
| 公正取引協議会 | (公社)首都圏不動産公正取引協議会加盟 | ||
| 取扱い物件情報 | 物件詳細へ | ||
※各種情報と現状に差異がある場合は、現状優先となります。問い合わせをすることで、より詳しい条件、情報を確認する事ができます。
提供:エステートトーワ FC田無店(株)プロハウス(SUUMO経由)
この物件が気になったら掲載期限まであと10日
西武国分寺線 鷹の台駅 徒歩13分 4階建 築30年に条件(家賃・エリア)が近い物件一覧
| 写真 | 家賃 管理費等 | 敷金 礼金 | 間取り 専有面積 | 築年数 | 最寄り駅 所在地 | キープ | 詳細 |
|---|---|---|---|---|---|---|---|
マンション HY.S MAXIV立川錦町(1K/2階) | |||||||
![]() | 8.5万円 8,000円 | なし 8.5万円 | 1K 23.47m2 | 築4年 | 多摩モノレール 立川南駅 徒歩8分 中央本線 立川駅 徒歩9分 南武線 西国立駅 徒歩16分 東京都立川市錦町2丁目 | 詳細を見る | |
マンション NーSTAGE上北台(1K/9階) | |||||||
![]() | 8.5万円 9,000円 | 8.5万円 8.5万円 | 1K 25.9m2 | 築5年 | 多摩都市モノレール 上北台駅 徒歩1分 多摩都市モノレール 桜街道駅 徒歩10分 西武拝島線 玉川上水駅 徒歩20分 東京都東大和市上北台 | 詳細を見る | |
アパート KEIAI RESIDENCE 久米川(1LDK/1階) | |||||||
![]() | 7.9万円 3,500円 | なし 7.9万円 | 1LDK 28.28m2 | 築1年 | 西武拝島線 萩山駅 徒歩9分 西武新宿線 久米川駅 徒歩10分 西武多摩湖線 八坂駅(東京) 徒歩14分 東京都東村山市萩山町 | 詳細を見る | |
アパート 立川セイワレジデンスⅡ(1LDK/3階) | |||||||
![]() | 11万円 5,000円 | なし なし | 1LDK 31.39m2 | 築1年 | 青梅線 西立川駅 徒歩12分 中央本線 立川駅 徒歩15分 多摩モノレール 立川北駅 徒歩16分 東京都立川市富士見町2丁目 | 詳細を見る | |
マンション グランドコンシェルジュ立川(1K/9階) | |||||||
![]() | 9万円 5,000円 | 9万円 9万円 | 1K 24.53m2 | 築18年 | JR中央線 立川駅 徒歩9分 多摩都市モノレール 立川北駅 徒歩9分 JR南武線 西国立駅 徒歩17分 東京都立川市高松町 | 詳細を見る | |
アパート ポム・ド・テール・ミリュー(1LDK/1階) | |||||||
![]() | 8.3万円 3,500円 | なし 8.3万円 | 1LDK 52.74m2 | 築17年 | 西武池袋・豊島線 清瀬駅 徒歩35分 西武鉄道新宿線 小平駅 徒歩37分 東京都東久留米市下里2丁目 | 詳細を見る | |
アパート アクシス(1LDK/2階) | |||||||
![]() | 10.5万円 5,500円 | なし 15万円 | 1LDK 36.67m2 | 築13年 | 多摩都市モノレール 立飛駅 徒歩20分 多摩都市モノレール 高松駅(東京) 徒歩20分 多摩都市モノレール 泉体育館駅 徒歩20分 東京都立川市栄町 | 詳細を見る | |
アパート SWEET HOMEⅡ(1LDK/1階) | |||||||
![]() | 11.8万円 3,000円 | 11.8万円 11.8万円 | 1LDK 40.36m2 | 新築 | 中央本線 国立駅 徒歩8分 武蔵野線 西国分寺駅 徒歩18分 東京都国分寺市日吉町2丁目 | 詳細を見る | |








