賃貸マンション
ビレッジハウス田島1号棟の賃貸物件情報(2K/1階)
| 家賃 | 管理費等 | 敷金 | 礼金 | 間取り | 専有面積 |
|---|---|---|---|---|---|
| 3.31万円 | なし | なし | なし | 2K | 33.09m2 |
入居決定でお祝い金最大100,000円
Point
まずはお問い合わせ!
不動産会社は街のプロ、あなたに合った物件がきっと見つかります。
提供:ビレッジハウス住まい相談センター

詳細情報 ビレッジハウス田島1号棟
物件紹介
ビレッジハウス田島1号棟は山陽本線防府駅から徒歩59分にあるマンションです。
人気の角部屋。周囲の居住者の生活音も気になりにくい場所です。バス・トイレ別の仕様で、のんびりお風呂タイムも楽しめます。
人気の角部屋。周囲の居住者の生活音も気になりにくい場所です。バス・トイレ別の仕様で、のんびりお風呂タイムも楽しめます。
お金・契約の情報
※「-」と表示されているものは、実際は料金が発生するものもございます。詳細はお問い合わせください。
| 家賃 | 3.31万円 | 管理費・共益費 | なし |
|---|---|---|---|
| 敷金 | なし | 礼金 | なし |
| フリーレント | 0ヶ月 | ||
| 入居決定でお祝い金最大100,000円 | |||
| 保証金 | - | 償却・敷引 | - |
| 住宅保険料 | 1万円(2年) | 更新料 | - |
| 保証会社利用 | - | 保証会社名 | - |
| 保証会社費用 | - | 保証会社備考 | - |
| 契約形態 | - | 契約期間 | - |
| 入居・引渡期間 | - | 現況 | 空室 |
| 入居可能条件 | 2人入居可、高齢者相談、学生可 | ||
| 契約備考 | 契約種類:普通契約、24時間緊急対応 | ||
部屋の情報
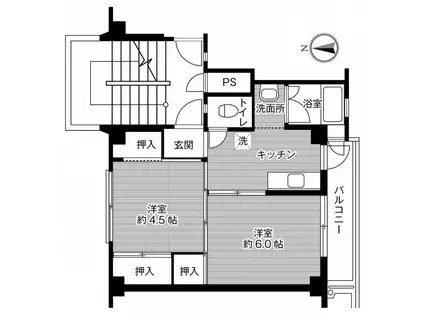
| 間取り | 2K | 専有面積 | 33.09m2 |
|---|---|---|---|
| 所在階 / 向き | 1階 / 南東 | バルコニー面積 | - |
| 水道 / ガス | - | ||
| 設備 | バス・トイレ別、角部屋、バルコニー、給湯、洗濯機:室外 | ||
| 当社物件ID | 159295452 | ||
建物の情報
| 建物名 | ビレッジハウス田島1号棟 | ||
|---|---|---|---|
| 所在地 | 山口県防府市大字田島545-2 | ||
| 交通 | 山陽本線 防府駅 徒歩59分 山陽本線 大道駅 徒歩99分 | ||
| 階数 | 5階建 | 総戸数 | - |
| 築年月 | 1971年05月 / 築55年 | エレベーター | - |
| 駐車場 | 空有 3,300円/月 円 | バイク置き場 | - |
| 駐輪場 | - | 管理人/管理会社 | 日勤 |
| 建物種別 | マンション | 建物構造 | RC(鉄筋コンクリート) |
この部屋の取扱い不動産会社
| 会社名 | ビレッジハウス住まい相談センター | ||
|---|---|---|---|
| 所在地 | 愛知県名古屋市中区大須4-10-32 上前津KDビル5階 | 交通 | 名城線「上前津駅」徒歩3分 |
| 営業時間 | 平日:9:00-18:30/土日祝:9:00-18:00 | 定休日 | 年末年始休業:2025年12月27日~2026年1月4日 |
| 免許番号 | 東京都知事(2)第100758号 | 取引態様 | 貸主 |
| 不動産会社管理番号 | 00012431899 | 当社管理番号 | 459 |
| 所属団体 | 公益社団法人東京都宅地建物取引業協会会員 日本賃貸住宅管理協会会員 | ||
| 取扱い物件情報 | 物件詳細へ | ||
※各種情報と現状に差異がある場合は、現状優先となります。問い合わせをすることで、より詳しい条件、情報を確認する事ができます。
提供:ビレッジハウス住まい相談センター
この物件が気になったら掲載期限まであと12日
ビレッジハウス田島1号棟に条件(家賃・エリア)が近い物件一覧
| 写真 | 家賃 管理費等 | 敷金 礼金 | 間取り 専有面積 | 築年数 | 最寄り駅 所在地 | キープ | 詳細 |
|---|---|---|---|---|---|---|---|
マンション ラテラスⅡ(ワンルーム/3階) | |||||||
![]() | 5万円 3,000円 | 5万円 5万円 | ワンルーム 36.03m2 | 新築 | 山口線 湯田温泉駅 徒歩12分 山口県山口市平井 | 詳細を見る | |
マンション メゾン木の花(1K/1階) | |||||||
| 2.9万円 5,500円 | なし 4万円 | 1K 24m2 | 築29年 | 山口県山口市桜畠5丁目 | 詳細を見る | ||
アパート エルマーベラス Ⅰ(2LDK/1階) | |||||||
| 4.4万円 1,500円 | なし なし | 2LDK 51.79m2 | 築28年 | 山口線 矢原駅 徒歩13分 山口県山口市矢原 | 詳細を見る | ||
アパート 石山ハイツ(3DK/1階) | |||||||
| 4.8万円 3,000円 | なし なし | 3DK 66.21m2 | 築44年 | 山口県山口市大内矢田南4丁目 | 詳細を見る | ||
マンション ラテラスⅠ(1K/3階) | |||||||
![]() | 5万円 3,000円 | 5万円 5万円 | 1K 27.97m2 | 新築 | 山口線 湯田温泉駅 徒歩17分 山口県山口市平井 | 詳細を見る | |
アパート メゾンエクセラ(2LDK/1階) | |||||||
![]() | 3.9万円 2,000円 | なし なし | 2LDK 46.37m2 | 築35年 | 山口県山口市平井 | 詳細を見る | |
アパート センターロードB棟(1K/1階) | |||||||
![]() | 3.48万円 5,500円 | なし 3万円 | 1K 26.24m2 | 築28年 | 山口県山口市平井 | 詳細を見る | |
アパート ドリームハイツ(1K/2階) | |||||||
![]() | 2万円 なし | なし なし | 1K 23.18m2 | 築37年 | JR山口線 矢原駅 徒歩8分 山口県山口市矢原 | 詳細を見る | |






