賃貸マンション
パサニアガーデン目白台の賃貸物件情報(ワンルーム/3階)
| 家賃 | 管理費等 | 敷金 | 礼金 | 間取り | 専有面積 |
|---|---|---|---|---|---|
| 8.7万円 | 8,000円 | 8.7万円 | 8.7万円 | ワンルーム | 25.92m2 |
入居決定でお祝い金最大100,000円
- 保証金
- -
- 償却・敷引
- -
- 築年数
- 築45年
- 所在階
- 3階
- 向き
- 南西
- 交通
- 東京メトロ副都心線 雑司が谷駅(東京メトロ) 徒歩1分
JR山手線 目白駅 徒歩10分
- 所在地
- 東京都豊島区高田
パサニアガーデン目白台
[地図を表示]
Point
敷金・礼金1ヶ月!/南西向き明るいお部屋/2025年4月フルリノベーション/システムキッチン/シャワールーム/エアコン/CATV/宅配ボックス/オートロック21:00~6:00/※告知事項あり
提供:シャーメゾンショップ (株)ベスト・ホームズ(SUUMO経由)

詳細情報 パサニアガーデン目白台
物件紹介
パサニアガーデン目白台は東京メトロ副都心線雑司が谷駅から徒歩1分にあり、駅近で通勤通学に便利なマンションです。
このお部屋は2階以上に位置しているので、通行人や周囲の住人からの視線が気になりにくく、防犯面でも安心。インターホンにはTVモニタもついているため、相手の顔を確認してから来客対応することができます。
人気の南向きのお部屋。キッチンはシステムキッチン仕様になっていますので、お料理好きの方にもぴったり。また、バス・トイレは別で、のんびりお風呂タイムも楽しめるでしょう。
通信設備面ではCATVに対応しているので、おうち時間も充実するでしょう(別途工事、契約料が必要な場合あり)。
建物にはエレベーターがついているので、重い荷物があっても安心。共用部には宅配ボックスが設定されているので、不在の時にも荷物を受け取ることができます。
このお部屋は2階以上に位置しているので、通行人や周囲の住人からの視線が気になりにくく、防犯面でも安心。インターホンにはTVモニタもついているため、相手の顔を確認してから来客対応することができます。
人気の南向きのお部屋。キッチンはシステムキッチン仕様になっていますので、お料理好きの方にもぴったり。また、バス・トイレは別で、のんびりお風呂タイムも楽しめるでしょう。
通信設備面ではCATVに対応しているので、おうち時間も充実するでしょう(別途工事、契約料が必要な場合あり)。
建物にはエレベーターがついているので、重い荷物があっても安心。共用部には宅配ボックスが設定されているので、不在の時にも荷物を受け取ることができます。
お金・契約の情報
※「-」と表示されているものは、実際は料金が発生するものもございます。詳細はお問い合わせください。
| 家賃 | 8.7万円 | 管理費・共益費 | 8,000円 |
|---|---|---|---|
| 敷金 | 8.7万円 | 礼金 | 8.7万円 |
| 入居決定でお祝い金最大100,000円 | |||
| 保証金 | - | 償却・敷引 | - |
| 住宅保険料 | - | 更新料 | - |
| 保証会社利用 | 必須 | 保証会社名 | リクルートフォレントインシュア |
| 保証会社費用 | - | 保証会社備考 | オリコフォレントインシュア利用必 初回保証料として賃料共益費合計の50%、1年毎に12,000円 |
| 契約形態 | - | 契約期間 | - |
| 入居・引渡期間 | 相談 | 現況 | - |
| 契約備考 | 写真・間取図など賃貸情報たくさんのベスト・ホームズwebへ!池袋ターミナル沿線物件は“地域情報NO.1宣言”の【ベスト賃貸検索システム】で見つかります!新築・ペット可・デザイナーズなどお任せ下さい! 合計9.35万円(内訳:退去時・クリーニング費用49500円/鍵交換費用44000円) ワンルーム 普通借家2年 損保【要】 バストイレ別、バルコニー、エアコン、クロゼット、TVインターホン、室内洗濯置、シューズボックス、システムキッチン、温水洗浄便座、脱衣所、エレベーター、洗面所独立、洗面化粧台、2口コンロ、駐輪場、宅配ボックス、CATV、分譲賃貸、グリル付、保証人不要、敷金1ヶ月、2沿線利用可、保証金不要、2駅利用可、駅前、駅徒歩5分以内、敷地内ごみ置き場、南西向き、都市ガス、シャワールーム、リノベーション、礼金1ヶ月 | ||
部屋の情報
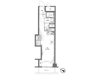
| 間取り | ワンルーム | 専有面積 | 25.92m2 |
|---|---|---|---|
| 所在階 / 向き | 3階 / 南西 | バルコニー面積 | - |
| 水道 / ガス | - | ||
| 設備 | バス・トイレ別、2階以上、テレビドアホン、宅配ボックス、システムキッチン、エアコン、エレベーター、温水洗浄便座、南向き、バルコニー、洗髪洗面化粧台、2口コンロ、CATV、洗濯機:室内 | ||
| 当社物件ID | 158872842 | ||
建物の情報
| 建物名 | パサニアガーデン目白台 | ||
|---|---|---|---|
| 所在地 | 東京都豊島区高田 | ||
| 交通 | 東京メトロ副都心線 雑司が谷駅(東京メトロ) 徒歩1分 JR山手線 目白駅 徒歩10分 | ||
| 階数 | 8階建 | 総戸数 | 159戸 |
| 築年月 | 1981年11月 / 築45年 | エレベーター | あり |
| 駐車場 | なし | バイク置き場 | - |
| 駐輪場 | あり | 管理人/管理会社 | - |
| 建物種別 | マンション | 建物構造 | SRC(鉄骨鉄筋コンクリート) |
この部屋の取扱い不動産会社
| 会社名 | シャーメゾンショップ (株)ベスト・ホームズ(SUUMO経由) | ||
|---|---|---|---|
| 所在地 | 東京都板橋区常盤台1-7-8 | 交通 | - |
| 営業時間 | AM10:00~PM6:00 | 定休日 | 水曜日 |
| 免許番号 | 東京都知事44664 | 取引態様 | 仲介 |
| 不動産会社管理番号 | 100438469289 | 当社管理番号 | 89 |
| 所属団体 | (公社)東京都宅地建物取引業協会会員 | ||
| 公正取引協議会 | (公社)首都圏不動産公正取引協議会加盟 | ||
| 取扱い物件情報 | 物件詳細へ | ||
※各種情報と現状に差異がある場合は、現状優先となります。問い合わせをすることで、より詳しい条件、情報を確認する事ができます。
提供:シャーメゾンショップ (株)ベスト・ホームズ(SUUMO経由)
この物件が気になったら掲載期限まであと11日
パサニアガーデン目白台に条件(家賃・エリア)が近い物件一覧
| 写真 | 家賃 管理費等 | 敷金 礼金 | 間取り 専有面積 | 築年数 | 最寄り駅 所在地 | キープ | 詳細 |
|---|---|---|---|---|---|---|---|
マンション コスモリード文京千駄木(1DK/5階) | |||||||
![]() | 13万円 1.5万円 | 13万円 なし | 1DK 36.2m2 | 築36年 | 東京地下鉄千代田線 千駄木駅 徒歩3分 東京地下鉄南北線 本駒込駅 徒歩10分 山手線 西日暮里駅 徒歩16分 東京都文京区千駄木1丁目 | 詳細を見る | |
マンション ガラ・シティ茗荷谷(1K/10階) | |||||||
![]() | 8.8万円 9,000円 | 8.8万円 17.6万円 | 1K 22.41m2 | 築25年 | 東京地下鉄丸ノ内線 茗荷谷駅 徒歩6分 東京地下鉄丸ノ内線 新大塚駅 徒歩9分 東京地下鉄有楽町線 護国寺駅 徒歩9分 東京都文京区大塚3丁目 | 詳細を見る | |
マンション LOG文京SENDAGI(1K/8階) | |||||||
![]() | 12.3万円 1万円 | なし なし | 1K 26.07m2 | 築10年 | 東京地下鉄千代田線 千駄木駅 徒歩4分 山手線 西日暮里駅 徒歩6分 山手線 日暮里駅 徒歩12分 東京都文京区千駄木3丁目 | 詳細を見る | |
マンション プレール・ドゥーク文京湯島(1K/11階) | |||||||
![]() | 12.5万円 1万円 | なし 12.5万円 | 1K 26.22m2 | 築5年 | 東京地下鉄千代田線 湯島駅 徒歩1分 東京都大江戸線 上野御徒町駅 徒歩5分 東京地下鉄銀座線 上野広小路駅 徒歩5分 東京都文京区湯島3丁目 | 詳細を見る | |
マンション ノーブルイズミ(ワンルーム/3階) | |||||||
![]() | 7.5万円 なし | 7.5万円 7.5万円 | ワンルーム 17.5m2 | 築33年 | 山手線 西日暮里駅 徒歩9分 東京地下鉄千代田線 千駄木駅 徒歩9分 山手線 田端駅 徒歩11分 東京都文京区千駄木4丁目 | 詳細を見る | |
マンション エスコート音羽(1K/5階) | |||||||
![]() | 9.3万円 1万円 | 9.3万円 9.3万円 | 1K 20.2m2 | 築25年 | 東京地下鉄有楽町線 護国寺駅 徒歩2分 東京都文京区音羽2丁目 | 詳細を見る | |
マンション エスティメゾン千石(1K/1階) | |||||||
![]() | 9.7万円 1万円 | 9.7万円 9.7万円 | 1K 20.2m2 | 築17年 | 東京都三田線 千石駅 徒歩7分 山手線 巣鴨駅 徒歩9分 東京都文京区千石4丁目 | 詳細を見る | |
マンション エコロジー白山レジデンス(1K/3階) | |||||||
![]() | 9.6万円 7,000円 | 9.6万円 9.6万円 | 1K 21m2 | 築20年 | 東京都三田線 千石駅 徒歩6分 東京都三田線 白山駅(東京) 徒歩7分 東京地下鉄南北線 本駒込駅 徒歩9分 東京都文京区白山5丁目 | 詳細を見る | |









