賃貸マンション
京都市烏丸線 北大路駅 徒歩10分 3階建 築20年の賃貸物件情報(1K/3階)
| 家賃 | 管理費等 | 敷金 | 礼金 | 間取り | 専有面積 |
|---|---|---|---|---|---|
| 7.2万円 | 6,000円 | 10万円 | 15万円 | 1K | 27.08m2 |
入居決定でお祝い金最大100,000円
Point
まるでギリシャの白い洋館 鞍馬口駅近デザイナーズ。全戸独立部屋。まるでギリシャの白い館
提供:株式会社 京都ライフ 北山店(賃貸スモッカ経由)

詳細情報 京都市烏丸線 北大路駅 徒歩10分 3階建 築20年
物件紹介
京都市烏丸線北大路駅から徒歩10分にあり、駅近で通勤通学に便利なマンションです。
このお部屋は2階以上に位置しているので通行人や周囲の住人からの視線が気になりにくく、建物のエントランスはオートロックがついているので防犯性が高くなっています。
おしゃれなデザイナーズ物件!人気の角部屋で周囲の居住者の生活音も気になりにくく、また、フローリングのお部屋なのでお掃除もラクラク。室内にはウォークインクローゼットがありますので、たくさんの荷物も効率的に収納ができます。キッチンはシステムキッチン仕様になっていますので、お料理好きの方にもぴったり。また、バス・トイレは別で、のんびりお風呂タイムも楽しめるでしょう。
通信設備面では、インターネット接続が可能です。また、BSアンテナもありますので、おうち時間も充実するでしょう(別途工事、契約料が必要な場合あり)。
このお部屋は2階以上に位置しているので通行人や周囲の住人からの視線が気になりにくく、建物のエントランスはオートロックがついているので防犯性が高くなっています。
おしゃれなデザイナーズ物件!人気の角部屋で周囲の居住者の生活音も気になりにくく、また、フローリングのお部屋なのでお掃除もラクラク。室内にはウォークインクローゼットがありますので、たくさんの荷物も効率的に収納ができます。キッチンはシステムキッチン仕様になっていますので、お料理好きの方にもぴったり。また、バス・トイレは別で、のんびりお風呂タイムも楽しめるでしょう。
通信設備面では、インターネット接続が可能です。また、BSアンテナもありますので、おうち時間も充実するでしょう(別途工事、契約料が必要な場合あり)。
お金・契約の情報
※「-」と表示されているものは、実際は料金が発生するものもございます。詳細はお問い合わせください。
| 家賃 | 7.2万円 | 管理費・共益費 | 6,000円 |
|---|---|---|---|
| 敷金 | 10万円 | 礼金 | 15万円 |
| 入居決定でお祝い金最大100,000円 | |||
| 保証金 | - | 償却・敷引 | - |
| 住宅保険料 | 住宅保険料あり | 更新料 | - |
| 契約形態 | - | 契約期間 | 2年 |
| 入居・引渡期間 | 2026年01月中旬 | 現況 | 賃貸中 |
| 契約備考 | 地下鉄北大路駅まで徒歩10分のデザイナーズマンションです。嬉しい3点セパレートに追い焚き機能付浴室、システムキッチン、温水洗浄便座など充実の設備。オートロック、TVホンでセキュリティも安心です。コンビニ、スーパー、ドラッグストアなど近くにあって便利ですよ。インターネットは光対応、無料でご利用いただけます。 書類代:11,000円 更新料:1ヶ月 その他設備/条件:最上階の物件、コンロ2口以上、TVドアホン | ||
部屋の情報
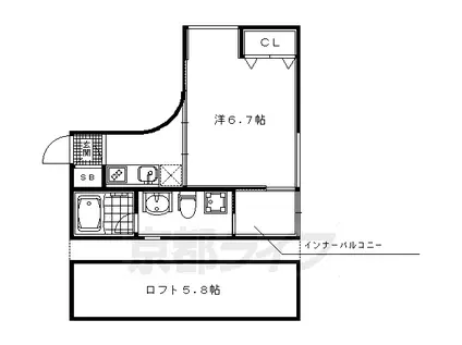
| 間取り | 1K | 専有面積 | 27.08m2 |
|---|---|---|---|
| 間取り詳細 | 洋室(6.6帖)、K(3.5帖)、その他(5.8帖) | ||
| 所在階 / 向き | 3階 / 東 | バルコニー面積 | - |
| 水道 / ガス | ガス【都市】 | ||
| 設備 | バス・トイレ別、2階以上、オートロック、追い焚き、インターネット対応、システムキッチン、エアコン、温水洗浄便座、角部屋、バルコニー、フローリング、ロフトあり、コンロ:ガス、デザイナーズ、BSアンテナ、洗濯機:室内 | ||
| 当社物件ID | 159814841 | ||
建物の情報
| 建物名 | 京都市烏丸線 北大路駅 徒歩10分 3階建 築20年 | ||
|---|---|---|---|
| 所在地 | 京都府京都市上京区竹園町 | ||
| 交通 | 京都市烏丸線 北大路駅 徒歩10分 京都市烏丸線 今出川駅 徒歩11分 | ||
| 階数 | 3階建 | 総戸数 | - |
| 築年月 | 2006年02月 / 築20年 | エレベーター | - |
| 駐車場 | - | バイク置き場 | - |
| 駐輪場 | あり | 管理人/管理会社 | - |
| 建物種別 | マンション | 建物構造 | RC(鉄筋コンクリート) |
この部屋の取扱い不動産会社
| 会社名 | 株式会社 京都ライフ 北山店(賃貸スモッカ経由) | ||
|---|---|---|---|
| 所在地 | 京都市北区上賀茂岩ヶ垣内町98-2 | 交通 | - |
| 営業時間 | - | 定休日 | - |
| 免許番号 | 京都府知事(11)第6353号 | 取引態様 | 仲介 |
| 不動産会社管理番号 | kyotolife_28605-303-13 | 当社管理番号 | 463 |
| 所属団体 | 京都府宅地建物取引業協会\n公益社団法人近畿地区不動産公正取引協議会 | ||
| 公正取引協議会 | 全国宅地建物取引業保証協会 | ||
| 取扱い物件情報 | 物件詳細へ | ||
※各種情報と現状に差異がある場合は、現状優先となります。問い合わせをすることで、より詳しい条件、情報を確認する事ができます。
提供:株式会社 京都ライフ 北山店(賃貸スモッカ経由)
この物件が気になったら掲載期限まであと6日
京都市烏丸線 北大路駅 徒歩10分 3階建 築20年に条件(家賃・エリア)が近い物件一覧
| 写真 | 家賃 管理費等 | 敷金 礼金 | 間取り 専有面積 | 築年数 | 最寄り駅 所在地 | キープ | 詳細 |
|---|---|---|---|---|---|---|---|
一戸建て 京都市烏丸線 北大路駅 徒歩19分 築56年(5K) | |||||||
![]() | 8.7万円 なし | 17.4万円 なし | 5K 68.01m2 | 築56年 | 京都市烏丸線 北大路駅 徒歩19分 京都市烏丸線 鞍馬口駅 徒歩23分 京都府京都市北区紫野東野町 | 詳細を見る | |
アパート 京都市烏丸線 北大路駅 徒歩6分 築29年(1DK/2階) | |||||||
![]() | 5.5万円 なし | 5.5万円 5.5万円 | 1DK 30.12m2 | 築29年 | 京都市烏丸線 北大路駅 徒歩6分 京都市烏丸線 北山駅(京都) 徒歩21分 京都府京都市北区紫竹下梅ノ木町 | 詳細を見る | |
マンション 京福北野線 北野白梅町駅 徒歩20分 築5年(1K/4階) | |||||||
![]() | 6.3万円 7,000円 | なし 15万円 | 1K 23.4m2 | 築5年 | 京福北野線 北野白梅町駅 徒歩20分 京都市烏丸線 今出川駅 徒歩23分 京都府京都市上京区新猪熊町 | 詳細を見る | |
マンション コーポ早河(2DK/3階) | |||||||
![]() | 6万円 3,000円 | 5万円 5万円 | 2DK 36.45m2 | 築48年 | 京都市烏丸線 北大路駅 徒歩14分 京都府京都市北区紫野上門前町 | 詳細を見る | |
マンション アビタシオン鴨川(ワンルーム/1階) | |||||||
![]() | 5.5万円 5,000円 | 5万円 10万円 | ワンルーム 34.13m2 | 築35年 | 地下鉄烏丸線 鞍馬口駅 徒歩8分 地下鉄烏丸線 今出川駅 徒歩15分 京阪鴨東線 出町柳駅 徒歩15分 京都府京都市上京区鶴山町 | 詳細を見る | |
マンション 京福北野線 北野白梅町駅 徒歩13分 築42年(1K/2階) | |||||||
![]() | 4.4万円 5,000円 | なし 4.4万円 | 1K 16.4m2 | 築42年 | 京福北野線 北野白梅町駅 徒歩13分 京都市烏丸線 今出川駅 徒歩19分 京都府京都市上京区東上善寺町 | 詳細を見る | |
マンション THE SEASONS京都紫野(1K/3階) | |||||||
![]() | 5.8万円 5,000円 | 5.8万円 5.8万円 | 1K 23.79m2 | 築7年 | 京福電鉄北野線 北野白梅町駅 徒歩19分 地下鉄烏丸線 鞍馬口駅 徒歩25分 地下鉄烏丸線 今出川駅 徒歩29分 京都府京都市北区紫野中柏野町 | 詳細を見る | |
アパート グランデュール遊田(1LDK/2階) | |||||||
![]() | 6.8万円 3,000円 | なし 13.6万円 | 1LDK 40.82m2 | 築12年 | 近鉄京都線 伊勢田駅 徒歩15分 JR奈良線 JR小倉駅 徒歩19分 近鉄京都線 大久保駅(京都) 徒歩28分 京都府宇治市伊勢田町遊田 | 詳細を見る | |









