賃貸マンション
クイズ恵比寿の賃貸物件情報(1K/4階)
| 家賃 | 管理費等 | 敷金 | 礼金 | 間取り | 専有面積 |
|---|---|---|---|---|---|
| 31万円 | 1万円 | 31万円 | なし | 1K | 48.08m2 |
入居決定でお祝い金最大100,000円
- 保証金
- -
- 償却・敷引
- -
- 築年数
- 築22年
- 所在階
- 4階
- 向き
- 北
Point
セキュリティ面は、TVインターホン・オートロックなどを設置しているので安全面でも優れております。共用部には宅配ボックスが備え付けられているため、急なお出かけや不在の際にも荷物を受け取ることが可能です。
提供:NAVI HOME(株)目黒店(SUUMO経由)

詳細情報 クイズ恵比寿
物件紹介
クイズ恵比寿はJR山手線恵比寿駅から徒歩1分にあり、駅近で通勤通学に便利なマンションです。
このお部屋は2階以上に位置しているので、通行人や周囲の住人からの視線が気になりにくく、防犯面でも安心。建物のエントランスはオートロックがついており、インターホンにはTVモニタもついているため、相手の顔を確認してから来客対応することができます。
おしゃれなデザイナーズ物件!人気の角部屋で周囲の居住者の生活音も気になりにくく、また、フローリングのお部屋なのでお掃除もラクラク。室内にはウォークインクローゼットがありますので、たくさんの荷物も効率的に収納ができます。キッチンはシステムキッチン仕様になっていますので、お料理好きの方にもぴったり。バス・トイレは別なので、のんびりお風呂タイムも楽しめるでしょう。また、雨の日でも浴室乾燥機を使えば、お洗濯も問題ありません。
通信設備面では、インターネットが無料で使えるので、月々の出費を抑えられるのも魅力です。また、BSアンテナ・CSアンテナがありCATVにも対応しているので、おうち時間も充実するでしょう(別途工事、BS・CS・CATVの契約料等が必要な場合あり)。
建物にはエレベーターがついているので、重い荷物があっても安心。共用部には宅配ボックスが設定されているので、不在の時にも荷物を受け取ることができます。
このお部屋は2階以上に位置しているので、通行人や周囲の住人からの視線が気になりにくく、防犯面でも安心。建物のエントランスはオートロックがついており、インターホンにはTVモニタもついているため、相手の顔を確認してから来客対応することができます。
おしゃれなデザイナーズ物件!人気の角部屋で周囲の居住者の生活音も気になりにくく、また、フローリングのお部屋なのでお掃除もラクラク。室内にはウォークインクローゼットがありますので、たくさんの荷物も効率的に収納ができます。キッチンはシステムキッチン仕様になっていますので、お料理好きの方にもぴったり。バス・トイレは別なので、のんびりお風呂タイムも楽しめるでしょう。また、雨の日でも浴室乾燥機を使えば、お洗濯も問題ありません。
通信設備面では、インターネットが無料で使えるので、月々の出費を抑えられるのも魅力です。また、BSアンテナ・CSアンテナがありCATVにも対応しているので、おうち時間も充実するでしょう(別途工事、BS・CS・CATVの契約料等が必要な場合あり)。
建物にはエレベーターがついているので、重い荷物があっても安心。共用部には宅配ボックスが設定されているので、不在の時にも荷物を受け取ることができます。
お金・契約の情報
※「-」と表示されているものは、実際は料金が発生するものもございます。詳細はお問い合わせください。
| 家賃 | 31万円 | 管理費・共益費 | 1万円 |
|---|---|---|---|
| 敷金 | 31万円 | 礼金 | なし |
| 入居決定でお祝い金最大100,000円 | |||
| 保証金 | - | 償却・敷引 | - |
| 住宅保険料 | - | 更新料 | - |
| 保証会社利用 | 必須 | 保証会社名 | - |
| 保証会社費用 | - | 保証会社備考 | 保証会社利用必 初回:総賃料の50%、月額:総賃料の1% |
| 契約形態 | - | 契約期間 | - |
| 入居・引渡期間 | 即時 | 現況 | - |
| 契約備考 | ※退去時エアコン清掃費:壁掛け・床置き式1台あたり11000円(税込)、天井カセット型エアコン1台あたり27500円(税込)※室内清掃費用は1平米あたり1100円(税込)※2019年11月大規模修繕工事済 合計6.93万円(内訳:宅配カード発行料(任意)0.33万円エアコンクリーニング費用(1台)(壁掛け・床置き式)1.1万円エアコンクリーニング費用(1台)(天井カセット型)2.75万円鍵交換代2.75万円) 更新料 新賃料1.00ヶ月分 室内清掃費用 53900円 1K 普通借家2年 損保【2.2万円2年】 バストイレ別、バルコニー、エアコン、ガスコンロ対応、クロゼット、フローリング、TVインターホン、浴室乾燥機、オートロック、シューズボックス、システムキッチン、追焚機能浴室、温水洗浄便座、エレベーター、洗面所独立、洗面化粧台、宅配ボックス、CATV、光ファイバー、礼金不要、BS・CS、3口以上コンロ、防犯カメラ、独立型キッチン、全居室収納、全居室洋室、保証人不要、敷金1ヶ月、CATVインターネット、全居室フローリング、デザイナーズ、2沿線利用可、CS、ネット専用回線、洗濯機、ネット使用料不要、エアコン全室、乾燥機、24時間換気システム、クロゼット2ヶ所、耐震構造、2駅利用可、3駅以上利用可、3沿線以上利用可、駅徒歩5分以内、駅徒歩10分以内、敷地内ごみ置き場、寝室8畳以上、全居室6畳以上、全居室8畳以上、都市ガス、洗面所にドア、BS、年内入居可、年度内入居可、通風良好 | ||
部屋の情報
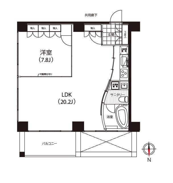
| 間取り | 1K | 専有面積 | 48.08m2 |
|---|---|---|---|
| 所在階 / 向き | 4階 / 北 | バルコニー面積 | - |
| 水道 / ガス | - | ||
| 設備 | バス・トイレ別、2階以上、オートロック、テレビドアホン、宅配ボックス、浴室乾燥機、追い焚き、インターネット対応、システムキッチン、エアコン、エレベーター、温水洗浄便座、バルコニー、フローリング、洗髪洗面化粧台、2口コンロ、コンロ:ガス、デザイナーズ、CATV、CSアンテナ、BSアンテナ、インターネット使用料無料 | ||
| 当社物件ID | 30360387 | ||
建物の情報
| 建物名 | クイズ恵比寿 | ||
|---|---|---|---|
| 所在地 | 東京都渋谷区恵比寿 | ||
| 交通 | JR山手線 恵比寿駅 徒歩1分 東急東横線 代官山駅 徒歩14分 東京メトロ日比谷線 中目黒駅 徒歩19分 | ||
| 階数 | 地下1地上10階建 | 総戸数 | - |
| 築年月 | 2005年03月 / 築22年 | エレベーター | あり |
| 駐車場 | なし | バイク置き場 | - |
| 駐輪場 | - | 管理人/管理会社 | - |
| 周辺環境 | その他 ファミリーマート 恵比寿駅東口店(コンビニ)まで1m その他 Bio c Bon(ビオ セ ボン) 恵比寿店(スーパー)まで3m その他 恵比寿ファーマシー(ドラッグストア)まで202m その他 セブンイレブン 渋谷恵比寿1丁目南店(コンビニ)まで286m その他 ファミリーマート 恵比寿南一丁目店(コンビニ)まで438m その他 ピーコックストア 恵比寿南店(スーパー)まで540m | ||
| 建物種別 | マンション | 建物構造 | RC(鉄筋コンクリート) |
この部屋の取扱い不動産会社
| 会社名 | NAVI HOME(株)恵比寿2nd(SUUMO経由) | ||
|---|---|---|---|
| 所在地 | 東京都渋谷区広尾1-1-39 恵比寿プライムスクエアタワー3階 | 交通 | - |
| 営業時間 | 9:00~21:00 | 定休日 | 定休日なし |
| 免許番号 | 東京都知事107196 | 取引態様 | 仲介 |
| 不動産会社管理番号 | 100457521901 | 当社管理番号 | 89 |
| 所属団体 | (公社)東京都宅地建物取引業協会会員 | ||
| 公正取引協議会 | (公社)首都圏不動産公正取引協議会加盟 | ||
| 取扱い物件情報 | 物件詳細へ | ||
※各種情報と現状に差異がある場合は、現状優先となります。問い合わせをすることで、より詳しい条件、情報を確認する事ができます。
提供:NAVI HOME(株)恵比寿2nd(SUUMO経由)
この物件が気になったら掲載期限まであと11日
クイズ恵比寿に条件(家賃・エリア)が近い物件一覧
| 写真 | 家賃 管理費等 | 敷金 礼金 | 間取り 専有面積 | 築年数 | 最寄り駅 所在地 | キープ | 詳細 |
|---|---|---|---|---|---|---|---|
マンション ライトテラス新宿御苑(1SLDK/10階) | |||||||
![]() | 34万円 2万円 | 34万円 なし | 1SLDK 57.97m2 | 築6年 | 東京メトロ丸ノ内線 新宿御苑前駅 徒歩5分 東京メトロ副都心線 新宿三丁目駅 徒歩8分 JR山手線 新宿駅 徒歩16分 東京都新宿区新宿 | 詳細を見る | |
マンション フリーディオ西麻布(1LDK/4階) | |||||||
![]() | 19.5万円 1万円 | 19.5万円 19.5万円 | 1LDK 41.78m2 | 築27年 | 東京メトロ日比谷線 広尾駅 徒歩6分 東京メトロ日比谷線 六本木駅 徒歩13分 東京メトロ千代田線 乃木坂駅 徒歩14分 東京都港区西麻布 | 詳細を見る | |
マンション ザ・パークハビオ代々木(1LDK/3階) | |||||||
![]() | 23.2万円 2万円 | 23.2万円 23.2万円 | 1LDK 33.11m2 | 築1年 | 小田急線 参宮橋駅 徒歩6分 小田急線 南新宿駅 徒歩6分 JR山手線 代々木駅 徒歩8分 東京都渋谷区代々木 | 詳細を見る | |
マンション TOP OF THE HILL(3LDK/2階) | |||||||
![]() | 27.5万円 8,000円 | 11万円 41.25万円 | 3LDK 63.8m2 | 築2年 | JR中央線 荻窪駅 徒歩11分 JR総武線 西荻窪駅 徒歩13分 京王井の頭線 久我山駅 徒歩30分 東京都杉並区南荻窪 | 詳細を見る | |
マンション グランドゥール広尾(2LDK/7階) | |||||||
![]() | 31.3万円 1.2万円 | 31.3万円 31.3万円 | 2LDK 66.85m2 | 築28年 | 東京地下鉄日比谷線 恵比寿駅 徒歩5分 東京都渋谷区広尾1丁目 | 詳細を見る | |
マンション ジャスパー中落合(2LDK/3階) | |||||||
![]() | 27.8万円 1.48万円 | なし 27.8万円 | 2LDK 73.68m2 | 築1年 | 西武新宿線 中井駅 徒歩7分 西武新宿線 下落合駅(東京) 徒歩9分 都営大江戸線 落合南長崎駅 徒歩12分 東京都新宿区中落合 | 詳細を見る | |
一戸建て 中央本線 阿佐ケ谷駅 徒歩13分 築4年(2SLDK) | |||||||
![]() | 36.6万円 なし | 36.6万円 なし | 2SLDK 93.15m2 | 築4年 | 中央本線 阿佐ケ谷駅 徒歩13分 東京都杉並区阿佐谷北3丁目 | 詳細を見る | |
マンション 千代田ビル(3LDK/5階) | |||||||
![]() | 21万円 8,000円 | 63万円 なし | 3LDK 63.37m2 | 築59年 | JR中央線 市ケ谷駅 徒歩6分 JR中央線 四ツ谷駅 徒歩7分 都営新宿線 曙橋駅 徒歩9分 東京都新宿区市谷本村町 | 詳細を見る | |








