賃貸マンション
近鉄京都線 小倉駅(京都) 徒歩3分 5階建 築37年の賃貸物件情報(2LDK/2階)
| 家賃 | 管理費等 | 敷金 | 礼金 | 間取り | 専有面積 |
|---|---|---|---|---|---|
| 6.5万円 | 1万円 | 3万円 | 5万円 | 2LDK | 41.83m2 |
入居決定でお祝い金最大100,000円
Point
短期契約専用条件 近鉄の駅まで徒歩圏内。商業施設も充実しています。
提供:株式会社 京都ライフ 丹波橋店(賃貸スモッカ経由)

詳細情報 近鉄京都線 小倉駅(京都) 徒歩3分 5階建 築37年
物件紹介
近鉄京都線小倉駅から徒歩3分にあり、駅近で通勤通学に便利なマンションです。
このお部屋は2階以上に位置しているので通行人や周囲の住人からの視線が気になりにくく、建物のエントランスはオートロックがついているので防犯性が高くなっています。
人気の角部屋で周囲の居住者の生活音も気になりにくく、また、フローリングのお部屋なのでお掃除もラクラク。バス・トイレ別の仕様で、のんびりお風呂タイムも楽しめます。
通信設備面ではBSアンテナがありますので、おうち時間も充実するでしょう(別途工事、契約料が必要な場合あり)。
建物にはエレベーターがついているので、重い荷物があっても安心。
このお部屋は2階以上に位置しているので通行人や周囲の住人からの視線が気になりにくく、建物のエントランスはオートロックがついているので防犯性が高くなっています。
人気の角部屋で周囲の居住者の生活音も気になりにくく、また、フローリングのお部屋なのでお掃除もラクラク。バス・トイレ別の仕様で、のんびりお風呂タイムも楽しめます。
通信設備面ではBSアンテナがありますので、おうち時間も充実するでしょう(別途工事、契約料が必要な場合あり)。
建物にはエレベーターがついているので、重い荷物があっても安心。
お金・契約の情報
※「-」と表示されているものは、実際は料金が発生するものもございます。詳細はお問い合わせください。
| 家賃 | 6.5万円 | 管理費・共益費 | 1万円 |
|---|---|---|---|
| 敷金 | 3万円 | 礼金 | 5万円 |
| 入居決定でお祝い金最大100,000円 | |||
| 保証金 | - | 償却・敷引 | - |
| 住宅保険料 | 住宅保険料あり | 更新料 | - |
| 契約形態 | - | 契約期間 | 2年 |
| 入居・引渡期間 | 即時 | 現況 | 空室 |
| 契約備考 | 近鉄小倉駅まですぐの2LDKマンションです(徒歩3分)。JR、近鉄のダブルアクセス。嬉しい3点セパレートなど充実の設備。オートロックでセキュリティも安心です。コンビニ、スーパー、ドラッグストアなど近くにあって便利ですよ。 更新料:無し 保証会社:利用必須 初回:3.8万円、更新時:1万円/1年 その他設備/条件:独立洗面台、即入居可 | ||
部屋の情報
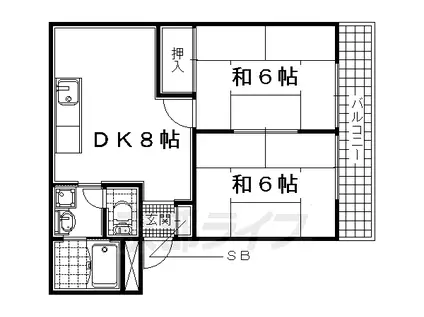
| 間取り | 2LDK | 専有面積 | 41.83m2 |
|---|---|---|---|
| 間取り詳細 | 和室(6帖)、和室(6帖)、DK(8帖) | ||
| 所在階 / 向き | 2階 / 東 | バルコニー面積 | - |
| 水道 / ガス | ガス【都市】 | ||
| 設備 | バス・トイレ別、2階以上、オートロック、エレベーター、角部屋、バルコニー、フローリング、BSアンテナ、洗濯機:室内 | ||
| 当社物件ID | 157998855 | ||
建物の情報
| 建物名 | 近鉄京都線 小倉駅(京都) 徒歩3分 5階建 築37年 | ||
|---|---|---|---|
| 所在地 | 京都府宇治市小倉町老ノ木 | ||
| 交通 | 近鉄京都線 小倉駅(京都) 徒歩3分 近鉄京都線 伊勢田駅 徒歩13分 | ||
| 階数 | 5階建 | 総戸数 | - |
| 築年月 | 1990年03月 / 築37年 | エレベーター | あり |
| 駐車場 | - | バイク置き場 | - |
| 駐輪場 | あり | 管理人/管理会社 | - |
| 建物種別 | マンション | 建物構造 | RC(鉄筋コンクリート) |
この部屋の取扱い不動産会社
| 会社名 | 株式会社 京都ライフ 丹波橋店(賃貸スモッカ経由) | ||
|---|---|---|---|
| 所在地 | 京都市伏見区京町北7丁目1-4 | 交通 | - |
| 営業時間 | - | 定休日 | - |
| 免許番号 | 京都府知事(11)第6353号 | 取引態様 | 仲介 |
| 不動産会社管理番号 | kyotolife_03011-201xx-05 | 当社管理番号 | 463 |
| 所属団体 | 京都府宅地建物取引業協会\n公益社団法人近畿地区不動産公正取引協議会 | ||
| 公正取引協議会 | 全国宅地建物取引業保証協会 | ||
| 取扱い物件情報 | 物件詳細へ | ||
※各種情報と現状に差異がある場合は、現状優先となります。問い合わせをすることで、より詳しい条件、情報を確認する事ができます。
提供:株式会社 京都ライフ 丹波橋店(賃貸スモッカ経由)
この物件が気になったら掲載期限まであと6日
近鉄京都線 小倉駅(京都) 徒歩3分 5階建 築37年に条件(家賃・エリア)が近い物件一覧
| 写真 | 家賃 管理費等 | 敷金 礼金 | 間取り 専有面積 | 築年数 | 最寄り駅 所在地 | キープ | 詳細 |
|---|---|---|---|---|---|---|---|
一戸建て 京福嵐山本線 帷子ノ辻駅 徒歩4分 築66年(4LDK) | |||||||
![]() | 6.6万円 なし | なし 7.3万円 | 4LDK 83.26m2 | 築66年 | 京福嵐山本線 帷子ノ辻駅 徒歩4分 山陰本線 太秦駅(JR) 徒歩12分 京都府京都市右京区嵯峨野開町 | 詳細を見る | |
マンション 近鉄京都線 上鳥羽口駅 徒歩14分 築3年(1LDK/2階) | |||||||
![]() | 9.8万円 7,000円 | なし 9.8万円 | 1LDK 44.73m2 | 築3年 | 近鉄京都線 上鳥羽口駅 徒歩14分 近鉄京都線 十条駅(近鉄) 徒歩15分 京都府京都市南区上鳥羽堀子町 | 詳細を見る | |
マンション 東海道本線 西大路駅 徒歩15分 新築(1DK/10階) | |||||||
![]() | 7.91万円 6,900円 | なし なし | 1DK 29.45m2 | 新築 | 東海道本線 西大路駅 徒歩15分 阪急電鉄京都線 西京極駅 徒歩17分 京都府京都市南区吉祥院中河原里北町 | 詳細を見る | |
マンション 阪急電鉄京都線 西院駅(阪急) 徒歩7分 築4年(1K/5階) | |||||||
![]() | 6.803万円 5,970円 | なし 7.4万円 | 1K 23.4m2 | 築4年 | 阪急電鉄京都線 西院駅(阪急) 徒歩7分 京都市東西線 西大路御池駅 徒歩17分 京都府京都市右京区西院矢掛町 | 詳細を見る | |
マンション チェーズ高辻葛野西(1K/2階) | |||||||
![]() | 5.9万円 9,000円 | なし なし | 1K 24.12m2 | 築7年 | 阪急京都線 西京極駅 徒歩18分 地下鉄東西線 太秦天神川駅 徒歩23分 京福電鉄嵐山本線 嵐電天神川駅 徒歩25分 京都府京都市右京区梅津神田町 | 詳細を見る | |
アパート 阪急電鉄嵐山線 松尾大社駅 徒歩22分 築1年(1DK/1階) | |||||||
![]() | 8.3万円 5,500円 | なし 8.3万円 | 1DK 34.38m2 | 築1年 | 阪急電鉄嵐山線 松尾大社駅 徒歩22分 阪急電鉄京都線 西京極駅 徒歩25分 京都府京都市右京区梅津東構口町 | 詳細を見る | |
マンション 京都市烏丸線 五条駅(京都市営) 徒歩10分 築12年(1K/2階) | |||||||
![]() | 6.8万円 1.2万円 | 8万円 16万円 | 1K 28.48m2 | 築12年 | 京都市烏丸線 五条駅(京都市営) 徒歩10分 東海道本線 京都駅 徒歩15分 京都府京都市下京区柿本町 | 詳細を見る | |
マンション 京都市烏丸線 丸太町駅(京都市営) 徒歩5分 築27年(1K/4階) | |||||||
![]() | 5.6万円 6,000円 | 3万円 5万円 | 1K 22.56m2 | 築27年 | 京都市烏丸線 丸太町駅(京都市営) 徒歩5分 京都市烏丸線 烏丸御池駅 徒歩13分 京都府京都市中京区桝屋町 | 詳細を見る | |









