賃貸マンション
フュージョナル西荻窪の賃貸物件情報(1K/5階)
| 家賃 | 管理費等 | 敷金 | 礼金 | 間取り | 専有面積 |
|---|---|---|---|---|---|
| 10万円 | 1.5万円 | なし | 10万円 | 1K | 26.88m2 |
入居決定でお祝い金最大100,000円
- 保証金
- -
- 償却・敷引
- -
- 築年数
- 築15年
- 所在階
- 5階
- 向き
- 東
Point
杉並区・中野区・練馬区・武蔵野市・三鷹市周辺のエリアの情報が豊富にございます。ぜひお問い合わせをお待ちしております。
提供:(株)LIFIXGROUP渋谷店(SUUMO経由)

詳細情報 フュージョナル西荻窪
物件紹介
フュージョナル西荻窪はJR中央線西荻窪駅から徒歩6分にあり、駅近で通勤通学に便利なマンションです。
このお部屋は2階以上に位置しているので、通行人や周囲の住人からの視線が気になりにくく、防犯面でも安心。建物のエントランスはオートロックがついており、インターホンにはTVモニタもついているため、相手の顔を確認してから来客対応することができます。
おしゃれなデザイナーズ物件!フローリングのお部屋なのでお掃除もラクラク。キッチンはシステムキッチン仕様になっていますので、お料理好きの方にもぴったり。バス・トイレは別なので、のんびりお風呂タイムも楽しめるでしょう。また、雨の日でも浴室乾燥機を使えば、お洗濯も問題ありません。
通信設備面では、インターネット接続が可能です。また、BSアンテナ・CSアンテナもありますので、おうち時間も充実するでしょう(別途工事、契約料が必要な場合あり)。
建物にはエレベーターがついているので、重い荷物があっても安心。共用部には宅配ボックスが設定されているので、不在の時にも荷物を受け取ることができます。また、ペット飼育の相談ができますので、あなたの大切な家族の一員も快適に暮らせるか、ぜひ確認してみてください。
このお部屋は2階以上に位置しているので、通行人や周囲の住人からの視線が気になりにくく、防犯面でも安心。建物のエントランスはオートロックがついており、インターホンにはTVモニタもついているため、相手の顔を確認してから来客対応することができます。
おしゃれなデザイナーズ物件!フローリングのお部屋なのでお掃除もラクラク。キッチンはシステムキッチン仕様になっていますので、お料理好きの方にもぴったり。バス・トイレは別なので、のんびりお風呂タイムも楽しめるでしょう。また、雨の日でも浴室乾燥機を使えば、お洗濯も問題ありません。
通信設備面では、インターネット接続が可能です。また、BSアンテナ・CSアンテナもありますので、おうち時間も充実するでしょう(別途工事、契約料が必要な場合あり)。
建物にはエレベーターがついているので、重い荷物があっても安心。共用部には宅配ボックスが設定されているので、不在の時にも荷物を受け取ることができます。また、ペット飼育の相談ができますので、あなたの大切な家族の一員も快適に暮らせるか、ぜひ確認してみてください。
お金・契約の情報
※「-」と表示されているものは、実際は料金が発生するものもございます。詳細はお問い合わせください。
| 家賃 | 10万円 | 管理費・共益費 | 1.5万円 |
|---|---|---|---|
| 敷金 | なし | 礼金 | 10万円 |
| 入居決定でお祝い金最大100,000円 | |||
| 保証金 | - | 償却・敷引 | - |
| 住宅保険料 | - | 更新料 | - |
| 保証会社利用 | 必須 | 保証会社名 | - |
| 保証会社費用 | - | 保証会社備考 | 保証会社利用必 賃貸保証料:0.50ヶ月 プランによって異なる |
| 契約形態 | - | 契約期間 | - |
| 入居・引渡期間 | 相談 | 現況 | - |
| 入居可能条件 | ペット相談 | ||
| 契約備考 | ☆お部屋探しはタウンハウジングへ☆ 合計10.78万円(内訳:鍵交換代:28600円/室内清掃費用:66000円/24時間サポート:13200円) 更新料新賃料(ヶ月):1.00ヶ月 1K 単身者可/ペット相談 普通借家2年 損保【1.8万円2年】 バストイレ別、バルコニー、エアコン、ガスコンロ対応、クロゼット、フローリング、シャワー付洗面台、TVインターホン、浴室乾燥機、オートロック、室内洗濯置、陽当り良好、シューズボックス、システムキッチン、温水洗浄便座、脱衣所、エレベーター、洗面所独立、2口コンロ、宅配ボックス、光ファイバー、外壁タイル張り、閑静な住宅地、BS・CS、敷金不要、防犯カメラ、ペット相談、分譲賃貸、保証人不要、単身者相談、2沿線利用可、保証金不要、24時間換気システム、駅徒歩10分以内、敷地内ごみ置き場、都市ガス、高速ネット対応、礼金1ヶ月、IT重説対応物件、初期費用カード決済可、通風良好 | ||
部屋の情報
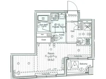
| 間取り | 1K | 専有面積 | 26.88m2 |
|---|---|---|---|
| 所在階 / 向き | 5階 / 東 | バルコニー面積 | - |
| 水道 / ガス | - | ||
| 設備 | バス・トイレ別、2階以上、オートロック、テレビドアホン、宅配ボックス、浴室乾燥機、インターネット対応、システムキッチン、エアコン、エレベーター、温水洗浄便座、バルコニー、フローリング、洗髪洗面化粧台、2口コンロ、コンロ:ガス、CSアンテナ、BSアンテナ、洗濯機:室内 | ||
| 当社物件ID | 9657263 | ||
建物の情報
| 建物名 | フュージョナル西荻窪 | ||
|---|---|---|---|
| 所在地 | 東京都杉並区西荻北 | ||
| 交通 | JR中央線 西荻窪駅 徒歩6分 JR中央線 荻窪駅 徒歩20分 西武新宿線 上井草駅 徒歩25分 | ||
| 階数 | 7階建 | 総戸数 | 25戸 |
| 築年月 | 2011年11月 / 築15年 | エレベーター | あり |
| 駐車場 | なし | バイク置き場 | - |
| 駐輪場 | - | 管理人/管理会社 | - |
| 周辺環境 | その他 西荻窪駅周辺(その他)まで480m | ||
| 建物種別 | マンション | 建物構造 | RC(鉄筋コンクリート) |
この部屋の取扱い不動産会社
| 会社名 | (株)タウンハウジング東京 阿佐ヶ谷店(SUUMO経由) | ||
|---|---|---|---|
| 所在地 | 東京都杉並区阿佐谷南2-17-3 Libera Asagaya1階 | 交通 | - |
| 営業時間 | AM10:00~PM7:00 | 定休日 | 水曜日 |
| 免許番号 | 国土交通大臣9926 | 取引態様 | 仲介 |
| 不動産会社管理番号 | 100481909713 | 当社管理番号 | 89 |
| 所属団体 | (公社)東京都宅地建物取引業協会会員 | ||
| 公正取引協議会 | (公社)首都圏不動産公正取引協議会加盟 | ||
| 取扱い物件情報 | 物件詳細へ | ||
※各種情報と現状に差異がある場合は、現状優先となります。問い合わせをすることで、より詳しい条件、情報を確認する事ができます。
提供:(株)タウンハウジング東京 阿佐ヶ谷店(SUUMO経由)
この物件が気になったら掲載期限まであと10日
フュージョナル西荻窪に条件(家賃・エリア)が近い物件一覧
| 写真 | 家賃 管理費等 | 敷金 礼金 | 間取り 専有面積 | 築年数 | 最寄り駅 所在地 | キープ | 詳細 |
|---|---|---|---|---|---|---|---|
マンション PONANT東長崎(1K/3階) | |||||||
![]() | 8.2万円 1.8万円 | なし なし | 1K 20.27m2 | 築7年 | 西武池袋線 東長崎駅 徒歩8分 西武池袋線 江古田駅 徒歩8分 都営大江戸線 落合南長崎駅 徒歩15分 東京都練馬区旭丘 | 詳細を見る | |
マンション 第1富士ビル(1K/1階) | |||||||
![]() | 7万円 4,000円 | 7万円 7万円 | 1K 19.4m2 | 築29年 | 中央本線 高円寺駅 徒歩4分 東京都杉並区高円寺北2丁目 | 詳細を見る | |
アパート 富士見荘(2K/1階) | |||||||
![]() | 7.6万円 なし | 7.6万円 7.6万円 | 2K 34.65m2 | 築49年 | 都営大江戸線 光が丘駅 徒歩7分 都営大江戸線 練馬春日町駅 徒歩11分 東京メトロ有楽町線 地下鉄赤塚駅 徒歩31分 東京都練馬区田柄 | 詳細を見る | |
マンション ロワール代田(1DK/5階) | |||||||
![]() | 9万円 3,000円 | 9万円 9万円 | 1DK 32.87m2 | 築42年 | 小田急線 世田谷代田駅 徒歩3分 小田急線 下北沢駅 徒歩12分 京王井の頭線 下北沢駅 徒歩12分 東京都世田谷区代田 | 詳細を見る | |
マンション 平和台ハウジング(ワンルーム/2階) | |||||||
![]() | 6.3万円 5,000円 | 6.3万円 6.3万円 | ワンルーム 18.72m2 | 築40年 | 東京メトロ副都心線 平和台駅(東京) 徒歩7分 東京メトロ副都心線 氷川台駅 徒歩13分 東武東上線 東武練馬駅 徒歩23分 東京都練馬区平和台 | 詳細を見る | |
マンション ルート丘の上(1DK/2階) | |||||||
![]() | 8.5万円 3,000円 | 4.25万円 12.75万円 | 1DK 27.03m2 | 築38年 | 東京メトロ丸ノ内線 方南町駅 徒歩9分 京王線 代田橋駅 徒歩12分 京王線 笹塚駅 徒歩17分 東京都杉並区和泉 | 詳細を見る | |
マンション メゾンあからぎ(2DK/2階) | |||||||
![]() | 9.5万円 なし | 9.5万円 9.5万円 | 2DK 45m2 | 築38年 | 中央本線 吉祥寺駅 徒歩15分 東京都三鷹市下連雀2丁目 | 詳細を見る | |


/105x80-f1-q70-wp1)




