賃貸マンション
DRホームズ北町の賃貸物件情報(ワンルーム/2階)
| 家賃 | 管理費等 | 敷金 | 礼金 | 間取り | 専有面積 |
|---|---|---|---|---|---|
| 5.7万円 | 3,000円 | 5.7万円 | なし | ワンルーム | 19.3m2 |
入居決定でお祝い金最大100,000円
Point
ワンルームは、一人暮らしの方からのニーズがあります。マンションタイプのお部屋です。
提供:ハウス・トゥ・ハウス・ネットサービス(株)巣鴨店(SUUMO経由)

詳細情報 DRホームズ北町
物件紹介
DRホームズ北町は東武東上線東武練馬駅から徒歩8分にあり、駅近で通勤通学に便利なマンションです。
このお部屋は2階以上に位置しているので、通行人や周囲の住人からの視線が気になりにくく、防犯面でも安心です。
人気の南向き・フローリングのお部屋。角部屋でもあるため、周囲の居住者の生活音も気になりにくい場所です。キッチンはシステムキッチン仕様になっていますので、お料理好きの方にもぴったり。
通信設備面では、インターネット接続が可能です。また、CATVにも対応しているので、おうち時間も充実するでしょう(別途工事、契約料が必要な場合あり)。
コンビニまで徒歩16分の場所にあり、日用品や食料品のお買い物にも便利です。
このお部屋は2階以上に位置しているので、通行人や周囲の住人からの視線が気になりにくく、防犯面でも安心です。
人気の南向き・フローリングのお部屋。角部屋でもあるため、周囲の居住者の生活音も気になりにくい場所です。キッチンはシステムキッチン仕様になっていますので、お料理好きの方にもぴったり。
通信設備面では、インターネット接続が可能です。また、CATVにも対応しているので、おうち時間も充実するでしょう(別途工事、契約料が必要な場合あり)。
コンビニまで徒歩16分の場所にあり、日用品や食料品のお買い物にも便利です。
お金・契約の情報
※「-」と表示されているものは、実際は料金が発生するものもございます。詳細はお問い合わせください。
| 家賃 | 5.7万円 | 管理費・共益費 | 3,000円 |
|---|---|---|---|
| 敷金 | 5.7万円 | 礼金 | なし |
| 入居決定でお祝い金最大100,000円 | |||
| 保証金 | - | 償却・敷引 | - |
| 住宅保険料 | 1円 | 更新料 | - |
| 保証会社利用 | 必須 | 保証会社名 | - |
| 保証会社費用 | - | 保証会社備考 | 初回保証料:賃料等の1カ月分 年間保証料:14000円 |
| 契約形態 | - | 契約期間 | 2年 |
| 入居・引渡期間 | 相談 | 現況 | - |
| 入居可能条件 | 事務所不可、楽器不可、ペット不可 | ||
| 契約備考 | 鍵交換費用:17600 その他設備/条件:室内洗濯機置き場 | ||
部屋の情報
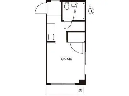
| 間取り | ワンルーム | 専有面積 | 19.3m2 |
|---|---|---|---|
| 間取り詳細 | 洋室(6.8帖) | ||
| 所在階 / 向き | 2階 / 南西 | バルコニー面積 | - |
| 水道 / ガス | 水道【公営】、ガス【都市】 | ||
| 設備 | 光ファイバー対応、エアコン、角部屋、バルコニー、フローリング、シャワー、給湯 | ||
| 当社物件ID | 10538205 | ||
建物の情報
| 建物名 | DRホームズ北町 | ||
|---|---|---|---|
| 所在地 | 東京都練馬区北町3丁目 | ||
| 交通 | 東武鉄道東上線 東武練馬駅 徒歩9分 東武鉄道東上線 下赤塚駅 徒歩16分 | ||
| 階数 | 3階建 | 総戸数 | - |
| 築年月 | 1985年04月 / 築41年 | エレベーター | - |
| 駐車場 | - | バイク置き場 | - |
| 駐輪場 | - | 管理人/管理会社 | - |
| 周辺環境 | コンビニ 徒歩16分(1263m) 販売店 徒歩11分(857m) その他 ドラッグストア その他 公園 その他 銀行 その他 * | ||
| 建物種別 | マンション | 建物構造 | RC(鉄筋コンクリート) |
この部屋の取扱い不動産会社
| 会社名 | ハウスコム東東京株式会社 中野店 | ||
|---|---|---|---|
| 所在地 | 東京都中野区24-9ナカノサウステラ レジデンス棟1階 | 交通 | - |
| 営業時間 | 10:00~18:00 | 定休日 | - |
| 免許番号 | 東京都知事(1)第108283号 | 取引態様 | 仲介 |
| 不動産会社管理番号 | HC2-638970-203-0174 | 当社管理番号 | 468 |
| 所属団体 | 、 | ||
| 取扱い物件情報 | 物件詳細へ | ||
※各種情報と現状に差異がある場合は、現状優先となります。問い合わせをすることで、より詳しい条件、情報を確認する事ができます。
提供:ハウスコム東東京株式会社 中野店
この物件が気になったら掲載期限まであと5日
DRホームズ北町に条件(家賃・エリア)が近い物件一覧
| 写真 | 家賃 管理費等 | 敷金 礼金 | 間取り 専有面積 | 築年数 | 最寄り駅 所在地 | キープ | 詳細 |
|---|---|---|---|---|---|---|---|
アパート サークルハウス蓮根弐番館(ワンルーム/2階) | |||||||
![]() | 4.5万円 7,000円 | なし なし | ワンルーム 12.58m2 | 築9年 | 都営三田線 蓮根駅 徒歩9分 都営三田線 志村三丁目駅 徒歩16分 都営三田線 西台駅 徒歩19分 東京都板橋区蓮根 | 詳細を見る | |
アパート バーミープレイス吉祥寺II(ワンルーム/2階) | |||||||
![]() | 8.5万円 3,000円 | なし なし | ワンルーム 20.02m2 | 築6年 | JR総武線 吉祥寺駅 徒歩12分 京王井の頭線 吉祥寺駅 徒歩12分 東京都武蔵野市吉祥寺南町 | 詳細を見る | |
マンション RSC綾瀬(ワンルーム/2階) | |||||||
![]() | 10万円 1.1万円 | なし 10万円 | ワンルーム 18m2 | 築1年 | 東京地下鉄千代田線 綾瀬駅 徒歩9分 つくばエクスプレス 青井駅 徒歩19分 東京都足立区東綾瀬1丁目 | 詳細を見る | |
マンション 土方ハイツ(1K/3階) | |||||||
![]() | 6万円 なし | 6万円 6万円 | 1K 18.9m2 | 築37年 | JR中央線 武蔵境駅 徒歩3分 JR中央線 三鷹駅 徒歩18分 JR中央線 東小金井駅 徒歩24分 東京都武蔵野市境 | 詳細を見る | |
マンション 練馬ハイツ(1DK/3階) | |||||||
![]() | 9.2万円 なし | 9.2万円 9.2万円 | 1DK 37.8m2 | 築39年 | 西武池袋線 練馬駅 徒歩4分 西武豊島線 豊島園駅 徒歩10分 西武池袋線 中村橋駅 徒歩15分 東京都練馬区練馬 | 詳細を見る | |
アパート ネクストグランデ中村橋(1K/3階) | |||||||
![]() | 8.1万円 3,000円 | 8.1万円 8.1万円 | 1K 20.28m2 | 新築 | 西武池袋線 中村橋駅 徒歩6分 西武池袋線 富士見台駅 徒歩9分 東京都練馬区貫井 | 詳細を見る | |
マンション ときわ台のアパートメント(1K/2階) | |||||||
![]() | 8.6万円 6,000円 | 8.6万円 8.6万円 | 1K 23.81m2 | 築9年 | 東武東上線 ときわ台駅(東京) 徒歩10分 東武東上線 中板橋駅 徒歩11分 都営三田線 本蓮沼駅 徒歩14分 東京都板橋区富士見町 | 詳細を見る | |
アパート FORTUNATO(1K/2階) | |||||||
![]() | 7万円 5,000円 | なし なし | 1K 18.88m2 | 築8年 | 東武東上線 上板橋駅 徒歩12分 東武東上線 東武練馬駅 徒歩13分 都営三田線 志村三丁目駅 徒歩25分 東京都板橋区若木 | 詳細を見る | |








