賃貸マンション
シティタワー池袋ウエストゲートの賃貸物件情報(ワンルーム/4階)
| 家賃 | 管理費等 | 敷金 | 礼金 | 間取り | 専有面積 |
|---|---|---|---|---|---|
| 13.5万円 | なし | 13.5万円 | 13.5万円 | ワンルーム | 31.2m2 |
入居決定でお祝い金最大100,000円
- 保証金
- -
- 償却・敷引
- -
- 築年数
- 築16年
- 所在階
- 4階
- 向き
- 南東
Point
まずはお問い合わせ!
不動産会社は街のプロ、あなたに合った物件がきっと見つかります。
提供:ハウスコム東東京株式会社 王子店

詳細情報 シティタワー池袋ウエストゲート
物件紹介
シティタワー池袋ウエストゲートは東京地下鉄有楽町線要町駅から徒歩6分にあり、駅近で通勤通学に便利なマンションです。
このお部屋は2階以上に位置しているので、通行人や周囲の住人からの視線が気になりにくく、防犯面でも安心。建物のエントランスはオートロックがついており、インターホンにはTVモニタもついているため、相手の顔を確認してから来客対応することができます。
人気の南向き・フローリングのお部屋。室内にはウォークインクローゼットがありますので、たくさんの荷物も効率的に収納ができます。キッチンはシステムキッチン仕様になっていますので、お料理好きの方にもぴったり。バス・トイレは別なので、のんびりお風呂タイムも楽しめるでしょう。また、雨の日でも浴室乾燥機を使えば、お洗濯も問題ありません。
通信設備面では、インターネット接続が可能です。また、BSアンテナがありCATVにも対応しているので、おうち時間も充実するでしょう(別途工事、契約料が必要な場合あり)。
床暖房があり、冬も足元から暖かく快適に過ごすことができます。建物にはエレベーターがついているので、重い荷物があっても安心。共用部には宅配ボックスが設定されているので、不在の時にも荷物を受け取ることができます。
このお部屋は2階以上に位置しているので、通行人や周囲の住人からの視線が気になりにくく、防犯面でも安心。建物のエントランスはオートロックがついており、インターホンにはTVモニタもついているため、相手の顔を確認してから来客対応することができます。
人気の南向き・フローリングのお部屋。室内にはウォークインクローゼットがありますので、たくさんの荷物も効率的に収納ができます。キッチンはシステムキッチン仕様になっていますので、お料理好きの方にもぴったり。バス・トイレは別なので、のんびりお風呂タイムも楽しめるでしょう。また、雨の日でも浴室乾燥機を使えば、お洗濯も問題ありません。
通信設備面では、インターネット接続が可能です。また、BSアンテナがありCATVにも対応しているので、おうち時間も充実するでしょう(別途工事、契約料が必要な場合あり)。
床暖房があり、冬も足元から暖かく快適に過ごすことができます。建物にはエレベーターがついているので、重い荷物があっても安心。共用部には宅配ボックスが設定されているので、不在の時にも荷物を受け取ることができます。
お金・契約の情報
※「-」と表示されているものは、実際は料金が発生するものもございます。詳細はお問い合わせください。
| 家賃 | 13.5万円 | 管理費・共益費 | なし |
|---|---|---|---|
| 敷金 | 13.5万円 | 礼金 | 13.5万円 |
| 入居決定でお祝い金最大100,000円 | |||
| 保証金 | - | 償却・敷引 | - |
| 住宅保険料 | 1円 | 更新料 | - |
| 保証会社利用 | 必須 | 保証会社名 | - |
| 保証会社費用 | - | 保証会社備考 | エポスカード /家賃保証会社利用費用:60% |
| 契約形態 | - | 契約期間 | 2年 |
| 入居・引渡期間 | 相談 | 現況 | - |
| 入居可能条件 | 事務所不可、単身者可、2人入居不可、ペット不可 | ||
| 契約備考 | 火災保険:2年18000円 その他設備/条件:室内洗濯機置き場、独立洗面台、防犯カメラ、クローゼット、分譲賃貸 | ||
部屋の情報
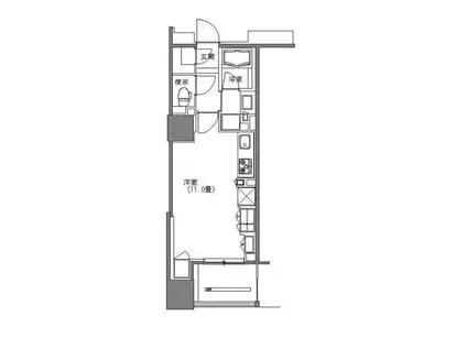
| 間取り | ワンルーム | 専有面積 | 31.2m2 |
|---|---|---|---|
| 間取り詳細 | 洋室(11帖) | ||
| 所在階 / 向き | 4階 / 南東 | バルコニー面積 | - |
| 水道 / ガス | 水道【公営】、ガス【都市】 | ||
| 設備 | バス・トイレ別、テレビドアホン、宅配ボックス、浴室乾燥機、ウォークインクローゼット、追い焚き、光ファイバー対応、システムキッチン、エアコン、エレベーター、温水洗浄便座、バルコニー、フローリング、床暖房、2口コンロ、コンロ:ガス、CATV、BSアンテナ、シャワー、給湯 | ||
| 当社物件ID | 39964996 | ||
建物の情報
| 建物名 | シティタワー池袋ウエストゲート | ||
|---|---|---|---|
| 所在地 | 東京都豊島区高松1丁目 | ||
| 交通 | 東京地下鉄有楽町線 要町駅 徒歩6分 東京地下鉄副都心線 要町駅 徒歩6分 | ||
| 階数 | 地下1地上34階建 | 総戸数 | 173戸 |
| 築年月 | 2010年02月 / 築16年 | エレベーター | あり |
| 駐車場 | なし | バイク置き場 | - |
| 駐輪場 | あり | 管理人/管理会社 | - |
| 周辺環境 | その他 ドラッグストア その他 公園 その他 銀行 その他 * | ||
| 建物種別 | マンション | 建物構造 | RC(鉄筋コンクリート) |
この部屋の取扱い不動産会社
| 会社名 | ハウスコム東東京株式会社 王子店 | ||
|---|---|---|---|
| 所在地 | 東京都北区5-2テング第四1階 | 交通 | - |
| 営業時間 | 10:00~18:00 | 定休日 | 水曜定休 |
| 免許番号 | 東京都知事(1)第108283号 | 取引態様 | 仲介 |
| 不動産会社管理番号 | HC5-1838791-403-0081 | 当社管理番号 | 468 |
| 所属団体 | 、 | ||
| 取扱い物件情報 | 物件詳細へ | ||
※各種情報と現状に差異がある場合は、現状優先となります。問い合わせをすることで、より詳しい条件、情報を確認する事ができます。
提供:ハウスコム東東京株式会社 王子店
この物件が気になったら掲載期限まであと5日
シティタワー池袋ウエストゲートに条件(家賃・エリア)が近い物件一覧
| 写真 | 家賃 管理費等 | 敷金 礼金 | 間取り 専有面積 | 築年数 | 最寄り駅 所在地 | キープ | 詳細 |
|---|---|---|---|---|---|---|---|
マンション ラ・レジダンス・ド千駄木(1K/6階) | |||||||
![]() | 10万円 6,000円 | 10万円 10万円 | 1K 20.11m2 | 築20年 | 東京地下鉄千代田線 千駄木駅 徒歩2分 東京都文京区千駄木2丁目 | 詳細を見る | |
マンション グランレスト文京茗荷谷(1K/1階) | |||||||
![]() | 11.8万円 1.2万円 | 11.8万円 11.8万円 | 1K 26.89m2 | 築4年 | 東京地下鉄丸ノ内線 茗荷谷駅 徒歩8分 東京都三田線 千石駅 徒歩16分 山手線 巣鴨駅 徒歩24分 東京都文京区大塚3丁目 | 詳細を見る | |
マンション パレステュディオ本郷後楽園(1K/4階) | |||||||
![]() | 10.7万円 5,000円 | 10.7万円 10.7万円 | 1K 20.4m2 | 築25年 | 東京都大江戸線 春日駅(東京) 徒歩3分 東京都三田線 水道橋駅 徒歩4分 東京地下鉄丸ノ内線 後楽園駅 徒歩6分 東京都文京区本郷1丁目 | 詳細を見る | |
マンション ジオエント駒込(1DK/3階) | |||||||
![]() | 14.4万円 1万円 | 14.4万円 なし | 1DK 25.33m2 | 築1年 | 東京地下鉄南北線 駒込駅 徒歩6分 山手線 駒込駅 徒歩8分 東京都文京区本駒込5丁目 | 詳細を見る | |
マンション S-RESIDENCE駒込六義園(1K/9階) | |||||||
![]() | 11.7万円 1.5万円 | なし なし | 1K 25.22m2 | 築4年 | 東京地下鉄南北線 駒込駅 徒歩6分 山手線 駒込駅 徒歩7分 東京都文京区本駒込5丁目 | 詳細を見る | |
マンション クラリティア文京湯島(1DK/3階) | |||||||
![]() | 15.8万円 1.5万円 | 15.8万円 なし | 1DK 25.06m2 | 築1年 | 東京地下鉄千代田線 湯島駅 徒歩5分 東京地下鉄銀座線 末広町駅(東京) 徒歩7分 中央本線 御茶ノ水駅 徒歩9分 東京都文京区湯島3丁目 | 詳細を見る | |
マンション ヴァンクール(1K/4階) | |||||||
![]() | 10.5万円 7,000円 | 10.5万円 10.5万円 | 1K 26.25m2 | 築19年 | 東京地下鉄丸ノ内線 茗荷谷駅 徒歩9分 東京都三田線 千石駅 徒歩12分 東京地下鉄有楽町線 護国寺駅 徒歩14分 東京都文京区大塚3丁目 | 詳細を見る | |
マンション L-FLAT 白山(1K/3階) | |||||||
![]() | 10万円 1万円 | なし 10万円 | 1K 25.88m2 | 築20年 | 東京都三田線 白山駅(東京) 徒歩7分 東京都三田線 千石駅 徒歩8分 東京地下鉄南北線 本駒込駅 徒歩13分 東京都文京区白山4丁目 | 詳細を見る | |









