賃貸マンション
ブライム ブルーム 302の賃貸物件情報(2LDK/3階)
| 家賃 | 管理費等 | 敷金 | 礼金 | 間取り | 専有面積 |
|---|---|---|---|---|---|
| 6.3万円 | 6,000円 | 12.6万円 | 6.3万円 | 2LDK | 59.7m2 |
入居決定でお祝い金最大100,000円
- 保証金
- -
- 償却・敷引
- -
- 築年数
- 築15年
- 所在階
- 3階
- 向き
- 南西
Point
オール電化♪南面日当たり良好の2LDKマンション♪創業50年のリビング椿までお問合せください♪
提供:(株)リビング椿(SUUMO経由)

詳細情報 ブライム ブルーム 302
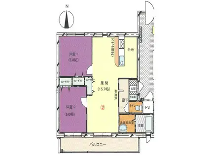
物件紹介
ブライム ブルーム 302は伊予鉄道横河原線北久米駅から徒歩8分にあり、駅近で通勤通学に便利なマンションです。
このお部屋は2階以上に位置しているので、通行人や周囲の住人からの視線が気になりにくく、防犯面でも安心。インターホンにはTVモニタもついているため、相手の顔を確認してから来客対応することができます。
人気の南向き・フローリングのお部屋。角部屋でもあるため、周囲の居住者の生活音も気になりにくい場所です。キッチンはシステムキッチン仕様になっていますので、お料理好きの方にもぴったり。バス・トイレは別なので、のんびりお風呂タイムも楽しめるでしょう。また、雨の日でも浴室乾燥機を使えば、お洗濯も問題ありません。
このお部屋は2階以上に位置しているので、通行人や周囲の住人からの視線が気になりにくく、防犯面でも安心。インターホンにはTVモニタもついているため、相手の顔を確認してから来客対応することができます。
人気の南向き・フローリングのお部屋。角部屋でもあるため、周囲の居住者の生活音も気になりにくい場所です。キッチンはシステムキッチン仕様になっていますので、お料理好きの方にもぴったり。バス・トイレは別なので、のんびりお風呂タイムも楽しめるでしょう。また、雨の日でも浴室乾燥機を使えば、お洗濯も問題ありません。
お金・契約の情報
※「-」と表示されているものは、実際は料金が発生するものもございます。詳細はお問い合わせください。
| 家賃 | 6.3万円 | 管理費・共益費 | 6,000円 |
|---|---|---|---|
| 敷金 | 12.6万円 | 礼金 | 6.3万円 |
| 入居決定でお祝い金最大100,000円 | |||
| 保証金 | - | 償却・敷引 | - |
| 住宅保険料 | - | 更新料 | - |
| 保証会社利用 | 必須 | 保証会社名 | 日本セーフティー |
| 保証会社費用 | - | 保証会社備考 | 日本セーフティー利用必 初回家賃合計の40% 毎年更新1万円 |
| 契約形態 | - | 契約期間 | - |
| 入居・引渡期間 | 相談 | 現況 | - |
| 契約備考 | 2LDK 損保【要】 バストイレ別、バルコニー、クロゼット、フローリング、シャワー付洗面台、TVインターホン、浴室乾燥機、室内洗濯置、陽当り良好、シューズボックス、システムキッチン、南向き、角住戸、温水洗浄便座、洗面所独立、駐輪場、閑静な住宅地、対面式キッチン、IHクッキングヒーター、オートバス、バイク置場、南西角住戸、オール電化、全居室フローリング、LDK15畳以上、眺望良好、1フロア2住戸、南面リビング、高断熱住宅、高気密住宅、高気密高断熱住宅、南西向き、全室南西向き、LDK12畳以上、南面バルコニー、IT重説対応物件、通風良好 | ||
部屋の情報
| 間取り | 2LDK | 専有面積 | 59.7m2 |
|---|---|---|---|
| 所在階 / 向き | 3階 / 南西 | バルコニー面積 | - |
| 水道 / ガス | - | ||
| 設備 | バス・トイレ別、2階以上、テレビドアホン、浴室乾燥機、追い焚き、システムキッチン、温水洗浄便座、南向き、角部屋、バルコニー、フローリング、洗髪洗面化粧台、オール電化、コンロ:IH、洗濯機:室内 | ||
| 当社物件ID | 160092461 | ||
建物の情報
| 建物名 | ブライム ブルーム 302 | ||
|---|---|---|---|
| 所在地 | 愛媛県松山市北久米町 | ||
| 交通 | 伊予鉄道横河原線 北久米駅 徒歩8分 伊予鉄道横河原線 久米駅 徒歩12分 伊予鉄道横河原線 福音寺駅 徒歩15分 | ||
| 階数 | 3階建 | 総戸数 | - |
| 築年月 | 2011年01月 / 築15年 | エレベーター | - |
| 駐車場 | 空有 5000円 | バイク置き場 | あり |
| 駐輪場 | あり | 管理人/管理会社 | - |
| 周辺環境 | その他 サニーマート松山久米店(スーパー)まで340m その他 フジ南久米店(スーパー)まで673m その他 スーパー日東来住店(スーパー)まで824m その他 くすりのレデイ南久米店(ドラッグストア)まで615m その他 mac久米店(ドラッグストア)まで913m その他 DCM福音寺店(ホームセンター)まで611m | ||
| 建物種別 | マンション | 建物構造 | RC(鉄筋コンクリート) |
この部屋の取扱い不動産会社
| 会社名 | (株)リビング椿(SUUMO経由) | ||
|---|---|---|---|
| 所在地 | 愛媛県松山市東石井6-6-44 | 交通 | - |
| 営業時間 | 9:00~18:30 | 定休日 | 水曜日 |
| 免許番号 | 愛媛県知事2932 | 取引態様 | 仲介 |
| 不動産会社管理番号 | 100479222870 | 当社管理番号 | 89 |
| 所属団体 | (公社)愛媛県宅地建物取引業協会会員 | ||
| 公正取引協議会 | 四国地区不動産公正取引協議会加盟 | ||
| 取扱い物件情報 | 物件詳細へ | ||
※各種情報と現状に差異がある場合は、現状優先となります。問い合わせをすることで、より詳しい条件、情報を確認する事ができます。
提供:(株)リビング椿(SUUMO経由)
この物件が気になったら掲載期限まであと11日
ブライム ブルーム 302に条件(家賃・エリア)が近い物件一覧
| 写真 | 家賃 管理費等 | 敷金 礼金 | 間取り 専有面積 | 築年数 | 最寄り駅 所在地 | キープ | 詳細 |
|---|---|---|---|---|---|---|---|
アパート フレグランス新居(3DK/2階) | |||||||
![]() | 4.6万円 2,000円 | なし なし | 3DK 54.34m2 | 築29年 | 予讃線 伊予北条駅 徒歩15分 予讃線 柳原駅(愛媛) 徒歩20分 愛媛県松山市北条辻 | 詳細を見る | |
アパート ヴェル・フレール(2LDK/2階) | |||||||
![]() | 4.9万円 4,500円 | なし 2.45万円 | 2LDK 55.41m2 | 築29年 | 伊予鉄道横河原線 久米駅 徒歩39分 伊予鉄道横河原線 福音寺駅 徒歩39分 伊予鉄道横河原線 北久米駅 徒歩42分 愛媛県松山市土居町 | 詳細を見る | |
アパート プラシード・ヴィラM B(1LDK/2階) | |||||||
![]() | 6.55万円 3,600円 | なし 6.55万円 | 1LDK 46.54m2 | 新築 | 予讃線 松山駅(愛媛) 徒歩25分 愛媛県松山市生石町 | 詳細を見る | |
アパート グレイスA棟(1LDK/2階) | |||||||
![]() | 6.58万円 5,500円 | なし 7万円 | 1LDK 46.17m2 | 築11年 | 伊予鉄道横河原線 いよ立花駅 徒歩6分 愛媛県松山市立花3丁目4-38 | 詳細を見る | |
アパート ユキコート椿(2LDK/3階) | |||||||
![]() | 8.5万円 6,000円 | なし 12万円 | 2LDK 68.08m2 | 築11年 | 伊予鉄道横河原線 福音寺駅 徒歩35分 JR予讃線 市坪駅 徒歩45分 愛媛県松山市居相 | 詳細を見る | |
アパート サンリット立花(1K/1階) | |||||||
![]() | 5.65万円 4,000円 | なし 5.65万円 | 1K 35m2 | 新築 | 伊予鉄道横河原線 いよ立花駅 徒歩6分 愛媛県松山市立花6丁目 | 詳細を見る | |
アパート ソルフィオーレ Ⅱ(1LDK/1階) | |||||||
![]() | 5.85万円 4,100円 | なし 5.85万円 | 1LDK 40.88m2 | 築3年 | 伊予鉄道郡中線 新川駅(愛媛) 徒歩8分 愛媛県伊予郡松前町大字南黒田 | 詳細を見る | |
アパート パルティール朝日ヶ丘(1K/1階) | |||||||
![]() | 5.35万円 4,000円 | 5.35万円 なし | 1K 33.72m2 | 新築 | 伊予鉄道高浜線 衣山駅 徒歩7分 愛媛県松山市朝日ケ丘2丁目 | 詳細を見る | |







/105x80-f1-q70-wp1)

