賃貸アパート
メルヴェーユ安積の賃貸物件情報(1K/2階)
| 家賃 | 管理費等 | 敷金 | 礼金 | 間取り | 専有面積 |
|---|---|---|---|---|---|
| 3.9万円 | なし | なし | なし | 1K | 22.68m2 |
入居決定でお祝い金最大100,000円
- 保証金
- -
- 償却・敷引
- -
- 築年数
- 築29年
- 所在階
- 2階
- 向き
- 東
Point
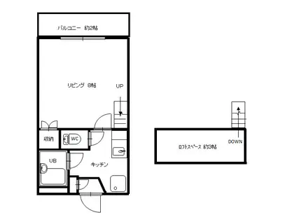
広いロフトは寝室等に有効活用♪高い天井と天窓で解放感と採光抜群♪近隣に公園、スーパー・ドラッグストア・ホームセンター・ヤマダ電機有り♪4号線にアクセスしやすくバス停徒歩5分。
提供:(株)東洋不動産(SUUMO経由)

詳細情報 メルヴェーユ安積
物件紹介
メルヴェーユ安積はJR東北本線安積永盛駅から徒歩22分にあるアパートです。
このお部屋は2階以上に位置しているので、通行人や周囲の住人からの視線が気になりにくく、防犯面でも安心です。
フローリングのお部屋なのでお掃除もラクラク。室内には多目的に利用できる人気のロフトもあり、お部屋のアレンジも自在です。バス・トイレ別の仕様で、のんびりお風呂タイムも楽しめます。
このお部屋は2階以上に位置しているので、通行人や周囲の住人からの視線が気になりにくく、防犯面でも安心です。
フローリングのお部屋なのでお掃除もラクラク。室内には多目的に利用できる人気のロフトもあり、お部屋のアレンジも自在です。バス・トイレ別の仕様で、のんびりお風呂タイムも楽しめます。
お金・契約の情報
※「-」と表示されているものは、実際は料金が発生するものもございます。詳細はお問い合わせください。
| 家賃 | 3.9万円 | 管理費・共益費 | なし |
|---|---|---|---|
| 敷金 | なし | 礼金 | なし |
| 入居決定でお祝い金最大100,000円 | |||
| 保証金 | - | 償却・敷引 | - |
| 住宅保険料 | - | 更新料 | - |
| 保証会社利用 | 必須 | 保証会社名 | - |
| 保証会社費用 | - | 保証会社備考 | 保証会社利用必 アーク賃貸保証 |
| 契約形態 | - | 契約期間 | - |
| 入居・引渡期間 | 相談 | 現況 | - |
| 契約備考 | ブイチェーン荒井店まで530m/常駐管理 合計4.1万円(内訳:退去時清掃費 41800円(必須)鍵交換費 15000円(任意)) 1K 単身者可/二人入居可/子供可 損保【1.8万円2年】 バストイレ別、バルコニー、エアコン、ガスコンロ対応、クロゼット、フローリング、駐輪場、閑静な住宅地、照明付、ロフト、全居室洋室、仲介手数料不要、バイク置場、3面採光、内装リフォーム済、初期費用10万円以下、ルームシェア相談、天窓、平面駐車場、自走式駐車場、当社管理物件、プロパンガス、玄関収納、敷金・礼金不要、保証会社利用可、通風良好 | ||
部屋の情報
| 間取り | 1K | 専有面積 | 22.68m2 |
|---|---|---|---|
| 所在階 / 向き | 2階 / 東 | バルコニー面積 | 3m2 |
| 水道 / ガス | - | ||
| 設備 | バス・トイレ別、2階以上、エアコン、バルコニー、フローリング、ロフトあり、コンロ:ガス | ||
| 当社物件ID | 156850271 | ||
建物の情報
| 建物名 | メルヴェーユ安積 | ||
|---|---|---|---|
| 所在地 | 福島県郡山市安積町荒井田中屋敷 | ||
| 交通 | JR東北本線 安積永盛駅 徒歩22分 東北新幹線 郡山駅(福島) バス乗車時間:20分 最寄りバス停で下車 徒歩5分 JR東北本線 安積永盛駅 車で4分 | ||
| 階数 | 2階建 | 総戸数 | - |
| 築年月 | 1997年12月 / 築29年 | エレベーター | - |
| 駐車場 | 空有 4000円 | バイク置き場 | あり |
| 駐輪場 | あり | 管理人/管理会社 | - |
| 周辺環境 | その他 セブンイレブン郡山名倉店(コンビニ)まで737m その他 ダイユーエイト郡山安積店(ホームセンター)まで701m その他 ツルハドラッグ郡山荒井店(ドラッグストア)まで775m その他 ブイチェーン荒井店(スーパー)まで530m その他 郡山市立安積中学校(中学校)まで689m その他 郡山市立安積第一小学校(小学校)まで221m | ||
| 建物種別 | アパート | 建物構造 | 鉄骨造 |
この部屋の取扱い不動産会社
| 会社名 | (株)東洋不動産(SUUMO経由) | ||
|---|---|---|---|
| 所在地 | 福島県郡山市七ッ池町 26-1 | 交通 | - |
| 営業時間 | 10:00~19:00 | 定休日 | 日、祝日 |
| 免許番号 | 福島県知事3208 | 取引態様 | 貸主 |
| 不動産会社管理番号 | 100380435123 | 当社管理番号 | 89 |
| 所属団体 | (公社)福島県宅地建物取引業協会会員 | ||
| 公正取引協議会 | 東北地区不動産公正取引協議会加盟 | ||
| 取扱い物件情報 | 物件詳細へ | ||
※各種情報と現状に差異がある場合は、現状優先となります。問い合わせをすることで、より詳しい条件、情報を確認する事ができます。
提供:(株)東洋不動産(SUUMO経由)
この物件が気になったら掲載期限まであと5日
メルヴェーユ安積に条件(家賃・エリア)が近い物件一覧
| 写真 | 家賃 管理費等 | 敷金 礼金 | 間取り 専有面積 | 築年数 | 最寄り駅 所在地 | キープ | 詳細 |
|---|---|---|---|---|---|---|---|
アパート 郡山ガーデン マーブルガーデン(1DK/1階) | |||||||
![]() | 5.5万円 4,000円 | なし なし | 1DK 29.63m2 | 築10年 | 福島県郡山市富久山町福原字境田 | 詳細を見る | |
アパート グランスクエアー壱番館(1LDK/1階) | |||||||
![]() | 4.9万円 2,900円 | なし 4.9万円 | 1LDK 49.49m2 | 築17年 | 福島県郡山市大槻町字中ノ平 | 詳細を見る | |
アパート ブリリアンエステート・IC棟(1LDK/1階) | |||||||
![]() | 5.1万円 2,900円 | なし 5.1万円 | 1LDK 44.18m2 | 築18年 | JR磐越西線 郡山富田駅 徒歩21分 福島県郡山市八山田 | 詳細を見る | |
アパート ルミウス(1LDK/1階) | |||||||
![]() | 5.5万円 なし | なし なし | 1LDK 31.05m2 | 築8年 | JR磐越西線 郡山富田駅 徒歩16分 JR東北本線 郡山駅(福島) 徒歩46分 JR磐越西線 喜久田駅 徒歩60分 福島県郡山市備前舘 | 詳細を見る | |
マンション プラシード昭和(1K/1階) | |||||||
![]() | 4.6万円 なし | 4.6万円 なし | 1K 24.6m2 | 築24年 | 東北新幹線 郡山駅(福島) 徒歩22分 JR東北本線 安積永盛駅 徒歩51分 福島県郡山市昭和 | 詳細を見る | |
アパート エステート城北(1K/2階) | |||||||
![]() | 3.3万円 なし | 3.3万円 なし | 1K 19.87m2 | 築34年 | 福島県会津若松市城北町 | 詳細を見る | |


/105x80-f1-q70-wp1)
/105x80-f1-q70-wp1)



