賃貸テラスハウス
京成電鉄本線 京成小岩駅 徒歩4分 2階建 築35年の賃貸物件情報(3LDK)
| 家賃 | 管理費等 | 敷金 | 礼金 | 間取り | 専有面積 |
|---|---|---|---|---|---|
| 13.5万円 | なし | 13.5万円 | なし | 3LDK | 82.8m2 |
入居決定でお祝い金最大100,000円
Point
詳細は東陽町店へお問い合わせ下さいませ★
提供:アパマンショップ小岩店
/424x317-f1-q70-wp1)
詳細情報 京成電鉄本線 京成小岩駅 徒歩4分 2階建 築35年
物件紹介
京成電鉄本線京成小岩駅から徒歩4分にあり、駅近で通勤通学に便利なテラスハウスです。
このお部屋のインターホンにはTVモニタがついているため、相手の顔を確認してから来客対応することができます。
人気の南向き・フローリングのお部屋。角部屋でもあるため、周囲の居住者の生活音も気になりにくい場所です。キッチンはシステムキッチン仕様になっていますので、お料理好きの方にもぴったり。また、バス・トイレは別で、のんびりお風呂タイムも楽しめるでしょう。
このお部屋のインターホンにはTVモニタがついているため、相手の顔を確認してから来客対応することができます。
人気の南向き・フローリングのお部屋。角部屋でもあるため、周囲の居住者の生活音も気になりにくい場所です。キッチンはシステムキッチン仕様になっていますので、お料理好きの方にもぴったり。また、バス・トイレは別で、のんびりお風呂タイムも楽しめるでしょう。
お金・契約の情報
※「-」と表示されているものは、実際は料金が発生するものもございます。詳細はお問い合わせください。
| 家賃 | 13.5万円 | 管理費・共益費 | なし |
|---|---|---|---|
| 敷金 | 13.5万円 | 礼金 | なし |
| 入居決定でお祝い金最大100,000円 | |||
| 保証金 | - | 償却・敷引 | - |
| 住宅保険料 | - | 更新料 | - |
| 保証会社利用 | 利用可 | 保証会社名 | - |
| 保証会社費用 | - | 保証会社備考 | [保証会社名]エポス[保証会社利用料]【契約時】月額総支払額の60%、【月額】月額総支払額の1%、【更新】なし |
| 契約形態 | - | 契約期間 | 2年 |
| 入居・引渡期間 | 2026年01月上旬 | 現況 | - |
| 契約備考 | 室内清掃費 109296円/鍵交換費 33000円 | ||
部屋の情報
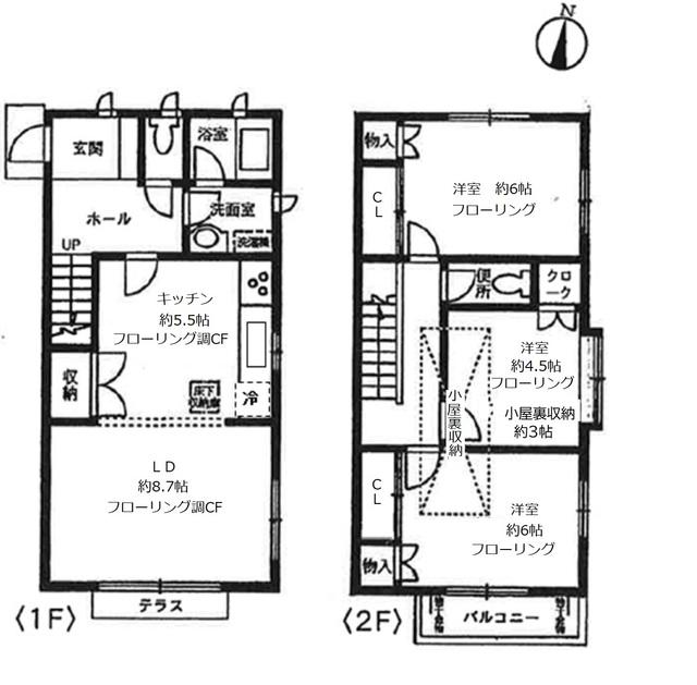
| 間取り | 3LDK | 専有面積 | 82.8m2 |
|---|---|---|---|
| 間取り詳細 | LD(8.7帖)、K(5.5帖)、洋室(6帖)、洋室(4.5帖)、洋室(6帖) | ||
| 所在階 / 向き | 1階 / 南 | バルコニー面積 | - |
| 水道 / ガス | ガス【都市】 | ||
| 設備 | バス・トイレ別、テレビドアホン、追い焚き、システムキッチン、温水洗浄便座、フローリング、コンロ:ガス、シャワー、専用庭、洗濯機:室内 | ||
| 当社物件ID | 14390407 | ||
建物の情報
| 建物名 | 京成電鉄本線 京成小岩駅 徒歩4分 2階建 築35年 | ||
|---|---|---|---|
| 所在地 | 東京都江戸川区北小岩6丁目 | ||
| 交通 | 京成電鉄本線 京成小岩駅 徒歩4分 | ||
| 階数 | 2階建 | 総戸数 | - |
| 築年月 | 1991年07月 / 築35年 | エレベーター | - |
| 駐車場 | - | バイク置き場 | - |
| 駐輪場 | - | 管理人/管理会社 | - |
| 建物種別 | テラスハウス | 建物構造 | 木造 |
この部屋の取扱い不動産会社
| 会社名 | アパマンショップ東陽町店 | ||
|---|---|---|---|
| 所在地 | 東京都江東区東陽4丁目 6-17TSビル4階 | 交通 | 東京地下鉄東西線東陽町から徒歩1分 |
| 営業時間 | 10:00〜19:00 | 定休日 | - |
| 免許番号 | 東京都知事(4)89428 | 取引態様 | 仲介 |
| 不動産会社管理番号 | 111287028 | 当社管理番号 | 4 |
| 所属団体 | (公社)全日本不動産協会東京都本部 | ||
| 公正取引協議会 | (公社) 首都圏不動産公正取引協議会加盟 | ||
| 取扱い物件情報 | 物件詳細へ | ||
※各種情報と現状に差異がある場合は、現状優先となります。問い合わせをすることで、より詳しい条件、情報を確認する事ができます。
提供:アパマンショップ東陽町店
この物件が気になったら掲載期限まであと13日
京成電鉄本線 京成小岩駅 徒歩4分 2階建 築35年に条件(家賃・エリア)が近い物件一覧
| 写真 | 家賃 管理費等 | 敷金 礼金 | 間取り 専有面積 | 築年数 | 最寄り駅 所在地 | キープ | 詳細 |
|---|---|---|---|---|---|---|---|
マンション サンライズコーポ(ワンルーム/3階) | |||||||
![]() | 8.5万円 5,000円 | 8.7万円 なし | ワンルーム 21.26m2 | 築40年 | 東京都浅草線 本所吾妻橋駅 徒歩4分 東京地下鉄銀座線 浅草駅(東武・都営・メトロ) 徒歩8分 東京都墨田区東駒形3丁目 | 詳細を見る | |
マンション パークアクシス錦糸町ヴェール(1LDK/7階) | |||||||
![]() | 21万円 1.2万円 | 21万円 21万円 | 1LDK 40.06m2 | 築10年 | 総武・中央緩行線 錦糸町駅 徒歩12分 総武本線 錦糸町駅 徒歩12分 東京地下鉄半蔵門線 錦糸町駅 徒歩12分 東京都墨田区緑4丁目 | 詳細を見る | |
マンション GENOVIA両国ⅥGREEN VEIL(ワンルーム/2階) | |||||||
![]() | 20万円 なし | なし なし | ワンルーム 26.53m2 | 築4年 | 東京都大江戸線 両国駅 徒歩9分 東京都新宿線 菊川駅(東京) 徒歩10分 総武・中央緩行線 錦糸町駅 徒歩11分 東京都墨田区緑3丁目 | 詳細を見る | |
マンション コンフォリア押上(1K/3階) | |||||||
![]() | 12.2万円 8,000円 | 12.2万円 なし | 1K 27.3m2 | 築19年 | 東京地下鉄半蔵門線 押上駅 徒歩2分 東京都墨田区業平4丁目 | 詳細を見る | |
一戸建て 東京地下鉄有楽町線 豊洲駅 徒歩12分 築51年(3DK) | |||||||
![]() | 13.8万円 なし | 13.8万円 13.8万円 | 3DK 64.71m2 | 築51年 | 東京地下鉄有楽町線 豊洲駅 徒歩12分 京葉線 潮見駅 徒歩20分 東京地下鉄東西線 木場駅 徒歩24分 東京都江東区枝川1丁目 | 詳細を見る | |
マンション クレヴィアリグゼ錦糸町(1LDK/5階) | |||||||
![]() | 13.4万円 1.2万円 | 13.4万円 13.4万円 | 1LDK 25.33m2 | 築3年 | 総武本線 錦糸町駅 徒歩6分 総武・中央緩行線 錦糸町駅 徒歩6分 東京地下鉄半蔵門線 錦糸町駅 徒歩6分 東京都墨田区江東橋1丁目 | 詳細を見る | |
マンション プラウドフラット墨田曳舟ディアージュ(1LDK/1階) | |||||||
![]() | 18.8万円 1.2万円 | 18.8万円 なし | 1LDK 40.32m2 | 築3年 | 京成電鉄押上線 京成曳舟駅 徒歩3分 東武伊勢崎・大師線 曳舟駅 徒歩4分 東武鉄道亀戸線 曳舟駅 徒歩4分 東京都墨田区東向島2丁目 | 詳細を見る | |
マンション コスモグラシア両国レジデンス(1SLDK/3階) | |||||||
![]() | 19万円 1.5万円 | なし なし | 1SLDK 40.38m2 | 築4年 | 東京都大江戸線 両国駅 徒歩5分 総武・中央緩行線 両国駅 徒歩10分 東京都墨田区緑2丁目 | 詳細を見る | |








