賃貸アパート
DEN鋼管通学生・社会人にオススメ初期費用分割払の賃貸物件情報(1K/1階)
| 家賃 | 管理費等 | 敷金 | 礼金 | 間取り | 専有面積 |
|---|---|---|---|---|---|
| 6.2万円 | 4,000円 | なし | なし | 1K | 18.45m2 |
入居決定でお祝い金最大100,000円
- 保証金
- -
- 償却・敷引
- -
- 築年数
- 築8年
- 所在階
- 1階
- 向き
- 北東
Point
室内設備は浴室乾燥機・洗面所独立など充実した設備を備え付けています。セキュリティ面は、TVインターホン・オートロックなど充実しているので安心して生活できます。
提供:お部屋さがし.net IHUB(株)(SUUMO経由)

詳細情報 DEN鋼管通学生・社会人にオススメ初期費用分割払
物件紹介
DEN鋼管通学生・社会人にオススメ初期費用分割払はJR南武線浜川崎駅から徒歩8分にあり、駅近で通勤通学に便利なアパートです。
建物のエントランスはオートロックがついており、インターホンにはTVモニタもついているため、相手の顔を確認してから来客対応することができます。
人気の角部屋で周囲の居住者の生活音も気になりにくく、また、フローリングのお部屋なのでお掃除もラクラク。キッチンはシステムキッチン仕様になっていますので、お料理好きの方にもぴったり。バス・トイレは別なので、のんびりお風呂タイムも楽しめるでしょう。また、雨の日でも浴室乾燥機を使えば、お洗濯も問題ありません。
建物のエントランスはオートロックがついており、インターホンにはTVモニタもついているため、相手の顔を確認してから来客対応することができます。
人気の角部屋で周囲の居住者の生活音も気になりにくく、また、フローリングのお部屋なのでお掃除もラクラク。キッチンはシステムキッチン仕様になっていますので、お料理好きの方にもぴったり。バス・トイレは別なので、のんびりお風呂タイムも楽しめるでしょう。また、雨の日でも浴室乾燥機を使えば、お洗濯も問題ありません。
お金・契約の情報
※「-」と表示されているものは、実際は料金が発生するものもございます。詳細はお問い合わせください。
| 家賃 | 6.2万円 | 管理費・共益費 | 4,000円 |
|---|---|---|---|
| 敷金 | なし | 礼金 | なし |
| 入居決定でお祝い金最大100,000円 | |||
| 保証金 | - | 償却・敷引 | - |
| 住宅保険料 | - | 更新料 | - |
| 保証会社利用 | 必須 | 保証会社名 | - |
| 保証会社費用 | - | 保証会社備考 | 保証会社利用必 基本保証料:月額支払合計の50%月次保証料:月額支払合計の1.10%(全プラン対象)※学生プラン有り: C(キャンパス)※基本保証料:15,000円(家賃等5万円超)基本保証料:10,000円(家賃等5万円以下) |
| 契約形態 | - | 契約期間 | - |
| 入居・引渡期間 | - | 現況 | - |
| 契約備考 | 合計5.5万円(内訳:退去時ルームクリーニング費用3.08万円鍵交換代2.42万円) 更新料 賃料1.00ヶ月分 1K 普通借家2年 損保【1.9万円2年】 バストイレ別、エアコン、フローリング、TVインターホン、浴室乾燥機、オートロック、室内洗濯置、シューズボックス、システムキッチン、角住戸、温水洗浄便座、洗面所独立、2口コンロ、照明付、プロパンガス 入居日:'26年3月中旬 | ||
部屋の情報
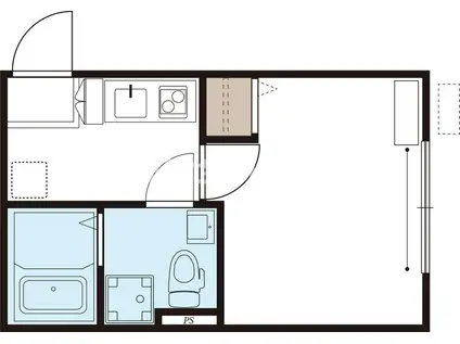
| 間取り | 1K | 専有面積 | 18.45m2 |
|---|---|---|---|
| 所在階 / 向き | 1階 / 北東 | バルコニー面積 | - |
| 水道 / ガス | - | ||
| 設備 | バス・トイレ別、オートロック、テレビドアホン、浴室乾燥機、システムキッチン、エアコン、温水洗浄便座、角部屋、フローリング、洗髪洗面化粧台、2口コンロ、洗濯機:室内 | ||
| 当社物件ID | 160530657 | ||
建物の情報
| 建物名 | DEN鋼管通学生・社会人にオススメ初期費用分割払 | ||
|---|---|---|---|
| 所在地 | 神奈川県川崎市川崎区鋼管通 | ||
| 交通 | JR南武線 浜川崎駅 徒歩8分 JR鶴見線 浜川崎駅 徒歩8分 | ||
| 階数 | 3階建 | 総戸数 | 9戸 |
| 築年月 | 2019年03月 / 築8年 | エレベーター | - |
| 駐車場 | なし | バイク置き場 | - |
| 駐輪場 | - | 管理人/管理会社 | - |
| 周辺環境 | その他 セブンイレブン 鶴見市場富士見町店(コンビニ)まで2765m | ||
| 建物種別 | アパート | 建物構造 | 木造 |
この部屋の取扱い不動産会社
| 会社名 | お部屋さがし.net IHUB(株)(SUUMO経由) | ||
|---|---|---|---|
| 所在地 | 東京都千代田区神田三崎町3-2-13-401 | 交通 | - |
| 営業時間 | 9:00~19:00(店舗受付時間:18:00) | 定休日 | 水曜日 |
| 免許番号 | 東京都知事110412 | 取引態様 | 仲介 |
| 不動産会社管理番号 | 100492600072 | 当社管理番号 | 89 |
| 所属団体 | (公社)東京都宅地建物取引業協会会員 | ||
| 公正取引協議会 | (公社)首都圏不動産公正取引協議会加盟 | ||
| 取扱い物件情報 | 物件詳細へ | ||
※各種情報と現状に差異がある場合は、現状優先となります。問い合わせをすることで、より詳しい条件、情報を確認する事ができます。
提供:お部屋さがし.net IHUB(株)(SUUMO経由)
この物件が気になったら掲載期限まであと10日
DEN鋼管通学生・社会人にオススメ初期費用分割払に条件(家賃・エリア)が近い物件一覧
| 写真 | 家賃 管理費等 | 敷金 礼金 | 間取り 専有面積 | 築年数 | 最寄り駅 所在地 | キープ | 詳細 |
|---|---|---|---|---|---|---|---|
マンション 松和コーポ(1DK/2階) | |||||||
![]() | 5.2万円 3,000円 | 5.2万円 なし | 1DK 32.4m2 | 築52年 | 京急本線 井土ケ谷駅 徒歩18分 神奈川県横浜市南区永田北 | 詳細を見る | |
アパート グリーンガーデン(ワンルーム/1階) | |||||||
![]() | 7万円 3,000円 | 7万円 なし | ワンルーム 26.08m2 | 築24年 | 京急本線 鶴見市場駅 徒歩5分 JR南武線 八丁畷駅 徒歩7分 JR南武線 尻手駅 徒歩17分 神奈川県横浜市鶴見区市場上町 | 詳細を見る | |
アパート カーサ・オリーブ(ワンルーム/1階) | |||||||
![]() | 4.6万円 3,500円 | なし なし | ワンルーム 12.92m2 | 築4年 | 京浜急行電鉄本線 追浜駅 徒歩13分 神奈川県横浜市金沢区六浦東1丁目 | 詳細を見る | |
マンション ティモーネグランデ川崎(1K/2階) | |||||||
![]() | 8.7万円 2万円 | 8.7万円 8.7万円 | 1K 21.44m2 | 築1年 | 京急本線 京急川崎駅 徒歩6分 JR京浜東北線 川崎駅 徒歩9分 神奈川県川崎市川崎区堀之内町 | 詳細を見る | |
アパート グリーンヒルズ(ワンルーム/2階) | |||||||
![]() | 5.2万円 3,000円 | 5.2万円 5.2万円 | ワンルーム 19.87m2 | 築40年 | 相鉄本線 上星川駅 徒歩9分 相鉄新横浜線 西谷駅 徒歩13分 相鉄新横浜線 羽沢横浜国大駅 徒歩21分 神奈川県横浜市保土ケ谷区東川島町 | 詳細を見る | |
アパート ヴェラハイツ川崎(1K/3階) | |||||||
![]() | 7万円 2,000円 | 3万円 3万円 | 1K 18.49m2 | 築11年 | JR南武線 八丁畷駅 徒歩9分 JR京浜東北線 川崎駅 徒歩10分 京急本線 京急川崎駅 徒歩14分 神奈川県川崎市川崎区南町 | 詳細を見る | |
アパート リブパーク鶴見(2DK/2階) | |||||||
![]() | 7.1万円 5,000円 | なし 7.1万円 | 2DK 44.71m2 | 築33年 | JR南武線 尻手駅 徒歩26分 JR京浜東北線 鶴見駅 徒歩29分 神奈川県横浜市鶴見区上末吉 | 詳細を見る | |
アパート カサベルデB(2LDK/2階) | |||||||
![]() | 7.7万円 3,000円 | 7.7万円 なし | 2LDK 55.82m2 | 築31年 | 相鉄いずみ野線 南万騎が原駅 徒歩29分 相鉄本線 鶴ケ峰駅 徒歩29分 神奈川県横浜市旭区桐が作 | 詳細を見る | |









