賃貸アパート
ホワイトハウスの賃貸物件情報(2LDK/2階)
| 家賃 | 管理費等 | 敷金 | 礼金 | 間取り | 専有面積 |
|---|---|---|---|---|---|
| 5.1万円 | なし | 5.1万円 | なし | 2LDK | 44m2 |
入居決定でお祝い金最大100,000円
- 保証金
- -
- 償却・敷引
- -
- 築年数
- 築38年
- 所在階
- 2階
- 向き
- 南
Point
大幅リフォームをした2LDKです
提供:(有)フェイス(SUUMO経由)

詳細情報 ホワイトハウス
物件紹介
ホワイトハウスは地下鉄東豊線豊平公園駅から徒歩9分にあり、駅近で通勤通学に便利なアパートです。
このお部屋は2階以上に位置しているので、通行人や周囲の住人からの視線が気になりにくく、防犯面でも安心です。
人気の南向きのお部屋。また、フローリングなのでお掃除もラクラク。バス・トイレ別の仕様で、のんびりお風呂タイムも楽しめます。
このお部屋は2階以上に位置しているので、通行人や周囲の住人からの視線が気になりにくく、防犯面でも安心です。
人気の南向きのお部屋。また、フローリングなのでお掃除もラクラク。バス・トイレ別の仕様で、のんびりお風呂タイムも楽しめます。
お金・契約の情報
※「-」と表示されているものは、実際は料金が発生するものもございます。詳細はお問い合わせください。
| 家賃 | 5.1万円 | 管理費・共益費 | なし |
|---|---|---|---|
| 敷金 | 5.1万円 | 礼金 | なし |
| 入居決定でお祝い金最大100,000円 | |||
| 保証金 | - | 償却・敷引 | - |
| 住宅保険料 | - | 更新料 | - |
| 契約形態 | - | 契約期間 | - |
| 入居・引渡期間 | 即時 | 現況 | - |
| 契約備考 | 2LDK 損保【要】 バストイレ別、バルコニー、エアコン、ガスコンロ対応、クロゼット、フローリング、シャワー付洗面台、室内洗濯置、陽当り良好、シューズボックス、南向き、温水洗浄便座、洗面所独立、即入居可、閑静な住宅地、灯油暖房、全居室フローリング、灯油ボイラー、クロゼット2ヶ所、平坦地、2駅利用可、敷地内ごみ置き場、都市ガス、通風良好 | ||
部屋の情報
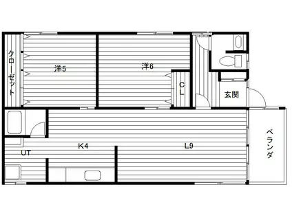
| 間取り | 2LDK | 専有面積 | 44m2 |
|---|---|---|---|
| 所在階 / 向き | 2階 / 南 | バルコニー面積 | - |
| 水道 / ガス | - | ||
| 設備 | バス・トイレ別、2階以上、エアコン、温水洗浄便座、南向き、バルコニー、フローリング、洗髪洗面化粧台、コンロ:ガス、洗濯機:室内 | ||
| 当社物件ID | 158140524 | ||
建物の情報
| 建物名 | ホワイトハウス | ||
|---|---|---|---|
| 所在地 | 北海道札幌市豊平区美園九条 | ||
| 交通 | 地下鉄東豊線 豊平公園駅 徒歩9分 地下鉄東豊線 美園駅 徒歩10分 地下鉄南北線 平岸駅(札幌市営) 徒歩15分 | ||
| 階数 | 3階建 | 総戸数 | - |
| 築年月 | 1988年08月 / 築38年 | エレベーター | - |
| 駐車場 | なし | バイク置き場 | - |
| 駐輪場 | - | 管理人/管理会社 | - |
| 周辺環境 | その他 サツドラ豊平美園店(ドラッグストア)まで155m その他 ニトリ美園店(ホームセンター)まで939m その他 ラルズストア平岸店(スーパー)まで832m その他 ローソン札幌美園8条店(コンビニ)まで458m その他 札幌市立八条中学校(中学校)まで533m その他 札幌市立美園小学校(小学校)まで276m | ||
| 建物種別 | アパート | 建物構造 | 木造 |
この部屋の取扱い不動産会社
| 会社名 | (有)フェイス(SUUMO経由) | ||
|---|---|---|---|
| 所在地 | 北海道札幌市豊平区平岸三条6-6-31 | 交通 | - |
| 営業時間 | 10:00~19:00 | 定休日 | 無休 |
| 免許番号 | 北海道知事石狩7141 | 取引態様 | 仲介 |
| 不動産会社管理番号 | 100303598272 | 当社管理番号 | 89 |
| 所属団体 | (公社)北海道宅地建物取引業協会会員 | ||
| 公正取引協議会 | (一社)北海道不動産公正取引協議会加盟 | ||
| 取扱い物件情報 | 物件詳細へ | ||
※各種情報と現状に差異がある場合は、現状優先となります。問い合わせをすることで、より詳しい条件、情報を確認する事ができます。
提供:(有)フェイス(SUUMO経由)
この物件が気になったら掲載期限まであと10日
ホワイトハウスに条件(家賃・エリア)が近い物件一覧
| 写真 | 家賃 管理費等 | 敷金 礼金 | 間取り 専有面積 | 築年数 | 最寄り駅 所在地 | キープ | 詳細 |
|---|---|---|---|---|---|---|---|
アパート エバーグリーン(2LDK/1階) | |||||||
![]() | 5.2万円 2,000円 | なし なし | 2LDK 52.3m2 | 築23年 | JR函館本線 野幌駅 徒歩14分 北海道江別市野幌若葉町 | 詳細を見る | |
アパート ドリームハイツ(1K/1階) | |||||||
![]() | 3.5万円 なし | 3.5万円 なし | 1K 25.92m2 | 築35年 | 函館本線 大麻駅 徒歩13分 北海道江別市文京台南町 | 詳細を見る | |
アパート 函館本線 銭函駅 徒歩13分 築20年(1K/2階) | |||||||
![]() | 3.3万円 2,000円 | なし なし | 1K 29.7m2 | 築20年 | 函館本線 銭函駅 徒歩13分 北海道小樽市銭函1丁目 | 詳細を見る | |
アパート ルミエール豊平(2LDK/2階) | |||||||
![]() | 6.5万円 なし | なし なし | 2LDK 52.65m2 | 築29年 | 地下鉄東豊線 豊平公園駅 徒歩6分 地下鉄東豊線 学園前駅(札幌) 徒歩10分 地下鉄東西線 東札幌駅 徒歩11分 北海道札幌市豊平区豊平四条 | 詳細を見る | |
マンション MCティンクII(1LDK/1階) | |||||||
![]() | 4.2万円 6,000円 | 4.2万円 なし | 1LDK 36.42m2 | 築13年 | 地下鉄東西線 菊水駅 徒歩9分 地下鉄東豊線 学園前駅(札幌) 徒歩9分 地下鉄東西線 東札幌駅 徒歩14分 北海道札幌市豊平区豊平二条 | 詳細を見る | |
アパート エバーホープB(2LDK/1階) | |||||||
![]() | 6万円 3,000円 | なし なし | 2LDK 52.9m2 | 築34年 | 北海道千歳市住吉 | 詳細を見る | |
マンション パルコート平岸411(1DK/5階) | |||||||
![]() | 3.1万円 3,000円 | 3.1万円 なし | 1DK 22.7m2 | 築34年 | 札幌市南北線 南平岸駅 徒歩6分 北海道札幌市豊平区平岸四条11丁目 | 詳細を見る | |
アパート フォーユー美園B(1LDK/2階) | |||||||
![]() | 4.2万円 2,000円 | なし なし | 1LDK 31m2 | 築24年 | 地下鉄東豊線 美園駅 徒歩7分 地下鉄東豊線 豊平公園駅 徒歩8分 地下鉄東西線 白石駅(札幌市営) 徒歩15分 北海道札幌市豊平区美園五条 | 詳細を見る | |



/105x80-f1-q70-wp1)





