賃貸マンション
オハナ茅ケ崎の賃貸物件情報(3LDK/2階)
| 家賃 | 管理費等 | 敷金 | 礼金 | 間取り | 専有面積 |
|---|---|---|---|---|---|
| 13万円 | 1万円 | 26万円 | 13万円 | 3LDK | 69.19m2 |
入居決定でお祝い金最大100,000円
Point
【ご予約無しのご来店も歓迎♪お気軽にお問い合わせください♪】
提供:アパマンショップ金沢文庫店

詳細情報 オハナ茅ケ崎
物件紹介
オハナ茅ケ崎は相模線北茅ケ崎駅から徒歩15分にあるマンションです。
このお部屋は2階以上に位置しているので、通行人や周囲の住人からの視線が気になりにくく、防犯面でも安心。建物のエントランスはオートロックがついており、インターホンにはTVモニタもついているため、相手の顔を確認してから来客対応することができます。
こちらは楽器相談が可能な物件。楽器演奏をお考えの方はぜひ相談してみてください。人気の南向き・フローリングのお部屋。室内にはウォークインクローゼットがありますので、たくさんの荷物も効率的に収納ができます。キッチンはシステムキッチン仕様になっていますので、お料理好きの方にもぴったり。バス・トイレは別なので、のんびりお風呂タイムも楽しめるでしょう。また、雨の日でも浴室乾燥機を使えば、お洗濯も問題ありません。
通信設備面では、インターネットが無料で使えるので、月々の出費を抑えられるのも魅力です。また、BSアンテナ・CSアンテナがありCATVにも対応しているので、おうち時間も充実するでしょう(別途工事、BS・CS・CATVの契約料等が必要な場合あり)。
床暖房があり、冬も足元から暖かく快適に過ごすことができます。建物にはエレベーターがついているので、重い荷物があっても安心。共用部には宅配ボックスが設定されているので、不在の時にも荷物を受け取ることができます。
コンビニまで徒歩3分の場所にあり、日用品や食料品のお買い物にも便利です。
このお部屋は2階以上に位置しているので、通行人や周囲の住人からの視線が気になりにくく、防犯面でも安心。建物のエントランスはオートロックがついており、インターホンにはTVモニタもついているため、相手の顔を確認してから来客対応することができます。
こちらは楽器相談が可能な物件。楽器演奏をお考えの方はぜひ相談してみてください。人気の南向き・フローリングのお部屋。室内にはウォークインクローゼットがありますので、たくさんの荷物も効率的に収納ができます。キッチンはシステムキッチン仕様になっていますので、お料理好きの方にもぴったり。バス・トイレは別なので、のんびりお風呂タイムも楽しめるでしょう。また、雨の日でも浴室乾燥機を使えば、お洗濯も問題ありません。
通信設備面では、インターネットが無料で使えるので、月々の出費を抑えられるのも魅力です。また、BSアンテナ・CSアンテナがありCATVにも対応しているので、おうち時間も充実するでしょう(別途工事、BS・CS・CATVの契約料等が必要な場合あり)。
床暖房があり、冬も足元から暖かく快適に過ごすことができます。建物にはエレベーターがついているので、重い荷物があっても安心。共用部には宅配ボックスが設定されているので、不在の時にも荷物を受け取ることができます。
コンビニまで徒歩3分の場所にあり、日用品や食料品のお買い物にも便利です。
お金・契約の情報
※「-」と表示されているものは、実際は料金が発生するものもございます。詳細はお問い合わせください。
| 家賃 | 13万円 | 管理費・共益費 | 1万円 |
|---|---|---|---|
| 敷金 | 26万円 | 礼金 | 13万円 |
| 入居決定でお祝い金最大100,000円 | |||
| 保証金 | - | 償却・敷引 | - |
| 住宅保険料 | 2.55万円(2年) | 更新料 | - |
| 保証会社利用 | 必須 | 保証会社名 | - |
| 保証会社費用 | - | 保証会社備考 | 保証会社 要:初回 賃料総額100%+月額 賃料総額2%(最低1,000円) |
| 契約形態 | 定期借家 | 契約期間 | 2026年01月まで |
| 入居・引渡期間 | 相談 | 現況 | - |
部屋の情報
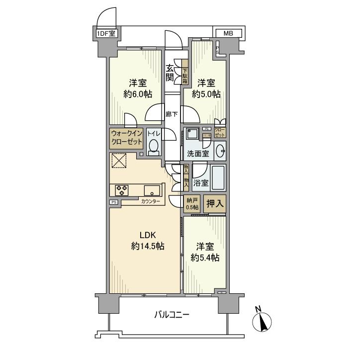
| 間取り | 3LDK | 専有面積 | 69.19m2 |
|---|---|---|---|
| 間取り詳細 | LDK(14.5帖)、洋室(5帖)、洋室(5.4帖)、洋室(6帖) | ||
| 所在階 / 向き | 2階 / 南 | バルコニー面積 | 10m2 |
| 水道 / ガス | ガス【都市】 | ||
| 設備 | バス・トイレ別、オートロック、テレビドアホン、宅配ボックス、浴室乾燥機、ウォークインクローゼット、追い焚き、システムキッチン、エレベーター、温水洗浄便座、バルコニー、フローリング、コンロ:ガス、CATV、シャワー、洗濯機:室内 | ||
| 当社物件ID | 153442320 | ||
建物の情報
| 建物名 | オハナ茅ケ崎 | ||
|---|---|---|---|
| 所在地 | 神奈川県茅ヶ崎市鶴が台茅ケ崎市鶴が台 | ||
| 交通 | 東海道本線 茅ケ崎駅 バス乗車時間:11分 鶴が台入口バス停で下車 徒歩2分 | ||
| 階数 | 7階建 | 総戸数 | - |
| 築年月 | 2023年01月 / 築4年 | エレベーター | あり |
| 駐車場 | - | バイク置き場 | - |
| 駐輪場 | - | 管理人/管理会社 | - |
| 周辺環境 | その他 神奈川県 茅ヶ崎警察署 徒歩12分(916m) その他 第一カッターきいろ公園 徒歩21分(1624m) その他 エイビイ 茅ヶ崎店 徒歩28分(2164m) その他 スリーエフ茅ヶ崎みずき店 徒歩24分(1907m) その他 サイゼリヤ寒川店 徒歩28分(2215m) その他 マクドナルド寒川大曲店 徒歩29分(2317m) その他 ローソン 徒歩31分(2476m) その他 FUJI大曲店 徒歩30分(2398m) | ||
| 建物種別 | マンション | 建物構造 | RC(鉄筋コンクリート) |
この部屋の取扱い不動産会社
| 会社名 | アパマンショップ関内駅前店 | ||
|---|---|---|---|
| 所在地 | 神奈川県横浜市中区尾上町3丁目 46木村ビル4階 | 交通 | 根岸線関内から徒歩0分 |
| 営業時間 | 10:00〜19:00 | 定休日 | - |
| 免許番号 | 神奈川県知事(10)13668 | 取引態様 | 仲介 |
| 不動産会社管理番号 | 99528536 | 当社管理番号 | 4 |
| 所属団体 | (公社)神奈川県宅地建物取引業協会 | ||
| 公正取引協議会 | (公社) 首都圏不動産公正取引協議会加盟 | ||
| 取扱い物件情報 | 物件詳細へ | ||
※各種情報と現状に差異がある場合は、現状優先となります。問い合わせをすることで、より詳しい条件、情報を確認する事ができます。
提供:アパマンショップ関内駅前店
この物件が気になったら掲載期限まであと6日
オハナ茅ケ崎に条件(家賃・エリア)が近い物件一覧
| 写真 | 家賃 管理費等 | 敷金 礼金 | 間取り 専有面積 | 築年数 | 最寄り駅 所在地 | キープ | 詳細 |
|---|---|---|---|---|---|---|---|
マンション シャンテユーI(2LDK/2階) | |||||||
![]() | 11.8万円 6,500円 | なし 23.6万円 | 2LDK 54.75m2 | 築1年 | JR東海道本線 茅ケ崎駅 徒歩25分 湘南新宿ライン高海 茅ケ崎駅 徒歩25分 神奈川県茅ヶ崎市下町屋 | 詳細を見る | |
マンション ハイエストピーク(1LDK/4階) | |||||||
![]() | 8.2万円 6,500円 | なし なし | 1LDK 55.7m2 | 築22年 | 小田急江ノ島線 善行駅 徒歩19分 小田急江ノ島線 湘南台駅 徒歩41分 ブルーライン 下飯田駅 徒歩59分 神奈川県藤沢市亀井野 | 詳細を見る | |
アパート プルメリア・グレイス(2LDK/1階) | |||||||
![]() | 12.4万円 6,000円 | なし なし | 2LDK 57.13m2 | 築13年 | 東海道本線 辻堂駅 徒歩18分 神奈川県茅ヶ崎市菱沼茅ケ崎市菱沼2丁目 | 詳細を見る | |
アパート CHARM高倉(1LDK/2階) | |||||||
![]() | 9.5万円 6,000円 | なし 14.25万円 | 1LDK 35.3m2 | 新築 | 小田急江ノ島線 長後駅 徒歩6分 ブルーライン 湘南台駅 徒歩24分 相鉄いずみ野線 ゆめが丘駅 徒歩26分 神奈川県藤沢市長後 | 詳細を見る | |
アパート ウイスタリア湘南(1LDK/2階) | |||||||
![]() | 9万円 5,000円 | なし 9万円 | 1LDK 40m2 | 築19年 | 小田急江ノ島線 藤沢本町駅 徒歩17分 湘南新宿ライン高海 藤沢駅 徒歩25分 JR東海道本線 辻堂駅 徒歩39分 神奈川県藤沢市鵠沼神明 | 詳細を見る | |
アパート ノアヒルズ(3DK/1階) | |||||||
![]() | 7.8万円 なし | 15.6万円 7.8万円 | 3DK 48m2 | 築35年 | 東海道本線 辻堂駅 徒歩28分 神奈川県藤沢市羽鳥5丁目 | 詳細を見る | |
アパート 大亜ハイツB棟(1LDK/1階) | |||||||
![]() | 9万円 なし | 9万円 9万円 | 1LDK 41m2 | 築34年 | JR東海道本線 茅ケ崎駅 徒歩11分 JR相模線 茅ケ崎駅 徒歩11分 神奈川県茅ヶ崎市若松町 | 詳細を見る | |
アパート 大鋸ハイツII(3DK/1階) | |||||||
![]() | 8.3万円 1,000円 | 12.45万円 8.3万円 | 3DK 48.7m2 | 築29年 | JR東海道本線 藤沢駅 徒歩9分 江ノ島電鉄線 石上駅 徒歩21分 小田急江ノ島線 藤沢本町駅 徒歩29分 神奈川県藤沢市大鋸 | 詳細を見る | |








