賃貸マンション
ラドゥセール秋葉原の賃貸物件情報(1LDK/5階)
| 家賃 | 管理費等 | 敷金 | 礼金 | 間取り | 専有面積 |
|---|---|---|---|---|---|
| 19.4万円 | 1.5万円 | なし | 19.4万円 | 1LDK | 40.71m2 |
入居決定でお祝い金最大100,000円
- 保証金
- -
- 償却・敷引
- -
- 築年数
- 築7年
- 所在階
- 5階
- 向き
- 東
Point
初期費用分割払い可能☆最大24ヶ月払い☆カード決済も対応しております!!遠方の方や忙しい方向けオンライン内見実施中☆
提供:PRA(株)青山店(SUUMO経由)

詳細情報 ラドゥセール秋葉原
物件紹介
ラドゥセール秋葉原は都営大江戸線新御徒町駅から徒歩7分にあり、駅近で通勤通学に便利なマンションです。
このお部屋は2階以上に位置しているので、通行人や周囲の住人からの視線が気になりにくく、防犯面でも安心。建物のエントランスはオートロックがついており、インターホンにはTVモニタもついているため、相手の顔を確認してから来客対応することができます。
人気の角部屋で周囲の居住者の生活音も気になりにくく、また、フローリングのお部屋なのでお掃除もラクラク。キッチンはシステムキッチン仕様になっていますので、お料理好きの方にもぴったり。また、バス・トイレは別で、のんびりお風呂タイムも楽しめるでしょう。
通信設備面では、インターネットが無料で使えるので、月々の出費を抑えられるのも魅力です。また、BSアンテナ・CSアンテナがありCATVにも対応しているので、おうち時間も充実するでしょう(別途工事、BS・CS・CATVの契約料等が必要な場合あり)。
建物にはエレベーターがついているので、重い荷物があっても安心。共用部には宅配ボックスが設定されているので、不在の時にも荷物を受け取ることができます。
このお部屋は2階以上に位置しているので、通行人や周囲の住人からの視線が気になりにくく、防犯面でも安心。建物のエントランスはオートロックがついており、インターホンにはTVモニタもついているため、相手の顔を確認してから来客対応することができます。
人気の角部屋で周囲の居住者の生活音も気になりにくく、また、フローリングのお部屋なのでお掃除もラクラク。キッチンはシステムキッチン仕様になっていますので、お料理好きの方にもぴったり。また、バス・トイレは別で、のんびりお風呂タイムも楽しめるでしょう。
通信設備面では、インターネットが無料で使えるので、月々の出費を抑えられるのも魅力です。また、BSアンテナ・CSアンテナがありCATVにも対応しているので、おうち時間も充実するでしょう(別途工事、BS・CS・CATVの契約料等が必要な場合あり)。
建物にはエレベーターがついているので、重い荷物があっても安心。共用部には宅配ボックスが設定されているので、不在の時にも荷物を受け取ることができます。
お金・契約の情報
※「-」と表示されているものは、実際は料金が発生するものもございます。詳細はお問い合わせください。
| 家賃 | 19.4万円 | 管理費・共益費 | 1.5万円 |
|---|---|---|---|
| 敷金 | なし | 礼金 | 19.4万円 |
| 入居決定でお祝い金最大100,000円 | |||
| 保証金 | - | 償却・敷引 | - |
| 住宅保険料 | - | 更新料 | - |
| 保証会社利用 | 必須 | 保証会社名 | - |
| 保証会社費用 | - | 保証会社備考 | 保証会社利用必 初回保証委託料:月額賃料等の50%、月次保証料:賃料等の1% 詳細はお問い合わせください。 |
| 契約形態 | - | 契約期間 | - |
| 入居・引渡期間 | - | 現況 | - |
| 契約備考 | 通勤管理 合計3.3万円(内訳:鍵交換代3.3万円) 更新料 新賃料1.00ヶ月分 室内清掃費用 66000円 1LDK 二人入居可 普通借家2年 損保【1.66万円2年】 バストイレ別、バルコニー、エアコン、ガスコンロ対応、クロゼット、TVインターホン、オートロック、室内洗濯置、陽当り良好、シューズボックス、システムキッチン、角住戸、温水洗浄便座、エレベーター、洗面所独立、駐輪場、宅配ボックス、CATV、閑静な住宅地、2面採光、BS・CS、敷金不要、3口以上コンロ、対面式キッチン、防犯カメラ、保証人不要、二人入居相談、全居室フローリング、ディンプルキー、ネット専用回線、ネット使用料不要、眺望良好、24時間換気システム、耐火構造、耐震構造、防犯ガラス、高気密住宅、2駅利用可、3駅以上利用可、駅前、防犯強化地域、駅徒歩10分以内、耐風構造、高層階、敷地内ごみ置き場、日勤管理、備付食器棚、都市ガス、シューズWIC、通風良好 入居日:'26年4月下旬 | ||
部屋の情報
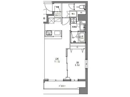
| 間取り | 1LDK | 専有面積 | 40.71m2 |
|---|---|---|---|
| 所在階 / 向き | 5階 / 東 | バルコニー面積 | - |
| 水道 / ガス | - | ||
| 設備 | バス・トイレ別、2階以上、オートロック、テレビドアホン、宅配ボックス、インターネット対応、システムキッチン、エアコン、エレベーター、温水洗浄便座、角部屋、バルコニー、フローリング、洗髪洗面化粧台、2口コンロ、コンロ:ガス、CATV、CSアンテナ、BSアンテナ、インターネット使用料無料、洗濯機:室内 | ||
| 当社物件ID | 156916055 | ||
建物の情報
| 建物名 | ラドゥセール秋葉原 | ||
|---|---|---|---|
| 所在地 | 東京都台東区台東 | ||
| 交通 | 都営大江戸線 新御徒町駅 徒歩7分 JR山手線 御徒町駅 徒歩13分 JR山手線 秋葉原駅 徒歩14分 | ||
| 階数 | 12階建 | 総戸数 | - |
| 築年月 | 2020年02月 / 築7年 | エレベーター | あり |
| 駐車場 | なし | バイク置き場 | - |
| 駐輪場 | あり | 管理人/管理会社 | - |
| 周辺環境 | その他 ファミリーマート 台東鳥越店(コンビニ)まで114m その他 ローソン 新御徒町店(コンビニ)まで576m | ||
| 建物種別 | マンション | 建物構造 | RC(鉄筋コンクリート) |
この部屋の取扱い不動産会社
| 会社名 | PRA(株)青山店(SUUMO経由) | ||
|---|---|---|---|
| 所在地 | 東京都港区北青山1-3-3 三橋ビル8階 | 交通 | - |
| 営業時間 | 9:00~20:00 | 定休日 | 無し |
| 免許番号 | 東京都知事109775 | 取引態様 | 仲介 |
| 不動産会社管理番号 | 100490759257 | 当社管理番号 | 89 |
| 所属団体 | (公社)東京都宅地建物取引業協会会員 | ||
| 公正取引協議会 | (公社)首都圏不動産公正取引協議会加盟 | ||
| 取扱い物件情報 | 物件詳細へ | ||
※各種情報と現状に差異がある場合は、現状優先となります。問い合わせをすることで、より詳しい条件、情報を確認する事ができます。
提供:PRA(株)青山店(SUUMO経由)
この物件が気になったら掲載期限まであと11日
ラドゥセール秋葉原に条件(家賃・エリア)が近い物件一覧
| 写真 | 家賃 管理費等 | 敷金 礼金 | 間取り 専有面積 | 築年数 | 最寄り駅 所在地 | キープ | 詳細 |
|---|---|---|---|---|---|---|---|
マンション S-RESIDENCE新御徒町イースト(1LDK/5階) | |||||||
![]() | 19.5万円 1.8万円 | なし 19.5万円 | 1LDK 41.94m2 | 築8年 | 都営大江戸線 新御徒町駅 徒歩3分 都営浅草線 蔵前駅 徒歩10分 JR総武線 浅草橋駅 徒歩12分 東京都台東区小島 | 詳細を見る | |
マンション メインステージ両国III(1LDK/12階) | |||||||
![]() | 19.4万円 2万円 | なし なし | 1LDK 40.8m2 | 築6年 | JR総武線 両国駅 徒歩6分 都営浅草線 東日本橋駅 徒歩10分 都営大江戸線 両国駅 徒歩11分 東京都墨田区両国 | 詳細を見る | |
マンション アリカ曳舟2(ワンルーム/4階) | |||||||
![]() | 14.2万円 1万円 | なし なし | ワンルーム 32.89m2 | 築1年 | 京成電鉄押上線 京成曳舟駅 徒歩7分 東京都墨田区八広1丁目 | 詳細を見る | |
マンション LADDER HIGH(1LDK/3階) | |||||||
![]() | 18.9万円 1.1万円 | 18.9万円 18.9万円 | 1LDK 47.2m2 | 築3年 | JR総武線快速 錦糸町駅 徒歩11分 東京メトロ半蔵門線 錦糸町駅 徒歩11分 都営大江戸線 両国駅 徒歩14分 東京都墨田区石原 | 詳細を見る | |
マンション LUNIQ新御徒町I(1LDK/3階) | |||||||
![]() | 19.9万円 1.8万円 | なし なし | 1LDK 40.49m2 | 築6年 | 都営浅草線 蔵前駅 徒歩5分 つくばエクスプレス 新御徒町駅 徒歩10分 東京メトロ銀座線 田原町駅(東京) 徒歩11分 東京都台東区三筋 | 詳細を見る | |
マンション UPWARD(1LDK/3階) | |||||||
![]() | 15.5万円 1.2万円 | なし 15.5万円 | 1LDK 44.22m2 | 築12年 | 東京メトロ日比谷線 三ノ輪駅 徒歩12分 JR山手線 鶯谷駅 徒歩12分 JR山手線 日暮里駅 徒歩14分 東京都荒川区東日暮里 | 詳細を見る | |
マンション J.GRAN COURT 浅草(1LDK/6階) | |||||||
![]() | 19.6万円 1.5万円 | 19.6万円 なし | 1LDK 40.85m2 | 築3年 | つくばエクスプレス 浅草駅(つくばEXP) 徒歩7分 東京メトロ銀座線 浅草駅(東武・都営・メトロ) 徒歩8分 都営浅草線 浅草駅(東武・都営・メトロ) 徒歩8分 東京都台東区浅草 | 詳細を見る | |
マンション ブラウ住吉(ワンルーム/3階) | |||||||
![]() | 13.7万円 1万円 | 13.7万円 なし | ワンルーム 25.21m2 | 築8年 | 都営新宿線 菊川駅(東京) 徒歩7分 東京メトロ半蔵門線 住吉駅(東京) 徒歩8分 東京都墨田区江東橋 | 詳細を見る | |









