賃貸マンション
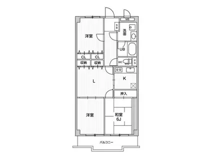
ピアグランデ弐番館の賃貸物件情報(3DK/1階)
| 家賃 | 管理費等 | 敷金 | 礼金 | 間取り | 専有面積 |
|---|---|---|---|---|---|
| 10.85万円 | 6,000円 | 10.85万円 | なし | 3DK | 66.67m2 |
入居決定でお祝い金最大100,000円
- 保証金
- -
- 償却・敷引
- -
- 築年数
- 築34年
- 所在階
- 1階
- 向き
- 東
Point
ご内覧日までお部屋を予約(確保)するご相談を承っております。お問い合わせ内容の「その他のご要望」へ「予約希望」とご記入下さい。ご予約後のキャンセル、変更は無料です。
提供:(株)暮らすデザイン(SUUMO経由)

詳細情報 ピアグランデ弐番館
物件紹介
ピアグランデ弐番館は東武東上線朝霞駅から徒歩39分にあるマンションです。
このお部屋のインターホンにはTVモニタがついているため、相手の顔を確認してから来客対応することができます。
フローリングのお部屋なのでお掃除もラクラク。バス・トイレ別の仕様で、のんびりお風呂タイムも楽しめます。また、浴室乾燥機を使えば、雨の日でもお洗濯は問題ありません。
通信設備面では、インターネット接続が可能です。また、BSアンテナ・CSアンテナがありCATVにも対応しているので、おうち時間も充実するでしょう(別途工事、契約料が必要な場合あり)。
建物にはエレベーターがついているので、重い荷物があっても安心。共用部には宅配ボックスが設定されているので、不在の時にも荷物を受け取ることができます。また、ペット飼育の相談ができますので、あなたの大切な家族の一員も快適に暮らせるか、ぜひ確認してみてください。
このお部屋のインターホンにはTVモニタがついているため、相手の顔を確認してから来客対応することができます。
フローリングのお部屋なのでお掃除もラクラク。バス・トイレ別の仕様で、のんびりお風呂タイムも楽しめます。また、浴室乾燥機を使えば、雨の日でもお洗濯は問題ありません。
通信設備面では、インターネット接続が可能です。また、BSアンテナ・CSアンテナがありCATVにも対応しているので、おうち時間も充実するでしょう(別途工事、契約料が必要な場合あり)。
建物にはエレベーターがついているので、重い荷物があっても安心。共用部には宅配ボックスが設定されているので、不在の時にも荷物を受け取ることができます。また、ペット飼育の相談ができますので、あなたの大切な家族の一員も快適に暮らせるか、ぜひ確認してみてください。
お金・契約の情報
※「-」と表示されているものは、実際は料金が発生するものもございます。詳細はお問い合わせください。
| 家賃 | 10.85万円 | 管理費・共益費 | 6,000円 |
|---|---|---|---|
| 敷金 | 10.85万円 | 礼金 | なし |
| 入居決定でお祝い金最大100,000円 | |||
| 保証金 | - | 償却・敷引 | - |
| 住宅保険料 | - | 更新料 | - |
| 保証会社利用 | 必須 | 保証会社名 | - |
| 保証会社費用 | - | 保証会社備考 | 保証会社利用必 初回保証料:総賃料の50% |
| 契約形態 | - | 契約期間 | - |
| 入居・引渡期間 | - | 現況 | - |
| 入居可能条件 | ペット相談 | ||
| 契約備考 | 東武鉄道東上線和光市駅徒歩45分/ウェルパーク大泉学園店まで596m/スギ薬局大泉学園店まで1178m/巡回管理/◆オンライン接客や写真動画の撮影も無料で対応◆お部屋や気になる箇所の無料寸法代行◆郵送契約(IT重説)が便利!◆全物件、初期費用クレジット決済対応◆その他気になる点、ご不明点はお電話でもご対応致します! 合計3.85万円(内訳:Goodプレミアムα(24Hサポートのみ12100円/カギ交換費用24200円/Goodプレミアムα登録料2200円) 3DK 二人入居可/子供可/ペット相談/事務所利用不可/ルームシェア不可 普通借家2年 損保【2.8万円2年】 バストイレ別、バルコニー、エアコン、ガスコンロ対応、フローリング、TVインターホン、浴室乾燥機、室内洗濯置、シューズボックス、追焚機能浴室、脱衣所、エレベーター、洗面所独立、洗面化粧台、宅配ボックス、押入、光ファイバー、外壁タイル張り、礼金不要、2面採光、防犯カメラ、独立型キッチン、ペット相談、オートバス、振分、保証人不要、敷金1ヶ月、二人入居相談、24時間緊急通報システム、ネット専用回線、保証金不要、24時間換気システム、クロゼット2ヶ所、一部フローリング、3駅以上利用可、3沿線以上利用可、バス停徒歩3分以内、敷地内ごみ置き場、和室、都市ガス、洗面所にドア、2WAYバルコニー、玄関収納、BS、初期費用カード決済可 入居日:'26年2月上旬 | ||
部屋の情報
| 間取り | 3DK | 専有面積 | 66.67m2 |
|---|---|---|---|
| 所在階 / 向き | 1階 / 東 | バルコニー面積 | - |
| 水道 / ガス | - | ||
| 設備 | バス・トイレ別、テレビドアホン、宅配ボックス、浴室乾燥機、追い焚き、インターネット対応、エアコン、エレベーター、バルコニー、フローリング、洗髪洗面化粧台、コンロ:ガス、BSアンテナ、洗濯機:室内 | ||
| 当社物件ID | 19411222 | ||
建物の情報
| 建物名 | ピアグランデ弐番館 | ||
|---|---|---|---|
| 所在地 | 東京都練馬区大泉学園町 | ||
| 交通 | 東武東上線 朝霞駅 徒歩39分 西武池袋線 大泉学園駅 バス乗車時間:12分 最寄りバス停で下車 徒歩3分 東京メトロ有楽町線 地下鉄成増駅 バス乗車時間:12分 最寄りバス停で下車 徒歩3分 | ||
| 階数 | 3階建 | 総戸数 | 42戸 |
| 築年月 | 1992年10月 / 築34年 | エレベーター | あり |
| 駐車場 | なし | バイク置き場 | - |
| 駐輪場 | - | 管理人/管理会社 | - |
| 周辺環境 | その他 無印良品いなげや大泉学園店(ショッピングセンター)まで724m その他 いなげや大泉学園店(スーパー)まで724m その他 サミットストア大泉学園店(スーパー)まで699m その他 ファミリーマート大泉長久保通り店(コンビニ)まで410m その他 セブンイレブン練馬大泉学園町7丁目店(コンビニ)まで609m その他 サンドラッグ大泉学園町店(ドラッグストア)まで622m | ||
| 建物種別 | マンション | 建物構造 | RC(鉄筋コンクリート) |
この部屋の取扱い不動産会社
| 会社名 | アリエルホーム(株)(SUUMO経由) | ||
|---|---|---|---|
| 所在地 | 東京都練馬区石神井町2-6-6 1階 | 交通 | - |
| 営業時間 | 10:00~19:00 | 定休日 | 毎週水曜日 |
| 免許番号 | 東京都知事110135 | 取引態様 | 仲介 |
| 不動産会社管理番号 | 100475225682 | 当社管理番号 | 89 |
| 所属団体 | (公社)全日本不動産協会東京都本部会員 | ||
| 公正取引協議会 | (公社)首都圏不動産公正取引協議会加盟 | ||
| 取扱い物件情報 | 物件詳細へ | ||
※各種情報と現状に差異がある場合は、現状優先となります。問い合わせをすることで、より詳しい条件、情報を確認する事ができます。
提供:アリエルホーム(株)(SUUMO経由)
この物件が気になったら掲載期限まであと10日
ピアグランデ弐番館に条件(家賃・エリア)が近い物件一覧
| 写真 | 家賃 管理費等 | 敷金 礼金 | 間取り 専有面積 | 築年数 | 最寄り駅 所在地 | キープ | 詳細 |
|---|---|---|---|---|---|---|---|
マンション メゾンド・サントロペ(1LDK/4階) | |||||||
![]() | 9.3万円 7,000円 | 9.3万円 9.3万円 | 1LDK 36.07m2 | 築20年 | 西武池袋線 練馬高野台駅 徒歩4分 西武池袋線 石神井公園駅 徒歩13分 西武池袋線 富士見台駅 徒歩23分 東京都練馬区高野台 | 詳細を見る | |
マンション ロジュマン大裕(1K/2階) | |||||||
![]() | 7.5万円 なし | 7.5万円 7.5万円 | 1K 20m2 | 築29年 | 東京都大江戸線 落合南長崎駅 徒歩2分 東京都豊島区南長崎4丁目 | 詳細を見る | |
アパート 間宮ビル(2K/3階) | |||||||
![]() | 8万円 2,000円 | 8万円 8万円 | 2K 29.97m2 | 築48年 | 東京メトロ副都心線 氷川台駅 徒歩8分 西武池袋線 桜台駅(東京) 徒歩10分 西武有楽町線 新桜台駅 徒歩10分 東京都練馬区桜台 | 詳細を見る | |
アパート FAIR SEASON(1K/2階) | |||||||
![]() | 6.5万円 3,000円 | なし 6.5万円 | 1K 15m2 | 築14年 | 西武鉄道新宿線 下井草駅 徒歩11分 東京都中野区白鷺3丁目 | 詳細を見る | |
アパート レオネクストフォレスタ(1K/1階) | |||||||
![]() | 7万円 5,000円 | なし 7万円 | 1K 26.08m2 | 築17年 | 東武東上線 朝霞台駅 徒歩20分 JR武蔵野線 北朝霞駅 徒歩20分 東武東上線 朝霞駅 徒歩25分 埼玉県朝霞市 | 詳細を見る | |
マンション ラクラス中野弥生町(1DK/1階) | |||||||
![]() | 11.4万円 1万円 | 11.4万円 11.4万円 | 1DK 25.5m2 | 築4年 | 東京地下鉄方南支線 中野富士見町駅 徒歩9分 東京都中野区弥生町5丁目 | 詳細を見る | |
マンション リブリ・練馬Ⅱ(1K/1階) | |||||||
![]() | 9.5万円 3,000円 | なし 9.5万円 | 1K 26.07m2 | 築1年 | 西武池袋・豊島線 練馬駅 徒歩16分 西武鉄道新宿線 野方駅 徒歩16分 東京都練馬区豊玉南2丁目 | 詳細を見る | |
マンション シャーメゾン南台(ワンルーム/2階) | |||||||
![]() | 7.7万円 5,000円 | なし 7.7万円 | ワンルーム 21m2 | 築21年 | 東京メトロ丸ノ内線 中野新橋駅 徒歩11分 京王新線 幡ケ谷駅 徒歩15分 都営大江戸線 西新宿五丁目駅 徒歩17分 東京都中野区南台 | 詳細を見る | |




/105x80-f1-q70-wp1)

/105x80-f1-q70-wp1)

