賃貸アパート
EL MAISON NEXTの賃貸物件情報(1K/2階)
| 家賃 | 管理費等 | 敷金 | 礼金 | 間取り | 専有面積 |
|---|---|---|---|---|---|
| 5.7万円 | 1,000円 | 5.7万円 | 5.7万円 | 1K | 28.12m2 |
入居決定でお祝い金最大100,000円
- 保証金
- -
- 償却・敷引
- -
- 築年数
- 築15年
- 所在階
- 2階
- 向き
- -
Point
浴室と切り離されているので湿気に悩まされることがなくなる独立洗面台を備えております。
提供:ハウスコム西神奈川株式会社 秦野店

詳細情報 EL MAISON NEXT
物件紹介
EL MAISON NEXTは小田急電鉄小田原線東海大学前駅から徒歩7分にあり、駅近で通勤通学に便利なアパートです。
このお部屋は2階以上に位置しているので、通行人や周囲の住人からの視線が気になりにくく、防犯面でも安心です。
人気の角部屋で周囲の居住者の生活音も気になりにくく、また、フローリングのお部屋なのでお掃除もラクラク。室内にはウォークインクローゼットがありますので、たくさんの荷物も効率的に収納ができます。バス・トイレ別の仕様で、のんびりお風呂タイムも楽しめます。
このお部屋は2階以上に位置しているので、通行人や周囲の住人からの視線が気になりにくく、防犯面でも安心です。
人気の角部屋で周囲の居住者の生活音も気になりにくく、また、フローリングのお部屋なのでお掃除もラクラク。室内にはウォークインクローゼットがありますので、たくさんの荷物も効率的に収納ができます。バス・トイレ別の仕様で、のんびりお風呂タイムも楽しめます。
お金・契約の情報
※「-」と表示されているものは、実際は料金が発生するものもございます。詳細はお問い合わせください。
| 家賃 | 5.7万円 | 管理費・共益費 | 1,000円 |
|---|---|---|---|
| 敷金 | 5.7万円 | 礼金 | 5.7万円 |
| 入居決定でお祝い金最大100,000円 | |||
| 保証金 | - | 償却・敷引 | - |
| 住宅保険料 | 1円 | 更新料 | - |
| 保証会社利用 | 必須 | 保証会社名 | - |
| 保証会社費用 | - | 保証会社備考 | 初回保証料:要 |
| 契約形態 | - | 契約期間 | 1年 |
| 入居・引渡期間 | 相談 | 現況 | - |
| 入居可能条件 | 単身者限定 | ||
| 契約備考 | 火災保険料:20700円/2年 その他設備/条件:室内洗濯機置き場、独立洗面台 | ||
部屋の情報
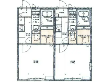
| 間取り | 1K | 専有面積 | 28.12m2 |
|---|---|---|---|
| 所在階 / 向き | 2階 / - | バルコニー面積 | - |
| 水道 / ガス | 水道【公営】 | ||
| 設備 | バス・トイレ別、ウォークインクローゼット、エアコン、角部屋、バルコニー、フローリング、洗髪洗面化粧台、コンロ:ガス、シャワー、冷蔵庫あり、給湯 | ||
| 当社物件ID | 160471915 | ||
建物の情報
| 建物名 | EL MAISON NEXT | ||
|---|---|---|---|
| 所在地 | 神奈川県秦野市南矢名2丁目 | ||
| 交通 | 小田急電鉄小田原線 東海大学前駅 徒歩7分 小田急電鉄小田原線 鶴巻温泉駅 徒歩20分 | ||
| 階数 | 2階建 | 総戸数 | - |
| 築年月 | 2012年01月 / 築15年 | エレベーター | - |
| 駐車場 | 空有 5,000円/月 | バイク置き場 | - |
| 駐輪場 | - | 管理人/管理会社 | - |
| 周辺環境 | 販売店 徒歩18分(1382m) その他 ドラッグストア その他 公園 その他 銀行 その他 * | ||
| 建物種別 | アパート | 建物構造 | 軽量鉄骨造 |
この部屋の取扱い不動産会社
| 会社名 | ハウスコム西神奈川株式会社 平塚店 | ||
|---|---|---|---|
| 所在地 | 神奈川県平塚市2-211階 | 交通 | - |
| 営業時間 | 10:00~18:00 | 定休日 | 水曜定休 |
| 免許番号 | 神奈川県知事(1)第31770号 | 取引態様 | 仲介 |
| 不動産会社管理番号 | HC2-5399664-202-0018 | 当社管理番号 | 468 |
| 所属団体 | 、 | ||
| 取扱い物件情報 | 物件詳細へ | ||
※各種情報と現状に差異がある場合は、現状優先となります。問い合わせをすることで、より詳しい条件、情報を確認する事ができます。
提供:ハウスコム西神奈川株式会社 平塚店
この物件が気になったら掲載期限まであと4日
EL MAISON NEXTに条件(家賃・エリア)が近い物件一覧
| 写真 | 家賃 管理費等 | 敷金 礼金 | 間取り 専有面積 | 築年数 | 最寄り駅 所在地 | キープ | 詳細 |
|---|---|---|---|---|---|---|---|
マンション WING HOUSE 伊勢原(1DK/2階) | |||||||
![]() | 4.9万円 3,000円 | 4.9万円 4.9万円 | 1DK 24.92m2 | 築24年 | 小田急小田原線 伊勢原駅 徒歩12分 神奈川県伊勢原市池端 | 詳細を見る | |
マンション レオパレスエレカーサ(1K/3階) | |||||||
![]() | 6万円 5,000円 | なし 6万円 | 1K 19.87m2 | 築17年 | 小田急電鉄小田原線 愛甲石田駅 徒歩10分 神奈川県厚木市愛甲東1丁目 | 詳細を見る | |
テラスハウス リヴィエール A(1SDK) | |||||||
![]() | 5.6万円 3,500円 | なし なし | 1SDK 42.65m2 | 築18年 | 小田急電鉄小田原線 秦野駅 徒歩11分 神奈川県秦野市室町 | 詳細を見る | |
アパート リブリ・アジール・リラ(1K/2階) | |||||||
![]() | 6.1万円 4,000円 | なし なし | 1K 23.6m2 | 築10年 | 小田急電鉄小田原線 秦野駅 徒歩7分 神奈川県秦野市栄町 | 詳細を見る | |
マンション スアヴィス平塚八重咲(1K/1階) | |||||||
![]() | 8.05万円 5,500円 | なし 16.1万円 | 1K 25.42m2 | 新築 | 東海道本線 平塚駅 徒歩2分 神奈川県平塚市八重咲町 | 詳細を見る | |
アパート アミニティ湘南C(2DK/2階) | |||||||
![]() | 5.5万円 4,000円 | 5.5万円 なし | 2DK 43.6m2 | 築29年 | 神奈川県平塚市岡崎 | 詳細を見る | |
アパート レオパレスパレヴィアーノ(1K/2階) | |||||||
![]() | 4.8万円 5,000円 | なし なし | 1K 22.35m2 | 築16年 | 小田急電鉄小田原線 東海大学前駅 徒歩14分 神奈川県秦野市南矢名5丁目 | 詳細を見る | |
アパート レオパレス美華(1K/1階) | |||||||
![]() | 4.2万円 5,000円 | なし なし | 1K 19.87m2 | 築18年 | 小田急電鉄小田原線 東海大学前駅 徒歩19分 神奈川県秦野市南矢名3丁目 | 詳細を見る | |









