賃貸マンション
ビレッジハウス大池 1号棟の賃貸物件情報(3DK/3階)
| 家賃 | 管理費等 | 敷金 | 礼金 | 間取り | 専有面積 |
|---|---|---|---|---|---|
| 4.84万円 | なし | なし | なし | 3DK | 53.08m2 |
入居決定でお祝い金最大100,000円
- 保証金
- -
- 償却・敷引
- -
- 築年数
- 築32年
- 所在階
- 3階
- 向き
- 南
Point
まずはお問い合わせ!
不動産会社は街のプロ、あなたに合った物件がきっと見つかります。
提供:ビレッジハウス住まい相談センター

詳細情報 ビレッジハウス大池 1号棟
物件紹介
ビレッジハウス大池 1号棟は名鉄広見線可児川駅から徒歩18分にあるマンションです。
このお部屋は2階以上に位置しているので、通行人や周囲の住人からの視線が気になりにくく、防犯面でも安心です。
人気の南向きのお部屋。バス・トイレ別の仕様で、のんびりお風呂タイムも楽しめます。
このお部屋は2階以上に位置しているので、通行人や周囲の住人からの視線が気になりにくく、防犯面でも安心です。
人気の南向きのお部屋。バス・トイレ別の仕様で、のんびりお風呂タイムも楽しめます。
お金・契約の情報
※「-」と表示されているものは、実際は料金が発生するものもございます。詳細はお問い合わせください。
| 家賃 | 4.84万円 | 管理費・共益費 | なし |
|---|---|---|---|
| 敷金 | なし | 礼金 | なし |
| フリーレント | 0ヶ月 | ||
| 入居決定でお祝い金最大100,000円 | |||
| 保証金 | - | 償却・敷引 | - |
| 住宅保険料 | 1万円(2年) | 更新料 | - |
| 保証会社利用 | - | 保証会社名 | - |
| 保証会社費用 | - | 保証会社備考 | - |
| 契約形態 | - | 契約期間 | - |
| 入居・引渡期間 | - | 現況 | 空室 |
| 入居可能条件 | 2人入居可、高齢者相談、学生可 | ||
| 契約備考 | 契約種類:普通契約、24時間緊急対応、ウォシュレット、ウォームレット | ||
部屋の情報
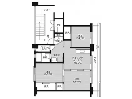
| 間取り | 3DK | 専有面積 | 53.08m2 |
|---|---|---|---|
| 所在階 / 向き | 3階 / 南 | バルコニー面積 | - |
| 水道 / ガス | - | ||
| 設備 | バス・トイレ別、エアコン、バルコニー、給湯、洗濯機:室内 | ||
| 当社物件ID | 36509423 | ||
建物の情報
| 建物名 | ビレッジハウス大池 1号棟 | ||
|---|---|---|---|
| 所在地 | 岐阜県可児市土田5080-1 | ||
| 交通 | 名鉄広見線 可児川駅 徒歩18分 高山本線 美濃太田駅 徒歩25分 名鉄広見線 日本ライン今渡駅 徒歩42分 | ||
| 階数 | 5階建 | 総戸数 | - |
| 築年月 | 1994年04月 / 築32年 | エレベーター | - |
| 駐車場 | 空有 3,300円/月 円 | バイク置き場 | - |
| 駐輪場 | - | 管理人/管理会社 | 日勤 |
| 建物種別 | マンション | 建物構造 | RC(鉄筋コンクリート) |
この部屋の取扱い不動産会社
| 会社名 | ビレッジハウス住まい相談センター | ||
|---|---|---|---|
| 所在地 | 愛知県名古屋市中区大須4-10-32 上前津KDビル5階 | 交通 | 名城線「上前津駅」徒歩3分 |
| 営業時間 | 平日:9:00-18:30/土日祝:9:00-18:00 | 定休日 | 年中無休(年末年始を除く) |
| 免許番号 | 東京都知事(2)第100758号 | 取引態様 | 貸主 |
| 不動産会社管理番号 | 00013596416 | 当社管理番号 | 459 |
| 所属団体 | 公益社団法人東京都宅地建物取引業協会会員 日本賃貸住宅管理協会会員 | ||
| 取扱い物件情報 | 物件詳細へ | ||
※各種情報と現状に差異がある場合は、現状優先となります。問い合わせをすることで、より詳しい条件、情報を確認する事ができます。
提供:ビレッジハウス住まい相談センター
この物件が気になったら掲載期限まであと12日
ビレッジハウス大池 1号棟に条件(家賃・エリア)が近い物件一覧
| 写真 | 家賃 管理費等 | 敷金 礼金 | 間取り 専有面積 | 築年数 | 最寄り駅 所在地 | キープ | 詳細 |
|---|---|---|---|---|---|---|---|
アパート V・FRUIT A(1K/2階) | |||||||
![]() | 4万円 4,050円 | なし なし | 1K 30.94m2 | 築19年 | 名鉄広見線 新可児駅 徒歩29分 岐阜県可児市川合 | 詳細を見る | |
アパート レオパレスCOMFORT 和幸(1K/2階) | |||||||
![]() | 5.5万円 6,500円 | なし 5.5万円 | 1K 28.02m2 | 築20年 | JR中央本線 土岐市駅 徒歩20分 岐阜県土岐市肥田浅野朝日町 | 詳細を見る | |
マンション フォレストコート(2LDK/1階) | |||||||
![]() | 5.4万円 3,000円 | なし なし | 2LDK 60m2 | 築23年 | JR中央本線 土岐市駅 徒歩68分 JR中央本線 多治見駅 徒歩103分 岐阜県土岐市妻木町 | 詳細を見る | |
アパート CORPOオリエンタルA ・ B(1K/2階) | |||||||
![]() | 3万円 3,000円 | なし なし | 1K 28m2 | 築29年 | 長良川鉄道 加茂野駅 徒歩9分 長良川鉄道 富加駅 徒歩27分 長良川鉄道 前平公園駅 徒歩34分 岐阜県美濃加茂市加茂野町今泉 | 詳細を見る | |
アパート ヤングプリンス(1LDK/1階) | |||||||
![]() | 3.7万円 4,000円 | なし なし | 1LDK 34.68m2 | 築34年 | JR高山本線 坂祝駅 徒歩29分 JR高山本線 美濃太田駅 徒歩35分 JR太多線 美濃太田駅 徒歩35分 岐阜県加茂郡坂祝町酒倉 | 詳細を見る | |
アパート シューフルール7(1K/1階) | |||||||
![]() | 3.1万円 6,000円 | なし なし | 1K 28.02m2 | 築29年 | 長良川鉄道 前平公園駅 徒歩13分 岐阜県美濃加茂市西町 | 詳細を見る | |
マンション シューフルールⅥ(1K/3階) | |||||||
![]() | 3.4万円 6,000円 | なし なし | 1K 25.5m2 | 築18年 | 長良川鉄道 加茂野駅 徒歩19分 岐阜県美濃加茂市加茂野町加茂野 | 詳細を見る | |
アパート クレールVII(2LDK/2階) | |||||||
![]() | 5万円 2,900円 | なし 5万円 | 2LDK 61.12m2 | 築10年 | 長良川鉄道 富加駅 徒歩6分 長良川鉄道 関富岡駅 徒歩28分 岐阜県美濃加茂市加茂野町市橋 | 詳細を見る | |








/105x80-f1-q70-wp1)
