賃貸マンション
ASTILE代々木公園 アスティーレ代々木公園の賃貸物件情報(ワンルーム/1階)
| 家賃 | 管理費等 | 敷金 | 礼金 | 間取り | 専有面積 |
|---|---|---|---|---|---|
| 9.5万円 | 1万円 | 9.5万円 | 9.5万円 | ワンルーム | 16.82m2 |
入居決定でお祝い金最大100,000円
- 保証金
- -
- 償却・敷引
- -
- 築年数
- 築4年
- 所在階
- 1階
- 向き
- 西
Point
★システムキッチン★浴室乾燥機★温水洗浄便座★室内洗濯機置場★クローゼット★シューズボックス★TVモニター付きインターホン★駐輪場★バイク置場★詳細はお気軽にお問い合わせください!★
提供:(株)ユウキ・ホーム麻布十番サテライト店(SUUMO経由)

詳細情報 ASTILE代々木公園 アスティーレ代々木公園
物件紹介
ASTILE代々木公園 アスティーレ代々木公園は小田急線代々木八幡駅から徒歩5分にあり、駅近で通勤通学に便利なマンションです。
建物のエントランスはオートロックがついており、インターホンにはTVモニタもついているため、相手の顔を確認してから来客対応することができます。
おしゃれなデザイナーズ物件!フローリングのお部屋なのでお掃除もラクラク。キッチンはシステムキッチン仕様になっていますので、お料理好きの方にもぴったり。バス・トイレは別なので、のんびりお風呂タイムも楽しめるでしょう。また、雨の日でも浴室乾燥機を使えば、お洗濯も問題ありません。
通信設備面では、インターネットが無料で使えるので、月々の出費を抑えられるのも魅力です(別途工事等が必要な場合あり)。
建物にはエレベーターがついているので、重い荷物があっても安心。共用部には宅配ボックスが設定されているので、不在の時にも荷物を受け取ることができます。
建物のエントランスはオートロックがついており、インターホンにはTVモニタもついているため、相手の顔を確認してから来客対応することができます。
おしゃれなデザイナーズ物件!フローリングのお部屋なのでお掃除もラクラク。キッチンはシステムキッチン仕様になっていますので、お料理好きの方にもぴったり。バス・トイレは別なので、のんびりお風呂タイムも楽しめるでしょう。また、雨の日でも浴室乾燥機を使えば、お洗濯も問題ありません。
通信設備面では、インターネットが無料で使えるので、月々の出費を抑えられるのも魅力です(別途工事等が必要な場合あり)。
建物にはエレベーターがついているので、重い荷物があっても安心。共用部には宅配ボックスが設定されているので、不在の時にも荷物を受け取ることができます。
お金・契約の情報
※「-」と表示されているものは、実際は料金が発生するものもございます。詳細はお問い合わせください。
| 家賃 | 9.5万円 | 管理費・共益費 | 1万円 |
|---|---|---|---|
| 敷金 | 9.5万円 | 礼金 | 9.5万円 |
| 入居決定でお祝い金最大100,000円 | |||
| 保証金 | - | 償却・敷引 | - |
| 住宅保険料 | - | 更新料 | - |
| 保証会社利用 | 必須 | 保証会社名 | - |
| 保証会社費用 | - | 保証会社備考 | 保証会社利用必 初回保証料:60%※詳細はお問い合わせ下さい |
| 契約形態 | - | 契約期間 | - |
| 入居・引渡期間 | 相談 | 現況 | - |
| 契約備考 | 巡回管理/エアコンクリーニング費用:壁掛け13000円/台、天井カセット30000円/台 駐輪場:330円/月※空詳細要確認 バイク置場:5500円/月※空詳細要確認 合計6.38万円(内訳:契約事務手数料1.1万円24時間緊急サポート/2年1.98万円鍵交換代3.3万円) 室内清掃費用 35000円 ワンルーム 単身者可 普通借家2年 損保【要】 バストイレ別、エアコン、クロゼット、フローリング、TVインターホン、浴室乾燥機、オートロック、室内洗濯置、シューズボックス、システムキッチン、追焚機能浴室、温水洗浄便座、エレベーター、駐輪場、宅配ボックス、防犯カメラ、IHクッキングヒーター、オートバス、保証人不要、バイク置場、デザイナーズ、ディンプルキー、ネット使用料不要、3駅以上利用可、3沿線以上利用可、駅徒歩5分以内、24時間ゴミ出し可、敷地内ごみ置き場、都市ガス、保証会社利用可 | ||
部屋の情報
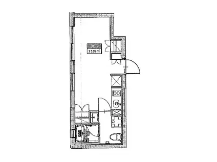
| 間取り | ワンルーム | 専有面積 | 16.82m2 |
|---|---|---|---|
| 所在階 / 向き | 1階 / 西 | バルコニー面積 | - |
| 水道 / ガス | - | ||
| 設備 | バス・トイレ別、オートロック、テレビドアホン、宅配ボックス、浴室乾燥機、追い焚き、インターネット対応、システムキッチン、エアコン、エレベーター、温水洗浄便座、フローリング、コンロ:IH、デザイナーズ、インターネット使用料無料、洗濯機:室内 | ||
| 当社物件ID | 160171620 | ||
建物の情報
| 建物名 | ASTILE代々木公園 アスティーレ代々木公園 | ||
|---|---|---|---|
| 所在地 | 東京都渋谷区元代々木町 | ||
| 交通 | 小田急線 代々木八幡駅 徒歩5分 東京メトロ千代田線 代々木公園駅 徒歩6分 小田急線 代々木上原駅 徒歩9分 | ||
| 階数 | 地下1地上5階建 | 総戸数 | 32戸 |
| 築年月 | 2022年08月 / 築4年 | エレベーター | あり |
| 駐車場 | なし | バイク置き場 | あり |
| 駐輪場 | あり | 管理人/管理会社 | - |
| 周辺環境 | その他 ローソン 元代々木町店(コンビニ)まで129m その他 オーケー 初台店(スーパー)まで332m その他 アイン薬局 代々木八幡店(ドラッグストア)まで222m | ||
| 建物種別 | マンション | 建物構造 | RC(鉄筋コンクリート) |
この部屋の取扱い不動産会社
| 会社名 | (株)ユウキ・ホーム麻布十番店(SUUMO経由) | ||
|---|---|---|---|
| 所在地 | 東京都港区麻布十番2-19-10 | 交通 | - |
| 営業時間 | AM9:30~PM9:30 | 定休日 | 無休 |
| 免許番号 | 東京都知事76214 | 取引態様 | 仲介 |
| 不動産会社管理番号 | 100481525988 | 当社管理番号 | 89 |
| 所属団体 | (公社)東京都宅地建物取引業協会会員 | ||
| 公正取引協議会 | (公社)首都圏不動産公正取引協議会加盟 | ||
| 取扱い物件情報 | 物件詳細へ | ||
※各種情報と現状に差異がある場合は、現状優先となります。問い合わせをすることで、より詳しい条件、情報を確認する事ができます。
提供:(株)ユウキ・ホーム麻布十番店(SUUMO経由)
この物件が気になったら掲載期限まであと10日
ASTILE代々木公園 アスティーレ代々木公園に条件(家賃・エリア)が近い物件一覧
| 写真 | 家賃 管理費等 | 敷金 礼金 | 間取り 専有面積 | 築年数 | 最寄り駅 所在地 | キープ | 詳細 |
|---|---|---|---|---|---|---|---|
マンション コンフォリア・リヴ品川南大井(1DK/5階) | |||||||
![]() | 12.4万円 1万円 | 12.4万円 12.4万円 | 1DK 25.54m2 | 築4年 | JR京浜東北線 大森駅(東京) 徒歩9分 京急本線 大森海岸駅 徒歩9分 東京都品川区南大井 | 詳細を見る | |
マンション レジディア白金高輪(1K/7階) | |||||||
![]() | 15万円 1.5万円 | なし なし | 1K 26.08m2 | 築14年 | 東京メトロ南北線 白金高輪駅 徒歩5分 都営浅草線 泉岳寺駅 徒歩7分 JR山手線 高輪ゲートウェイ駅 徒歩14分 東京都港区高輪 | 詳細を見る | |
マンション アジールコート品川中延サウス(1K/8階) | |||||||
![]() | 13万円 1万円 | 13万円 13万円 | 1K 25.2m2 | 築3年 | 東京都浅草線 中延駅 徒歩4分 東京都品川区中延6丁目 | 詳細を見る | |
マンション EXAM西小山(ワンルーム/1階) | |||||||
![]() | 8.7万円 5,000円 | 8.7万円 8.7万円 | ワンルーム 20m2 | 築7年 | 東急目黒線 西小山駅 徒歩7分 東急目黒線 武蔵小山駅 徒歩13分 東京都品川区荏原5丁目 | 詳細を見る | |
マンション ハイツ髙沢(1LDK/2階) | |||||||
![]() | 13.5万円 5,000円 | 13.5万円 27万円 | 1LDK 32.89m2 | 築7年 | 東急池上線 旗の台駅 徒歩5分 東急大井町線 荏原町駅 徒歩6分 横須賀線 西大井駅 徒歩21分 東京都品川区旗の台4丁目 | 詳細を見る | |
マンション 杉田ハイツ西大井(1K/2階) | |||||||
![]() | 7万円 2,000円 | 7万円 7万円 | 1K 19m2 | 築37年 | JR横須賀線 西大井駅 徒歩6分 都営浅草線 馬込駅 徒歩12分 都営浅草線 中延駅 徒歩13分 東京都品川区西大井 | 詳細を見る | |
マンション レジディア南品川Ⅱ(1K/6階) | |||||||
![]() | 11.6万円 1.5万円 | なし なし | 1K 20.29m2 | 築11年 | 京浜急行電鉄本線 新馬場駅 徒歩5分 東京都品川区南品川2丁目 | 詳細を見る | |







