賃貸マンション
広尾ユタカタワーズの賃貸物件情報(1DK/8階)
| 家賃 | 管理費等 | 敷金 | 礼金 | 間取り | 専有面積 |
|---|---|---|---|---|---|
| 17.8万円 | 1万円 | 35.6万円 | なし | 1DK | 30.79m2 |
入居決定でお祝い金最大100,000円
- 保証金
- -
- 償却・敷引
- -
- 築年数
- 築35年
- 所在階
- 8階
- 向き
- 北
Point
保証会社初回保証料、貸主負担にてご紹介中!白とライトグレージュの明るい内装のお部屋です。広尾商店街至近でお買い物にも便利・すぐ側にはバス停もあり渋谷駅、麻布十番駅、新橋駅方面へのアクセスも良好です。
提供:ジェイ・ネットワーク(株)(SUUMO経由)

詳細情報 広尾ユタカタワーズ
物件紹介
広尾ユタカタワーズは東京メトロ日比谷線広尾駅から徒歩5分にあり、駅近で通勤通学に便利なマンションです。
このお部屋は2階以上に位置しているので、通行人や周囲の住人からの視線が気になりにくく、防犯面でも安心。建物のエントランスはオートロックがついており、インターホンにはTVモニタもついているため、相手の顔を確認してから来客対応することができます。
フローリングのお部屋なのでお掃除もラクラク。キッチンはシステムキッチン仕様になっていますので、お料理好きの方にもぴったり。また、バス・トイレは別で、のんびりお風呂タイムも楽しめるでしょう。
通信設備面ではCATVに対応しているので、おうち時間も充実するでしょう(別途工事、契約料が必要な場合あり)。
建物にはエレベーターがついているので、重い荷物があっても安心。共用部には宅配ボックスが設定されているので、不在の時にも荷物を受け取ることができます。
このお部屋は2階以上に位置しているので、通行人や周囲の住人からの視線が気になりにくく、防犯面でも安心。建物のエントランスはオートロックがついており、インターホンにはTVモニタもついているため、相手の顔を確認してから来客対応することができます。
フローリングのお部屋なのでお掃除もラクラク。キッチンはシステムキッチン仕様になっていますので、お料理好きの方にもぴったり。また、バス・トイレは別で、のんびりお風呂タイムも楽しめるでしょう。
通信設備面ではCATVに対応しているので、おうち時間も充実するでしょう(別途工事、契約料が必要な場合あり)。
建物にはエレベーターがついているので、重い荷物があっても安心。共用部には宅配ボックスが設定されているので、不在の時にも荷物を受け取ることができます。
お金・契約の情報
※「-」と表示されているものは、実際は料金が発生するものもございます。詳細はお問い合わせください。
| 家賃 | 17.8万円 | 管理費・共益費 | 1万円 |
|---|---|---|---|
| 敷金 | 35.6万円 | 礼金 | なし |
| フリーレント | あり | ||
| 入居決定でお祝い金最大100,000円 | |||
| 保証金 | - | 償却・敷引 | - |
| 住宅保険料 | - | 更新料 | - |
| 保証会社利用 | 必須 | 保証会社名 | - |
| 保証会社費用 | - | 保証会社備考 | 保証会社利用必 初回保証料賃料等の50%・更新保証料10000円/年 |
| 契約形態 | - | 契約期間 | - |
| 入居・引渡期間 | - | 現況 | - |
| 契約備考 | 通勤管理/駐輪場1世帯1台まで(月額500円)・指定保証会社加入必須(一部法人契約除く)・フリーレント、保証会社初期費用貸主負担(負担上限家賃の50%迄・フリーレントは賃料のみ対象)・短期解約違約金有 合計2.75万円(内訳:鍵交換費用 11000円 24時間入居サポート(2年) 16500円) 口座振替手数料 550円/月額 ハウスクリーニング 44000円/退去時 更新料 1ヶ月 1DK フリーレント1ヶ月 普通借家2年 損保【2万円2年】 バストイレ別、バルコニー、エアコン、フローリング、TVインターホン、オートロック、室内洗濯置、シューズボックス、システムキッチン、温水洗浄便座、エレベーター、洗面所独立、駐輪場、宅配ボックス、CATV、外壁タイル張り、礼金不要、対面式キッチン、防犯カメラ、IHクッキングヒーター、仲介手数料不要、2沿線利用可、フリーレント、敷金2ヶ月、3駅以上利用可、駅徒歩5分以内、24時間ゴミ出し可、敷地内ごみ置き場、日勤管理、都市ガス 入居日:'26年5月上旬 | ||
部屋の情報
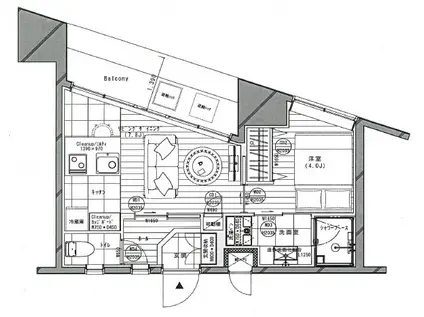
| 間取り | 1DK | 専有面積 | 30.79m2 |
|---|---|---|---|
| 所在階 / 向き | 8階 / 北 | バルコニー面積 | - |
| 水道 / ガス | - | ||
| 設備 | バス・トイレ別、2階以上、オートロック、テレビドアホン、宅配ボックス、システムキッチン、エアコン、エレベーター、温水洗浄便座、バルコニー、フローリング、洗髪洗面化粧台、コンロ:IH、CATV、洗濯機:室内 | ||
| 当社物件ID | 9140320 | ||
建物の情報
| 建物名 | 広尾ユタカタワーズ | ||
|---|---|---|---|
| 所在地 | 東京都渋谷区広尾 | ||
| 交通 | 東京メトロ日比谷線 広尾駅 徒歩5分 JR山手線 恵比寿駅 徒歩12分 東京メトロ日比谷線 恵比寿駅 徒歩14分 | ||
| 階数 | 地下1地上11階建 | 総戸数 | 36戸 |
| 築年月 | 1991年07月 / 築35年 | エレベーター | あり |
| 駐車場 | なし | バイク置き場 | - |
| 駐輪場 | あり | 管理人/管理会社 | - |
| 周辺環境 | その他 まいばすけっと 広尾5丁目店(スーパー)まで75m その他 スーパーマーケットRico’s(スーパー)まで76m その他 ナチュラルローソン広尾五丁目店(スーパー)まで160m その他 セブンイレブン 渋谷広尾5丁目店(コンビニ)まで150m その他 渋谷広尾郵便局(郵便局)まで150m その他 どらっぐぱぱす 広尾店(ドラッグストア)まで330m | ||
| 建物種別 | マンション | 建物構造 | SRC(鉄骨鉄筋コンクリート) |
この部屋の取扱い不動産会社
| 会社名 | ジェイ・ネットワーク(株)(SUUMO経由) | ||
|---|---|---|---|
| 所在地 | 東京都渋谷区広尾5-19-12 | 交通 | - |
| 営業時間 | 10:00~19:00(土日祝18:00まで) | 定休日 | 毎週水曜日・第二火曜日 |
| 免許番号 | 東京都知事78051 | 取引態様 | 仲介 |
| 不動産会社管理番号 | 100502094533 | 当社管理番号 | 89 |
| 所属団体 | (公社)全日本不動産協会東京都本部会員 | ||
| 公正取引協議会 | (公社)首都圏不動産公正取引協議会加盟 | ||
| 取扱い物件情報 | 物件詳細へ | ||
※各種情報と現状に差異がある場合は、現状優先となります。問い合わせをすることで、より詳しい条件、情報を確認する事ができます。
提供:ジェイ・ネットワーク(株)(SUUMO経由)
この物件が気になったら掲載期限まであと11日
広尾ユタカタワーズに条件(家賃・エリア)が近い物件一覧
| 写真 | 家賃 管理費等 | 敷金 礼金 | 間取り 専有面積 | 築年数 | 最寄り駅 所在地 | キープ | 詳細 |
|---|---|---|---|---|---|---|---|
アパート 中落合3丁目(2SLDK/2階) | |||||||
![]() | 22.5万円 なし | 22.5万円 22.5万円 | 2SLDK 75m2 | 築45年 | 都営大江戸線 落合南長崎駅 徒歩3分 西武新宿線 中井駅 徒歩13分 西武池袋線 東長崎駅 徒歩14分 東京都新宿区中落合 | 詳細を見る | |
マンション アリエルズ赤坂(1K/7階) | |||||||
![]() | 16万円 1万円 | 16万円 16万円 | 1K 26.19m2 | 築13年 | 東京メトロ千代田線 赤坂駅(東京) 徒歩4分 東京メトロ銀座線 赤坂見附駅 徒歩8分 東京メトロ有楽町線 永田町駅 徒歩10分 東京都港区赤坂 | 詳細を見る | |
アパート セレスティア上北沢(2LDK/3階) | |||||||
![]() | 20.4万円 6,000円 | なし 40.8万円 | 2LDK 44.44m2 | 新築 | 京王電鉄京王線 上北沢駅 徒歩3分 東京都世田谷区上北沢4丁目 | 詳細を見る | |
マンション アレーロ参宮橋(ワンルーム/1階) | |||||||
![]() | 18万円 1万円 | なし なし | ワンルーム 33.47m2 | 築10年 | 小田急線 参宮橋駅 徒歩5分 京王新線 初台駅 徒歩12分 小田急線 代々木八幡駅 徒歩12分 東京都渋谷区代々木 | 詳細を見る | |
マンション TAS経堂レジデンス(1LDK/3階) | |||||||
![]() | 14.8万円 1万円 | 14.8万円 14.8万円 | 1LDK 41.69m2 | 築10年 | 小田急線 経堂駅 徒歩10分 小田急線 千歳船橋駅 徒歩10分 東急世田谷線 宮の坂駅 徒歩21分 東京都世田谷区経堂 | 詳細を見る | |
マンション ル・リオン高円寺(1LDK/4階) | |||||||
![]() | 16.3万円 1万円 | 16.3万円 16.3万円 | 1LDK 43.22m2 | 築19年 | 中央本線 高円寺駅 徒歩12分 西武鉄道新宿線 野方駅 徒歩15分 東京都中野区大和町1丁目 | 詳細を見る | |
マンション QUI E ORA(2K/1階) | |||||||
![]() | 14.5万円 1万円 | なし なし | 2K 31.34m2 | 築5年 | 東急目黒線 武蔵小山駅 徒歩5分 東急目黒線 西小山駅 徒歩8分 東急池上線 戸越銀座駅 徒歩20分 東京都目黒区目黒本町 | 詳細を見る | |
アパート へーベルメゾン宮前2丁目(2LDK/1階) | |||||||
![]() | 20.7万円 5,000円 | 20.7万円 31.05万円 | 2LDK 53.45m2 | 新築 | 京王井の頭線 高井戸駅 徒歩14分 東京メトロ丸ノ内線 荻窪駅 徒歩21分 JR中央線 荻窪駅 徒歩22分 東京都杉並区宮前 | 詳細を見る | |




/105x80-f1-q70-wp1)




