賃貸アパート
JUN湘南の賃貸物件情報(1K/1階)
| 家賃 | 管理費等 | 敷金 | 礼金 | 間取り | 専有面積 |
|---|---|---|---|---|---|
| 4.5万円 | 2,000円 | 4.5万円 | なし | 1K | 25.2m2 |
入居決定でお祝い金最大100,000円
- 保証金
- -
- 償却・敷引
- -
- 築年数
- 築23年
- 所在階
- 1階
- 向き
- 南
Point
共用部には宅配ボックスを設置しているため、対面で荷物を受け取る必要がなくなります。
提供:ハウスコム西神奈川株式会社 湘南台店

詳細情報 JUN湘南
物件紹介
このお部屋は2階以上に位置しているので、通行人や周囲の住人からの視線が気になりにくく、防犯面でも安心。インターホンにはTVモニタもついているため、相手の顔を確認してから来客対応することができます。
人気の南向きのお部屋。室内には多目的に利用できるロフトがあり、お部屋のアレンジも自在です。キッチンはシステムキッチン仕様になっていますので、お料理好きの方にもぴったり。また、バス・トイレは別で、のんびりお風呂タイムも楽しめるでしょう。
通信設備面では、インターネットが無料で使えるので、月々の出費を抑えられるのも魅力です。また、CATVにも対応しているので、おうち時間も充実するでしょう(別途工事、CATVの契約料等が必要な場合あり)。
共用部には宅配ボックスが設定されているので、不在の時にも荷物を受け取ることができます。
コンビニまで徒歩8分の場所にあり、日用品や食料品のお買い物にも便利です。
人気の南向きのお部屋。室内には多目的に利用できるロフトがあり、お部屋のアレンジも自在です。キッチンはシステムキッチン仕様になっていますので、お料理好きの方にもぴったり。また、バス・トイレは別で、のんびりお風呂タイムも楽しめるでしょう。
通信設備面では、インターネットが無料で使えるので、月々の出費を抑えられるのも魅力です。また、CATVにも対応しているので、おうち時間も充実するでしょう(別途工事、CATVの契約料等が必要な場合あり)。
共用部には宅配ボックスが設定されているので、不在の時にも荷物を受け取ることができます。
コンビニまで徒歩8分の場所にあり、日用品や食料品のお買い物にも便利です。
お金・契約の情報
※「-」と表示されているものは、実際は料金が発生するものもございます。詳細はお問い合わせください。
| 家賃 | 4.5万円 | 管理費・共益費 | 2,000円 |
|---|---|---|---|
| 敷金 | 4.5万円 | 礼金 | なし |
| 入居決定でお祝い金最大100,000円 | |||
| 保証金 | - | 償却・敷引 | - |
| 住宅保険料 | 1円 | 更新料 | - |
| その他費用 | 除菌消臭:1.54万円 | ||
| 保証会社利用 | 必須 | 保証会社名 | 日本賃貸保証 |
| 保証会社費用 | - | 保証会社備考 | 初回保証料 賃料合計の50% 月額330円 1年毎1万円 |
| 契約形態 | - | 契約期間 | 2年 |
| 入居・引渡期間 | 即時 | 現況 | - |
| 入居可能条件 | 単身者限定、2人入居不可 | ||
| 契約備考 | 火災保険17000円/2年・鍵交換費用22000円・除菌消臭15400円 鍵交換費用:22000 その他設備/条件:室内洗濯機置き場、独立洗面台、ルームシェア不可、クローゼット、シューズボックス、照明器具付き | ||
部屋の情報
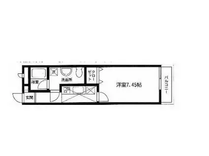
| 間取り | 1K | 専有面積 | 25.2m2 |
|---|---|---|---|
| 間取り詳細 | 洋室(7.4帖)、K(2帖) | ||
| 所在階 / 向き | 1階 / 南 | バルコニー面積 | - |
| 水道 / ガス | 水道【公営】、ガス【プロパン】 | ||
| 設備 | バス・トイレ別、テレビドアホン、宅配ボックス、インターネット対応、システムキッチン、エアコン、バルコニー、ロフトあり、コンロ:IH、CATV、インターネット使用料無料、シャワー、給湯 | ||
| 当社物件ID | 3999938 | ||
建物の情報
| 建物名 | JUN湘南 | ||
|---|---|---|---|
| 所在地 | 神奈川県藤沢市遠藤 | ||
| 交通 | 小田急電鉄江ノ島線 湘南台駅 バス乗車時間:9分 田方バス停で下車 徒歩2分 東海道本線 辻堂駅 バス乗車時間:17分 田方バス停で下車 徒歩3分 | ||
| 階数 | 3階建 | 総戸数 | - |
| 築年月 | 2003年04月 / 築23年 | エレベーター | - |
| 駐車場 | - | バイク置き場 | あり |
| 駐輪場 | あり | 管理人/管理会社 | - |
| 周辺環境 | コンビニ 徒歩8分(566m) 販売店 徒歩11分(821m) その他 ドラッグストア その他 公園 その他 銀行 その他 * | ||
| 建物種別 | アパート | 建物構造 | 軽量鉄骨造 |
この部屋の取扱い不動産会社
| 会社名 | ハウスコム西神奈川株式会社 湘南台店 | ||
|---|---|---|---|
| 所在地 | 神奈川県藤沢市2-5丸栄建設湘南台東口ビル3階 | 交通 | - |
| 営業時間 | 10:00~18:00 | 定休日 | - |
| 免許番号 | 神奈川県知事(1)第31770号 | 取引態様 | 仲介 |
| 不動産会社管理番号 | HC2-424778-107-0055 | 当社管理番号 | 468 |
| 所属団体 | 、 | ||
| 取扱い物件情報 | 物件詳細へ | ||
※各種情報と現状に差異がある場合は、現状優先となります。問い合わせをすることで、より詳しい条件、情報を確認する事ができます。
提供:ハウスコム西神奈川株式会社 湘南台店
この物件が気になったら掲載期限まであと4日
JUN湘南に条件(家賃・エリア)が近い物件一覧
| 写真 | 家賃 管理費等 | 敷金 礼金 | 間取り 専有面積 | 築年数 | 最寄り駅 所在地 | キープ | 詳細 |
|---|---|---|---|---|---|---|---|
マンション ウィズ今村(1K/4階) | |||||||
![]() | 4万円 2,000円 | 4万円 なし | 1K 22.88m2 | 築37年 | JR東海道本線 辻堂駅 徒歩15分 小田急江ノ島線 藤沢本町駅 徒歩27分 神奈川県藤沢市辻堂新町 | 詳細を見る | |
アパート 西谷アパート(1K/1階) | |||||||
![]() | 6.9万円 3,000円 | なし なし | 1K 21.11m2 | 新築 | 相模鉄道相鉄新横浜 西谷駅 徒歩9分 神奈川県横浜市保土ケ谷区西谷1丁目 | 詳細を見る | |
マンション FKDビル(ワンルーム/5階) | |||||||
![]() | 4.9万円 なし | 4.9万円 なし | ワンルーム 20.4m2 | 築40年 | 相鉄本線 上星川駅 徒歩3分 相鉄本線 和田町駅 徒歩12分 神奈川県横浜市保土ケ谷区坂本町 | 詳細を見る | |
マンション メイツ伊勢佐木長者町(ワンルーム/2階) | |||||||
![]() | 5.4万円 5,000円 | なし なし | ワンルーム 22.18m2 | 築37年 | 横浜市ブルーライン 阪東橋駅 徒歩5分 神奈川県横浜市南区真金町2丁目 | 詳細を見る | |
アパート タプラすみよし台B(1K/1階) | |||||||
![]() | 5.8万円 なし | 8.7万円 なし | 1K 20.69m2 | 築20年 | 東急こどもの国線 恩田駅 徒歩8分 東急こどもの国線 こどもの国駅(神奈川) 徒歩14分 東急田園都市線 田奈駅 徒歩29分 神奈川県横浜市青葉区すみよし台 | 詳細を見る | |
アパート ありあけ荘(1DK/1階) | |||||||
![]() | 5万円 2,000円 | 5万円 5万円 | 1DK 26m2 | 築52年 | 根岸線 新杉田駅 徒歩10分 神奈川県横浜市磯子区杉田5丁目 | 詳細を見る | |
アパート ユナイト市沢エランクール(ワンルーム/2階) | |||||||
![]() | 4.6万円 4,500円 | なし なし | ワンルーム 12m2 | 築3年 | 相鉄本線 上星川駅 徒歩20分 相鉄本線 鶴ケ峰駅 徒歩30分 神奈川県横浜市旭区市沢町 | 詳細を見る | |
アパート ファミーユツノダ(1K/1階) | |||||||
![]() | 4.1万円 なし | 4.1万円 なし | 1K 21m2 | 築40年 | ブルーライン 岸根公園駅 徒歩9分 東急東横線 妙蓮寺駅 徒歩12分 東急東横線 白楽駅 徒歩15分 神奈川県横浜市港北区篠原東 | 詳細を見る | |







/105x80-f1-q70-wp1)

