賃貸マンション
三恵マンションの賃貸物件情報(ワンルーム/3階)
| 家賃 | 管理費等 | 敷金 | 礼金 | 間取り | 専有面積 |
|---|---|---|---|---|---|
| 8.8万円 | なし | 8.8万円 | 8.8万円 | ワンルーム | 35.11m2 |
入居決定でお祝い金最大100,000円
- 保証金
- -
- 償却・敷引
- -
- 築年数
- 築49年
- 所在階
- 3階
- 向き
- 南西
Point
リノベーション済みです。
提供:(有)アメニティ福家(SUUMO経由)

詳細情報 三恵マンション
物件紹介
三恵マンションは東京メトロ日比谷線入谷駅から徒歩4分にあり、駅近で通勤通学に便利なマンションです。
このお部屋は2階以上に位置しているので、通行人や周囲の住人からの視線が気になりにくく、防犯面でも安心です。
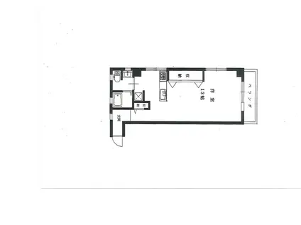
人気の南向き・フローリングのお部屋。角部屋でもあるため、周囲の居住者の生活音も気になりにくい場所です。キッチンはシステムキッチン仕様になっていますので、お料理好きの方にもぴったり。また、バス・トイレは別で、のんびりお風呂タイムも楽しめるでしょう。
通信設備面ではCATVに対応しているので、おうち時間も充実するでしょう(別途工事、契約料が必要な場合あり)。
建物にはエレベーターがついているので、重い荷物があっても安心。
このお部屋は2階以上に位置しているので、通行人や周囲の住人からの視線が気になりにくく、防犯面でも安心です。
人気の南向き・フローリングのお部屋。角部屋でもあるため、周囲の居住者の生活音も気になりにくい場所です。キッチンはシステムキッチン仕様になっていますので、お料理好きの方にもぴったり。また、バス・トイレは別で、のんびりお風呂タイムも楽しめるでしょう。
通信設備面ではCATVに対応しているので、おうち時間も充実するでしょう(別途工事、契約料が必要な場合あり)。
建物にはエレベーターがついているので、重い荷物があっても安心。
お金・契約の情報
※「-」と表示されているものは、実際は料金が発生するものもございます。詳細はお問い合わせください。
| 家賃 | 8.8万円 | 管理費・共益費 | なし |
|---|---|---|---|
| 敷金 | 8.8万円 | 礼金 | 8.8万円 |
| 入居決定でお祝い金最大100,000円 | |||
| 保証金 | - | 償却・敷引 | - |
| 住宅保険料 | - | 更新料 | - |
| 保証会社利用 | 必須 | 保証会社名 | 全保連 |
| 保証会社費用 | - | 保証会社備考 | 全保連利用必 賃料の50%又は120% |
| 契約形態 | - | 契約期間 | - |
| 入居・引渡期間 | 即時 | 現況 | - |
| 契約備考 | リフォーム:令和1年8月リノベーション ワンルーム 子供不可/事務所利用不可/ルームシェア不可 損保【1.5万円2年】 バストイレ別、バルコニー、エアコン、クロゼット、フローリング、システムキッチン、追焚機能浴室、角住戸、温水洗浄便座、エレベーター、洗面化粧台、CATV、即入居可、2面採光、3口以上コンロ、対面式キッチン、敷金1ヶ月、3駅以上利用可、3沿線以上利用可、100円バス路線、南西向き、都市ガス、洗面所に窓、天井高シューズクロゼット、リノベーション、礼金1ヶ月 | ||
部屋の情報
| 間取り | ワンルーム | 専有面積 | 35.11m2 |
|---|---|---|---|
| 所在階 / 向き | 3階 / 南西 | バルコニー面積 | - |
| 水道 / ガス | - | ||
| 設備 | バス・トイレ別、2階以上、追い焚き、システムキッチン、エアコン、エレベーター、温水洗浄便座、南向き、角部屋、バルコニー、フローリング、2口コンロ、CATV | ||
| 当社物件ID | 156914282 | ||
建物の情報
| 建物名 | 三恵マンション | ||
|---|---|---|---|
| 所在地 | 東京都台東区北上野 | ||
| 交通 | 東京メトロ日比谷線 入谷駅(東京) 徒歩4分 東京メトロ銀座線 稲荷町駅(東京) 徒歩7分 JR山手線 上野駅 徒歩8分 | ||
| 階数 | 6階建 | 総戸数 | - |
| 築年月 | 1977年11月 / 築49年 | エレベーター | あり |
| 駐車場 | なし | バイク置き場 | - |
| 駐輪場 | - | 管理人/管理会社 | - |
| 周辺環境 | その他 ウエルシア(ドラッグストア)まで400m その他 ココスナカムラ(スーパー)まで400m その他 セブンイレブン(コンビニ)まで100m その他 三角公園(公園)まで100m その他 松屋(飲食店)まで400m その他 駒形中学校(中学校)まで200m | ||
| 建物種別 | マンション | 建物構造 | RC(鉄筋コンクリート) |
この部屋の取扱い不動産会社
| 会社名 | (有)アメニティ福家(SUUMO経由) | ||
|---|---|---|---|
| 所在地 | 東京都台東区北上野2-17-5 | 交通 | - |
| 営業時間 | 10:00~18:00 | 定休日 | 不定期 |
| 免許番号 | 東京都知事70797 | 取引態様 | 仲介 |
| 不動産会社管理番号 | 100382541856 | 当社管理番号 | 89 |
| 所属団体 | (公社)東京都宅地建物取引業協会会員 | ||
| 公正取引協議会 | (公社)首都圏不動産公正取引協議会加盟 | ||
| 取扱い物件情報 | 物件詳細へ | ||
※各種情報と現状に差異がある場合は、現状優先となります。問い合わせをすることで、より詳しい条件、情報を確認する事ができます。
提供:(有)アメニティ福家(SUUMO経由)
この物件が気になったら掲載期限まであと9日
三恵マンションに条件(家賃・エリア)が近い物件一覧
| 写真 | 家賃 管理費等 | 敷金 礼金 | 間取り 専有面積 | 築年数 | 最寄り駅 所在地 | キープ | 詳細 |
|---|---|---|---|---|---|---|---|
マンション ミレドゥーエ両国(1K/6階) | |||||||
![]() | 11.6万円 1万円 | 11.6万円 11.6万円 | 1K 26.46m2 | 築6年 | 東京都新宿線 森下駅(東京) 徒歩7分 東京都墨田区千歳3丁目 | 詳細を見る | |
マンション アーバンパーク押上(1DK/1階) | |||||||
![]() | 12.15万円 1.5万円 | なし なし | 1DK 25.81m2 | 築2年 | 都営浅草線 押上駅 徒歩8分 東武伊勢崎線 曳舟駅 徒歩14分 都営浅草線 本所吾妻橋駅 徒歩14分 東京都墨田区向島 | 詳細を見る | |
マンション FIRSTSTAGE ASAKUSA BUILDING(1LDK/4階) | |||||||
![]() | 13.8万円 5,000円 | 13.8万円 なし | 1LDK 42.71m2 | 築34年 | つくばエクスプレス 新御徒町駅 徒歩6分 東京都大江戸線 新御徒町駅 徒歩6分 東京地下鉄銀座線 稲荷町駅(東京) 徒歩8分 東京都台東区元浅草3丁目 | 詳細を見る | |
マンション 鈴木ビル(1K/1階) | |||||||
![]() | 7.1万円 3,000円 | 7.1万円 7.1万円 | 1K 26.17m2 | 築45年 | 東京地下鉄千代田線 町屋駅 徒歩8分 東京都荒川線 町屋駅前駅 徒歩8分 京成電鉄本線 町屋駅 徒歩10分 東京都荒川区町屋三丁目 | 詳細を見る | |





